Размещено на портале Архи.ру (www.archi.ru)

11.04.2010

Современное искусство… в контейнере

Наталья Коряковская
Мастерская:
АБ ASADOV
ПТАМ Хазанова

31 марта Архитектурный совет города Москвы собрался в полном составе для того, чтобы рассмотреть проекты строительства второй очереди музея современного искусства на Зоологической улице (ПТАМ Михаила Хазанова), и гостиницы напротив Курского вокзала (мастерская Александра Асадова). Оба проекта вызвали острую дискуссию, однако в итоге были приняты.

Музей современного искусства в составе ГЦСИ. Зоологическая ул., вл. 13 © ПТАМ Хазанова. М. Хазанов, М. Миндлин, А. Нагавицын
Музей современного искусства в составе ГЦСИ. Зоологическая ул., вл. 13 © ПТАМ Хазанова. М. Хазанов, М. Миндлин, А. Нагавицын
Над проектом музея современного искусства архитектор Михаил Хазанов начал работать еще в середине 1980-х годов, то есть очень задолго до того, как идея создания подобного учреждения культуры стала обсуждаться на уровне города и федерального центра. Напомним, Государственный центр современного искусства (ГЦСИ) был создан в 1992 году, а первое собственное здание обрел лишь в 2004-м. Под нужды учреждения культуры по проекту Михаила Хазанова были реконструированы помещения завода электроосветительного оборудования на Зоологической улице, и получившийся в итоге объект с вынесенным наружу каркасом, прозрачной шахтой лифта и алыми вставками на фасаде заслужил единодушное одобрение критики и профессионального сообщества. Здание с гордостью называли «русском Центром Помпиду», а в 2005 году ему был присужден «Хрустальный Дедал». Примерно тогда же стало понятно, что очаровательный гибрид фабричной архитектуры и хай-тека очень скоро станет мал ГЦСИ, поэтому  Министерство культуры РФ выступило с предложением создать на базе Центра федеральный музей современного искусства, которого в России до сих пор не было. Сначала его планировалось разместить практически на том же участке, что и ГЦСИ – разработанный Михаилом Хазановым проект (он выставлялся, например, «Арх Москве-2006») предусматривал расширение здания и его надстройку 17-этажной круглой в плане башней, в нескольких местах проколотой насквозь параллелепипедами консолей, – но позже было принято решение о том, что центр и музей будут располагаться в двух разных зданиях. 

Участок, выделенный под строительство музея, расположен по адресу Зоологическая улица, 13. Одной стороной он вплотную примыкает к зданию ГЦСИ, другой – граничит с территорией Московского зоопарка, со стороны двора граничит с жилыми домами. Участок не пустует – здесь находится так называемый дом Василия Поленова, здание, выстроенное на средства знаменитого живописца в 1915 году и предназначавшееся для размещения Секции содействия народным театрам. Автором сооружения считается архитектор О.О. Шишковский, однако многие историки склонны считать, что в основу проекта были положены эскизы самого Поленова. В 1930-е годы дом пережил серьезный пожар, после чего был реконструирован, в 1940-е в его стенах располагались цеха минного завода. И хотя уникальные интерьеры театра безвозвратно погибли, внешне дом Поленова частично сохранил свой первозданный вид, например, уцелели эффектная угловая башня, аркада на фасаде и некоторые другие элементы первоначального оформления. При этом дом не является памятником архитектуры и несколько лет назад признан аварийным, поэтому по проекту Михаила Хазанова предполагается его снести, а наиболее ценные его фрагменты – башню и кусок стены с тремя арочными проемами – включить в новое здание. Остальные существующие на участке строения – три бывших заводских цеха – будут снесены без воссоздания. 

Поскольку площадь участка очень небольшая, новое музейное здание вынуждено развиваться по вертикали. По мнению Михаила Хазанова, это не проблема – вертикальная структура вполне соответствует главной функции данного объекта, то есть размещению частных коллекций (по этажу на каждую), которые станут основой экспозиции музея. При этом архитектор частично выносит каркас здания наружу, что не только роднит новый объем с уже существующим зданием ГЦСИ, но и позволяет сделать внутреннее пространство залов максимально просторным и свободным. Согласно концепции Хазанова, музейное здание представляет собой прямоугольный «контейнер», открытый для наполнения различными арт-объектами. Постоянно меняющееся «содержимое» будет напрямую влиять на архитектурный облик здания – его фасады фактически представляют собой гигантские экраны, способные кардинально менять свой цвет, очертания и декор с помощью видеоинсталляций. Вторым важнейшим элементом оформления фасадов станут две динамичные диагонали эскалаторов, по которым посетители смогут подняться на все 17 этажей 65-метровой башни. К слову, помимо собственно выставочных залов, лекториев и депозитария, в новом здании планируются камерные помещения клуба коллекционеров современного искусства и детской искусствоведческой студии. 

Основная идея проекта Хазанова – превратить само здание музея в объект актуального искусства – заставила аудиторию разделиться. Референт проекта архитектор Андрей Чернихов высоко оценил задумку коллеги, или: для Александра Кудрявцева она, напротив, стала неожиданностью. По мнению последнего, проект Хазанова неоправданно дорог и «не взаимодействует со средой, а взрывает ее». С мнением о том, что динамичная световая инсталляция на фасадах нового музея может мешать соседним жилым домам, согласились и многие другие члены Архитектурного совета. В частности, Святослав Миндрул предложил остановиться на нейтральном варианте стеклянного объема, за прозрачным фасадом которого можно что-то экспонировать, а Юрий Платонов заметил, что «подобные архитектурные организмы живут только на картинках». 

В ходе дискуссии обнаружились и другие серьезные проблемы проекта. Первая – это фактический снос дома Поленова. Как уже было сказано, здание не является памятником, однако, как считает главный архитектор Центра историко-градостроительных исследований Борис Пастернак, оно имеет не только историческую ценность (ведь в нем бывали и Репин, и Шаляпин), но и архитектурную, поскольку «генетически близко» к знаменитой усадьбе Поленова «Борок» на Оке. «Дом заслуживает того, чтобы быть сохраненным хотя бы в объемах, а не «в виде нашлепки на новое здание», – уверен Борис Пастернак. С другой стороны, Андрей Боков назвал идею воссоздания в прежних объемах еще более сомнительной, чем сохранение импровизированной «памяти» о доме на фасаде нового музея. 

Второй спорный вопрос – транспортная схема участка. Зоологическая – улица с односторонним движением и острым дефицитом парковочных мест, при этом на ней расположена целая сеть социальных и культурных учреждений, в которые ежедневно приезжают сотни людей. Живущий неподалеку Святослав Миндрул предложил проектировщикам устроить в нижних этажа башни пешеходную галерею; однако как заметил Михаил Посохин, это предложение вступает в конфликт с требованием  сохранения фрагментов исторического здания. В том же, что касается необходимых новому музею парковочных мест, их могут обеспечить две расположенные по соседству подземные стоянки (сейчас их строительство заморожено). 

В целом в возможности строительства музея именно по адресу Зоологическая, 13 большинство членов совета не сомневались. Только Александр Кудрявцев заметил, что подобные объекты предпочтительнее размещать на свободных пространствах, там, где окружение отсутствует. Однако переносить музей в другое место и разлучать его с очень популярным у москвичей зданием ГЦСИ эксперты посчитали нецелесообразным. Присутствовавший же на заседании Архитектурного совета министр культуры РФ Александр Авдеев поблагодарил архитекторов за поддержку самой идеи организации первого федерального музея современного искусства именно на базе ГЦСИ. Что же касается архитектуры, то министр культуры лишь заметил, что музей, по его мнению, не должен стать «римейком центра Помпиду». Проект Михаила Хазанова был принят Архитектурным советом на уровне концепции.

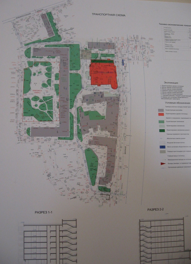
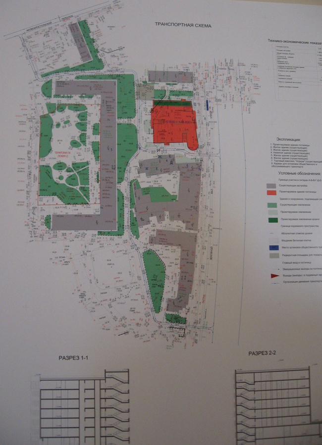
Вторым объектом, рассмотренным 31 марта Архитектурным советом г. Москвы, стала гостиница, спроектированная мастерской Александра Асадова на Садовом кольце, напротив Курского вокзала. Проектировать офисное здание на этом участке архитекторы начали несколько лет назад, но в 2007 году Общественный совет принял решение о смене функционального назначения участка, и офисное здание уступило место отелю. После обсуждений проекта с местными жителями объемы гостиницы заметно уменьшились, архитекторы сделали больший отступ от соседнего жилого дома, соблюли требование о 10-метровом пожарном проезде и уменьшили подземную парковку на один этаж. В ноябре 2009 года проект вновь выносился на Общественный совет и был одобрен. 

Напомним, что семиэтажное здание гостиницы встраивается в красную линию Садового кольца между равным ему по высоте жилым домом 1955 года постройки и двухэтажным, сооруженным в 1915 году. Архитектура здания, по словам Александра Асадова, «впитывает окружающие стили» – конструктивистского дома напротив и сталинских зданий по соседству. Так, гостиница объединяет вполне классический мощный цоколь и легкий стеклянный «аттик» с конструктивистским стеклянным цилиндром на углу. Здание тактично выдерживает красную линию улицы – оно несколько выступает вперед двухэтажным цоколем, который продлевается к соседнему высотному жилому дому, образуя пилон. За ним расположен небольшой сквер – его эксперты Архитектурного совета единодушно признали одной из основных достоинств проекта. 

Авторам проекта было рекомендовано снизить высоту потолков до соответствующих трехзвездочному уровню 3.30 м, а за счет выигранного пространства лучше акцентировать верхнюю часть здания. Совет также предложил архитекторам рассмотреть вариант соединения цокольной «аркады» гостиницы с соседним зданием. Уязвимым местом проекта эксперты признали неудобный подъезд к гостинице – для того, чтобы добраться до парадного входа, автомобилистам придется объезжать вокруг целого квартала. Совет одобрил проект, предложив авторам подумать нам иным вариантом транспортной схемы. 
Музей современного искусства в составе ГЦСИ. Зоологическая ул., вл. 13 © ПТАМ Хазанова. М. Хазанов, М. Миндлин, А. Нагавицын
Музей современного искусства в составе ГЦСИ. Зоологическая ул., вл. 13 © ПТАМ Хазанова. М. Хазанов, М. Миндлин, А. Нагавицын
Музей современного искусства в составе ГЦСИ. Зоологическая ул., вл. 13 © ПТАМ Хазанова. М. Хазанов, М. Миндлин, А. Нагавицын
Музей современного искусства в составе ГЦСИ. Зоологическая ул., вл. 13 © ПТАМ Хазанова. М. Хазанов, М. Миндлин, А. Нагавицын
Музей современного искусства в составе ГЦСИ. Зоологическая ул., вл. 13 © ПТАМ Хазанова. М. Хазанов, М. Миндлин, А. Нагавицын
Музей современного искусства в составе ГЦСИ. Зоологическая ул., вл. 13 © ПТАМ Хазанова. М. Хазанов, М. Миндлин, А. Нагавицын
Музей современного искусства в составе ГЦСИ. Зоологическая ул., вл. 13 © ПТАМ Хазанова. М. Хазанов, М. Миндлин, А. Нагавицын
Музей современного искусства в составе ГЦСИ. Зоологическая ул., вл. 13 © ПТАМ Хазанова. М. Хазанов, М. Миндлин, А. Нагавицын
Музей современного искусства в составе ГЦСИ. Зоологическая ул., вл. 13 © ПТАМ Хазанова. М. Хазанов, М. Миндлин, А. Нагавицын
Музей современного искусства в составе ГЦСИ. Зоологическая ул., вл. 13 © ПТАМ Хазанова. М. Хазанов, М. Миндлин, А. Нагавицын
Дом Поленова
Дом Поленова
Здание ГЦСИ. Премия «Хрустальный Дедал» 2005 г. Внешний вид и интерьер выставочного зала
Здание ГЦСИ. Премия «Хрустальный Дедал» 2005 г. Внешний вид и интерьер выставочного зала
Проект гостиницы на Земляном валу, вл. 26. ГУП «Моспроект-2». маст. №19. А. Асадов, А. Рожественский, А.А. Асадов, С. Терехов, Я. Миронова.
Проект гостиницы на Земляном валу, вл. 26. ГУП «Моспроект-2». маст. №19. А. Асадов, А. Рожественский, А.А. Асадов, С. Терехов, Я. Миронова.
Проект гостиницы на Земляном валу, вл. 26. ГУП «Моспроект-2». маст. №19. А. Асадов, А. Рожественский, А.А. Асадов, С. Терехов, Я. Миронова.
Проект гостиницы на Земляном валу, вл. 26. ГУП «Моспроект-2». маст. №19. А. Асадов, А. Рожественский, А.А. Асадов, С. Терехов, Я. Миронова.
Проект гостиницы на Земляном валу, вл. 26. ГУП «Моспроект-2». маст. №19. А. Асадов, А. Рожественский, А.А. Асадов, С. Терехов, Я. Миронова.
Проект гостиницы на Земляном валу, вл. 26. ГУП «Моспроект-2». маст. №19. А. Асадов, А. Рожественский, А.А. Асадов, С. Терехов, Я. Миронова.
Проект гостиницы на Земляном валу, вл. 26. ГУП «Моспроект-2». маст. №19. А. Асадов, А. Рожественский, А.А. Асадов, С. Терехов, Я. Миронова. Генплан
Проект гостиницы на Земляном валу, вл. 26. ГУП «Моспроект-2». маст. №19. А. Асадов, А. Рожественский, А.А. Асадов, С. Терехов, Я. Миронова. Генплан