| 
 
  |  |  
  | 
    Размещено на портале Архи.ру (www.archi.ru)
    
    |  
  | 26.09.2006 |  
 | Улитка на склоне |  
 | Юлия Тарабарина 
 |  
  | Объект: |  
  | Жилой комплекс на ул. Пырьева, вл. 2 (Дом на Мосфильмовской) |  
  | Адрес: |  
  | Россия,
              
              
               Москва.
              
              ул. Пырьева, вл. 2 |  
           | Архитектор: |  
           | Сергей Скуратов |  
           | Мастерская: |  
           | Сергей Скуратов ARCHITECTS |  
           | Авторский коллектив: |  
           | Сергей Скуратов, Сергей Некрасов – ГАП, Иван Ильин, Ю.Ковалева, Т.Груздева, И.Ильин, П.Карповский, А.Нигматулин, В.Пашкевич, В.Шульц, Ю.Фролов |   
          | Проект «дома на Мосфильмовской» – первого московского жилого небоскреба класса «де-люкс», в прошлом году получил первую премию Арх-Москвы. В беседе с корреспондентом Агентства архитектурных новостей Сергей Скуратов рассказал об изменениях, произошедших в процессе осуществления проекта; в последней редакции дом ощутимо вырос – верхняя точка поднялась от 150 до 200 метров и стал более лаконичным, превратившись в гигантское скульптурное изваяние, напоминающее огромную улиткуУчасток, на котором уже началось строительство, по мнению архитектора, можно считать  удачным для воплощения масштабного замысла. Со стороны Поклонной горы до киноконцерна «Мосфильм» тянутся большие, практически не застроенные, пространства со сложным криволинейным рельефом долины реки Сетунь. Поэтому архитектура будущего небоскреба откликается не столько на редкую застройку, сколько на природную среду, уподобляясь скалам, сформированным сквозящими здесь воздушными потоками. 
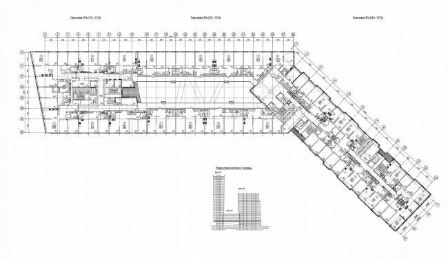
 Комплекс состоит из двухсотметровой башни и дома-пластины (120 м высотой), соединенных между собой небольшим продольным корпусом. Согласно первоначальному проекту первая, самая высокая башня была винтообразно повернута на 21 градус, что обогащая пластику призматического объема, позволяло добиться максимального разнообразия эффектных видов из окон будущих квартир. В окончательном варианте плавный изгиб сменился его искусной геометризованной имитацией: стены слегка наклоняются, таким образом, что тупой угол первого этажа вверху перерастает в острый, и наоборот. Башня приобрела сходство с вытянутой шеей животного, ненароком оглянувшегося проверить, в порядке ли тыл.
 
 Гигантский масштаб подчеркнут четырехцветным колоритом главной башни, плавно сменяющимся от верхушки сияющей белизной «каррарского мрамора» к темному известняку нижних этажей и черным бетонным ножкам. Расцветка призвана создать эффект «свечения» верхушки небоскреба – даже в пасмурную погоду будет казаться, что большая обитаемая «скала» поймала притаившийся за тучами солнечный луч.
 
 Второй корпус решен немного холоднее и спокойнее, хотя и не менее скульптурно. Его силуэт уменьшается кверху и немного наклоняется в сторону «старшего собрата» – что делает ансамбль более цельным и «живым». Фасады полностью остеклены, однако некоторая холодность, присущая стеклу, преодолевается необычной пластикой поверхностей, которая, по словам Сергея Скуратова, напоминает «плетеную корзинку». Кроме того, хрупкий рельеф стен усложнен рисунком окон, а их здесь три разновидности: прозрачные, непрозрачные и ложные.
 
 Соединяющий два небоскреба невысокий продольный корпус – гипертрофированный стилобат, поднят на 17 метров над землей и опирается на расставленные под разными углами «ноги». Дом приобретает сходство с гипермасштабным насекомым – «огромной улиткой, которая, перебирая своими «сорока ножками», вытягивает шею и оборачивается, пытаясь посмотреть, все ли в порядке с ее домиком» – поэтично поясняет архитектор.
 
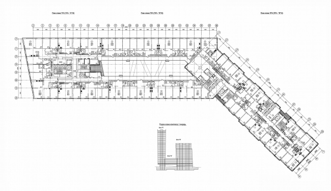
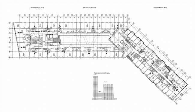
 Поэтажные разрезы «блока А» – 200-метровой башни (12, 27 и 31 этажей). Хорошо видно, как от этажа к этажу изменяется абрис плана – прием, с помощью которого имитируется эффект винтообразного поворотаплан на уровне 4 этажа - над стилобатом |  |