Размещено на портале Архи.ру (www.archi.ru)

19.02.2010

Дом с грифонами

Анна Мартовицкая, Юлия Тарабарина
Объект:
Жилой дом «Венеция» на Депутатской улице
Адрес:
Россия, Санкт-Петербург. ул. Депутатская, д. 34, литер А
Мастерская:
Евгений Герасимов и партнеры
Авторский коллектив:
Руководитель авторского коллектива: Евгений Львович Герасимов. Главный архитектор проекта: Петрова З.В. Архитекторы: Резникова Е.А., Бахорина И.Г., Манов О.В. Главный конструктор: Резниченко М.Я. Конструкторы: Прокофьев А.А., Егорова Е.В., Култышев П.С. Инженерные разделы: ОАО «Проектсервис-СПб ПТИ». Главный инженер проекта: Чепик А.А. 
Скульптурное оформление: Маначинский В.А. 
Заказчик: ОАО Строительная Корпорация «Возрождение Санкт-Петербурга»

Для Крестовского острова, который уже несколько лет охвачен бумом строительства элитного жилья, мастерская «Евгений Герасимов и партнеры» спроектировала дом, похожий одновременно на венецианский дворец над водой и на романтический замок.

Жилой дом «Венеция». Проект © Евгений Герасимов и партнеры
Жилой дом «Венеция». Проект © Евгений Герасимов и партнеры

Крестовский остров, постепенно застраиваясь, превращается в заповедник элитного жилья Петербурга, и Евгений Герасимов работает здесь не впервые. Достаточно сказать, недавно здесь был закончен «Дом у моря», построенный Герасимовым в соавторстве с Сергеем Чобаном, сразу же получивший несколько профессиональных наград. Здесь же несколькими годами ранее Евгений Герасимов построил гостиничный комплекс «Пятый элемент» и спроектировал еще несколько жилых домов, в том числе и на Депутатской улице. 

Депутатская – одна из самых живописных и тихих улиц Крестовского острова. Она проходит по той его оконечности, что обращена к Елагину острову и лишь по милости реки Крестовки отрезана от Каменного. Улица вторит плавным очертаниям берега и до сих пор остается тихой, почти идиллической: вблизи расположен только один коттеджный поселок (он принадлежит Конституционному суду), и строятся два малоэтажных жилых комплекса. Так что место парковое, почти пустынное, да еще и у воды. 

Что же касается адреса «Депутатская, 34», то до самого недавнего времени здесь располагалась гостиница «Спортивная», построенная к Олимпиаде-80 и позднее переродившаяся в отель «Крестовский остров». Это было по-своему примечательное здание, украшением главного фасада которого служил вставленный в него реконструированный пятиэтажный дом в стиле модерн. Обильно декорированный цветным гранитом и облицовочным кирпичом различных оттенков, фигурными сандриками и плиткой, он был заключен в брутальную оправу двух высоких лестничных объемов из блеклого советского кирпича, и являл собой интересный пример того, насколько способны (или не способны, ибо мнения всегда расходились) сосуществовать и вживаться друг в другу архитектуры различных эпох. Городским властям, впрочем, подобные эссе в материале общей площадью около 10 тысяч квадратных метров не показались интересными, и здание приговорили к сносу. 

Главным ориентиром в работе над будущим жилым комплексом для  Евгения Герасимова стала река. Здание, которое будет видно с воды как на ладони, в Петербурге по определению не может быть ни скромным, ни блеклым. Так что, поддавшись очарованию места, Евгений Герасимов спроектировал дом-дворец или, что даже точнее, дом-замок. 

Впрочем, рассматривая получившуюся архитектуру, можно обнаружить в ней сразу много различных аллюзий. Прежде всего это, конечно, Венеция. Где еще можно встретить кирпичное палаццо с белокаменными деталями, гордо стоящее у воды? Теперь уже, конечно, во многих городах есть подобные вещи, но венецианские дворцы – определенно первоисточник образа. Навеянного, что достаточно очевидно, известным словосочетанием  «Северная Венеция»… Но в Венеции, да и в других городах, подобные дворцы стоят как правило в ряду себе подобных, а не посреди природы. Поэтому дом выглядит как зародыш каменного города, утвердившийся на берегу в ожидании будущих соседей. 

Но пока дом один, среди берез он выглядит, прямо скажем, неожиданно – уж очень строг его прямоугольный объем, очень уж закрыт и замкнут. Отсюда еще один прообраз – замок. Точнее – можно здесь увидеть намек на дворцы Павла I, Михайловский замок и Гатчину. Именно Павел начал превращать дворцы Петербурга, до этого фривольно-пышные или уточненно-классицистические, в романтические замки. Он построил Михайловский замок, и именно благодаря ему посреди гатчинских полей колонны и галереи сменились башнями, простыми окнами и стенами. 

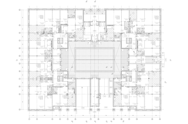
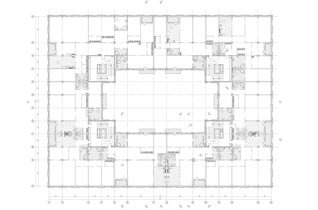
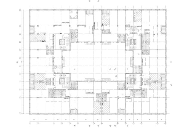
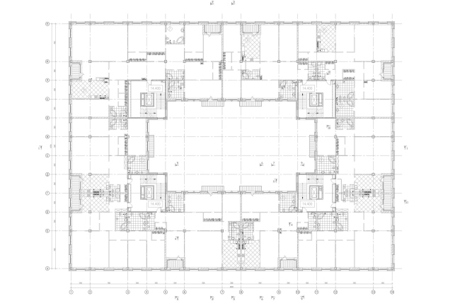
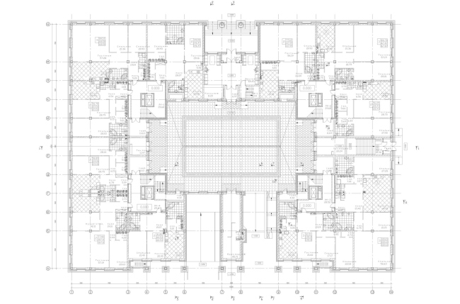
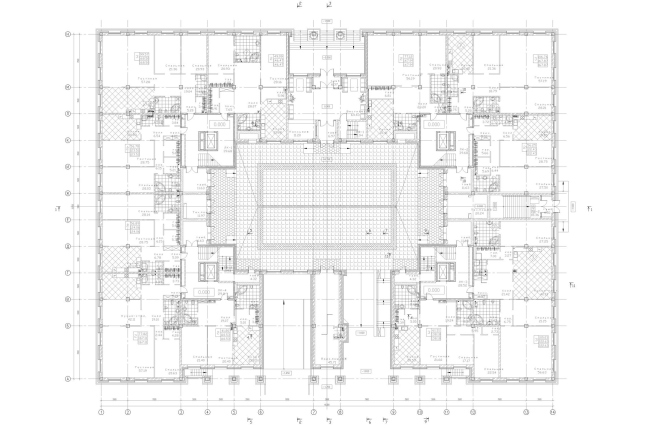
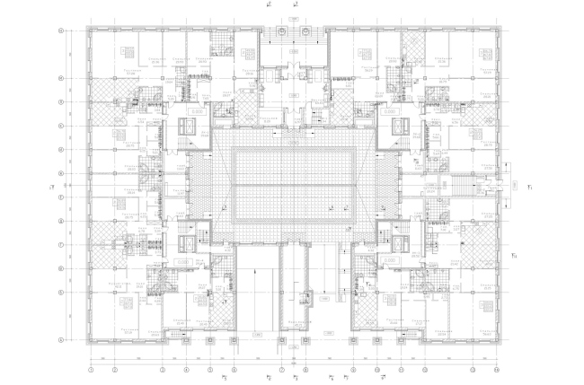
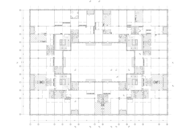
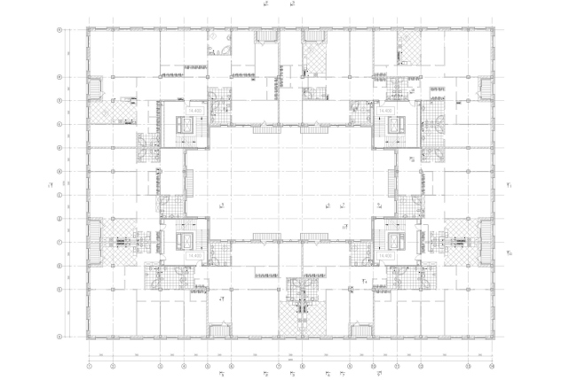
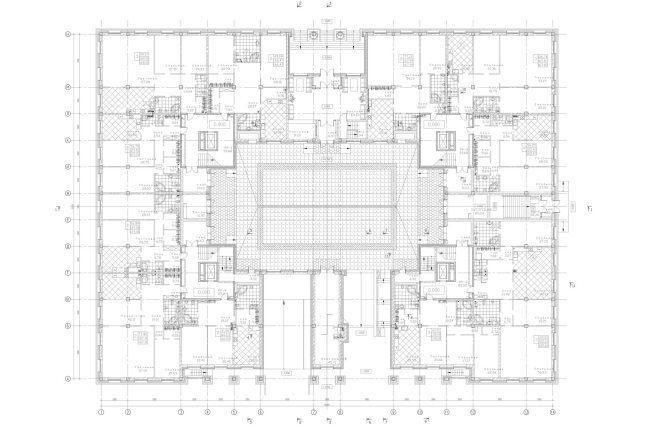
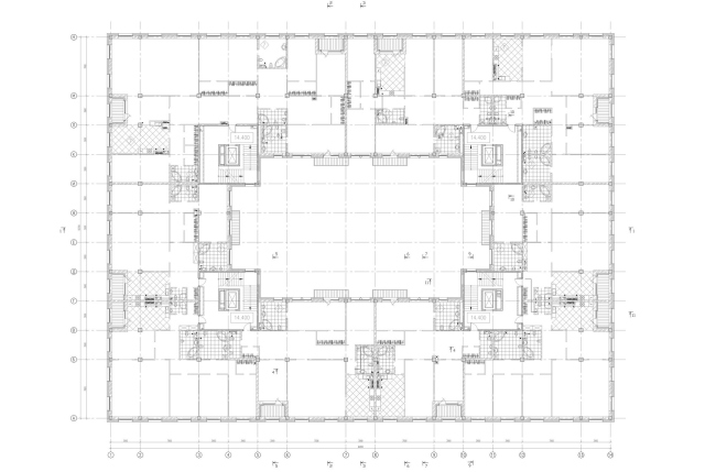
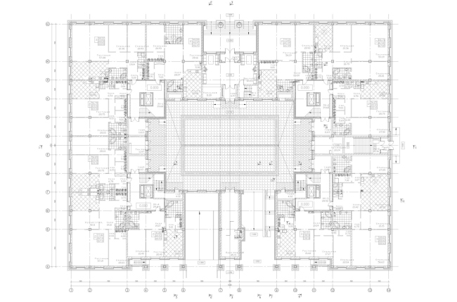
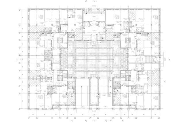
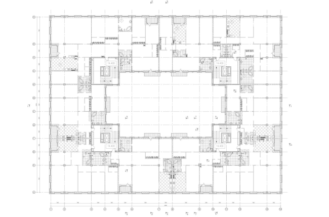
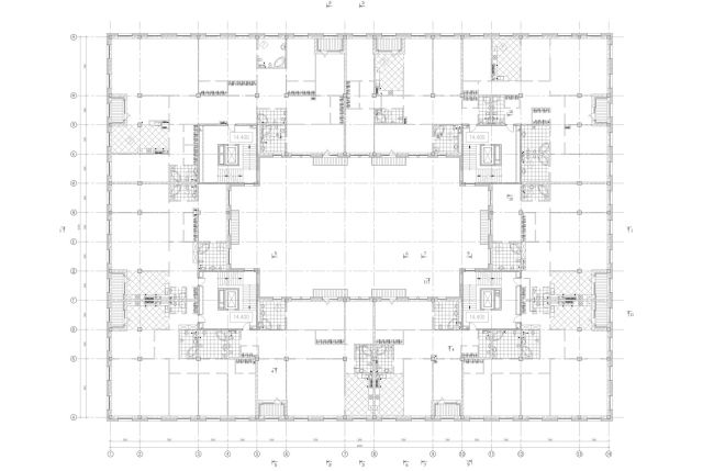
Если же вернуться от павловских прообразов к дому на Депутатской, то романтический образ замка спрятан здесь внутри двора. Двор (кстати говоря типичный для Петербурга двор-колодец, но по-современному застекленный сверху) имеет в каждом из четырех углов рустованные квадратные башни с небольшими прямоугольниками окон, расположенными спирально-диагонально. Типичные лестничные башни – тем более что внутри действительно лестницы. Любопытное решение, и особенно существенным в нем кажется совпадение образа и функции. 

Эти две темы, дворца – венецианского палаццо и дворца-замка, важны по смыслу, а форма демонстрирует другие, более близкие и узнаваемые, аналогии. Так, рустовка цоколя была бы уместна в итальянском палаццо XVI века, но в равной степени и в архитектуре Петербурга XIX века. Триумфальная арка входа во двор, с плотными невысокими колоннами и скульптурными лиственными капителями указывает на (опять же) итальянские палаццо и одновременно на питерский модерн начала XX века (например, можно вспомнить лидвалевский дом Нобеля). Не исключено, что этот «фрагмент архитектуры модерна» в данном случае стал данью памяти несчастному памятнику начала XX века, который вначале заключили в грубую модернистскую рамку, а потом и вовсе снесли. 

А вот акротерии в виде грифонов, установленные на углах кровли – те прямо указывают на известный петербуржский Банковский мостик, эта прямая цитата явно рассчитана на узнавание даже туристом. С другой стороны, силуэт распахнутых крыльев над карнизом указывает на ар-деко, также как и диагональный рисунок кирпичного орнамента на стенах и легкий ритм верхнего яруса. Большие, трехэтажной высоты окна, завершенные полукруглыми тимпанами, напоминают одновременно лоджии венецианских дворцов, окна английских замков и декоративные вставки «сталинской» архитектуры, которая, как известно, есть вариант ар-деко. И надо сказать, что архитектура дома в принципе балансирует на грани ренессанса – историзма – ар-деко (причем последнее тоже на грани между «сталинским» и «международным» вариантами). 

В любом случае, архитектурный историзм, о котором столь многое можно сказать, просто взглянув на него, аккуратно нарисованный и достаточно уверенно оперирующий разнообразными аналогиями (как из ряда шедевров мировой архитектуры, так и исконно-питерскими), сейчас встречается редко. Для когда-то дачного, а теперь элитно-модернистского, Крестовского острова этот дом, вероятно, станет прививкой городской, и даже «дворцовой» архитектуры, что – в этом уверен Евгений Герасимов – вполне уместно для современного элитного жилья.

Жилой дом «Венеция» © Евгений Герасимов и партнеры
Жилой дом «Венеция» © Евгений Герасимов и партнеры
Жилой дом «Венеция» © Евгений Герасимов и партнеры
Жилой дом «Венеция» © Евгений Герасимов и партнеры
Жилой дом «Венеция» © Евгений Герасимов и партнеры
Жилой дом «Венеция» © Евгений Герасимов и партнеры
Жилой дом «Венеция» © Евгений Герасимов и партнеры
Жилой дом «Венеция» © Евгений Герасимов и партнеры
Жилой дом «Венеция» © Евгений Герасимов и партнеры
Жилой дом «Венеция» © Евгений Герасимов и партнеры
Жилой дом «Венеция» © Евгений Герасимов и партнеры
Жилой дом «Венеция» © Евгений Герасимов и партнеры
Жилой дом «Венеция» © Евгений Герасимов и партнеры
Жилой дом «Венеция» © Евгений Герасимов и партнеры
Жилой дом «Венеция» © Евгений Герасимов и партнеры
Жилой дом «Венеция» © Евгений Герасимов и партнеры
Жилой дом «Венеция» © Евгений Герасимов и партнеры
Жилой дом «Венеция» © Евгений Герасимов и партнеры
Жилой дом «Венеция» © Евгений Герасимов и партнеры
Жилой дом «Венеция» © Евгений Герасимов и партнеры
Жилой дом «Венеция» © Евгений Герасимов и партнеры
Жилой дом «Венеция» © Евгений Герасимов и партнеры