|
|
|
Размещено на портале Архи.ру (www.archi.ru)
|
|
12.07.2006
|
|
Забытое лицо московского 'genius loci'
|
Юлия Тарабарина
|
| Объект: |
|
Жилой дом «Арт Хаус»
|
| Адрес: |
|
Россия,
Москва.
Серебряническая набережная, д. 19
|
|
Архитектор:
|
|
Сергей Скуратов
|
|
Мастерская:
|
|
Сергей Скуратов ARCHITECTS
|
|
Авторский коллектив:
|
Руководитель: С.Скуратов
Архитекторы: Демидов Н.А., Шалимов П.В., Голышенкова Д.М., Алендеев А.В., Чернышов Д.А., Левина Ю.Б., Клевакин Ю.А.
Конструкторы: Кельман М.И., Куценко А.А., Каникаев И.В.
Инженеры: Горин С.Р., Каминов С.А., Козлов П.В.
Конструкции фасада и кровли: CRH Albert GmbH, Wilhelm Modersohn GmbH & Co. KG, ООО «Баутехнолоджи», ООО«Акритэк», NTD-engineering, ООО«Стройинжсервис-3»
|
|
Жилой комплекс в Тессинском переулке, авторы которого - Сергей Скуратов, Никита Демидов и Павел Шалимов месяц назад получили премию за лучший проект на Арх-Москве, заставляет нас по-иному взглянуть на московский «дух места»
Дома посвящены кирпичу – по словам Сергея Скуратова, именно этот материал он считает самым «московским», лучше всего подходящим столичной среде. Известная скучноватость кладки преодолевается цветом: колористика фасадов, просчитанная по специальному алгоритму на компьютере, использует плавные градиентные переходы от одного тона к другому и объединяет облицовочный кирпич трех видов, терракотовый, сланцево-серый и темно-коричневый. При этом общий колорит двух корпусов немного разный – меньшему объему, стоящему в глубине участка, досталось более темное сочетание коричневого и серого. Расцветка другого корпуса светлее, здесь преобладает серо-терракотовый с вкраплениями коричневого.
Столь утонченный подход к кирпичу превращает этот, обычно несложный, материал в своеобразную точку отсчета для развития темы среды и контекста, понятой автором столь сложно и многосторонне, что и само слово «контекст» оказывается здесь каким-то чужеродным, гораздо уместнее любимое автором genius loci, «дух места». Из рассказа Сергея Скуратова становится очевидным, что здания стали результатом глубокого и очень личностного переживания этой, казалось бы, для Москвы давно затертой и замученной, темы.
Участок, на котором будут построены два элитных дома, находится на набережной Яузы напротив «горбатого мостика», в районе Площади Ильича. Если не считать отдаленного соседства Рублевского музея – Спасо-Андроникова монастыря, в остальном эти места когда-то были вотчиной ранних промышленных зданий, прямоугольные кирпичные корпуса которых Скуратов считает самой интересной частью ближайшего окружения места строительства. Теперь из старых заводских зданий рядом имеется лишь один кирпичный корпус.
Здесь кроется любопытный поворот сюжета: дома, отдаленно (!) намекая на свое сходство с фабрично-заводским кирпичным стилем прошлого века, стилизуют не столько давешние фабрики, столько нынешние «лофты», за последние десятилетия превратившиеся на западе из дешевого в очень престижное жилье. Получаются псевдо-лофты, снаружи похожие на заводские цеха, но не совсем – используя неожиданную ностальгическую ноту: где вы, очаги пролетарской революции? – архитектор изысканно развивает ее, возвращая нас в сегодняшний день.
Высокие, «фабричные» окна оказываются на поверку роскошными «французскими», от пола до потолка и даже более того – на одном из корпусов стеклянная поверхность в уровне пола не заканчивается, а заходит на перекрытия, сбивая наблюдателя с толку и развеществляя фасад. Создается ощущение, что пола внутри вообще нет, или он невозможно тонок, потому что окна где-то смыкаются углами, а чаще – сливаются друг с другом, образуя причудливые вертикальные гирлянды. Другая «примета времени» – легкий наклон стен меньшего из двух корпусов: в том месте, где его угол выходит к пересечению двух переулков, Тессинского и Серебрянического, стены «вежливо» отклоняются внутрь квартала, то ли кого-то пропуская, то ли уступая пространственной динамике перекрестка.
Еще одна особенность – это, по меткому выражению Сергея Скуратова, «съехавшие крыши» обоих домов. «Это два сумасшедших дома» - иронизирует автор. Действительно, легкому наклону стен вторит скос обеих кровель, особенно заметный на обращенных к реке парадных фасадах. Вообще, оба дома кажутся пережившими геологический катаклизм, «разорвавший» один корпус на два и «раздвинувший» их в разные углы участка – даже разлом получился неровным, с одной стороны выступ стилобата, с другой – консоль. Гипотетический сдвиг земной коры как будто «наклонил» крыши и стены, заставил «плясать» окна, а на одном фасаде – «выдвинул» из кирпичного массива прозрачно-зеркальные призмы балконов.
Неожиданные скосы крыш служат и другой цели – помогают архитектору запутать наши обыденные представления о трехмерном пространстве. Наблюдая за игрой косых линий, легко заметить, что с некоторых точек зрения параллельные прямые, вместо того, чтобы сходиться вдали – расходятся, они встречаются где-то около зрителя, который, проходя мимо, невольно попадает в поле действия не-прямой, обратной перспективы, а значит, в пространство традиционной иконы. Причем это ощущение тоже осознано автором, его задача – окунуть нас в историю места еще глубже и древнее «заводских» ассоциаций, но ненавязчиво, намеком и только для тех, кто захочет понять и увидеть. Похожей цели служит и созданный вокруг домов псевдо-раскоп, подобный тем, что образовались в Новгороде после откапывания некоторых храмов от «культурного слоя».
Очевидно, что при всем внимании к гению места, дома не пытаются слиться с уже почти что утраченным в этом районе историческим контекстом, они не притворяются незаметными и не прикидываются «своими» местным домовым, но и не отгораживаются от соседей зеркальным стеклом. Это какие-то лондонские аристократы – с промышленным прошлым, безупречно вежливые, роскошные, но сдержанные, с причудами, но в рамках. В Москве такие пока редкость.
Генплан
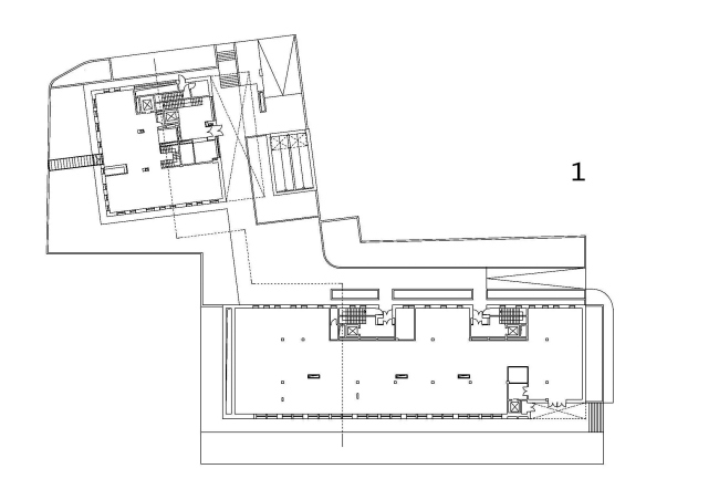
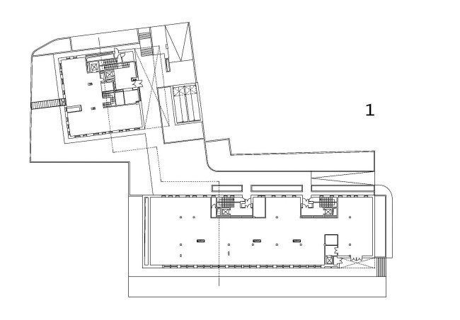
План 1-го этажа
|
|