Размещено на портале Архи.ру (www.archi.ru)

12.10.2009

Хрустальные крылья

Юлия Тарабарина
Объект:
Офисный комплекс «Аэрофлот – российские авиалинии»
Адрес:
Россия, Москва. Международное шоссе, д. Мелькисарово, САО г. Москвы
Архитектор:
Владимир Плоткин
Мастерская:
ТПО «Резерв»
Авторский коллектив:
В.И.Плоткин, С.А.Гусарев, Н.В.Ромишевская, И.И.Лелякина, И.Н.Тюрин, М.М.Ильевская, А.М.Травкин при участии Е.В.Грихановой, Н.Н.Лызлова

В полях при подъезде к аэропорту Шереметьвево-2, рядом с деревней Мелькисарово, закончено строительство офисного здания компании «Аэрофлот», о проекте которого мы писали три года назад. Это бэк-офис Аэрофлота (головной расположится в съемном помещении на Арбате), и в то же время это – настоящая штаб-квартира. Во всяком случае, сложно представить себе более адекватный офис для компании, занятой авиаперевозками.

Офисный комплекс «Аэрофлот – российские авиалинии», 2004–2010
Офисный комплекс «Аэрофлот – российские авиалинии», 2004–2010
Фотография © Алексей Народицкий / предоставлена ТПО «Резерв»

Новый офис Аэрофлота напоминает его логотип – эмблему, существующую с 1923 года – известные многим пассажирам «крылышки». Таким образом, штаб-квартира компании построена в форме ее логотипа. Это явление одновременно актуальное и, как ни странно, редкое. Актуальное потому, что построить офис-эмблему – правильный маркетинговый ход, ясный и логичный; Аэрофлот как раз последние семь лет занимается ребрендингом. А также потому, что здания-скульптуры, что-то собой изображающие – любимая тема архитектуры модернизма, начиная с пятиконечных звезд и паровозов авангарда, и заканчивая современными работами многих «звезд» западной архитектуры.

Однако получается так, что дома-скульптуры это хит, но в то же время зданий-логотипов, даже в последние годы, появилось не так уж много. И чаще всего архитекторы, желая включить в свое произведение некий говорящий знак (эмблему какой-нибудь политической партии или логотип компании), идут самым простым путем – зашифровывают графическую информацию в соответствующей формы план. Это снимает противоречие между плоскостной природой графического знака и неизбежной трехмерностью любого здания, заодно рождая компромисс: необходимый знак присутствует, но не очень-то влияет на общий результат. Не секрет ведь, что зашифрованные в плане знаки не особенно читаемы, во всяком случае, их сложно узнать с первого взгляда.

С новым офисом Аэрофлота все иначе. Он состоит из двух крыльев – корпусов, вытянувшихся вдоль Международного шоссе, один почти вплотную к трассе, другой чуть поодаль. Слово «крыло» в данном случае почти буквально: каждый корпус с одного торца заканчивается острым, вздернутым кверху носом – отсюда, собственно, и возникает сходство с крылышками из аэрофлотовской эмблемы, долетевшими до нас из эпохи ар-деко (кстати говоря, похожие значки были очень распространены в 1920-е годы, в эпоху ар-деко это было своего рода общим местом для обозначения того, что летает).
Однако здесь плоская эмблема «расслоилась» в трехмерный объем: одинаковые корпуса развернуты под углом 180 градусов друг к другу, так, что нос-крыло у одного из них смотрит на Шереметьево, а у другого – на Москву. Как два встречных экспресса на параллельных путях.

Корпуса блестят стеклом и отражают все вокруг, преимущественно небо. Они как будто бы впитывают облака и синеву, демонстрируя свою причастность небесной стихии, что особенно хорошо ощущается на прекрасных фотографиях Алексея Народицкого. Это тот случай, когда стекло полностью и успешно выполняет свою роль – делает здание легким. Кроме того, пластины корпусов-крыльев снизу контрастно отчеркнуты белой линией, а черный цокольный этаж отступает от краев в глубину и издали кажется тенью – отсюда возникает эффект почти достоверного парения над землей. Острые «носы» добавляют динамики, а легкие переломы фасадных поверхностей – намек на «движение» крыльев. Иными словами, оно не только воспарило и устремилось, но еще и крыльями помахивает. Все вместе на околошереметьевских просторах выглядит как редкий, но современный летательный аппарат, какой-то воздушный катамаран – вот-вот поднимется и улетит. Такое уж оно получилось целеустремленное.

Стеклянные крылья корпусов нанизаны на объем атриума между ними. Он «врастает» в стеклянные объемы и как будто бы запускает в них белые полосы-щупальца; снаружи его присутствие обозначено белым квадратом. При этом собственные внешние стены атриума – стеклянные, и визуально продолжают перспективу внутренних двориков по сторонам, превращая их в подобия улиц. Интерьеры атриума также проектировал «Резерв»; их отделку закончили совсем недавно. Внутри он просторен, высок и наполнен рассеянным светом, отраженным светлой облицовкой стен. Большой и почти кубический объем по периметру окружен узкими балконами, диагональными террасами с завораживающим блеском ламп под ними, блестящими алюминиевыми лифтами, а по центру расположился квадратный бассейн с фонтанами. Внутреннее пространство атриума выглядит антитезой – противопоставлением внешней летящей динамике: оно спокойное, уравновешенное, защищенное в своей светлой оболочке.

Кстати говоря, здесь многое построено на противопоставлении простых величин: белого и черного, прозрачного и массивного, динамики и спокойствия. Это любимый подход Владимира Плоткина: создать нечто увлекательное из простого повторения несложных вещей, сыграв на их взаимодействии. В этом здании многое выдает авторский почерк последних лет, оно «родственник» Арбитражного суда на Селезневской; только среди всех новых работ оно самое скульптурное.

Что возвращает нас к теме логотипа. Фирменный знак Аэрофлота в здании его нового офиса не зашифрован, а превращен в легко читаемый архитектурный образ, как и полагается зданию-скульптуре. Это не здание-логотип, мучительно зависящее от навязанной ему графики торгового знака, это здание-образ, которое само по себе может стать лицом компании. Оно не тяготится зависимостью от логотипа, а превращает его в нечто новое и заметное, в интересную говорящую форму – в чем надо признать очевидный успех замысла.

«Но изначально логотип не был прообразом,  на одном из совещаний с заказчиками – рассказывает Владимир Плоткин, – я в какой-то момент просто обратил их внимание на очевидное сходство фасада с логотипом и предложил: давайте сделаем так…». Следовательно, идея использовать тему крыльев исходила от архитектора, а не от клиента. Может быть, потому и получилось так естественно. А может, помог сам логотип – известная и лаконичная форма хорошо вписалась в задачу. Даже удивительно, что «Аэрофлот» в 2002 году, то есть за три года до начала проектирования, собирался вовсе избавиться от своей старой эмблемы (преимущественно из-за советского серпа и молота посередине). Тогда приглашенная знаменитая иностранная компания промучилась года полтора, после чего среди предложенных ею вариантов был проведен интернет-конкурс, в результате которого с большим отрывом победил вариант с теми же крылышками, но глобусом вместо серпа и молота. После чего ребрендинг как будто бы запнулся, во всяком случае сейчас на сайте компании под скромным заголовком «логотипы Аэрофлота» можно увидеть странный смешанный вариант, состоящий из целых трех значков: старых серпасто-молоткастых крылышек; развевающегося флага, который «Аэрофлот» сейчас рисует на хвостах самолетов; и круглой виньетки 'sky team'.

На фасаде нового офиса из трех перечисленных значков размещены два последних. Роль «крыльев», по-видимому, принимает на себя само здание штаб-квартиры. И верно, оно вполне могло бы послужить обновленной эмблемой «Аэрофлота».

Офисный комплекс «Аэрофлот – российские авиалинии», 2004–2010
Офисный комплекс «Аэрофлот – российские авиалинии», 2004–2010
Фотография © Алексей Народицкий / предоставлена ТПО «Резерв»
Офисный комплекс «Аэрофлот – российские авиалинии», 2004–2010
Офисный комплекс «Аэрофлот – российские авиалинии», 2004–2010
Фотография © Алексей Народицкий / предоставлена ТПО «Резерв»
Офисный комплекс «Аэрофлот – российские авиалинии», 2004–2010
Офисный комплекс «Аэрофлот – российские авиалинии», 2004–2010
Фотография © Алексей Народицкий / предоставлена ТПО «Резерв»
Офисный комплекс «Аэрофлот – российские авиалинии», 2004–2010
Офисный комплекс «Аэрофлот – российские авиалинии», 2004–2010
Фотография © Алексей Народицкий / предоставлена ТПО «Резерв»
Офисный комплекс «Аэрофлот – российские авиалинии», 2004–2010
Офисный комплекс «Аэрофлот – российские авиалинии», 2004–2010
Фотография © Алексей Народицкий / предоставлена ТПО «Резерв»
Офисный комплекс «Аэрофлот – российские авиалинии», 2004–2010
Офисный комплекс «Аэрофлот – российские авиалинии», 2004–2010
Фотография © Алексей Народицкий / предоставлена ТПО «Резерв»
Офисный комплекс «Аэрофлот – российские авиалинии», 2004–2010
Офисный комплекс «Аэрофлот – российские авиалинии», 2004–2010
Фотография © Алексей Народицкий / предоставлена ТПО «Резерв»
Офисный комплекс «Аэрофлот – российские авиалинии», 2004–2010
Офисный комплекс «Аэрофлот – российские авиалинии», 2004–2010
Фотография © Алексей Народицкий / предоставлена ТПО «Резерв»
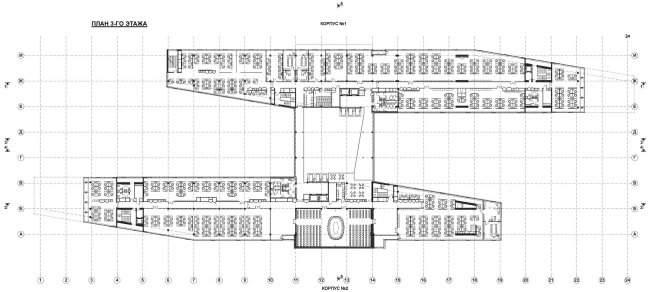
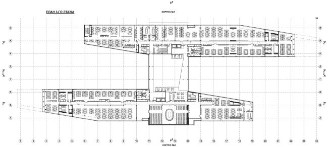
План на уровне 3 этажа. Офисный комплекс «Аэрофлот – российские авиалинии», 2004–2010
План на уровне 3 этажа. Офисный комплекс «Аэрофлот – российские авиалинии», 2004–2010
© ТПО «Резерв»