Размещено на портале Архи.ру (www.archi.ru)

11.09.2009

Подключаемая архитектура

Юлия Тарабарина
Объект:
Конкурсный проект «Москва-река в Москве»
Адрес:
Россия, Москва. Краснохолмская наб.
Архитектор:
Сергей Киселев
Мастерская:
АМ Сергей Киселев и Партнеры
Авторский коллектив:
Сергей Киселев (руководитель), Антон Егерев, Анастасия Иванова, Азат Хасанов

«Универсальная серийная баржа» – так назвали свой конкурсный проект для Москвы-реки архитекторы компании СКиП – и сравнили его с компьютерным usb-подключением. Проект состоит из двух частей. Одна, главная – это здания-модули на плавучей платформе, подключаемые к стандартному «разъему» пристани. Вторая, отвечающая за связь идеи с конкретным местом – деревянная пешеходная набережная и легкий мост через Москву-реку.

Лондон-Москва
Лондон-Москва

Конкурс «Москва-река в Москве» был объявлен весной, а его итоги – подведены в конце июня этого года. О проблематике конкурса и о его результатах мы уже писали, а сейчас рассмотрим подробнее один из конкурсных проектов – работу группы молодых архитекторов под руководством Сергея Киселева, получившей на конкурсе один из поощрительных призов.

Как многие помнят, конкурс был организован Ц:СА для Национальный ассоциации судостроителей. Поэтому у него было две объявленные задачи – одна узкая и понятная, а именно спроектировать некоторое сооружение, которое могло бы существовать на реке. Вторая очень расплывчатая и широкая – привлечь к Москве-реке внимание общественности и заставить всех задуматься о градостроительных проблемах существования реки в большом городе (для этого проводились специальные круглые столы и презентации). Необходимость совместить частное с общим, плавучее сооружение 62х12 метров – с градостроительными размышлениями, во многом определило специфику проектов, в том числе и проекта СКиП.

Итак, архитекторы мастерской Сергея Киселева назвали свой проект USB. В этом названии заключается, если можно так сказать, половина специфики предложенного решения – та половина, которая отвечает за обобщение. Авторы расшифровывают это название: «универсальная серийная баржа» и подчеркивают, что главная ее особенность – в стандартизированном подключении. А именно, на набережных предлагается соорудить специальные причалы, оснащенные инфраструктурой (тепло, электричество, вода, канализация, связь). К таким причалам будет удобно стыковать типовое же сооружение, стоящее на плавучей основе баржи. Так же легко отстыковать, поменять, поставить две вместо одной (каждый причал имеет два «порта» для соединения). Само сооружение-«баржа» также имеет собственный причал – для маленьких кораблей, яхт или внутреннего речного транспорта. Таким образом оно, стыкуясь к стандартной пристани, создает собственную пристань, поменьше.

На этом стандартизация не заканчивается. Плавучее сооружение стоит на стандартной барже-платформе и заполняется заводскими же элементами (иностранцы сказали бы 'prefabricated'), которые определяют ее функцию. Элементы грузятся и снимаются с помощью крана, похожего на портовый. Например, крышу можно снять летом, вернуть зимой. И не только: стандартное все, вплоть до туалетных кабинок; и собирается как конструктор – чем не дом-машина, мечта мастеров авангарда.

Придуманная архитекторами система стандартного подключения «баржи» к пристани напомнила им стыковочный узел космического корабля или компьютерный порт; отсюда возникло название USB, так как известно, что сейчас самый удобный и простой в использовании порт – это usb. Хотя и космический корабль упомянут неслучайно: по части универсальности «баржа» как раз находится, условно говоря, где-то между сложнейшим (космическим кораблем) и простейшим (компьютерным портом). И как следствие по сложности приближается к автобусу.

Автобус авторы сделали второй знаковой привязкой своего проекта после компьютерного порта. Красные двухъярусные автобусы стали символом Лондона, а «универсальные баржи» USB могли бы стать символом Москвы, если их размножить по реке – уверены авторы проекта.

Следует признать, что две образные аналогии, сопровождающие проект, обладают ощутимым привкусом литературности, свойственный работам этой группы архитекторов (Сергей Киселев, Антон Егерев, Анастасия Иванова, Азат Хасанов). А также – приверженности к различным обозначениям, в особенности – графическим. Похожим образом эти же авторы представляли свой проект Fingerscape, сделанный для латвийского конкурса (об это проекте мы писали относительно недавно). Архитекторы привязывают проект к некоей идее-стержню, а затем разглядывают эту идею с разных сторон: придумывают образы, сравнения, маркетинговые ходы, рисуют схемы и пиктограммы. Кстати говоря, приверженность пиктограммам это еще одна особенность работы тех же архитекторов. В проекте Fingerscape наблюдалось нечто похожее – образ, название, пиктограмма. Впрочем, в наше время подобная метафоричность это необходимая часть качественной подачи проекта.

Снаружи параллелепипеды универсальных модулей USB-«баржи» предполагается затягивать отступающей от стен прозрачной металлической сеткой. Ее холодноватый блеск и полупрозрачность сродни водной поверхности; эта фактура призвана визуально облегчить объемы. На сетку наносятся крупные значки, сообщающие прохожим о функции того или иного модуля. Днем все это должно выглядеть сдержанно, зато ночью коробки USB задумано подсвечивать и превращать в медийные экраны, освещая город и украшая реку.

Итак, предложив систему сделав свою «баржу» серийной, архитекторы СКиП ответили на проблемно-градостроительную задачу конкурса. Однако в его условия входило создание не одного, а трех проектов каждой командой. В ответ авторы USB предложили – три конкретных примера – три вероятные функции объекта, все три спортивные: каток, бассейн и скейтпарк. Функции соответствуют разным сезонам и разной аудитории: каток для зимы, бассейн для лета, скейтпарк для молодежи. Что позволяет продемонстрировать, каким именно образом универсальное решение трансформируется для разных задач.

Каток и бассейн надо признать привычными разновидностями спортивной типологии. Хотя очевидно, что и то и другое уместно на реке – ведь если бы она была чистой, в ней можно было купаться летом и кататься на коньках зимой. А теперь вот для этого требуются специальные сооружения. Искусственный лед на незамерзающей большую часть зимы Москве-реке, искусственный бассейн над водой… Итак, каток и бассейн – вещи привычные и даже любимые, как говорится, москвичами. А вот скейт-парк – функция новая и определенно «молодежная», особенно в сочетании в клубом графитти. Ее появление неожиданно.

Другая часть конкретики – место. Всем участникам конкурса предложили на выбор несколько московских набережных для «привязки» проектов. СКиП выбрали Краснохолмскую набережную, отрезок между Новоспасским монастырем и Домом музыки Юрия Гнедовского. Приглядевшись к участку, авторы заметили на набережных рядом с Краснохолмским мостом два каменных «быка» – зачатки (или остатки?) небольшого моста, параллельного Садовому кольцу. Со стороны Краснохолмской набережной этот несуществующий мост упирается в небольшой сквер и поставленный «покоем» сталинский дом. Таким образом участок обзавелся дополнительным сюжетом, а затем слился с замыслом пешеходного туристического маршрута, одной из затей, разрабатываемых по инициативе мэра Юрия Лужкова уже достаточно давно. Как и мост, маршрут пока не существует, но архитекторы использовали обе темы для того, чтобы привязать свою «универсальную баржу» к месту.

Средством для такой «привязки» стала деревянная пешеходная набережная, которую авторы проложили ниже существующей каменной. Нитка деревянного помоста связала вместе три модульных «баржи», существующую неподалеку от Новоспасского пруда пристань и упомянутый мост, который в проекте СКиП существует в том же легком исполнении, что и пешеходная набережная.

Вообще говоря, мост и набережная представляются очень симпатичной составляющей проекта. Это уместный и деликатный мазок на общей картине, следствие внимательного вглядывания в город. Он становится приятным дополнением к выраженному в основном замысле пафосу стандартизации и уравновешивает его, становится тем клеем, который необходим любому универсальному решению для адаптации в конкретном месте. Двойственность общего и частного, характерная для конкурсного задания, выглядит в этом проекте примиренной и даже переходящей в какое-то новое качество, пропитанное легкостью существования над водой – чувства, которое, к сожалению, для нынешней Москвы совершенно несвойственно.

Размещение на Москве-реке
Размещение на Москве-реке
Концепция
Концепция
Универсальный причал
Универсальный причал
Генплан для бассейна
Генплан для бассейна
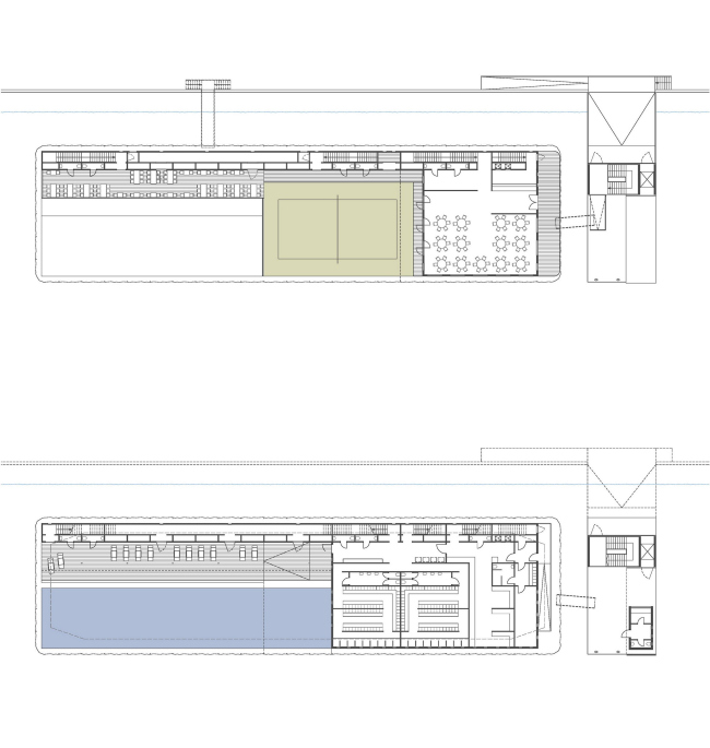
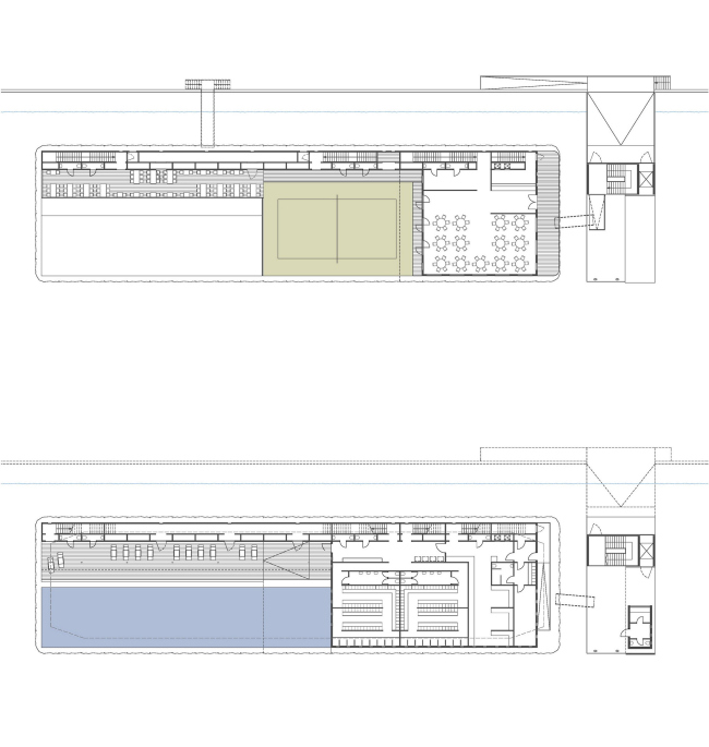
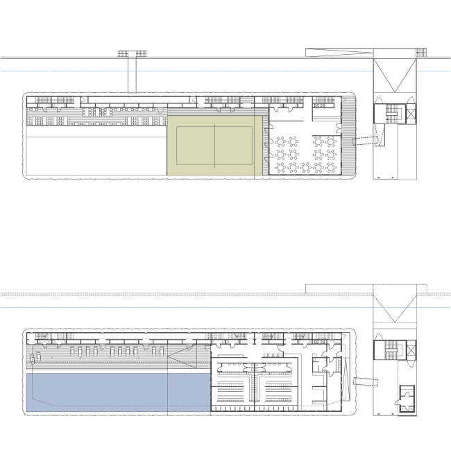
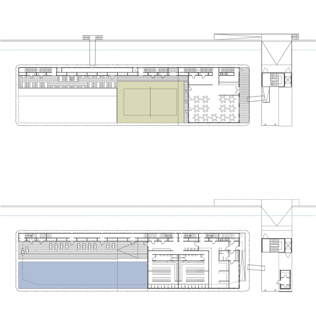
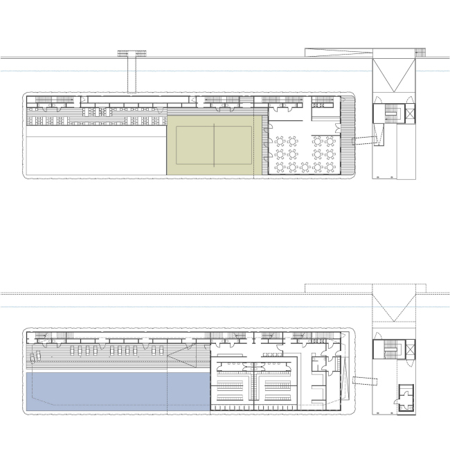
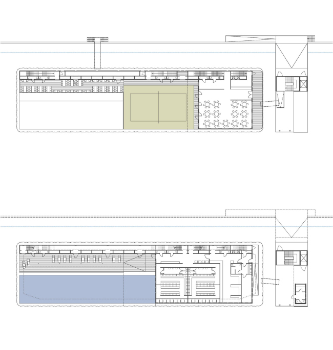
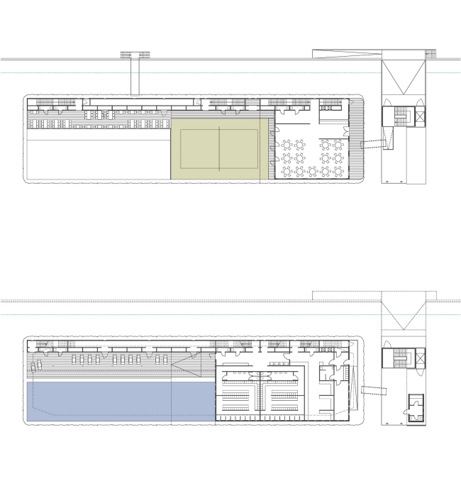
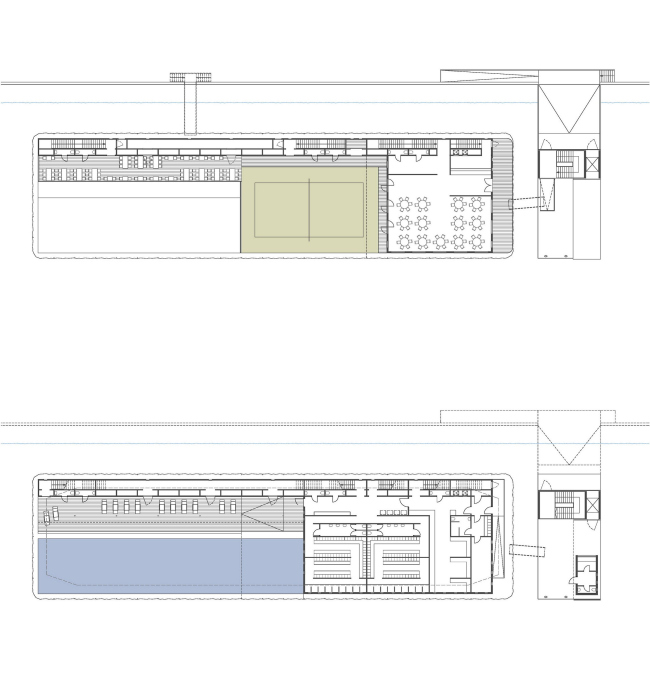
Планы палуб бассейна
Планы палуб бассейна
Фасад и разрез бассейна
Фасад и разрез бассейна
Фасад и разрезы бассейна
Фасад и разрезы бассейна
Схема функциональных и сезонных трансформаций
Схема функциональных и сезонных трансформаций
3D разрез бассейна
3D разрез бассейна
3D разрез скейтпарка
3D разрез скейтпарка
3D разрез катка
3D разрез катка
Генплан Краснохолмской набережной
Генплан Краснохолмской набережной
Краснохолмская набережная
Краснохолмская набережная
Панорамы Краснохолмской набережной
Панорамы Краснохолмской набережной