Размещено на портале Архи.ру (www.archi.ru)

21.05.2009

Храм за стеной

Юлия Тарабарина
Объект:
Конноспортивный комплекс с гостиницей, курорт "Пирогово"
Адрес:
Россия, Москвоская область, городское поселение Пироговский, вблизи деревни Сорокино
Мастерская:
Архитектурная мастерская Лызлова («АМЛ»)
Авторский коллектив:
Лызлов Н.В., Янкова А.В., конструктор Шабалин Е.А.

В лесах курорта «Пирогово», хорошо известного поклонникам современного искусства и архитектуры, медленно, но верно строится новое здание, включающее в себя конюшню, манеж и гостиницу – все, что необходимо состоятельным любителям конного спорта. Этот проект уже достаточно хорошо известен и несколько раз опубликован в профессиональных журналах. Однако же он достаточно интересен для того, чтобы поговорить о нем еще раз.

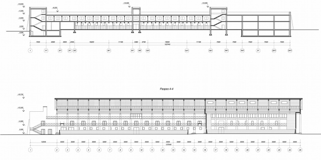
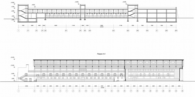
Северный фасад
Северный фасад

Конноспортивный комплекс – довольно-таки крупное сооружение, сопоставимое с эллингом для яхт там же, в Пирогово. Для сравнения: в нем бы уместились три коллекционные пироговские виллы-двухтысячника, о которых столько было сказано в прошедшем году. Виллы, судя по всему, строиться не будут, во всяком случае, пока. А конюшня строится: по всем параметрам это более практичное мероприятие – в Пирогове оформляется новый вид спорта.

Это не означает, что архитектура конноспортивого комплекса так уж проста – скорее даже наоборот. Она более чем насыщена аллюзиями и амбициозна по части смыслов.
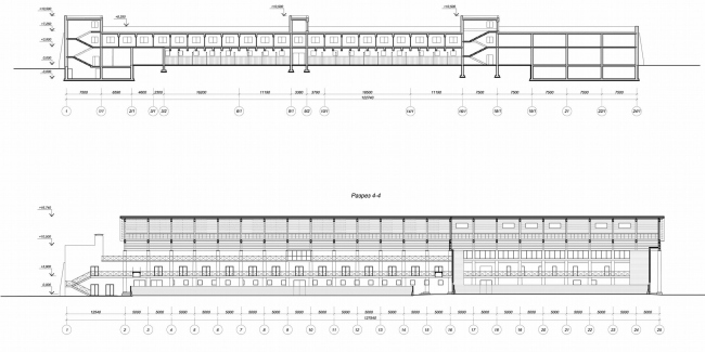
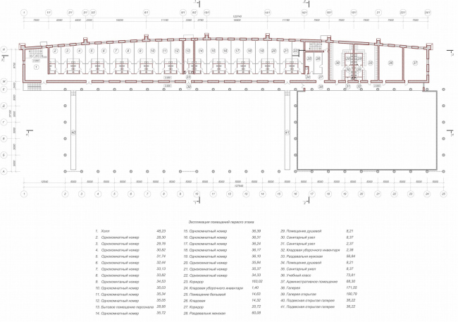
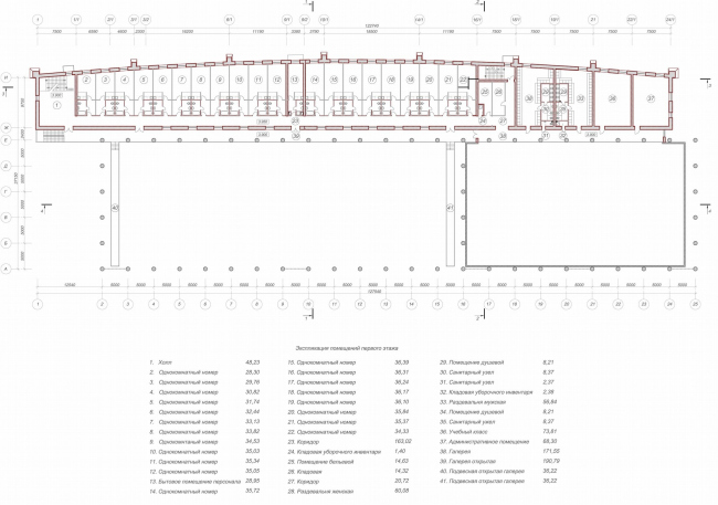
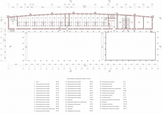
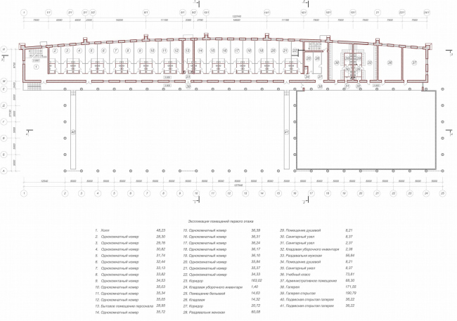
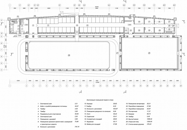
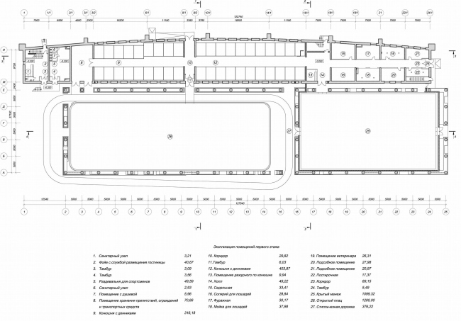
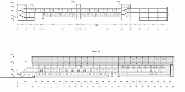
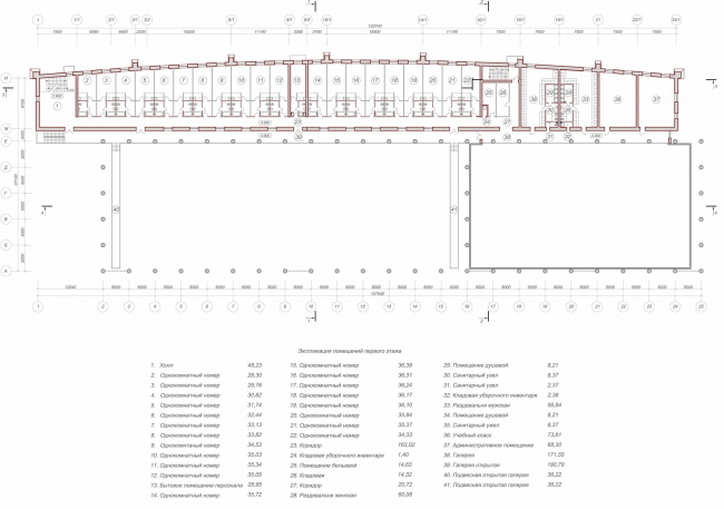
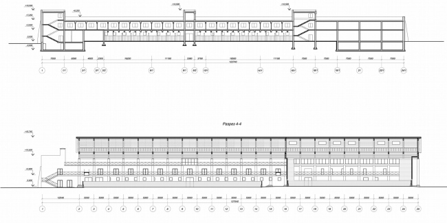
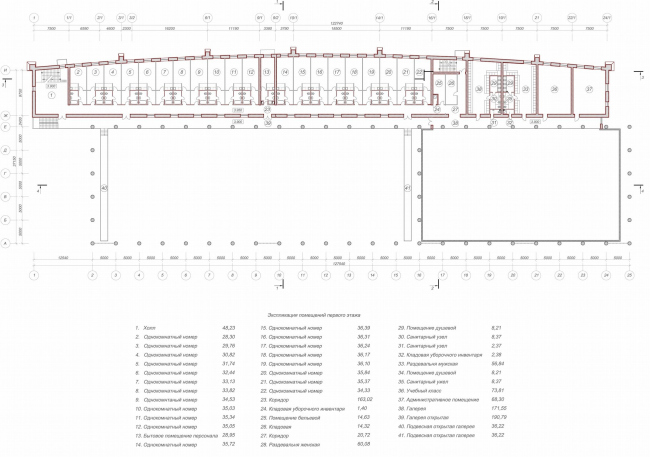
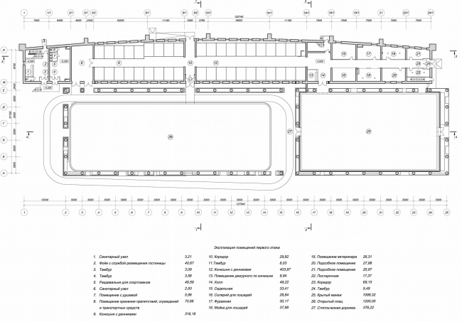
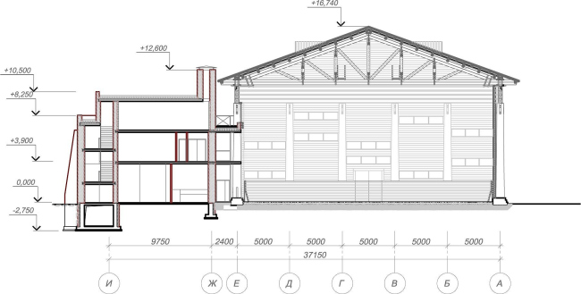
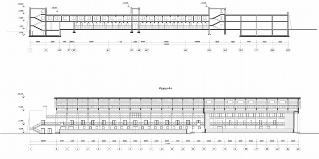
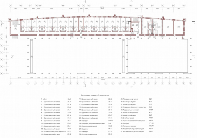
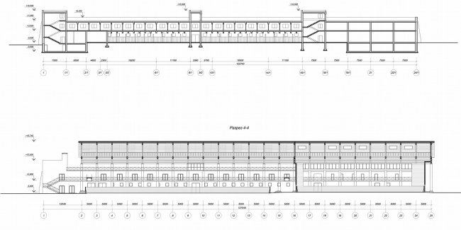
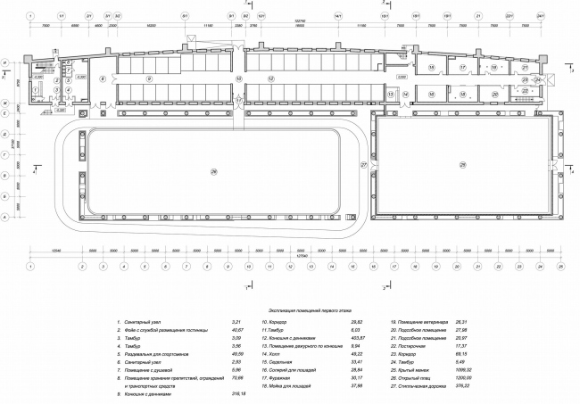
Итак: здание представляет собой деревянный периптер, то есть прямоугольник, окруженный колоннами, с двускатной кровлей и большими треугольными фронтонами на торцах. Треть прямоугольника в его северной части выгорожена – это теплый зимний манеж. Две трети – открытый летний. Разница хорошо видна на макете: кровля над летней частью стеклянная с редкими непрозрачными полосами, полосы сгущаются к северу и исчезают к югу – формируя плавный переход от закрытости к открытости, впрочем, в натуре оценить этот прием полноценно смогут только птицы.

Как видим, прямоугольник разделен на две части – поэтому, если продолжать пользоваться греческой терминологией, которая в нашем обыденном сознании больше подходит храмам, чем конюшням – то перед нами не просто периптер, а периптер с перистилем (окруженным колоннами двором). Терминология однако же в данном случае условна.

Вдоль протяженной западной стены деревянный периптер «прикрыт» сооружением другого рода и с иным ассоциативным рядом. Этой кирпичный корпус двухэтажной гостиницы. Он похож уже не на храм, а на крепостную, и даже точнее – монастырскую стену. Сходство обеспечивают: побелка кирпичных стен, простые и не слишком изобильные оконные проемы, изгиб внешней стены, а главное – контрфорсы, которые делят стены на прясла и «держат» углы.
Если дальше заниматься уточнением терминологии, то гостиница похожа даже не на стену, а на какой-нибудь келейный корпус XVII века, отремонтированный в XVIII-м. Или на монастырскую гостиницу… Частенько такие здания строили возле стен, а иногда они даже примыкали к стенам, образуя с ними одно целое. Словом, ощущения более чем «монастырское».

Получившееся сочетание удивительно. Деревянный греческий храм за белёной стеной русского монастыря.
 
Здесь надо дважды оговориться. Во-первых, главный прототип храмоподобной конюшни – это, безусловно, московский Манеж. Сгоревший и реконструированный, показавший посетителям выставок бетанкуровские балки в интерпретации Павла Андреева. История с Манежем до сих пор очень свежа, а типология элитного конного клуба у нас как-то за прошедшие 20 лет капитализма нельзя сказать, чтобы сформировалась. Вот здесь и был взят за образец самый известный, самый звучный московский прототип – Манеж Александра I перенесен в подмосковные леса.

Такого рода перенос не мог не сказаться на результате. Ведь согласитесь, строить манеж в виде Манежа – вполне логично, а вот строить в лесах и полях нечто столь же белокаменное – это было бы за гранью добра и зла, и что самое неприятное, могло бы стать похоже на советский коровник. В лесах уместно деревянное, вот и манеж стал деревянным.

Но не все так просто. Здесь возникает «во-вторых»: нет деревянных греческих периптеров, и никогда не было. Точнее они были, но, как теперь считают историки, не в реальной жизни, а, скажем так, в жизни виртуальной – на страницах старых учебников. Где говорится, что ордер произошел от деревянной стоечно-балочной системы и где нарисованы мифические деревянные пра-колонны, которых никто никогда не видел.
А вот теперь увидит! Потому что Николай Лызлов строит именно нечто подобное: деревянный пра-образ периптера. Которого не было. Образ из учебника. Интерполяцию. Архитектор прекрасно осознает получившийся эффект и сам о нем охотно говорит.

Эффект пра-образа должен особенно хорошо прочитываться благодаря материалу, который выбрал заказчик. «Периптер» должен быть выстроен из слегка оструганных бревен. Что на поверку оказалось непростым и дорогим делом: клееная древесина дешевле и с ней значительно легче управляться. Однако поколебавшись заказчик все-таки настоял на реализации первоначального «дремучего» замысла. Так что образ колонны-дерева здесь будет буквальным – не изображение ствола, а сам ствол.

Деревянный периптер из учебника – это самый ученый из образов, присутствующих в пироговском конноспортивном комплексе. Но у него есть еще и эмоциональный фон, не столь заумный и легко прочитывающийся.

Год назад Григорий Ревзин написал про «коллекционную» пироговскую виллу (дом 1, дом 2) Николая Лызлова и сравнил ее с «палаткой последнего туриста» по степени погруженности в природу. Мне кажется, что это сравнение прижилось, и до какой-то степени оно актуально и в случае с нашим деревянным храмом-манежем.

Ведь в чем заключалось счастье и отдых интеллигента? Для одних – отправиться в лес с палаткой и слиться с природой посредством рыбалки. Для других – забраться не просто в лес, а в какую-нибудь особенную глушь и отыскать там какую-нибудь деревянную (а если повезет, и кирпичную) старую руину. Или доехать до северной деревни и отыскать там одновременно и полузаброшенный деревянный храм и прялку. Время от времени храмы перевозили в монастыри и устраивали там музеи деревянного зодчества.

Вот чувство туриста, который выбрался из леса до ближайшего монастыря-музея, и теперь идет вокруг белых кирпичных стен, а из-за стен виднеется какой-нибудь шатровый деревянный храм из совершенно другого места – и все целиком очень тонко и романтично, сам музей тоже полузаброшен и сравнительно дик – это чувство, которое лично мне очень близко, Николаю Лызлову удалось поймать и передать в своем странном ансамбле деревянного периптера и кирпичного «келейного корпуса».

Кроме «ученой задачки» с деревянным пра-ордером и описанного эмоционального фона у проекта есть и еще одна характерная особенность: это самый классичный из известных мне на настоящий момент проектов Николая Лызлова. В городе этот архитектор значительно более сдержан и минималистичен, хотя несколько раз он уже был замечен в обращении к «скрытым» в модернизме семидесятых классическим мотивам. Здесь же тема «из учебников» вполне очевидна, правда, обращена в некое подобие архитектурной шутки, почти что инсталляции – посмотрите, мол, как бы выглядели ваши деревянные греческие храмы, если их скрестить с избушкой на курьих ножках… Это вполне в духе Пирогова: превратить здание в полноценный арт-объект.

Макет
Макет
Николай Лызлов. Конноспортивный комплекс с гостиницей, курорт «Пирогово». 1 премия «Архновации» за проект
Николай Лызлов. Конноспортивный комплекс с гостиницей, курорт «Пирогово». 1 премия «Архновации» за проект
Макет
Макет
Макет
Макет
Южный фасад
Южный фасад
Западный фасад
Западный фасад
Восточный фасад
Восточный фасад