Размещено на портале Архи.ру (www.archi.ru)

20.05.2009

Погруженные в контекст

Юлия Тарабарина
Объект:
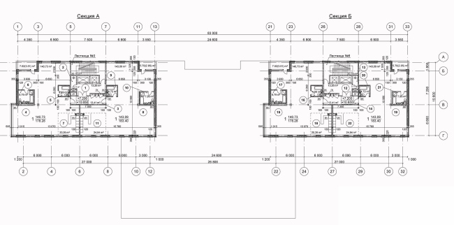
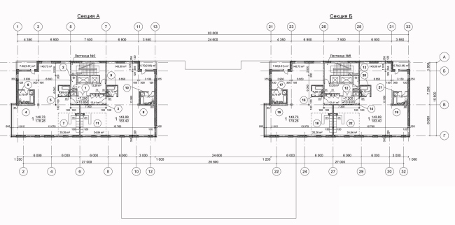
Жилой дом с физкультурным комплексом на 3-й Фрунзенской улице
Адрес:
Россия, Москва. 3-я Фрунзенская ул.,вл.5
Архитектор:
Владимир Плоткин
Мастерская:
ТПО «Резерв»
Авторский коллектив:

Архитекторы: В. Плоткин, Ю. Журавлев, М. Колесникова, А. Рощин
Инженеры: Л. Аншин, И. Доннер, Ю. Дорская, В. Кияшко

Два дома на 3-й Фрунзенской улице настолько погрузились в целостную среду окружающего «сталинского» квартала, что почти «утонули» в ней, став почти незаметными. Как им удалось при этом не поступиться модернистскими принципами «Резерва» – сложно сказать, но удалось.

Фото: Ю.Тарабариной
Фото: Ю.Тарабариной

Внутри квартала между второй и третьей Фрунзенскими улицами появилось два новых жилых дома. Невысокие по нашим временам и совершенно одинаковые башни поставлены на небольшом расстоянии друг от друга и соединены широким одноэтажным корпусом спорткомплекса. Это простая, строгая, симметричная и крайне антиклассичная композиция. Владимир Плоткин очень любит именно такие композиции: центр присутствует, но придавлен к земле и никак не акцентирован, скорее наоборот – стушеван настолько, насколько это вообще возможно. Края, которым в «классической» схеме полагается быть второстепенными, здесь – главные, им отдана вся масса и все внимание. Используя полученное преимущество они откровенно двоятся – типичные близнецы.

Никакого намека на шок от такой «неклассичности» зритель, правда, не испытывает – хотя бы потому, что симметрия с утраченным центром это один из любимых мотивов модернизма, и по отношению к XX веку он как раз-таки привычен – архитектор попросту вновь, старательно и отточено разыгрывает перед нами любимый эпизод. Кроме того, масштабы и пропорции башен могут показаться знакомыми – москвичу они напомнят известную серию девятиэтажек – заметим, что в домах Владимира Плоткина, если не считать стилобата, тоже по девять этажей. Так что все до какой-то степени именно традиционно, а не наоборот. Нет никакого вызова, перед нами азбука модернизма.

Геометрия фасадов здесь тоже вполне современная, даже модная, хотя и в ней можно разглядеть несколько особенностей. При первом взгляде думаешь – ну вот, и еще один «фасад в виде дождя» (он же Holland wall, фасад, окна на котором разбросаны асимметрично-живописно, как будто бы «плавают» по стене). Ан нет. Приглядевшись, несложно обнаружить, что ритм подчинен очень строгой сетке. Точнее, несколько геометрических схем здесь наложены друг на друга: узкие и широкие окна чередуются, но строго поочередно, этажи объединены в полосы по два, но не стерты совсем. Шахматный сдвиг прямоугольников присутствует, но он именно что шахматный – рациональный и понятный, по диагонали, и отнюдь не вольно-живописный. Эффект любопытный: при первом взгляде мы обнаруживаем мельтешение окон, которое вскоре «схватывается» и замирает –  как только начинает прочитываться внутренняя закономерность фасадного построения.
Можно подумать, что заданная в общей композиции двойственность проникла в архитектуру этих домов глубже, чем может показаться с первого взгляда: пары этажей, пары окон (широкое-узкое), даже расцветка использует два основных цвета.

О цвете надо сказать отдельно – потому что именно он представляется здесь главным героем. Самая явная особенность домов на 3-й Фрунзенской заключается не композиционном построении, и не в геометрической игре фасадных плоскостей. А в том, что этим модернистским близнецам удалось до странного естественно вписаться в сталинское окружение района.
Для того, что добиться этого эффекта, Владимир Плоткин и Юрий Журавлев использовали цвет.

Как известно, главные цвета сталинских кварталов – бежево-желтый и кирпично-красный. Первый обозначает белый камень, а иногда (редко) им и является, второй – кирпич. Впрочем, бывает и наоборот: широкий желтоватый облицовочный кирпич и темно-красный гранит. Сочетание красноватого и желтоватого, вообще говоря, классическое версальское; но чем-то оно таким неуловимым в Москве отличается, что эффект налицо – мы чувствуем сталинские кварталы каким-то особенным образом, то ли спиной, то ли «третьим глазом», и никогда их ни с чем не спутаем. Вот это ощущение авторам и удалось поймать в домах на Фрунзенской. Вероятно, поэтому они так непосредственно умостились внутри квартала, который должен быть им стилистически чужд по всем параметрам.

Сделано это удивительно просто и в то же время эффективно. В облицовке использованы панели двух цветов: терракотово-кирпичного и бледно-розового. Они положены очень аккуратно, а стыки образуют линии, напоминающие швы кладки соседних сталинских зданий. Эти здания здесь – повсюду, они выстраиваются вокруг квартала в разомкнутое, но явное каре. Словом, есть с чем сравнить.
Даже серые полоски, отмечающие междуэтажные членения и немного охлаждающие теплый пастельный колорит фасадов – и те находят для себя отклик в окружении – они попадают в тон стандартной краски металлического забора и даже – дворовых гаражей-ракушек. Иными словами, вокруг можно найти всего три цвета: желтоватый, кирпичный и серый – и все они с точностью отразились на фасадах новых домов, наделив их средствами для успешной мимикрии в среде.

Более того, соседняя красно-кирпичная ( «сталинская» типовая) школа вступает с новыми зданиями в какой-то очень явный диалог. Ее недавно покрасили, и новая расцветка местами совершенно точно попадает в тон домам Владимира Плоткина. А с некоторых точек школьное даже пытается восполнить отмеченную выше «утрату середины», претендуя занять место отсутствующего центра – эффект, к которому Владимир Плоткин, по его собственным словам, ни в коем случае не стремился.

Выходит, что дома на Фрунзенской так глубоко и успешно погрузились в контекст, что начали «врастать» в него уже совершенно самостоятельно – и что самое удивительное, квартал их принял и сам начал подстраиваться.

Сторонники строгой контекстуальности (такие специальные люди, которые считают, что новое здание должно быть совершенно, ну то есть совсем незаметным в городе) – должны быть довольны. Поразительно, что можно сделать с помощью одного только цвета! Надо заметить, что дома не только слились с кварталом, но и приобрели неожиданную лирическую акварельность, что особенно удачно в окружении множества деревьев.

Все это несколько неожиданно – за последние два года мы вроде бы привыкли, что Владимир Плоткин с завидным постоянством удивляет всех зданиями более чем заметными: гигантские «Аэробус» и чертановский «Квартал 77» – их вообще несложно увидеть из соседнего района города, а находясь поблизости не обнаружить попросту никак не возможно. «Арбитраж» на Селезневской улице стремится деликатно отразить в своих окнах все ближайшие памятники архитектуры – но при этом он отчаянно белый, металлически-ребристый, так что не заметить тоже нельзя. «Налоговая» рядом с Курским вокзалом велика и бело-полосата, и, хотя ее парадный фасад выровнен по высоте с соседним сталинским домом – все равно очевидно, что на Садовом выкристаллизовался целый (и не маленький!) квартал.
Таким образом, каждое из этих известных новых зданий Владимира Плоткина так или иначе вписано в контекст, но жест встраивания в нем второстепенен: где-то это уступка согласованиям (на Курской), где-то уважению перед классическим модернизмом (Чертаново).

А на Фрунзенской мы неожиданно обнаруживаем пример глубокого погружения в среду – так иностранный язык учат «методом погружения». Оказывается, это вполне возможно, более того, утонув в среде, дома-близнецы как-то в то же время смогли «не поступиться принципами». Получив взамен несколько незаметных парадоксов и теплую пастельную гамму вместо ярко-белой.

Фото: Ю.Тарабариной
Фото: Ю.Тарабариной
Фото: Ю.Тарабариной
Фото: Ю.Тарабариной
Фото: Ю.Тарабариной
Фото: Ю.Тарабариной
Фото: Ю.Тарабариной
Фото: Ю.Тарабариной
Фото: Ю.Тарабариной
Фото: Ю.Тарабариной
Фото: Ю.Тарабариной
Фото: Ю.Тарабариной
Фото: Ю.Тарабариной
Фото: Ю.Тарабариной