Размещено на портале Архи.ру (www.archi.ru)

13.05.2009

Фасад с ребусом

Юлия Тарабарина
Объект:
Многофункциональный центр «Данилов Плаза»
Адрес:
Россия, Москва. Новоданиловская набережная, вл. 6
Архитектор:
Сергей Чобан
Сергей Кузнецов
Мастерская:
СПИЧ
Авторский коллектив:
Авторы проекта: Сергей Чобан, Сергей Кузнецов
Главный архитектор проекта: Игорь Членов
Архитектор: Евгений Ляшков
Главный инженер проекта: Игорь Осокин

Новый проект ‘SPeeCH’ предназначен для участка, расположенного рядом с недавно построенным, но уже хорошо известным зданием Сергея Скуратова – офисным центром «Даниловский форт». Соседство вынуждает к диалогу, который ‘SPeeCH’ построил на сочетании сходства и контрастов. И в завершение – противопоставил скульптурно-пластической игре фасадов «форта» ‘SPeeCH’ свою собственную игру – геометрическую – с перспективой.

Многофункциональный центр «Данилов Плаза»
Многофункциональный центр «Данилов Плаза»
© SPEECH

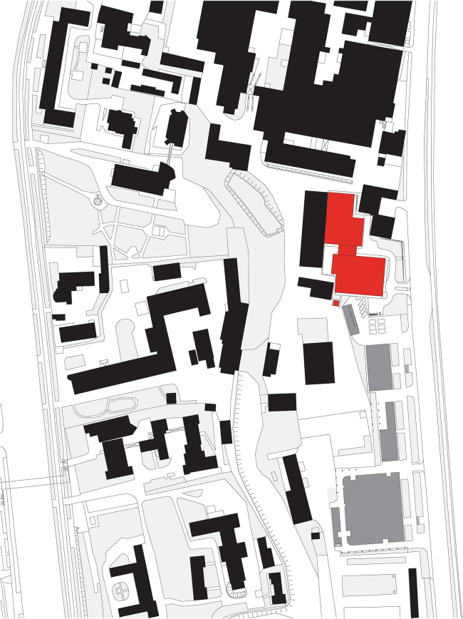
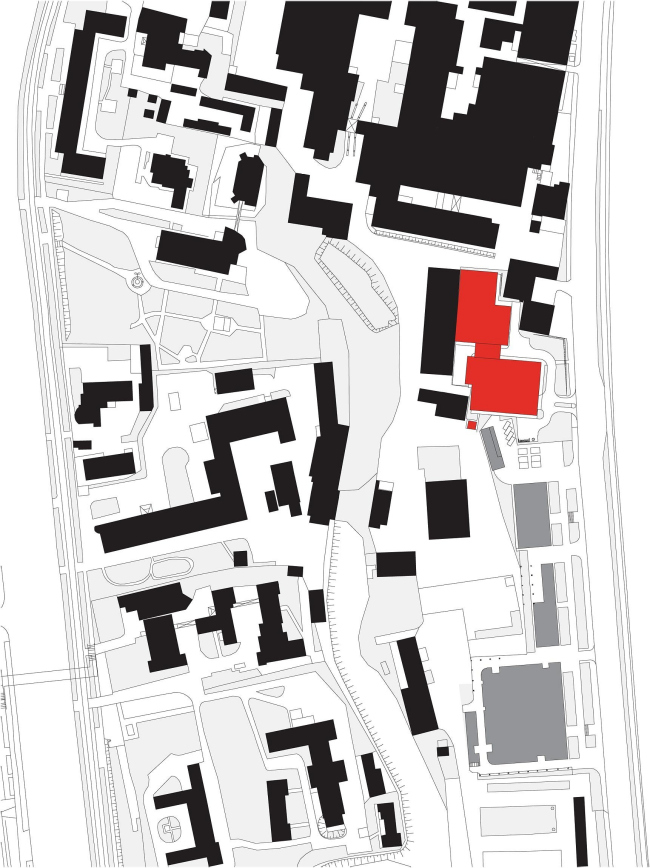
Деловой комплекс будет расположен на Новоданиловской набережной, через реку от ЗИЛа, на бывшей промышленной территории, которую сейчас постепенно, но неотступно застраивают новыми офисами. Ближайшее окружение – склады, сараи, но есть и старые кирпичные заводские здания. Однако главный контекст нового комплекса это, как ни странно, уже не завод. А деловой центр с поэтическим названием «Даниловский форт», спроектированный и построенный Сергеем Скуратом по заказу «MR Group» (строительство завершилось в этом году). Он находится совсем рядом, по соседству: адрес скуратовского комплекса – дом 8, а участка, для которого проектирует ‘SPEECH’ – владение 6. Сейчас на этом месте находятся небольшие склады, которые будут разобраны для строительства.

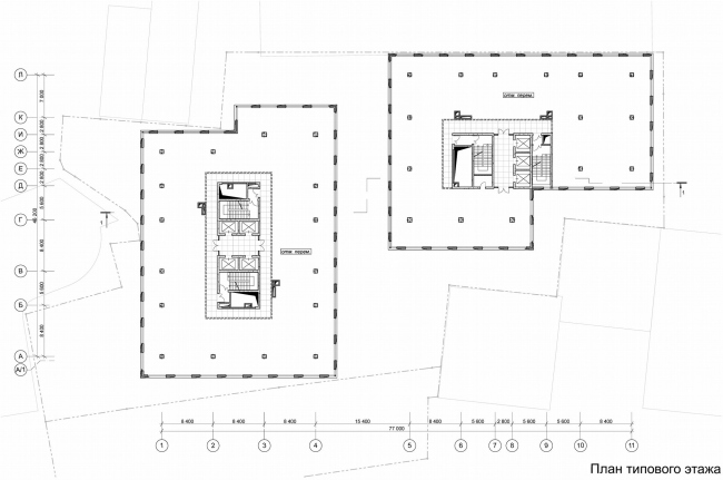
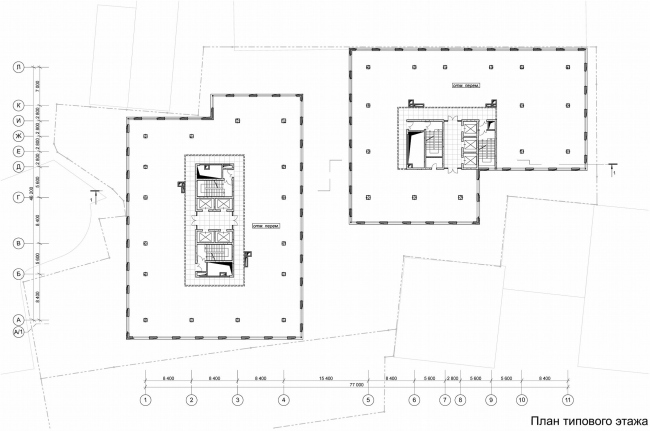
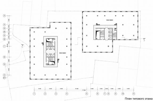
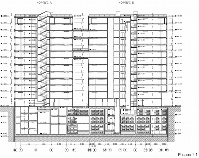
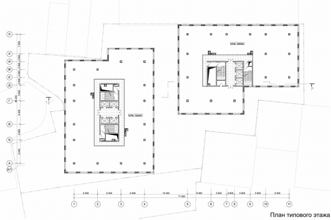
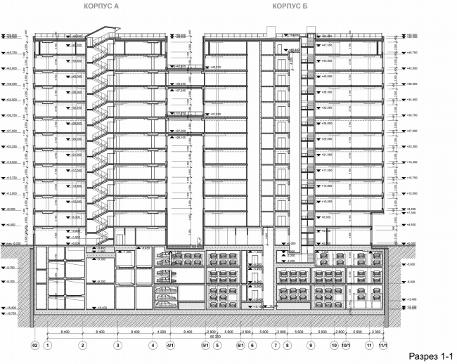
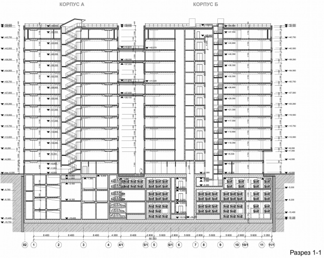
Комплекс Сергея Кузнецова и Сергея Чобана состоит из двух 12-этажных корпусов, поставленных по диагонали на участке, форма которого напоминает короткий зигзаг. Композиция объемов выглядит уподобленной «Даниловскому форту»: также, как и там, южный корпус поставлен перпендикулярно набережной и выдвинут торцом к реке, а северный отступает в глубину квартала. Генплан обоих комплексов получается Г-образным – поперечный корпус останавливает взгляд и замыкает композицию. Любопытно, что в «форте» Сергея Скуратова этот прием был чисто пластическим, а в проекте ‘SPeeCH’ он отчасти вынужденный, так как продиктован формой участка – перед северным корпусом расположен небольшой трехэтажный домик, его планируется сохранить, поэтому корпус и отодвинули вглубь. Но так или иначе, а композиция двух соседних комплексов получается похожей: новый проект выглядит образным «отражением» соседа – или, если хотите, его ритмической парой. В перспективе, если смотреть со стороны Даниловского монастыря, они смотрятся очень родственно.

На отмеченном объемном подобии сходство, пожалуй, и заканчивается. Начинается диалог. Холодновато-серый северный корпус отгораживается от соседа, а терракотовый южный – перекликается с ним, хотя и на отдалении. Корпуса ‘SPeeCH’, в отличие от «форта», не имеют общего стилобата, зато они связаны между собой «по воздуху» навесными переходами на уровне восьмого и одиннадцатого этажей. Надо ли говорить, что один переход серый, а второй – коричневый. 
А вот принципиальная прямизна стен и углов, также как и жесткая сетка квадратных окон – отчетливо противопоставлены известной скульптурности стен и живописно «плавающим» проемам соседнего здания. По контрасту комплекс ‘SPeeCH’ выглядит кристалличным, четким и ясным.

Хотя – геометризм одинаковых окон вовсе не исключает элемента архитектурной игры. Даже наоборот. Квадратные окна имеют асимметричные уступчатые «рамы», похожие на угловатую разновидность перспективного портала, от которого авторы отрезают ровно одну треть – то слева, то справа. Возникающий эффект гипертрофированно-перспективен, особенно если учесть, что поворот ступенчатых «раструбов» окон изменяется от одного этажа к другому. Получается, что на первом этаже точка схода нарисованной ступеньками перспективы оказывается справа, то на втором – слева, и так далее.

Кстати говоря, любимый архитекторами ‘SPeeCH’ стиль ар-деко тоже любил играть с перспективой: имитировать ее, иногда – усиливать с помощью декоративных приемов. Поэтому архитекторы 1930-х так любили квадраты, и особенно – кессоны, квадратные впадины, с помощью которых так легко и удобно выстраивать пространство, как реальное, так и иллюзорное. В проекте ‘SPeeCH’ мы наблюдаем нечто похожее, но игра здесь заходит несколько дальше, чем это было принято в 1930-е: перед нами не просто иллюзия, но та ее орнаментально-оптическая разновидность, от которой хочется покрутить головой и поморгать; или вдуматься и просчитать. Она не просто развлекает, но пытается воздействовать на сознание; или апеллировать к разуму. Это как головоломка. Иными словами, любовь ар-деко к перспективе сочетается здесь с математической орнаментальностью оптического искусства 1960-х. Что-то часто теперь приходится вспоминать про оп-арт. Можно подумать, что увлечение архитекторов орнаментом переросло свою растительную стадию и переходит в стадию математическую, когда от орнамента ждут не только украшения, но и хорошего ребуса.

Многофункциональный центр «Данилов Плаза»
Многофункциональный центр «Данилов Плаза»
© SPEECH
Многофункциональный центр «Данилов Плаза»
Многофункциональный центр «Данилов Плаза»
© SPEECH
План типового этажа
План типового этажа
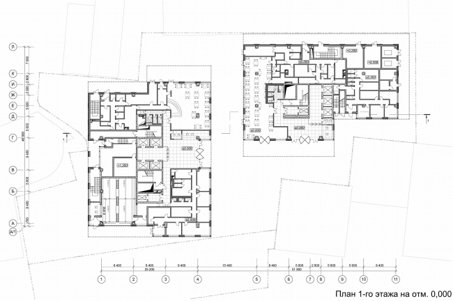
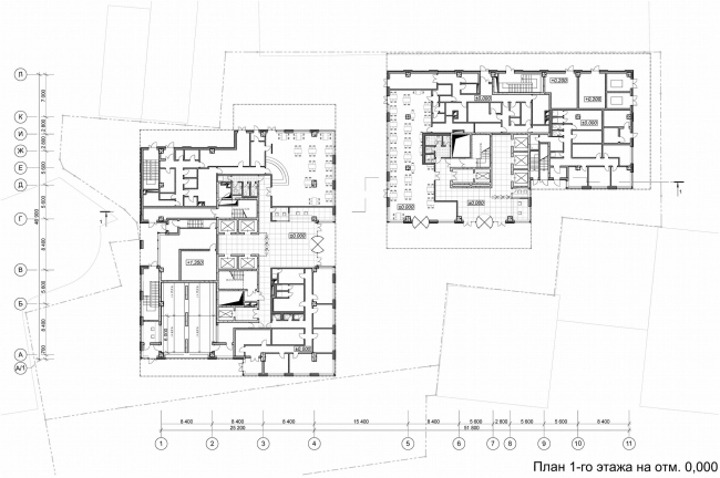
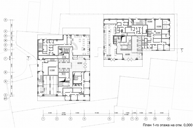
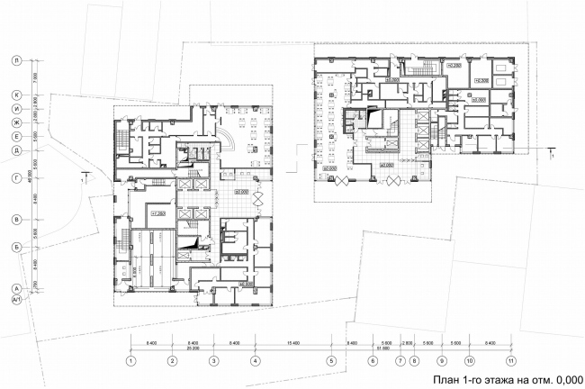
План первого этажа
План первого этажа
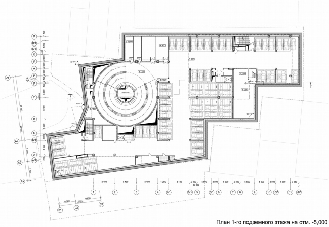
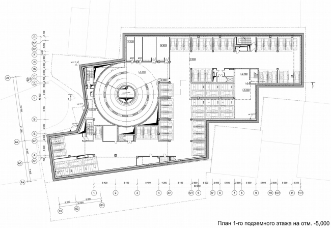
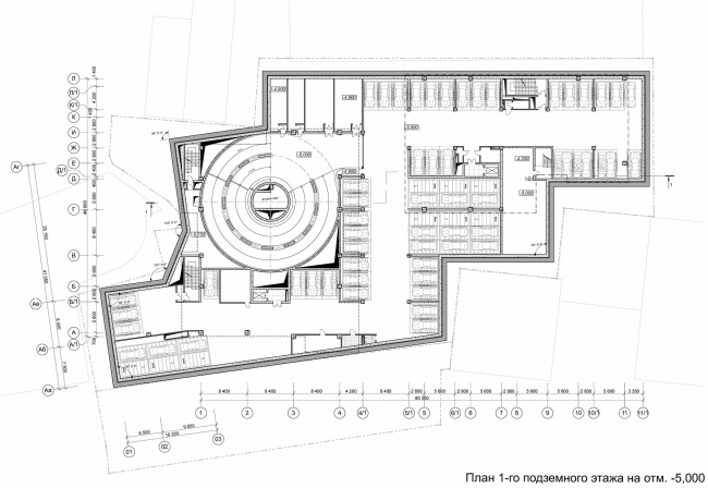
Многофункциональный центр «Данилов Плаза». План подземного этажа © SPEECH
Многофункциональный центр «Данилов Плаза». План подземного этажа © SPEECH
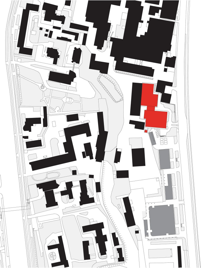
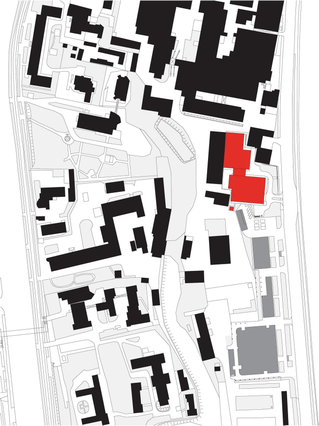
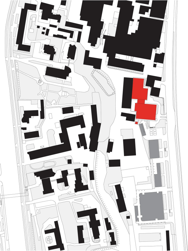
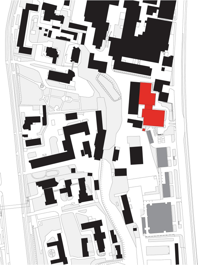
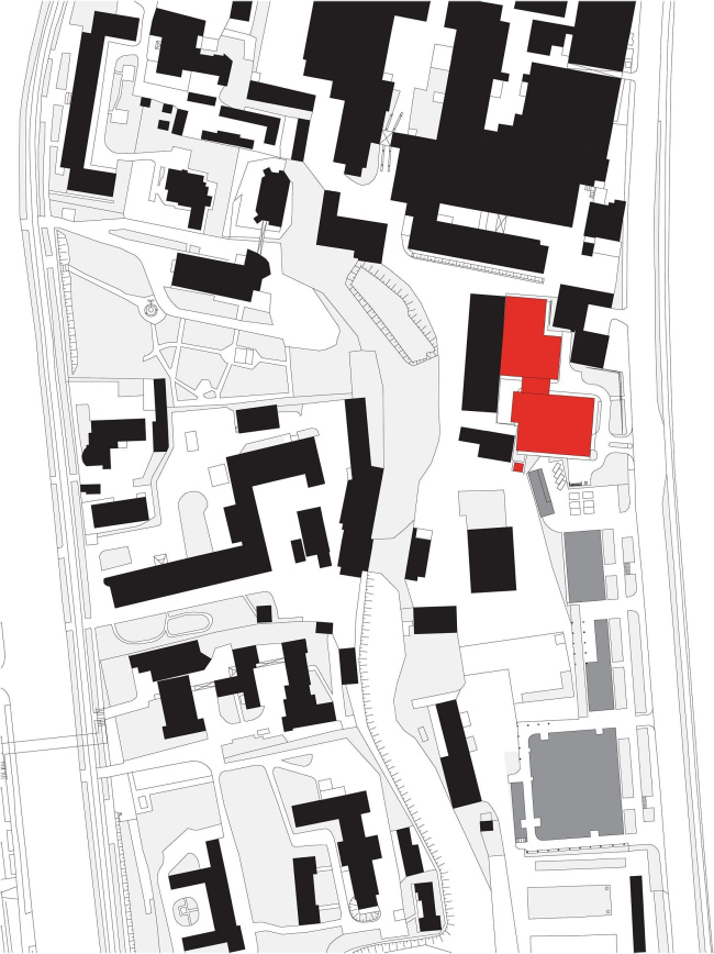
Многофункциональный центр «Данилов Плаза». Ситуационный план
Многофункциональный центр «Данилов Плаза». Ситуационный план
© SPEECH
Разрез
Разрез