Размещено на портале Архи.ру (www.archi.ru)

26.03.2009

Усмиренный контраст

Юлия Тарабарина
Объект:
Жилой дом «Ле Гранд»
Адрес:
Россия, Санкт-Петербург. Невский пр., 152
Мастерская:
Евгений Герасимов и партнеры
Авторский коллектив:
Руководитель авторского коллектива – Герасимов Евгений Львович Главный архитектор проекта – Каверин Олег Васильевич Архитекторы – Орлов Алексей Станиславович, Меншикова Елена Анатольевна, Гвоздик Александр Георгиевич Главный конструктор – Резниченко Маргарита Яковлевна Конструктор – Рыжова Светлана Викторовна Инженерные разделы – ЗАО «Климатпроф» Главный инженер проекта – Аксенова Марина Викторовна

Дом «Ле Гранд» интересен сложным подходом к контексту: он использует сразу несколько традиционных тем, оттеняя их хай-тековским металлом. Контраст старого и нового. И это – на Невском проспекте. Но контраст усмирен, в чем и заключается главная «изюминка» здания

Строить на Невском проспекте – дело ответственное, так много в этом звуке слилось всякого разного. И место культовое, и ансамбль целостный. Невский проспект сам по себе – до некоторой степени фасад своего города, он требует и внимания и уважения. Даже в той его части, которую в последние году осваивает Евгений Герасимов – за площадью Восстания, ближе к Лавре, чем к Фонтанке. Здесь на нечетной стороне пять лет назад построен дом с аркой, лауреат нескольких дипломов, породнивший конструктивистские приемы с любимой питерской типологией дома с длинным проходным двором – внутренней улицей. Неподалеку, на противоположной стороне улицы и немного ближе к центру – в прошедшем 2008 году завершен еще один дом Евгения Герасимова, Ле Гранд.

Этот дом состоит из двух частей, причем различие между ними настолько отчетливо, что в первого взгляда можно подумать, что перед нами два дома, один позади другого или же – один встроен в другой как в оболочку. На самом деле все и проще, и сложнее. Над облицованным камнем объемом жилого здания, аккуратно встроенным в линию застройки Невского проспекта, возвышается стеклянный эллипс двухэтажных пентхаусов. Ощетинившийся металлическими карнизами и обставленный металлическими же столбиками, типичный хай-тек. Возникающий эффект сродни тому, который производит нью-йоркский Херст-тауэр сэра Нормана Фостера – стеклянный небоскреб, вставленный в коробку классицистического здания начала XX века.

Здесь, правда, не небоскреб и основание дома не старое – но тема очевидно та же самая – взаимодействие ар-деко и хай-тека, традиционно-спокойного и металлически-энегричного, ну или старого и нового, в конце концов. И надо заметить, взаимное проникновение двух начал на Невском ощущается больше, чем в Нью-Йорке.

Каменный объем основного дома продолжает линию соседних доходных домов XIX века и усваивает их трехчастную схему: внизу широкие витрины магазинов, а ритм верхнего этажа вдвое мельче, чем у основной части. Фасады объемно-многослойны, покрыты плоским каменным рустом и пронизаны вертикалями. В то же время сдержанный каменный фасад допускает в себя стекло и металл. Ряды эркеров со стороны переулка – самый заметный пример, но есть еще серые горизонтали междуэтажных тяг и такие же серые вставки в проемах окон.
С другой стороны, столбики стеклянно-металлического объема пентхаусов тоже возникли здесь неспроста. Как и полагается контекстуальной архитектуре Питера, в эллипс «прошита» классицистическая аллюзия – сложно не заметить его сходства с ротондой, венчающей самые помпезные дворцы. Металлический «ежик» не очень похож на купол – эллипс пентхаусов даже больше напоминает широкую корабельную трубу. Но соответствующий классический силуэт – выдержан и намек – создан.

Нечто подобное наблюдается и во внутренней структуре здания. Дом сравнительно невелик, но он удивительным образом использует как минимум три планировочных схемы. В нижних этажах имеет место миниатюрный пассаж между магазинами – что вполне логично для торговой части здания. Выше магазинов, на уровне третьего этажа обнаруживается крытый внутренний дворик с лифтами, объединяющий две типологии: характерную для доходных домов Петербурга «цепочку» внутренних дворов и – популярную в наше время идею атриума.

Но суть здесь не  планировочных приемах, они – результат поиска оптимального решения для сложного участка, небольшого и вытянутого в глубину переулка. Главное впечатление – первое: контраст между двумя разнородными объемами, традиционным и металлически-современным. Контраст, умело использованный и своевременно усмиренный.

Жилой дом «Ле Гранд»
Жилой дом «Ле Гранд»
© Евгений Герасимов и партнеры
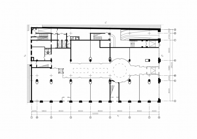
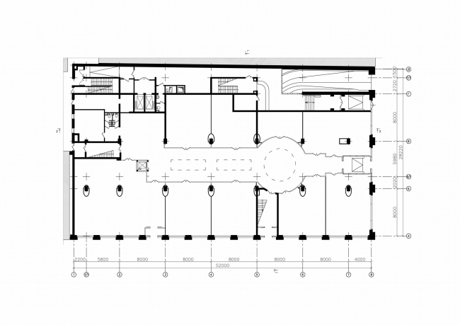
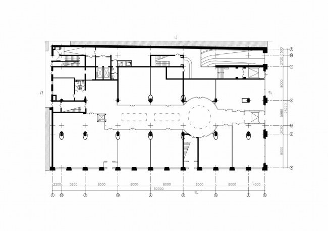
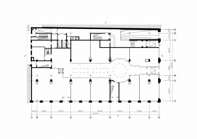
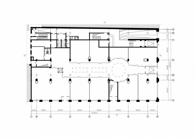
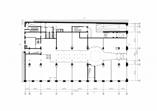
План нижнего яруса (магазинов)
План нижнего яруса (магазинов)
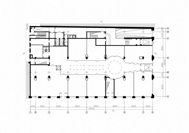
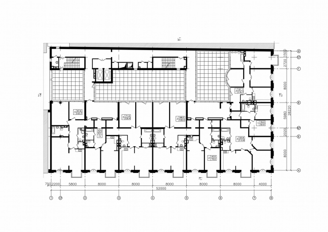
План на уровне пентхаузов
План на уровне пентхаузов
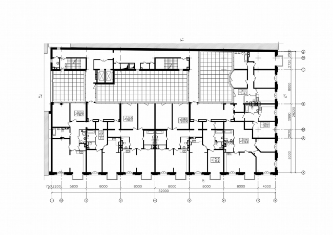
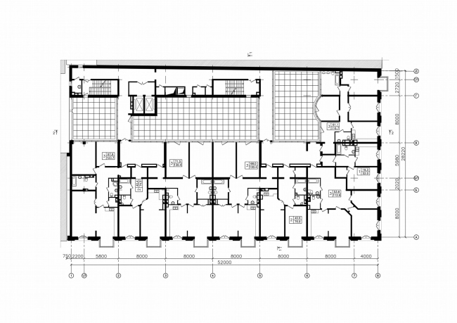
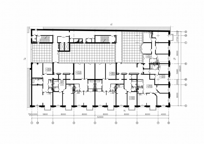
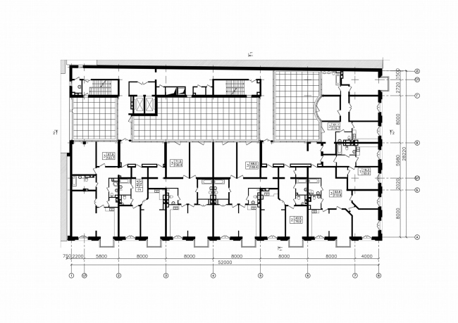
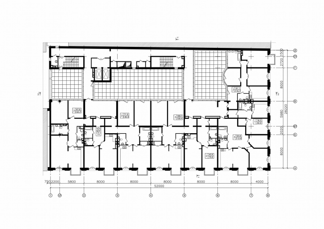
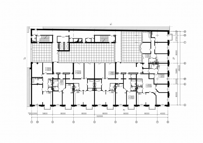
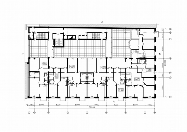
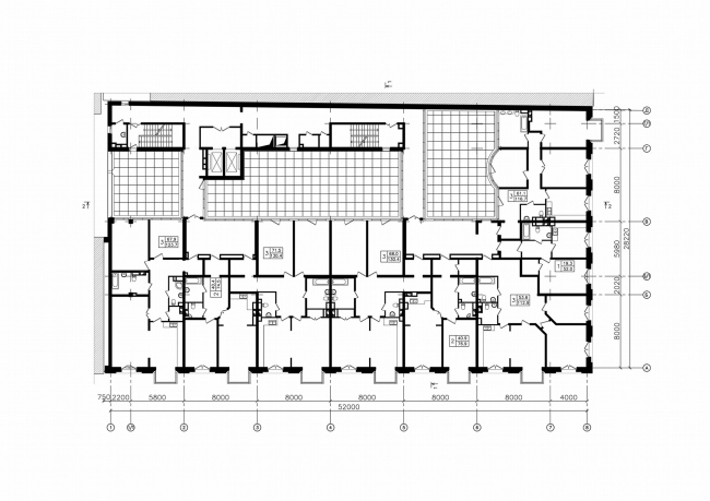
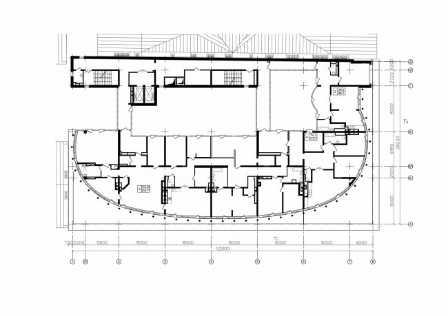
План на уровне квартир (3 этаж)
План на уровне квартир (3 этаж)