Размещено на портале Архи.ру (www.archi.ru)

29.06.2009

Жизнь одной формы

Наталья Коряковская
Объект:
Вилла в Турции
Адрес:
Россия,
Дом будущего (конкурсный проект бюро Виссарионова)
Адрес:
Россия, Москва.
Дом-раковина в Мытищах
Адрес:
Россия, Москва. Мытищи, Клязьменское водохранилище
Мастерская:
ПТАМ Виссарионова
Авторский коллектив:
ПТАМ Виссарионова. Архитекторы: Юрий.Виссарионов, Константин Савкин, Антон Приходько и др.

Популярность проекта виллы-цветка в Турции подтолкнула архитекторов бюро Юрия Виссарионова на очередной эксперимент в частном домостроении, переместившись, правда, на этот раз с южных берегов в подмосковные луга. Инкубатором идей, по мнению авторов, в обоих случаях стал конкурсный проект дома-трансформера, воплощающий футуристическую идею мобильного и до некоторой степени «ожившего» жилья.

Дом-раковина в Мытищах. 2008 г.
Дом-раковина в Мытищах. 2008 г.

Для конкурсного проекта 2004 года Юрий Виссарионов придумал дом-трансформер, который можно было бы перевозить и устанавливать в разных местах. В собранном виде дом представляет собой подобие автомобильного прицепа, компактный жесткий «ларец», который при приезде на подготовленный участок должен разворачиваться, обрастая объемами дополнительных комнат. Эдакая самораскрывающаяся футуро-палатка, напичканная всевозможными благами цивилизации. В установленном виде дом похож на скопление фантастических инопланетных форм, ярких и отчетливо нетрадиционных. А в процессе разворачивания и «посадки на место» он напоминал бы трансформацию биологических существ – расправляющего крылья жука, или какую-то необыкновенную рыбу.
Справедливости ради надо заметить, что дом-трансформер предполагалось устанавливать отнюдь не на любом месте, а все-таки на участке с подведенными коммуникациями. С собой он мог по замыслу авторов возить лишь некоторые инженерные системы.

Этот эффектный проект в конкурсе так и не поучаствовал, однако привлек внимание заказчиков. Первым его парафразом стала вилла в Турции, оснащенная жесткими ребристыми крыльями, напоминающими крылья насекомого или плавники «летучей рыбы». Вторым – продолжение виллы – гостевой домик, который должен быть построен на территории виллы, ниже по склону у террасы теннисного корта.
Третьим стал дом в Мытищах, показанный этой весной на выставке «Под крышей дома…».

Идею большого самораспаковывающегося дома, да еще и большого, оснащенного всем необходимым для комфорта – следует пока признать футуристически-фантастической. Зато ее «осевшие на земле» дети, не будучи перегруженными техникой «умными домами», наследуют от конкурсного проекта-прототипа биоморфные формы. Которые вызывают в памяти как ближайшие, неомодернистские, так и более старые аналогии: дома начала XX века в стиле «модерн», особенно произведения Гауди. Они старательно избегают прямых (и даже острых) углов, прямоугольных окон, а из горизонтальных плоскостей здесь присутствуют только самые необходимые – поверхности пола.

Гостевой домик в Турции, проект 2009
Дом для гостей – дополнение к основному зданию – наследует формы своего соседа, но под его сенью выглядит более скромным, лаконичным. Дом предполагает размещение двух семей – партнеров по теннисному спорту и отдыху в живописной горной местности. Автономное проживание семей обеспечивается разнесением квартир по этажам. Нижняя квартира имеет придомовую территорию с выходом из гостиной и спальни, а также уютный дворик между домом и каменной стеной соседнего участка. При этом верхнее жилище обеспечено просторной двухуровневой террасой (включая обзорную площадку на собственной крыше).

Стеклянные полупрозрачные навесы сообщают дому легкость, а волнистая мозаичная отделка фасадов словно перетекает с окружающего рельефа.

Дом в Мытищах, проект 2009
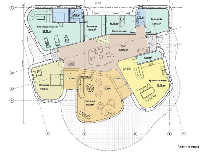
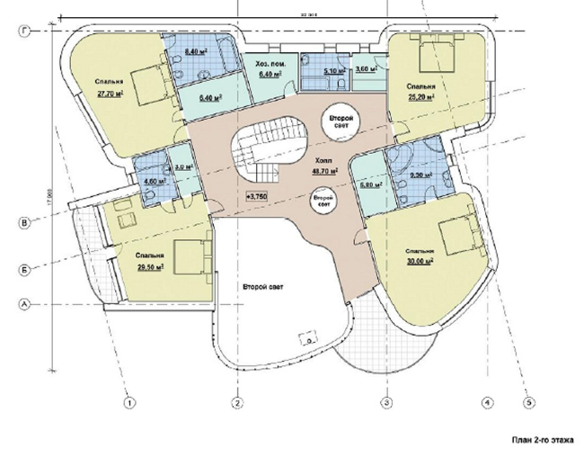
Проект дома в Мытищах, который предполагается построить на берегу Клязьмы, наследует от конкурсного проекта плановую схему: ядро двухсветной гостиной, облепленное криволинейными объемами спален, как лепестками. Изогнутые белые стены прорезаны округлыми окнами: это создает устойчивую ассоциацию с домиком хоббита. Что неплохо, потому что сообщает лишенным углов формам необходимую толику уюта. Один из лепестков – тоже двусветный, это стеклянный атриум с гигантским изогнутым панорамным окном. Он возвращает нас от сказок к современности. А от турецкой виллы дому достались значительные выносы кровель и обилие балконов.

Что интересно – мытищинский дом сочетает биоморфность вызывающе-изогнутых форм с некоторой сдержанностью общего колорита и даже мягкостью абрисов. Что отличает его от турецкой виллы. Там, под ярким солнцем, все было цветнее (красочность достигалась пестрой мозаикой), а линии кровель – резче, костистее, может быть, энергичнее, чем здесь. Сдержанность подмосковного колорита как будто бы наложила свой отпечаток на футуристические формы: окна стали округлыми, кровли – овальными, козырьки получили пучки тонких опор, чем-то напоминающие среднерусские лесные заросли.

Так что хотя дом пока и нельзя переносить с места на место, это не беда – прекрасно можно перенести архитектурную тему. Которая в процессе перемещения существенно трансформируется, отвечая природному окружению, а значит – приспосабливаясь к контексту. Ведь надо признать, что, несмотря на непривычность форм, старательно избегающих всего традиционного, мытищинский дом на поверку оборачивается вполне подмосковным.
Любопытно наблюдать, как фантастический проект находит для себя вполне «земные» воплощения. И еще более интересно, что существуют заказчики, которых экстравагантность биологической и футуристической архитектуры привлекает настолько, что они хотят построить такие дома для себя.

Дом будущего (конкурсный проект) © ПТАМ Виссарионова
Дом будущего (конкурсный проект) © ПТАМ Виссарионова
Дом будущего (конкурсный проект) © ПТАМ Виссарионова
Дом будущего (конкурсный проект) © ПТАМ Виссарионова
Дом будущего (конкурсный проект) © ПТАМ Виссарионова
Дом будущего (конкурсный проект) © ПТАМ Виссарионова
Дом будущего (конкурсный проект) © ПТАМ Виссарионова
Дом будущего (конкурсный проект) © ПТАМ Виссарионова
Вилла в Турции. Проект 2004-2005 гг. Строительство 2006-2007 гг.
Вилла в Турции. Проект 2004-2005 гг. Строительство 2006-2007 гг.
Вилла в Турции. Проект 2004-2005 гг. Строительство 2006-2007 гг.
Вилла в Турции. Проект 2004-2005 гг. Строительство 2006-2007 гг.
Гостевой домик в Турции. Проект 2009 г.
Гостевой домик в Турции. Проект 2009 г.
Гостевой домик в Турции. Проект 2009 г.
Гостевой домик в Турции. Проект 2009 г.
Дом-раковина в Мытищах. 2008 г.
Дом-раковина в Мытищах. 2008 г.
Дом-раковина в Мытищах. 2008 г. Атриум и кухня-столовая.
Дом-раковина в Мытищах. 2008 г. Атриум и кухня-столовая.
Дом-раковина в Мытищах. 2008 г.
Дом-раковина в Мытищах. 2008 г.
Дом-раковина в Мытищах. 2008 г.
Дом-раковина в Мытищах. 2008 г.
Дом-раковина в Мытищах. 2008 г.
Дом-раковина в Мытищах. 2008 г.
Дом-раковина в Мытищах. 2008 г. План 1 этажа
Дом-раковина в Мытищах. 2008 г. План 1 этажа
Дом-раковина в Мытищах. 2008 г. План 2 этажа
Дом-раковина в Мытищах. 2008 г. План 2 этажа
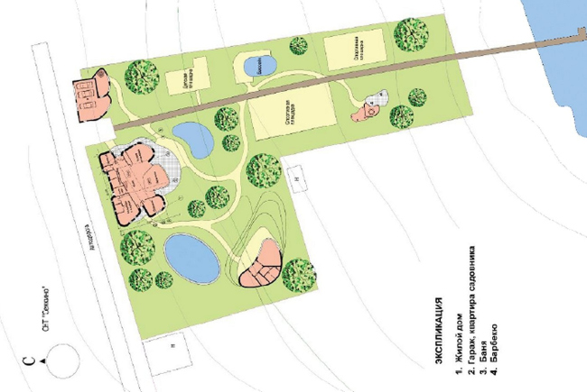
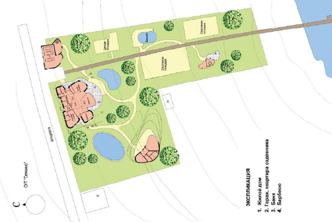
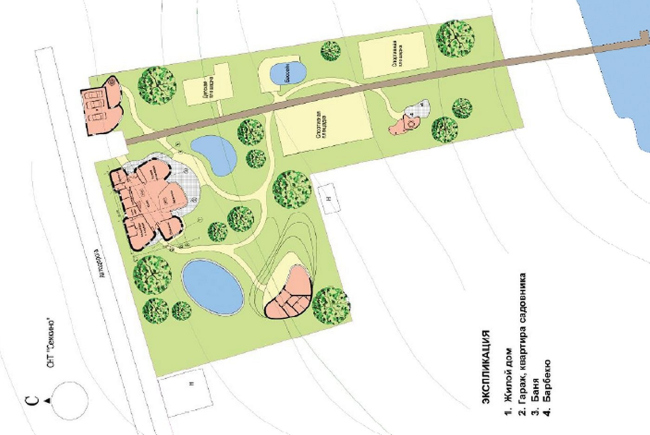
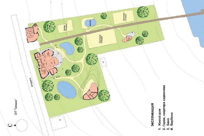
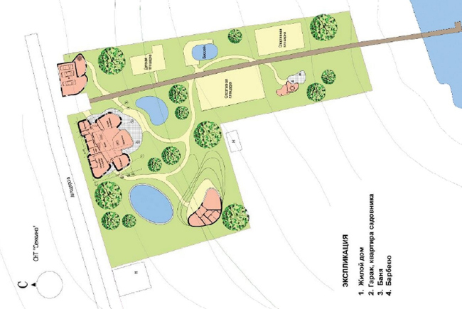
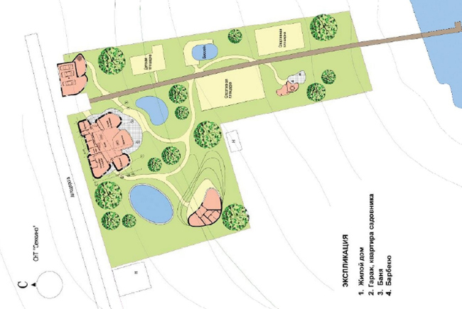
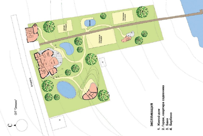
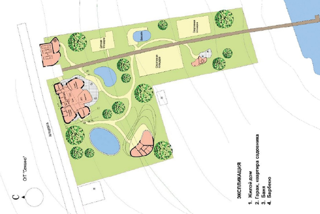
Дом-раковина в Мытищах. 2008 г. Генплан
Дом-раковина в Мытищах. 2008 г. Генплан