Размещено на портале Архи.ру (www.archi.ru)

22.12.2008

В поисках утраченного времени

Анатолий Белов
Объект:
Архитектурно-градостроительная концепция реконструкции площади Ленина в Серпухове
Адрес:
Россия, Серпухов.
Архитектор:
Илья Уткин
Мастерская:
Студия Уткина
Авторский коллектив:
Илья Уткин, ...

Проект реконструкции Гостиного двора в Серпухове Ильи Уткина.

Макет
Макет

История Гостиного двора, расположенного на площади Ленина в Серпухове (до революции – Торговая площадь) сложна, запутана, и полна драматических событий, как, впрочем, история любого памятника архитектуры в нашей стране. Возведен этот Гостиный двор был в середине XIX века по проекту архитектора Д. Ф. Борисова. Здание было выполнено в духе позднего неоклассицизма, его облик отличался монументальностью и строгостью. В 1910 году серпуховской Гостиный двор был реконструирован архитектором Аппельротом, при этом его внешний вид изменился до неузнаваемости – неоклассические фасады сменились фасадами в стиле «русской кирпичной неоготики». Столь радикальная перестройка Гостиного двора была обусловлена необходимостью расширения площадей, ну, и, разумеется, вкусы заказчика сыграли здесь немаловажную роль. К тому же, судя по всему, сам Аппельрот хотел, чтобы новая архитектура Гостиного двора эстетически перекликалась с архитектурой стоявшей напротив кирпичной церкви Александра Невского 1854 года. Почему я говорю о церкви Александра Невского в прошедшем времени? Ее снесли в 1920-е годы. Сам Гостиный двор в советское время неоднократно перестраивался и, как отметил сам Илья Уткин в пояснительной записке к своему проекту, «варварски ремонтировался». Таким образом, Гостиный двор в теперешнем своем виде лишь бледная тень оригинала 1910ого – утеряны многие архитектурные детали фасада, разрушены подлинные стены. Да и окружающая площадь за двести двадцать лет (она проектировалась еще в 1783 году) утратила свое былое функциональное назначение – раньше там находились торговые ряды, а сегодня она представляет собой скорее парк с круговой развязкой автотранспорта (в послевоенные годы по периметру площади было организовано круговое транспортное движение).

В той же пояснительной записке к проекту Илья Уткин пишет: «Сейчас снос архитектуры, имеющей историческую ценность – преступление… Сохранение исторического наследия – насущная необходимость сегодняшнего дня». Эта фраза очень точно характеризует его подход к архитектуре вообще. Все его творчество последних лет, как мне кажется, нацелено на то, чтобы воскресить в памяти людей образы утраченного, побудить их к размышлениям о ценности архитектурного памятника. Вообще, в моем представлении, архитектура Ильи Уткина – это воспоминание. В ней есть что-то от сна. Она холодная, довольно мрачная, в ней ощущается какая-то отстраненность и меланхолия. И вместе с тем она на удивление трогательна и благородна. Илья Уткин своего рода рыцарь современной отечественной архитектуры.

Кажется, он единственный архитектор, который ставит задачу сохранения наследия выше личных амбиций. Ведь в его проекте реконструкции Гостиного двора в Серпухове не содержится практически никакого авторского высказывания. В нем нет ни единого намека на самовыражение. Это пример аутентичного восстановления памятника по оригинальным чертежам и старым фотографиям – за основу в данном случае брался неоготический проект Аппельрота 1910 года, поскольку большинство материалов по неоклассическому проекту Борисова 1845 года утеряно.

Правда, в своем проекте Илья Уткин предлагает на фундаменте разрушенной церкви Александра Невского построить новую часовню вместо того, чтобы проводить научную реставрацию упомянутого памятника. Но это связано с тем, что для осуществления грамотной научной реставрации церкви Александра Невского не хватает материалов – в архивах автору удалось обнаружить только «несколько мутных фотографий».

Илья Уткин также предполагает реконструировать благоустройство самой площади Ленина, а именно, сделать ее более привлекательной для отдыха жителей и туристов путем размещения в ее центральной части объектов культурного и развлекательно-туристического характера, вывести транзитный транспорт с площади. Что касается последнего пункта, то в качестве одного из решений этой проблемы автор видит строительство подземной автостоянки на 630 машиномест под площадью.

Под той же площадью Илья Уткин спроектировал многофункциональный комплекс – попасть туда можно будет через прямоугольное заглубление перед историческим фасадом Гостиного двора, в которое с отметки площади спускается парадная лестница.

Илья Уткин вернул былой облик фасадам Гостиного двора, вместе с тем полностью переделав существующие планировки этого здания и увеличив его площадь, – одним словом, угодил и историкам, и заказчикам. Кто в наше время еще так умеет?

Мне кажется, было бы здорово, если бы Илье Уткину доверили реконструировать памятники в центре Москвы, при его-то чутком отношении к наследию. И жаль, что ему не доверили этого раньше – уверен, будь он во главе этого процесса, мы бы не потеряли так много.

PS. Из пояснительной записки:
«По решению Советов депутатов г. Серпухова храм Александра Невского необходимо восстановить.
И в наше проектное предложение входит план восстановления церкви, разрушенной в двадцатых годах. Но на самом деле это решение требует серьёзного анализа. Во-первых для научной реставрации нет необходимых материалов. В архивах можно найти только несколько мутных фотографий. И постройка новодела  не будет иметь никакой исторической ценности. Во-вторых – композиционно место для храма не совсем удачное. И в третьих – нужен ли вообще торгово-развлекательному центру города храм-новодел, когда вокруг столько подлинных церквей нуждающихся во внимании и реставрации. Я считаю, что можно построить часовню над фундаментом разрушенного храма». Илья Уткин

Макет
Макет
Панорама
Панорама
Разрез 2-2
Разрез 2-2
Разрез
Разрез
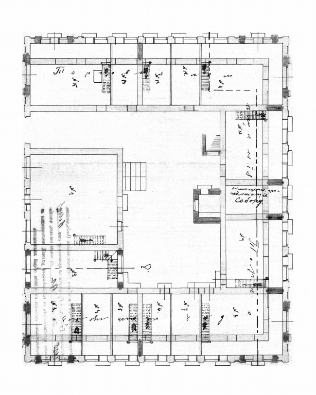
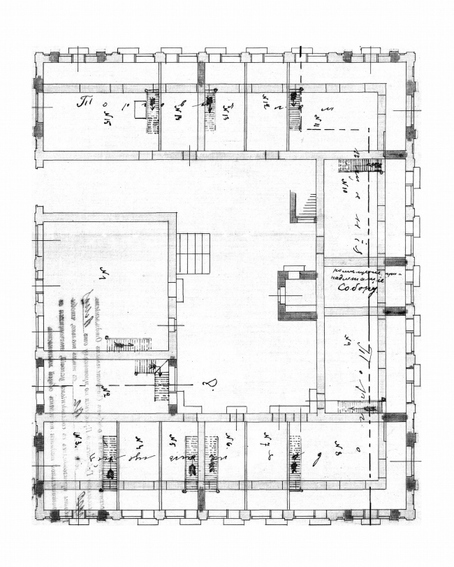
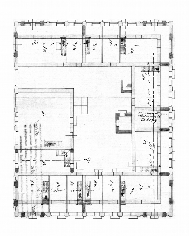
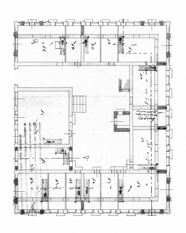
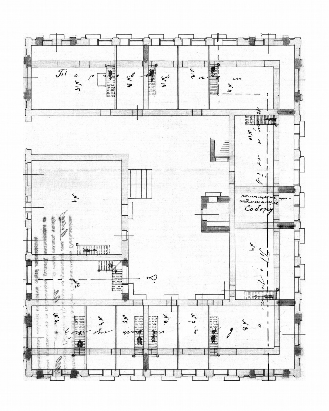
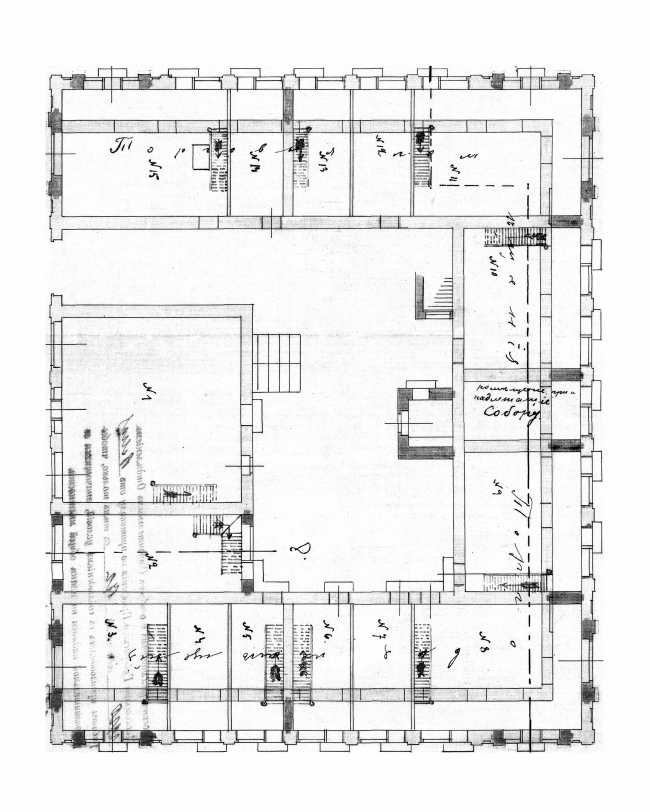
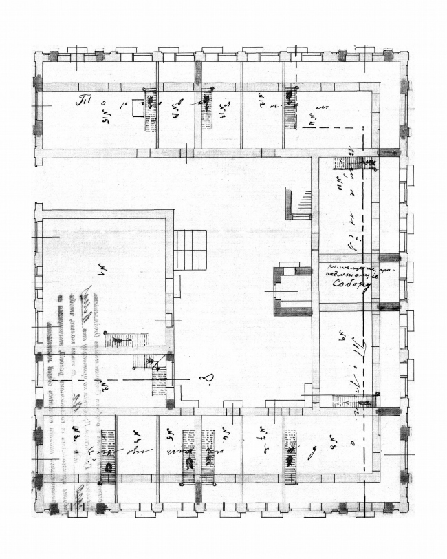
10-1 и первый этаж
10-1 и первый этаж
Генплан существующей площади
Генплан существующей площади
Фрагмент плана Серпухова 1826 г.
Фрагмент плана Серпухова 1826 г.
Старая фотография площади
Старая фотография площади
Церковь Александра Невского
Церковь Александра Невского
Фасад архтектора Аппельрота
Фасад архтектора Аппельрота