Размещено на портале Архи.ру (www.archi.ru)

03.12.2008

Звезда морей

Анна Герасименко, Юлия Тарабарина
Объект:
Жилой дом «Stella Maris»
Адрес:
Россия, Санкт-Петербург. Крестовский остров, пр. Динамо, 4
Мастерская:
Евгений Герасимов и партнеры
Авторский коллектив:
руководитель авторского коллектива – Герасимов Е.Л., главный архитектор проекта – Петрова З.В., архитекторы – Бахорина И.Г., Кузнецова Т.В., Серебрякова Я.Е. главный конструктор – Резниченко М.Я., руководитель группы – Харинская Т.С., конструктор – Илиодорова М.П.

Дом Stella Maris, завершенный в прошлом году и отмеченный несколькими наградами, сейчас выдвинут на премию Дом года 2009 от Петербурга. Рассматривая этот дом, мы пришли к выводу, что Петр I, вероятно, был бы доволен таким образцом петербургского контекстуализма.

Жилой дом «Stella Maris». Постройка, 2007. Фотография © А. Народицкий
Жилой дом «Stella Maris». Постройка, 2007. Фотография © А. Народицкий

Идя от Петропавловской крепости к Стрелке можно наблюдать несколько пришвартованных к набережной парусников, как правило, с ресторанами внутри. Когда-то, вероятно, таких кораблей вдоль Невы стояло много – теперь это «ретро». Но картина все равно для города характерная. Эту исторически-типичную для Питера картину можно разглядеть в силуэте клубного дома на набережной Малой Невки дома, известного как Stella Maris. Дом спроектирован и построен Евгением Герасимовым, а в прошлом году он получил «серебро» на фестивале Зодчество.

Самый характерный и узнаваемый элемент архитектуры этого дома – большие дугообразные «козырьки» над застекленными пентхаусами четырех корпусов. Они-то и делают силуэт здания необычным, намекая на что-то такое морское на рейде. В унисон с архитектурным образом попадает и название – Stella Maris в переводе с латыни означает «Морская звезда». Поэтичное имя встречается в широком диапазоне дисциплин от биологии до мифологии, но еще так называют и корабли. Получается дом с романтичным морским названием, немного похожий на корабль и перекликающийся (очень отдаленно) с кораблями, пришвартованными у набережных Петербурга.

Надо сказать, что дом-корабль – образ для современной архитектуры настолько популярный, что не кривя душой можно предположить, что процентов 10 (а то и больше) зданий когда-нибудь да сравнивали с кораблями. Но обычно для сравнения годится современный корабль, какой-нибудь океанский лайнер, который сам похож на дом, и взаимодействие образов происходит, условно говоря, в обе стороны: многие современные дома похожи на современные корабли, а многие современные корабли похожи на дома… И тема эта стала, не скроем, почти банальностью. Другое дело – парусник. С ним и сравнить не стыдно, не так много домов, похожих на реликтовый корабль.

А здесь – намек на корабль какого-нибудь петровского времени перекликается с другим намеком – на столь любимую Петром Голландию, а точнее, на ряды кирпичных домов с острыми крышами, выстроенными вдоль ее набережных. Ряды длинные, дома похожие, крыши – заостроенные. Кирпич чередуется с камнем. У Stelle Maris все похоже, но не так: крыши не двухскатные, а как бы «парусные», то есть голландский дом петровского (к примеру) времени сросся с голландским же кораблем того же времени. Но все это – намеком. Никаких буквальных цитат и псевдо-Амстердамов: впрочем, согласимся, что было бы странно взгромоздить на дом корабельную мачту даже ради того, чтобы вспомнить отца-основателя города. Так что дом на Малой Невке вполне может быть понят как довольно-таки узнаваемый образец рефлексии на тему любимых питерских тем, но не более того – это лишь одна сторона архитектуры здания.

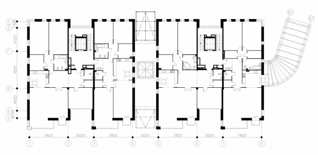
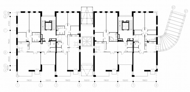
Ее вторая сторона очевидна – это современный клубный дом элит-класса. Он состоит из четырех похожих объемов, объединенных попарно и разделенных цезурой посередине. Сквозь вестибюль в первом этаже можно пройти насквозь от главного входа с проспекта Динамо к выходу на набережную и к частной пристани для яхт. Выше первого этажа расположены квартиры, их немного, как и положено в клубных домах, по две на этаже в каждой половинке.  Каждая такая квартира имеет свободную планировку, рассчитанную на вкус конкретного человека или семьи, и видовые террасы, полностью остекленные, с видом на реку и набережную напротив.

Отделка здания современна и разнообразна. На набережную выходят кирпичные плоскости и стеклянные выступы эркеров и балконов. Здесь все работает на уже замеченное сходство с голландской набережной: кирпич, обилие стекла, спокойный ритм и особенно – узкие вертикальные пропорции повторяющихся объемов. На дворовом фасаде больше Петербурга, чем Амстердама – здесь доминирует каменная облицовка со строгим, изображающим блоки верстовой кладки и от этого напоминающим классический руст рисунком. Речной фасад стеклянно-водно-кирпичный, дворовый фасад – каменный. Разнообразие фактур продолжается и в вестибюле. Здесь сочетаются мрамор и матовая плитка, бамбук и стекло, в мебели – плетеная солома и кожа.

Итак, дом, расположенный недалеко от моря, невелик, элитен, современен, и вызывает ассоциации минимум с двумя любимыми питерскими темами – голландскими увлечениями Петра Великого и кораблем (что по сути одна тема). Сюда подключается еще один «питерский» разговор – о набережных. В Петербурге, это все знают, набережных много, и исторически они застраивались «сплошной фасадой», как повелел император. Но Крестовский остров далеко от центральной части города, это когда-то дачное, а теперь парковое место и на нем набережных почти нет. Есть, правда, несколько фрагментов, и один из них расположен совсем рядом со Stella Maris – перед домом номер шесть начала XX века (существенно в течение этого века подпорченном). К этому фрагменту набережной пристроилась набережная нового клубного дома, добавляя свой кирпичик в дело окультуривания берегов Малой Невки. Может быть отсюда у архитекторов возникло желание разбить объем на четыре части – чтобы зрительно удлинить кусочек набережной, придать ему солидности. Так или иначе, а Петр I был бы доволен – такая застройка берегов Крестовского острова, по всей вероятности, пришлась бы ему по душе – она соблюдает и букву и дух введенных им правил.

Жилой дом «Stella Maris». Постройка, 2007. Фотография © А. Народицкий
Жилой дом «Stella Maris». Постройка, 2007. Фотография © А. Народицкий
Жилой дом «Stella Maris». Постройка, 2007. Фотография © А. Народицкий
Жилой дом «Stella Maris». Постройка, 2007. Фотография © А. Народицкий
Жилой дом «Stella Maris». Постройка, 2007. Фотография © А. Народицкий
Жилой дом «Stella Maris». Постройка, 2007. Фотография © А. Народицкий
Жилой дом «Stella Maris». Постройка, 2007. Фотография © А. Народицкий
Жилой дом «Stella Maris». Постройка, 2007. Фотография © А. Народицкий
Жилой дом «Stella Maris». Постройка, 2007. Фотография © А. Народицкий
Жилой дом «Stella Maris». Постройка, 2007. Фотография © А. Народицкий
Жилой дом «Stella Maris». Постройка, 2007. Фотография © А. Народицкий
Жилой дом «Stella Maris». Постройка, 2007. Фотография © А. Народицкий
Жилой дом «Stella Maris». Постройка, 2007. Фотография © А. Народицкий
Жилой дом «Stella Maris». Постройка, 2007. Фотография © А. Народицкий
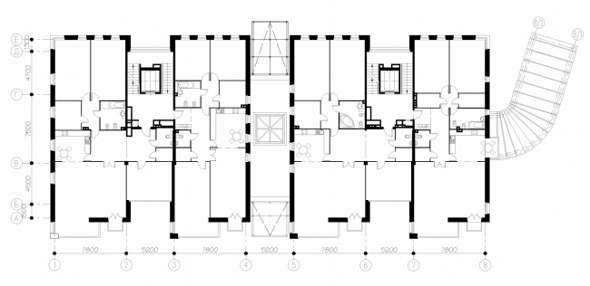
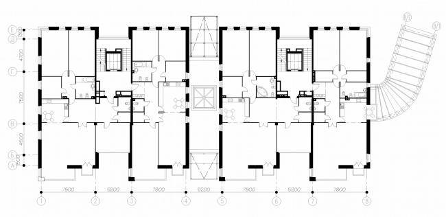
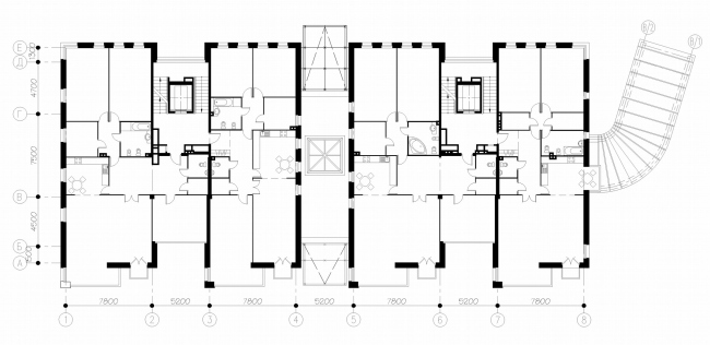
Жилой дом «Stella Maris». Постройка, 2007. План 1 этажа © Евгений Герасимов и партнеры
Жилой дом «Stella Maris». Постройка, 2007. План 1 этажа © Евгений Герасимов и партнеры
Жилой дом «Stella Maris». Постройка, 2007. Макет © Евгений Герасимов и партнеры
Жилой дом «Stella Maris». Постройка, 2007. Макет © Евгений Герасимов и партнеры