Размещено на портале Архи.ру (www.archi.ru)

06.02.2026

Свидетельница эпохи

Анна Старостина
Объект:
Вилла Беер – реставрация
Адрес:
Австрия, None, Вена.
Мастерская:
cp architektur

Вилла Беер, памятник венского модернизма, стала музеем и образовательным центром в результате реставрации и приспособления по проекту бюро cp architecture.

Один из главных памятников венского современного движения, или модернизма, вилла Беер была построена в районе Хитцинг, на юго-западе австрийской столицы, в 1929–1930 по проекту Йозефа Франка и Оскара Влаха. Заказчиками выступили Маргарета и Юлиус Бееры – благополучная еврейская семья, совладельцы фабрики по производству каучука, ценители изобразительного искусства и музыки.

Но уже через несколько лет после завершения строительства они потеряли свое положение и возможность содержать этот дом, а затем вынуждены были бежать от нацизма в США; одна из их дочерей, Элизабет, погибла в концлагере Малый Тростенец в 1941. Авторам проекта виллы тоже пришлось эмигрировать. Йозеф Франк уехал в Швецию в 1934, где стал ключевым для этой страны дизайнером текстиля, мебели, предметов интерьера. Оскар Влах в 1938 оказался в США, где также остался навсегда, хотя и не нашел профессионального признания: работал чертежником, с трудом сводя концы с концами. Поэтому вилла Беер ценна не только как архитектурное сооружение (охраняется государством с 1987), но и как свидетельница эпохи и даже исторический документ.

С начала нового века здание пустовало. В 2021 был создан «Фонд виллы Беер», который выкупил ее и начал, наконец, процесс ее тщательного изучения и трансформации в музей – не только архитектурный, но и исторический, рассказывающий о судьбах и жизни венских евреев. Реставрация и приспособление, которыми занималось бюро cp architektur во главе с Кристианом Прассером, обошлись в €10 млн.

За почти сто лет своего существования дом несколько раз перестраивался. Чтобы вернуть ему изначальную ясность пространственного решения, пришлось убрать поздние перегородки и закладывать оконные проемы. Так удалось полностью восстановить планировку жилых этажей. Практически вся оригинальная обстановка, тоже созданная Франком, была утрачена, но наполнять дом новыми предметами или копиями прежних не стали. А вот встроенную мебель, полы, камины, кухонный лифт для подачи блюд, защитные решетки и радиаторы тщательно отреставрировали, восполнив утраты. В некоторых случаях удалось даже привлечь тех же подрядчиков, которые участвовали когда-то в строительстве виллы. Обновленные помещения можно арендовать под разного рода мероприятия; в фонде надеются, что дом опять станет важным культурным центром, как и задумывали когда-то Бееры.

В двух цокольных уровнях, сохранив в целом их устройство, разместили все необходимые музею функциональные зоны: фойе, сувенирный магазин, гардероб, административные и образовательные помещения. На террасе гостиной организована экспозиция материалов из архива виллы.

Мезонин теперь занят гостевыми комнатами с кухней: они предназначены в первую очередь для участников резидентской программы музея, но доступны и для всех желающих переночевать в вилле Беер. В их образцовом, стилизованном под середину XX века оформлении использованы разработанные Йозефом Франком предметы мебели и ткани, которые до сих пор производит шведская компания Svenskt Tenn.

Много внимания также уделено прилегающему саду, который изначально был значимой частью замысла Франка. Ландшафтные архитекторы Auböck + Kárász попытались сохранить все старые деревья, но две белые акации прямо перед виллой оказались поражены грибком, и пришлось заменить их максимально похожими. Кроме того, изначально сад был почти в два раза больше, поэтому с внутренней стороны ограды установили зеркальные панели, иллюзорно расширяющие его пространство.

Музей откроется 8 марта 2026, но на его сайте уже сейчас можно подробно ознакомится с программой экскурсий, научных, культурных и образовательных мероприятий, а также больше узнать об истории виллы и процессе ее реставрации.

Вилла Беер – реставрация
Вилла Беер – реставрация
Фотография © Hertha Hurnaus / предоставлена a b c works
Вилла Беер – реставрация
Вилла Беер – реставрация
Фотография © Hertha Hurnaus / предоставлена a b c works
Вилла Беер – реставрация
Вилла Беер – реставрация
Фотография © Hertha Hurnaus / предоставлена a b c works
Вилла Беер – реставрация Фотография © Hertha Hurnaus / предоставлена a b c works
Вилла Беер – реставрация
Фотография © Hertha Hurnaus / предоставлена a b c works
Вилла Беер – реставрация Фотография © Hertha Hurnaus / предоставлена a b c works
Вилла Беер – реставрация
Фотография © Hertha Hurnaus / предоставлена a b c works
Вилла Беер – реставрация Фотография © Stefan Huger / предоставлена a b c works
Вилла Беер – реставрация
Фотография © Stefan Huger / предоставлена a b c works
Вилла Беер – реставрация Фотография © Stefan Huger / предоставлена a b c works
Вилла Беер – реставрация
Фотография © Stefan Huger / предоставлена a b c works
Вилла Беер – реставрация Фотография © Stefan Huger / предоставлена a b c works
Вилла Беер – реставрация
Фотография © Stefan Huger / предоставлена a b c works
Вилла Беер – реставрация Фотография © Stefan Huger / предоставлена a b c works
Вилла Беер – реставрация
Фотография © Stefan Huger / предоставлена a b c works
Вилла Беер – реставрация Фотография © Stefan Huger / предоставлена a b c works
Вилла Беер – реставрация
Фотография © Stefan Huger / предоставлена a b c works
Вилла Беер – реставрация Фотография © Stefan Huger / предоставлена a b c works
Вилла Беер – реставрация
Фотография © Stefan Huger / предоставлена a b c works
Вилла Беер – реставрация Фотография © Stefan Huger / предоставлена a b c works
Вилла Беер – реставрация
Фотография © Stefan Huger / предоставлена a b c works
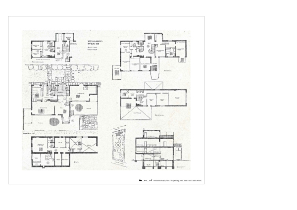
Вилла Беер в Вене – историческое фото 1930 г. Фотография © Julius Scherb / предоставлена a b c works
Вилла Беер в Вене – историческое фото 1930 г.
Фотография © Julius Scherb / предоставлена a b c works
Вилла Беер в Вене – историческое фото 1930 г. Фотография © Julius Scherb / предоставлена a b c works
Вилла Беер в Вене – историческое фото 1930 г.
Фотография © Julius Scherb / предоставлена a b c works
Вилла Беер в Вене – историческое фото 1930 г. Фотография © Julius Scherb / предоставлена a b c works
Вилла Беер в Вене – историческое фото 1930 г.
Фотография © Julius Scherb / предоставлена a b c works
Вилла Беер в Вене – историческое фото 1930 г. Фотография © Julius Scherb / предоставлена a b c works
Вилла Беер в Вене – историческое фото 1930 г.
Фотография © Julius Scherb / предоставлена a b c works
Вилла Беер в Вене – историческое фото 1930 г. Фотография © Julius Scherb / предоставлена a b c works
Вилла Беер в Вене – историческое фото 1930 г.
Фотография © Julius Scherb / предоставлена a b c works
Вилла Беер в Вене – историческое фото 1930 г. Фотография © Julius Scherb / предоставлена a b c works
Вилла Беер в Вене – историческое фото 1930 г.
Фотография © Julius Scherb / предоставлена a b c works
Вилла Беер в Вене – историческое фото 1930 г. Фотография © Julius Scherb / предоставлена a b c works
Вилла Беер в Вене – историческое фото 1930 г.
Фотография © Julius Scherb / предоставлена a b c works
Вилла Беер в Вене – историческое фото 1930 г. Фотография © Julius Scherb / предоставлена a b c works
Вилла Беер в Вене – историческое фото 1930 г.
Фотография © Julius Scherb / предоставлена a b c works
Вилла Беер – реставрация
Вилла Беер – реставрация
Фотография © Hertha Hurnaus / предоставлена a b c works
Вилла Беер – реставрация
Вилла Беер – реставрация
Фотография © Hertha Hurnaus / предоставлена a b c works
Вилла Беер – реставрация
Вилла Беер – реставрация
Фотография © Hertha Hurnaus / предоставлена a b c works
Вилла Беер – реставрация Фотография © Hertha Hurnaus / предоставлена a b c works
Вилла Беер – реставрация
Фотография © Hertha Hurnaus / предоставлена a b c works
Вилла Беер – реставрация Фотография © Hertha Hurnaus / предоставлена a b c works
Вилла Беер – реставрация
Фотография © Hertha Hurnaus / предоставлена a b c works
Вилла Беер – реставрация Фотография © Hertha Hurnaus / предоставлена a b c works
Вилла Беер – реставрация
Фотография © Hertha Hurnaus / предоставлена a b c works
Вилла Беер – реставрация
Вилла Беер – реставрация
Фотография © Stefan Huger / предоставлена a b c works
Вилла Беер – реставрация
Вилла Беер – реставрация
Фотография © Hertha Hurnaus / предоставлена a b c works
Вилла Беер – реставрация
Вилла Беер – реставрация
Фотография © Stefan Huger / предоставлена a b c works
Вилла Беер – реставрация
Вилла Беер – реставрация
Фотография © Stefan Huger / предоставлена a b c works
Вилла Беер – реставрация
Вилла Беер – реставрация
Фотография © Stefan Huger / предоставлена a b c works
Вилла Беер – реставрация
Вилла Беер – реставрация
Фотография © Stefan Huger / предоставлена a b c works
Вилла Беер – реставрация Фотография © Stefan Huger / предоставлена a b c works
Вилла Беер – реставрация
Фотография © Stefan Huger / предоставлена a b c works
Вилла Беер – реставрация Фотография © Stefan Huger / предоставлена a b c works
Вилла Беер – реставрация
Фотография © Stefan Huger / предоставлена a b c works
Вилла Беер – реставрация Фотография © Stefan Huger / предоставлена a b c works
Вилла Беер – реставрация
Фотография © Stefan Huger / предоставлена a b c works
Вилла Беер – реставрация Фотография © Stefan Huger / предоставлена a b c works
Вилла Беер – реставрация
Фотография © Stefan Huger / предоставлена a b c works
Вилла Беер – реставрация Фотография © Stefan Huger / предоставлена a b c works
Вилла Беер – реставрация
Фотография © Stefan Huger / предоставлена a b c works
Вилла Беер – реставрация Фотография © Stefan Huger / предоставлена a b c works
Вилла Беер – реставрация
Фотография © Stefan Huger / предоставлена a b c works
Вилла Беер – реставрация Фотография © Stefan Huger / предоставлена a b c works
Вилла Беер – реставрация
Фотография © Stefan Huger / предоставлена a b c works
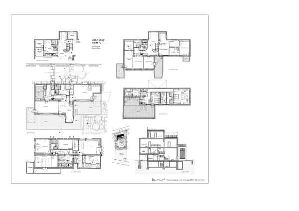
Вилла Беер – реставрация
Вилла Беер – реставрация
© cp architecture / предоставлено a b c works
Вилла Беер – реставрация © cp architecture / предоставлено a b c works
Вилла Беер – реставрация
© cp architecture / предоставлено a b c works
Вилла Беер – реставрация © cp architecture / предоставлено a b c works
Вилла Беер – реставрация
© cp architecture / предоставлено a b c works
Вилла Беер – реставрация © cp architecture / предоставлено a b c works
Вилла Беер – реставрация
© cp architecture / предоставлено a b c works
Вилла Беер – реставрация © cp architecture / предоставлено a b c works
Вилла Беер – реставрация
© cp architecture / предоставлено a b c works
Вилла Беер – реставрация © cp architecture / предоставлено a b c works
Вилла Беер – реставрация
© cp architecture / предоставлено a b c works
Вилла Беер – реставрация © cp architecture / предоставлено a b c works
Вилла Беер – реставрация
© cp architecture / предоставлено a b c works
Вилла Беер – реставрация © cp architecture / предоставлено a b c works
Вилла Беер – реставрация
© cp architecture / предоставлено a b c works
Вилла Беер – реставрация © cp architecture / предоставлено a b c works
Вилла Беер – реставрация
© cp architecture / предоставлено a b c works
Вилла Беер – реставрация © cp architecture / предоставлено a b c works
Вилла Беер – реставрация
© cp architecture / предоставлено a b c works
Вилла Беер – реставрация © cp architecture / предоставлено a b c works
Вилла Беер – реставрация
© cp architecture / предоставлено a b c works
Вилла Беер – реставрация © cp architecture / предоставлено a b c works
Вилла Беер – реставрация
© cp architecture / предоставлено a b c works