Размещено на портале Архи.ру (www.archi.ru)

30.01.2026

Бруталистский гезамткунстверк

Анна Старостина
Объект:
Отель Fairmont Golden Prague
Адрес:
Чехия, None, Прага.
Мастерская:
TaK Architects

TaK Architects реконструировали отель InterContinental, построенный в центре Праги в 1960-е, добавив новые функции и развив идею синтеза искусств.

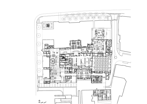
Пятизвездочный отель InterContinental на 320 номеров в центральном микрорайоне Прага 1, на Парижской улице, был построен в 1968-1974 по проекту архитектора Карела Филсака. Поскольку изначально проект осуществлялся в партнерстве с американской компанией Pan Am, уровень сразу планировался очень высокий, с претензией на демонстрацию лучшего в архитектуре и искусстве Чехии. В 1990-е значимое бруталистское здание пережило неудачную реконструкцию, затем меняло владельцев. К 2020 оно так и не получило официальный охранный статус и находилось в запущенном состоянии.

Изменили ситуацию частные инвесторы, которые решили вернуть важный по их мнению объект городу. Конкурс на проект реконструкции выиграло бюро TaK Architects во главе с Мареком Тихим, которое специализируется именно на работе с историческими зданиями (мы писали об их проекте приспособления под офисный центр здания Электрических предприятий) и ищет подходы к архитектуре послевоенного модернизма. Занявшись гостиницей, архитекторы ориентировались на концепцию гезамткунстверка, пытаясь воссоздать заново и вывести на современный уровень синкретический подход Карела Филсака.

В результате пятилетней реконструкции основная, гостиничная, функция была сохранена: за нее теперь отвечает сеть Fairmont Hotels & Resorts. Само же здание подверглось серьезной трансформации. Были пристроены открытый бассейн, дополнительное крыло ресторана и новая конференц-зона. В сторону набережной реки Влтавы комплекс теперь открывается зеленым общественным пространством, где особенно заметен новый стеклянный объем павильона для современного искусства. А на первом этаже самого отеля устроено еще одно арт-пространство, доступное для всех: выставки здесь будут курировать известные художники и дизайнеры.

В первоначальном проекте гостиницы важную роль играли монументальное искусство, работы художников и дизайнеров. К сожалению, из-за плохого состояния многие из них пришлось воссоздавать. Например, были заменены 48 из 52 керамических вставок на фасаде, автором которых выступил скульптор Жбынек Секал. В других зонах стеклянные светильники, деревянные панно, витражи и скульптурные объекты частично удалось отреставрировать, а частично пришлось создавать заново и дополнять заказными работами современных чешских авторов. Всего были привлечены 20 художественных студий: сохранить такое тесное сотрудничество с представителями других видов искусства было очень важно для Марека Тихого. Одним из примеров служит инсталляция Яна Куклы «Небеса», состоящая из 600 светящихся стеклянных стержней.

Еще одним важным пунктом трансформации модернистского здания стало внедрение современных «устойчивых» технологий: установлен геотермальный насос, что позволило задействовать тепловую энергию речной воды, эффективно используются излишки тепла, выделяемые прачечной, кухней и спа-зоной, дождевая и сточная вода собирается и используется повторно, в частности, для полива растений, а элементы вертикального озеленения способствуют созданию комфортного микроклимата.

Следующей частью амбициозного проекта должна стать реконструкция небольшой площади перед отелем с противоположной от реки стороны, которая позволит теснее вписать его в пространство города. В начале 2026-го жюри, членом которого стал и сам Марек Тихий, выберет победителя из шестерки финалистов международного конкурса RaumScape.

Материалы предоставлены коммуникационным агентством LINKA.

Отель Fairmont Golden Prague
Отель Fairmont Golden Prague
Фотография © BoysPlayNice
Отель Fairmont Golden Prague
Отель Fairmont Golden Prague
Фотография © BoysPlayNice
Отель Fairmont Golden Prague
Отель Fairmont Golden Prague
Фотография © BoysPlayNice
Отель Fairmont Golden Prague
Отель Fairmont Golden Prague
Фотография © BoysPlayNice
Отель Fairmont Golden Prague
Отель Fairmont Golden Prague
Фотография © BoysPlayNice
Отель Fairmont Golden Prague Фотография © BoysPlayNice
Отель Fairmont Golden Prague
Фотография © BoysPlayNice
Отель Fairmont Golden Prague Фотография © BoysPlayNice
Отель Fairmont Golden Prague
Фотография © BoysPlayNice
Отель Fairmont Golden Prague Фотография © BoysPlayNice
Отель Fairmont Golden Prague
Фотография © BoysPlayNice
Отель Fairmont Golden Prague Фотография © BoysPlayNice
Отель Fairmont Golden Prague
Фотография © BoysPlayNice
Отель Fairmont Golden Prague
Отель Fairmont Golden Prague
Фотография © BoysPlayNice
Отель Fairmont Golden Prague
Отель Fairmont Golden Prague
Фотография © BoysPlayNice
Отель Fairmont Golden Prague
Отель Fairmont Golden Prague
Фотография © BoysPlayNice
Отель Fairmont Golden Prague
Отель Fairmont Golden Prague
Фотография © BoysPlayNice
Отель Fairmont Golden Prague Фотография © BoysPlayNice
Отель Fairmont Golden Prague
Фотография © BoysPlayNice
Отель Fairmont Golden Prague Фотография © BoysPlayNice
Отель Fairmont Golden Prague
Фотография © BoysPlayNice
Отель Fairmont Golden Prague Фотография © BoysPlayNice
Отель Fairmont Golden Prague
Фотография © BoysPlayNice
Отель Fairmont Golden Prague Фотография © BoysPlayNice
Отель Fairmont Golden Prague
Фотография © BoysPlayNice
Отель Fairmont Golden Prague
Отель Fairmont Golden Prague
Фотография © BoysPlayNice
Отель Fairmont Golden Prague
Отель Fairmont Golden Prague
Фотография © BoysPlayNice
Отель Fairmont Golden Prague Фотография © BoysPlayNice
Отель Fairmont Golden Prague
Фотография © BoysPlayNice
Отель Fairmont Golden Prague Фотография © BoysPlayNice
Отель Fairmont Golden Prague
Фотография © BoysPlayNice
Отель Fairmont Golden Prague
Отель Fairmont Golden Prague
Фотография © BoysPlayNice
Отель Fairmont Golden Prague
Отель Fairmont Golden Prague
Фотография © BoysPlayNice
Отель Fairmont Golden Prague Фотография © BoysPlayNice
Отель Fairmont Golden Prague
Фотография © BoysPlayNice
Отель Fairmont Golden Prague Фотография © BoysPlayNice
Отель Fairmont Golden Prague
Фотография © BoysPlayNice
Отель Fairmont Golden Prague Фотография © BoysPlayNice
Отель Fairmont Golden Prague
Фотография © BoysPlayNice
Отель Fairmont Golden Prague Фотография © BoysPlayNice
Отель Fairmont Golden Prague
Фотография © BoysPlayNice
Отель Fairmont Golden Prague
Отель Fairmont Golden Prague
Фотография © BoysPlayNice
Отель Fairmont Golden Prague Фотография © BoysPlayNice
Отель Fairmont Golden Prague
Фотография © BoysPlayNice
Отель Fairmont Golden Prague Фотография © BoysPlayNice
Отель Fairmont Golden Prague
Фотография © BoysPlayNice
Отель Fairmont Golden Prague
Отель Fairmont Golden Prague
© TaK Architects
Отель Fairmont Golden Prague © TaK Architects
Отель Fairmont Golden Prague
© TaK Architects
Отель Fairmont Golden Prague © TaK Architects
Отель Fairmont Golden Prague
© TaK Architects
Отель Fairmont Golden Prague © TaK Architects
Отель Fairmont Golden Prague
© TaK Architects
Отель Fairmont Golden Prague © TaK Architects
Отель Fairmont Golden Prague
© TaK Architects
Отель Fairmont Golden Prague © TaK Architects
Отель Fairmont Golden Prague
© TaK Architects
Отель Fairmont Golden Prague © TaK Architects
Отель Fairmont Golden Prague
© TaK Architects
Отель Fairmont Golden Prague © TaK Architects
Отель Fairmont Golden Prague
© TaK Architects
Отель Fairmont Golden Prague © TaK Architects
Отель Fairmont Golden Prague
© TaK Architects
Отель Fairmont Golden Prague © TaK Architects
Отель Fairmont Golden Prague
© TaK Architects