|
Концепцию жилого комплекса «Вэйвер» в Екатеринбурге питает прошлое Паркового района: чтобы сохранить память о льнопрядильной фабрике конца XIX века, бюро KPLN (Крупный план) обращается к теме текстиля и ткацкого ремесла. Главным выразительным приемом стали ленты из перфорированной атмосферостойкой стали – в российских жилых проектах материал в таких объемах, пожалуй, еще не использовался.
Жилой комплекс «Вэйвер» планируют строить в микрорайоне Парковый. Сегодня эта часть города считается скорее центральной, но проложенная в XIX веке улица Восточная обозначала предел Екатеринбурга. Квартал, с которым работает бюро KPLN, располагается между Уральским оптико-механическим заводом – к нему мы еще вернемся – и жилыми массивами, застроенными преимущественно в 1980-х годах жильем для его работников.  Как и его предшественник, «Вэйвер» отступает от Восточной улицы, благодаря чему перед ним образуется широкий озелененный бульвар с признаками площади, которую с запада фланкирует трехэтажный кирпичный дом. Фронт улицы «держит» 8-этажная секция – соединительное звено между 100-метровой башней и террасированным корпусом, набирающим высоту до 11 этажей. К Восточной улице высотные секции выходят торцевой частью, простираясь в глубину квартала и образуя камерный двор.  Такая посадка здания стала ответом на нормы инсоляции, а также желанием придать кварталу более четкие «городские» контуры. Террасированная секция фиксирует угол и поддерживает внутриквартальный проезд. Судя по рендерам застройщика, развитие участка не исключено, поэтому решение выглядит градостроительно оправданным. Отступ же от линии Восточной улицы снижает шумовое воздействие от автомобилей и позволяет не затеряться трехэтажному кирпичному зданию, которое было построено в 1927-1929 годах для рабочих ткацкой Ленинской фабрики.  Гением места, требующим внимания и сохранения, для архитекторов бюро «Крупный план» (KPLN) стала льнопрядильно-ткацкая фабрика. Она была основана в 1898 году братьями Иваном и Василием Макаровыми. После революции национализированному предприятию в 1923 году дали название «Свердловская льнопрядильная ткацкая фабрика имени Ленина». Сегодня на ее месте – Уральский оптико-механический завод. Несколько краснокирпичных корпусов разрозненно сохранилось – в том числе упомянутое выше трехэтажное здание. Тему текстиля, нитей и полотен архитекторы сделали ведущей в работе с фасадами. Главный прием – лента из перфорированной кортеновской стали, которая переплетается с вертикальными полосами из терракотовой клинкерной плитки или фактурной штукатурки. В месте пересечений за объемными элементами прячутся кондиционеры. В жилом проекте такое количество «рыжей стали» будет использовано, пожалуй, впервые.
  Кортеново-клинкерная нить оплетает весь комплекс, соединяя разные его части в единую пластическую композицию, у которой нет второстепенных ракурсов. При этом комплекс легко поддается «морфологическому» анализу. В контексте же темы текстиля башню можно сравнить, если не с веретеном, то с лопастью прялки – для этого она получилась достаточно стройной. «База» здания, которая соединяет две секции, соотносится по высоте со средой микрорайона. Ориентированные на юг террасы добавляют силуэту несколько ступеней, что только подчеркивает фасадный прием с лентами.    Двор «осваивает» всю кровлю паркинга и выходит за ее пределы до границ участка. В благоустройстве продолжает развиваться тема текстиля: геопластика и высокие клумбы помогут создать «складчатый» рельеф, узоры плетений будут считываться в мощении и переплетении тротуарных дорожек. Также планируется использовать плетение в оформлении уличной мебели и детской площадки, где канаты и веревочные конструкции зазвучат по-новому. Пространство двора расширит терраса – уединенное место, куда резиденты комплекса смогут подняться по лестнице.   Только 10% от всех квартир комплекса составят студии. Предусмотрены и необычные форматы: квартиры с местом под дровяной камин, террасами, панорамным остеклением. Паркинг в стилобате вмещает 60 автомобилей, а также ряд кладовых помещений площадью от 2 до 7 м 2. «Сквозной» дизайн коснется лобби и других мест общего пользования, где тема ткачества получит дополнительное развитие.  «Вэйвер», строительство которого предполагается завершить не позднее 2045 года, вероятно, не последний современный комплекс в районе. Как минимум, в генплане Екатеринбурга указано, что территория соседнего завода «Пневмостроймашина» в перспективе до 2045 будет отдана под зону смешанной и общественно-деловой застройки. Любопытно, насколько яркий материал и активная пластика смогут повлиять на концепции последующих проектов. Жилой квартал в Екатеринбурге© KPLN («Крупный план»)
Жилой квартал в Екатеринбурге. Генплан© KPLN («Крупный план»)
Жилой квартал в Екатеринбурге© KPLN («Крупный план»)
ЖК Вэйвер в Екатеринбурге. Общий план, зима© Девелоперская компания «Люди»
Жилой квартал в Екатеринбурге© KPLN («Крупный план»)
Жилой квартал в Екатеринбурге© KPLN («Крупный план»)Жилой квартал в Екатеринбурге© KPLN («Крупный план»)Жилой квартал в Екатеринбурге© KPLN («Крупный план»)
Жилой квартал в Екатеринбурге© KPLN («Крупный план»)
ЖК Вэйвер в Екатеринбурге. Общий план, вечер© Девелоперская компания «Люди»
ЖК Вэйвер в Екатеринбурге. Детали, подсветка© Девелоперская компания «Люди»
ЖК Вэйвер в Екатеринбурге. Общий план, день© Девелоперская компания «Люди»
ЖК Вэйвер в Екатеринбурге. Фасад, закат© Девелоперская компания «Люди»
ЖК Вэйвер в Екатеринбурге. Террасы, вечер© Девелоперская компания «Люди»
ЖК Вэйвер в Екатеринбурге. Терраса, закат© Девелоперская компания «Люди»
Жилой квартал в Екатеринбурге© KPLN («Крупный план»)
Жилой квартал в Екатеринбурге© KPLN («Крупный план»)
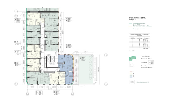
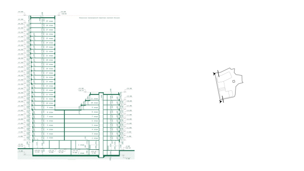
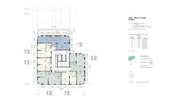
Схема плана 2 этажа, секция 2© KPLN («Крупный план»)Схема плана 10 этажа, секция 2© KPLN («Крупный план»)Схема плана 13-14 этажей, секция 1© KPLN («Крупный план»)Схема разреза 2-2© KPLN («Крупный план»)Схема разреза 3-3© KPLN («Крупный план»)Схема разреза 1-1© KPLN («Крупный план»)
|