Размещено на портале Архи.ру (www.archi.ru)

25.11.2025

Луч солнца золотого

Юлия Тарабарина
Объект:
Кванториум в Выксе
Адрес:
Россия, Выкса. Территория индустриально-туристского парка «Баташев»
Архитектор:
Андрей Гнездилов
Мастерская:
АБ «Остоженка»
Авторский коллектив:
А. Гнездилов, М. Мосешвили, П. Журавлев, А. Таирова, Д. Кодичев, А. Талаева, Е. Королев, А. Московченко, О. Каменская

Компактное кирпично-металлическое здание на территории растущего в Выксе «Шухов-парка», кажется, впитывает в себя солнечный свет, преобразует в желтые акценты внутри и вечером «отдает» теплотой золотистого света из окон. Серьезно, очень симпатичное получилось здание: и материальное, и легкое, причем легкость внутри, материальность снаружи. Форма в нем выстроена от функции – лаконично, но не просто. Изучаем.

«Квант ОМК» в Выксе это первый в стране детский технопарк с металлургическим уклоном. Его открыли недавно, в октябре, одновременно с  перенесенной шуховской водонапорной башней. Набор детей в группы начали с сентября.

Детские технопарки «кванториумы» строились по федеральной программе. В данном случае слово «технопарк» означает центр дополнительного внешкольного образования, оснащенный хорошим оборудованием. Их уже сотни, их создавали по всей стране; государство финансировало 50%, регион и его предприятия – вторую половину. Однако Объединенная металлургическая компания построила здание на собственные средства. ОМК вложила в строительство выксунского Кванториума около 720 млн рублей, и 120 млн рублей дала Нижегородская область – на деньги региона закупили оборудование для аудиторий. Надо сказать, в моей практике российского архитектурного журналиста это редкий случай, когда объем инвестиций открыто озвучивают, вместо того чтобы кокетливо скрывать... Такой подход заказчиков, ОМК и ее руководителя Анатолия Седых, вызывает уважение. 

И вот еще что. Здание меня очаровало намного больше «вживую», нежели когда я его видела на рендерах. Там было как-то немного картинок, возникали вопросы к подчеркнуто асимметричному расположению окон и сочетанию темного кирпича с черным металлом, которое как будто поднадоело. В реальности оказалось, что все окна – на своих местах, мотивированы функционально и практически, металл с кирпичом достаточно качественны, но главное – «домик» выксунского Кванториума компактен и сомасштабен человеку. Не большой и не маленький; современный, не экстра-хайтечный – но закат в качественном стекле его витража отражается идеально ровно.

Как-то он неожиданно уместен в неравномерном окружении будущего выксунского «Шухов-парка». Аккуратное, ненавязчивое, но уверенное в себе вкрапление. Все бы промышленные парки так рождались, с спокойной постепенностью. 

 
Андрей Гнездилов, АБ «Остоженка»
Нам предложили дизайн-код, основанный на заводских материалах: черная сталь и кирпич. Так что мы с самого начала сложили вместе два объема, буквально два кусочка пенопласта на макете, две половины. И добавили диагональ. Почему? Потому что объект – совсем небольшой, без диагонали он внутри, едва начавшись, сразу бы заканчивался. И даже с диагональю требовался какой-то прием, поскольку две половины как-то неубедительно соседствовали, «соскальзывали». Когда придумался зубчатый коридор – и все встало на свои места.
 
Я очень доволен реализацией; впечатления на месте оказались гораздо лучше моих ожиданий. При том что мы ни разу не ездили в Выксу на авторский надзор, все решали удаленно. Хорошо получился витраж, так, как и было у нас задумано: там стойки расположены не регулярной решеткой, а в свободном порядке. Поначалу мы это задумали с учетом отражения деревьев. Теперь деревьев нет, но пожалуй, получилось не хуже – растительность была «мусорной», зато в стекле отражается закат, и для него тоже больше уместно асимметричное построение сетки. 

Или, например, потолок коворкинга и козырька снаружи – визуально совпадают, а я знаю, как не просто просто добиться такой точности от строителей. Словом, думаю, удалось качественно реализовать.

И еще по вечерам он светится желтым светом изнутри. Почему? Потому что многие внутренние помещения, начиная с лестниц – и даже одна из круглых колонн во входном атриуме – покрашены в желтый цвет; он похож на кадмий желтый средний, но как будто чуточку мягче. Это усиливает солнечные блики, ну а ночью – теплоту свечения.

Вообще-то желтый цвет в школах и прочих детских зданиях используют часто, но трактуют его скорее прямолинейно – кажется, именно тут я впервые вижу такой, основанный скорее на рефлексах, подход. Желтого цвета немало, но он не заполняет собой все, а скорее «вспыхивает»: чередуется с белыми поверхностями, черным металлом, стеклом и сюжетами из ряда объемно-пространственного построения. 

Я бы сказала даже так: все многочисленные «Лучики» и «Солнышки» тут приобрели несколько иное, в большей степени пространственное измерение. Так что и – пусть банальное, но в данном случае уместное – определение «солнечный дом» приходит в голову и не отпускает. Авторам удалось не только впустить внутрь достаточно света, но и организовать с ним диалог, некую световую сценографию. 

Света много: здание просвечивается насквозь, через окна в стенах и кровле, витражи и стеклянные стены классов, выходящие в коридор. Иногда даже кажется, что какой-нибудь луч нет-нет да и проберется с южного фасада на северный. 

И это притом что здание – вовсе не «стеклянная призма», если смотреть снаружи. Снаружи не то чтобы много стекла, и – никакой детоориентированной цветистости, а, согласно дизайн-коду и современным тенденциям, натуральные материалы.

Здание, действительно, состоит из двух объемов, состыкованных продольной стороной и поставленных под углом ровно 10° друг к другу. Откуда взялся такой угол, сложно сказать, вероятнее всего пятно застройки определено участком и, в общем и целом, встраивается в сетку города, которая, в свою очередь, соотносится с прудом, сооруженным в конце XVIII века для завода.

Тем не менее северный кирпичный объем параллелен кирпичному же заводскому корпусу-руине, хотя и отличается от него по цвету, он не красно-терракотовый, а темно-коричневый. Впрочем, диалог возникает не только с руиной, но и с новой гостиницей «Шухов» от бюро Frontarchitecture, тоже кирпично-металлической, но с красным кирпичом... Два объема как сиамские близнецы, один смотрит в сторону пруда, другой – немного кивает гостинице. 

Они также соединены наподобие объемной головоломки – такие любили рисовать и лепить архитекторы АСНОВА в 1920-е, а позднее они были распространены в «пластмассовом» виде среди детских игрушек 1970-х и 1980-х. Фасады двух объемов строго различаются по материалу: один кирпичный, другой железный. Но черно-металлическая часть «прорезает» кирпичную, выходя на север консолью-телевизором. На самом деле какого-либо внутреннего проходящего сквозь здание и выходящего наружу объема, в сущности, нет: в консоли помещается конференц-зал и один крупный класс с витражами во всю стену, обращенными к шуховской башне, главной достопримечательности парка. 

Эффект создается пластикой объемов. У кирпичного – один скат кровли, что дает трапеции на торцах. Он как будто половинка здания, разрезанного продольно по оси конька. В повышенной части спрятаны конструкции техкровли; никаких «ящиков и ящичков» там нет, что правильно: здание невысокое, его кровлю будет видно и с дамбы, и из окон верхнего этажа гостиницы.

У металлического объема два ската и, с западной стороны, характерный силуэт барн-хауса с витражом, обведенным толстой металлической рамкой. Но объемы устроены так, что, как будто бы, особенно для взгляда пешехода, металлический пропускает некую «руку» – или, скорее, большую голову сквозь кирпичный объем, любопытствует, что там, с противоположной стороны... Верхняя плоскость этой «головы» расположена на одном уровне с коньком металлической кровли. Таким образом два материала визуально объединяются несколько «прочнее». 

Но дело не в этом. К чередованию кирпича, стекла и металла, к пятиугольным контурам торцов мы уже привыкли. Важно – как непринужденно они в данном случае сочетаются между собой, формируя единство образности и разнообразие ракурсов, демонстрируя линии пересечений, а в некоторых ракурсах образуя этакие «крылья», похожие на соединенные в полузамок пальцы руки.

Очевидно, что у каждой из двух фактур свои особенности, к примеру, для кирпича больше характерен живописный разброс разноформатных окон, а для металла регулярные полосы фальцевых стыков. Но и в кирпичной части находится место для регулярных вертикалей, уравновешенных столь же ровной штриховкой рельефных горизонтальных полос. 

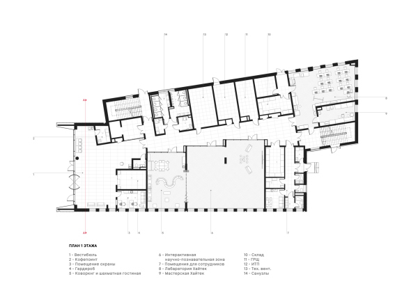
Если мы посмотрим на планы, то увидим, что северный кирпичный и односкатный объем включает в себя обе лестницы, восточную и западную – что неудивительно, самые асимметричные окна на лестницах и эта особенность «принадлежит» кирпичному объему. Стена коридора с северной стороны – прямая и параллельна внешней стене. «Ступени» возникают с южной стороны, где они параллельны внешней стене. Ступени не произвольны: в сущности, здесь в один ряд выстроены классы разной длины. 

Получается так, что благодаря диагональному коридору северный объем «тонет» или «растворяется» в более крупном пятне южного прямоугольника. В северной части на 2 этаже конференц-зал и большой класс-автоквантум, а на 1 этаже – такой же просторный металлоквантум: к слову сказать, именно она отмечена на фасадах кирпичными полосками.

Зато в южной части на 2 этаже – все профильные классы: IT-квантум, биоквантум, наноквантум, промробоквантум, а на первом – два зала для свободного общения: интерактивная научно-познавательная зона и коворкинг с шахматной гостиной. Это логичное распределение, так как южная стена лучше всего освещена. 

Благодаря ступенькам-выступам классов у коридора появляется дискретно-перспективное измерение: он то расширяется, то сужается. Совершенно не «коридорный» – если говорить об устоявшихся представлениях – получился коридор. 

Если смотреть с разных торцов, то он и ощущается по-разному – при взгляде с востока гладкий и широкий раструб. Впрочем, он энергично, «быстро» уходит вглубь, черная решетка на потолке обозначает границу северного объема, а помещенная чуть выше желтая «южная» решетка из линий, поставленных поперечно, подчеркивает и развивает тему столкновения, «угла встречи», проявляя пластическую сущность здания в его интерьере. Ну и делая пространство, определенно, не скучным, но и не декорированным втуне, а именно что осмысленным. 

Если смотреть с запада, от главного входа – то на нас смотрят желтые простенки: они останавливают взгляд, и очень удачно: на них размещены названия классов. 

Да, подчеркну, все интерьерные решения, все эти желтые колонны – тоже от архитекторов «Остоженки». Всегда бы так. 

Самые освещенные – торцы. Это касается и северо-восточного угла, здесь помогает витраж, пусть северный, но зато во всю стену; но, прежде всего, речь о входном атриуме. Его западная стена целиком стеклянная, и прекрасно отражает небо на закате.

Южные окна впускают дополнительный свет – и во второй половине дня, а дополнительные занятия, как правило, тогда и проходят, здесь будет особенно хорошо.

Атриум двусветный, но с северной стороны, там, где к нему приходит коридор – в нем выгорожен второй ярус «Коворкинга». Это очень приятное пространство. По вечерам, а это, как мы помним, самое активное время для Кванториума, оно будет освещено, без преувеличения, с четырех сторон: дверь из коридора стеклянная, стена со стороны атриума тоже, западная часть – часть входного витража. А северная стена – белая с широким скатом, отражает-аккумулирует солнечный свет. 

Словом, даже удивительно, как много архитектурного позитива, работающего на настроение, обнаруживается в этом, в общем-то, очень небольшом и не очень сложном, лаконичном здании для детей. Добавьте новое оборудование – а через стеклянные стены коридора неплохо видно, как его много, – получается прямо-таки искра позитива поважнее сохраненной, что впрочем тоже важно, шуховской водонапорной башни. Мы не знаем, кто, как именно и по каким программам будет учить будущих юных металлургов, рассчитывая задержать их в родном городе и привить интерес к профессии. Но, судя по атмосфере, заложенной в здание Кванториума и считываемой на уровне эмоций – начало положено. 
Кванториум в Выксе Фотография © Юлия Тарабарина, Архи.ру
Кванториум в Выксе
Фотография © Юлия Тарабарина, Архи.ру
Кванториум в Выксе Фотография © Юлия Тарабарина, Архи.ру
Кванториум в Выксе
Фотография © Юлия Тарабарина, Архи.ру
Кванториум в Выксе
Кванториум в Выксе
Фотография © Сергей Ясинский / предоставлена ОМК
Кванториум в Выксе Фотография © Юлия Тарабарина, Архи.ру
Кванториум в Выксе
Фотография © Юлия Тарабарина, Архи.ру
Кванториум в Выксе Фотография © Юлия Тарабарина, Архи.ру
Кванториум в Выксе
Фотография © Юлия Тарабарина, Архи.ру
Кванториум в Выксе, 2025 Фотография © Ксения Кокорина
Кванториум в Выксе, 2025
Фотография © Ксения Кокорина
Кванториум в Выксе, 2025 Фотография © Ксения Кокорина
Кванториум в Выксе, 2025
Фотография © Ксения Кокорина
Кванториум в Выксе Фотография © Юлия Тарабарина, Архи.ру
Кванториум в Выксе
Фотография © Юлия Тарабарина, Архи.ру
Кванториум в Выксе Фотография © Юлия Тарабарина, Архи.ру
Кванториум в Выксе
Фотография © Юлия Тарабарина, Архи.ру
Кванториум в Выксе Фотография © Юлия Тарабарина, Архи.ру
Кванториум в Выксе
Фотография © Юлия Тарабарина, Архи.ру
Кванториум в Выксе Фотография © Юлия Тарабарина, Архи.ру
Кванториум в Выксе
Фотография © Юлия Тарабарина, Архи.ру
«Шухов-парк». Генплан
«Шухов-парк». Генплан
© ОМК / Выкса
«Шухов-парк» и «Кванториум» с высоты полета Фотография © Андрей Ефимов / предоставлена пресс-службой ОМК
«Шухов-парк» и «Кванториум» с высоты полета
Фотография © Андрей Ефимов / предоставлена пресс-службой ОМК
«Шухов-парк» и «Кванториум» с высоты полета Фотография © Андрей Ефимов / предоставлена пресс-службой ОМК
«Шухов-парк» и «Кванториум» с высоты полета
Фотография © Андрей Ефимов / предоставлена пресс-службой ОМК
«Шухов-парк» и «Кванториум» с высоты полета Фотография © Андрей Ефимов / предоставлена пресс-службой ОМК
«Шухов-парк» и «Кванториум» с высоты полета
Фотография © Андрей Ефимов / предоставлена пресс-службой ОМК
«Шухов-парк» и «Кванториум» с высоты полета Фотография © Андрей Ефимов / предоставлена пресс-службой ОМК
«Шухов-парк» и «Кванториум» с высоты полета
Фотография © Андрей Ефимов / предоставлена пресс-службой ОМК
Кванториум в Выксе Фотография © Юлия Тарабарина, Архи.ру
Кванториум в Выксе
Фотография © Юлия Тарабарина, Архи.ру
Кванториум в Выксе Фотография © Юлия Тарабарина, Архи.ру
Кванториум в Выксе
Фотография © Юлия Тарабарина, Архи.ру
Кванториум в Выксе © АБ «Остоженка»
Кванториум в Выксе
© АБ «Остоженка»
Кванториум в Выксе © АБ «Остоженка»
Кванториум в Выксе
© АБ «Остоженка»
Кванториум в Выксе Фотография © Юлия Тарабарина, Архи.ру
Кванториум в Выксе
Фотография © Юлия Тарабарина, Архи.ру
Кванториум в Выксе Фотография © Юлия Тарабарина, Архи.ру
Кванториум в Выксе
Фотография © Юлия Тарабарина, Архи.ру
Кванториум в Выксе Фотография © Юлия Тарабарина, Архи.ру
Кванториум в Выксе
Фотография © Юлия Тарабарина, Архи.ру
Кванториум в Выксе Фотография © Юлия Тарабарина, Архи.ру
Кванториум в Выксе
Фотография © Юлия Тарабарина, Архи.ру
План 1 этажа. Кванториум в Выксе © АБ «Остоженка»
План 1 этажа. Кванториум в Выксе
© АБ «Остоженка»
План 2 этажа. Кванториум в Выксе © АБ «Остоженка»
План 2 этажа. Кванториум в Выксе
© АБ «Остоженка»
Кванториум в Выксе, 2025 Фотография © Ксения Кокорина
Кванториум в Выксе, 2025
Фотография © Ксения Кокорина
Кванториум в Выксе, 2025 Фотография © Ксения Кокорина
Кванториум в Выксе, 2025
Фотография © Ксения Кокорина
Кванториум в Выксе
Кванториум в Выксе
Фотография © Юлия Тарабарина, Архи.ру
Кванториум в Выксе Фотография © Юлия Тарабарина, Архи.ру
Кванториум в Выксе
Фотография © Юлия Тарабарина, Архи.ру
Коридор. Вид с востока. Кванториум в Выксе Фотография © Юлия Тарабарина, Архи.ру
Коридор. Вид с востока. Кванториум в Выксе
Фотография © Юлия Тарабарина, Архи.ру
Кванториум в Выксе Фотография © Юлия Тарабарина, Архи.ру
Кванториум в Выксе
Фотография © Юлия Тарабарина, Архи.ру
Кванториум в Выксе Фотография © Юлия Тарабарина, Архи.ру
Кванториум в Выксе
Фотография © Юлия Тарабарина, Архи.ру
Кванториум в Выксе Фотография © Юлия Тарабарина, Архи.ру
Кванториум в Выксе
Фотография © Юлия Тарабарина, Архи.ру
Кванториум в Выксе Фотография © Юлия Тарабарина, Архи.ру
Кванториум в Выксе
Фотография © Юлия Тарабарина, Архи.ру
Кванториум в Выксе Фотография © Юлия Тарабарина, Архи.ру
Кванториум в Выксе
Фотография © Юлия Тарабарина, Архи.ру
Кванториум в Выксе Фотография © Юлия Тарабарина, Архи.ру
Кванториум в Выксе
Фотография © Юлия Тарабарина, Архи.ру
Кванториум в Выксе Фотография © Юлия Тарабарина, Архи.ру
Кванториум в Выксе
Фотография © Юлия Тарабарина, Архи.ру
Кванториум в Выксе Фотография © Юлия Тарабарина, Архи.ру
Кванториум в Выксе
Фотография © Юлия Тарабарина, Архи.ру
Кванториум в Выксе Фотография © Юлия Тарабарина, Архи.ру
Кванториум в Выксе
Фотография © Юлия Тарабарина, Архи.ру
Кванториум в Выксе Фотография © Юлия Тарабарина, Архи.ру
Кванториум в Выксе
Фотография © Юлия Тарабарина, Архи.ру
Кванториум в Выксе Фотография © Юлия Тарабарина, Архи.ру
Кванториум в Выксе
Фотография © Юлия Тарабарина, Архи.ру
Кванториум в Выксе Фотография © Юлия Тарабарина, Архи.ру
Кванториум в Выксе
Фотография © Юлия Тарабарина, Архи.ру
Кванториум в Выксе Фотография © Юлия Тарабарина, Архи.ру
Кванториум в Выксе
Фотография © Юлия Тарабарина, Архи.ру
Кванториум в Выксе Фотография © Юлия Тарабарина, Архи.ру
Кванториум в Выксе
Фотография © Юлия Тарабарина, Архи.ру
Кванториум в Выксе Фотография © Юлия Тарабарина, Архи.ру
Кванториум в Выксе
Фотография © Юлия Тарабарина, Архи.ру
Кванториум в Выксе Фотография © Юлия Тарабарина, Архи.ру
Кванториум в Выксе
Фотография © Юлия Тарабарина, Архи.ру
Кванториум в Выксе Фотография © Юлия Тарабарина, Архи.ру
Кванториум в Выксе
Фотография © Юлия Тарабарина, Архи.ру
Кванториум в Выксе Фотография © Юлия Тарабарина, Архи.ру
Кванториум в Выксе
Фотография © Юлия Тарабарина, Архи.ру
Кванториум в Выксе Фотография © Юлия Тарабарина, Архи.ру
Кванториум в Выксе
Фотография © Юлия Тарабарина, Архи.ру
Кванториум в Выксе Фотография © Юлия Тарабарина, Архи.ру
Кванториум в Выксе
Фотография © Юлия Тарабарина, Архи.ру
Кванториум в Выксе Фотография © Юлия Тарабарина, Архи.ру
Кванториум в Выксе
Фотография © Юлия Тарабарина, Архи.ру
Кванториум в Выксе Фотография © Юлия Тарабарина, Архи.ру
Кванториум в Выксе
Фотография © Юлия Тарабарина, Архи.ру
Кванториум в Выксе Фотография © Юлия Тарабарина, Архи.ру
Кванториум в Выксе
Фотография © Юлия Тарабарина, Архи.ру
Кванториум в Выксе Фотография © Юлия Тарабарина, Архи.ру
Кванториум в Выксе
Фотография © Юлия Тарабарина, Архи.ру
Коридор. Вид с запада. Кванториум в Выксе Фотография © Юлия Тарабарина, Архи.ру
Коридор. Вид с запада. Кванториум в Выксе
Фотография © Юлия Тарабарина, Архи.ру
Кванториум в Выксе Фотография © Юлия Тарабарина, Архи.ру
Кванториум в Выксе
Фотография © Юлия Тарабарина, Архи.ру
Кванториум в Выксе Фотография © Юлия Тарабарина, Архи.ру
Кванториум в Выксе
Фотография © Юлия Тарабарина, Архи.ру
Кванториум в Выксе Фотография © Юлия Тарабарина, Архи.ру
Кванториум в Выксе
Фотография © Юлия Тарабарина, Архи.ру
Кванториум в Выксе © АБ «Остоженка»
Кванториум в Выксе
© АБ «Остоженка»
Кванториум в Выксе © АБ «Остоженка»
Кванториум в Выксе
© АБ «Остоженка»
Кванториум в Выксе © АБ «Остоженка»
Кванториум в Выксе
© АБ «Остоженка»
Кванториум в Выксе © АБ «Остоженка»
Кванториум в Выксе
© АБ «Остоженка»
Кванториум в Выксе © АБ «Остоженка»
Кванториум в Выксе
© АБ «Остоженка»
Кванториум в Выксе © АБ «Остоженка»
Кванториум в Выксе
© АБ «Остоженка»
Кванториум в Выксе © АБ «Остоженка»
Кванториум в Выксе
© АБ «Остоженка»
Кванториум в Выксе © АБ «Остоженка»
Кванториум в Выксе
© АБ «Остоженка»
Кванториум в Выксе © АБ «Остоженка»
Кванториум в Выксе
© АБ «Остоженка»
Кванториум в Выксе © АБ «Остоженка»
Кванториум в Выксе
© АБ «Остоженка»
Кванториум в Выксе © АБ «Остоженка»
Кванториум в Выксе
© АБ «Остоженка»