Размещено на портале Архи.ру (www.archi.ru)

17.11.2025

WAF 2025: умом и сердцем

Алёна Кузнецова

Всемирный фестиваль архитектуры, впервые приехавший в США, подвел итоги. Главный приз получила церковь на Тенерифе, которая воздействует на посетителя с помощью массы, света и акустики. Проектом года стал аэропорт Гелепху, поражающий воображение сочетанием инженерных достижений с ремесленными техниками. Лучший ландшафтный – в Китае, где архитекторы превращают разрушительные паводки в объект созерцания.

Всемирный фестиваль архитектуры в этом году впервые прошел на территории США, в Конференц-центре города Майами. Такой выбор отражает растущую значимость региона в мировой архитектуре и дизайне. В шорт-лист премии вошли: 235 построек, 157 проектов и 64 дизайна интерьера. Наиболее широко были представлены проекты из США, Китая, Великобритании, Австралии, Индии, Канады, Сингапура, ОАЭ, Турции и Японии.

Тема деловой программы, озаглавленная как «Сердца и умы», предлагала поразмышлять о дуальности архитектуры. С одной стороны она является порождением разума: на проект влияет анализ участка, материалы, технологии, нормы, функция и бюджет. С другой – архитектура способна вызвать серьезный душевный отклик, сохранять память и вдохновлять. 

В этой же системе координат, как нам кажется, определены проекты-победители: сложные технологические решения используются в них для создания пространств, которые меняют человека, апеллируя к его чувствам. Рассказываем ниже подробнее о каждом. 

Несколько российских бюро в этом сезоне попали в короткие списки. Всех победителей категорий ищите здесь. А в следующем году фестиваль вновь пройдет в Майами. 

***

Здание года


The Holy Redeemer Church and Community Centre of Las Chumberas, Сан-Кристобаль-де-ла-Лагуна, Испания
Fernando Menis


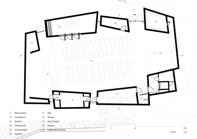
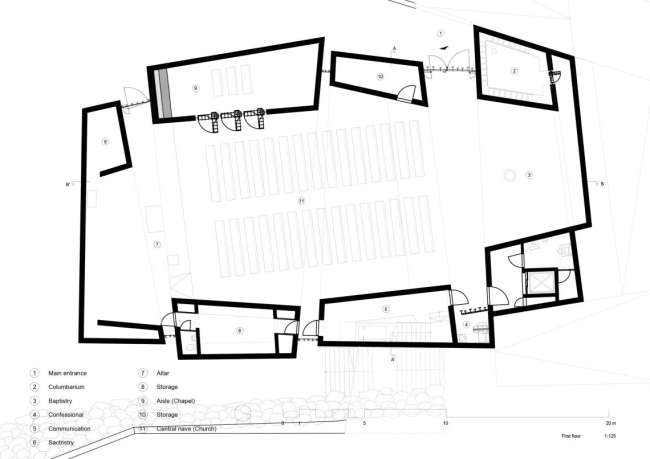
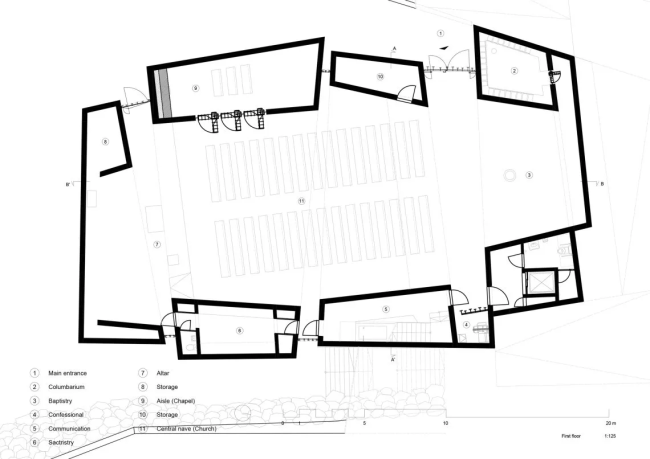
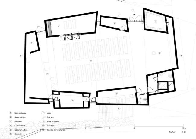
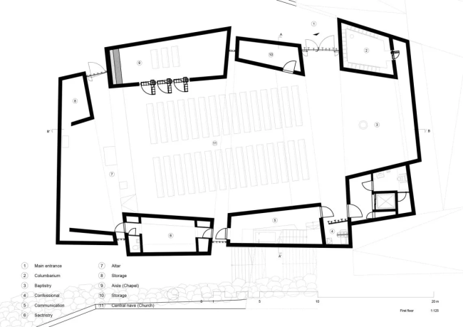
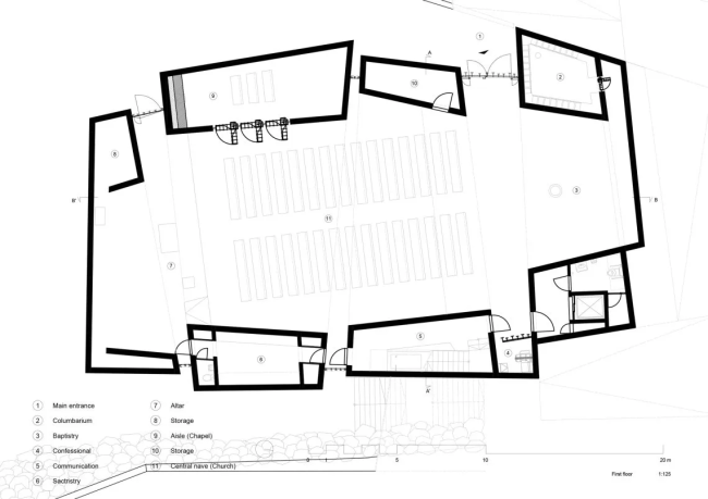
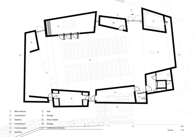
Возведение церкви Искупителя в городке Сан-Кристобаль-де-ла-Лагуна на острове Тенерифе длилось не малых 16 лет: деньги на ее строительство поступали нерегулярно за счет пожертвований, сыграл свою роль и экономический кризис 2008 года. Итоговый бюджет – около 2 000 000 евро. Первым завершили блок общественного центра, который повлиял на преобразование полузаброшенного тогда района Лас Чумберас. Церковь расположилась в окружении разноцветных таунхаусов 1970-х годов и крупных торговых центров и за счет своего бруталистского облика стала доминантой и точкой притяжения. 

Автор проекта – уроженец соседнего Санта-Крус-де-Тенерифе Фернандо Менис. Среди прочего он известен экспериментами с акустическими свойствами бетона. В данном проекте он добавил в раствор пористую вулканическую породу, а также поместил в помещения габионы, в которых колотый бетон перемешан с вулканическими же камнями. Такое сочетание обеспечивает превосходную акустику, столь важную для пространства церкви, где слово и пение более прочего воздействуют на посетителя.    

Еще один компонент таинства – свет. Здание вписано в крутой склон между подпорными стенками и кажется продолжением горы за счет бетонных объемов ломаных форм с фактурой дощатой опалубки снаружи и имитацией шершавой «каменной» поверхности внутри. Восточный фасад прорезает крестообразное окно, похожее на разлом породы. Утром наполняется сиянием крест в алтарной части, днем полуденное солнце проникает в помещения благодаря окнам на крыше, позже лучи падают в исповедальню. 
Победители номинаций в категории «Постройка»

***

Проект года


Gelephu International Airport, Гелепху, Бутан
BIG-Bjarke Ingels Group

 
 
Аэропорт Гелепху, который строится на границе Бутана и Индии, – ключевой проект генерального плана Города осознанности, основанного на показателе валового национального счастья. О нем Архи.ру рассказывал здесь.
Терминал площадью 68 000 м2 архитекторы BIG спроектировали совместно с компанией NACO (Netherlands Airport Consultants). Архитектура самобытна и многое черпает из национальной культуры. Инженерную доску, из которой будут сложены ромбовидные ячейки, покроет традиционная резьба. Интерьеры украсят росписями и тканями. Древесину планируют добыть из местных «устойчивых» лесозаготовок.

Щедрое озеленение создаст впечатление, что в терминал проникли джунгли. Панорамное остекление откроет виды на Гималаи и зальет помещения естественным светом. Внутренний и международный терминалы разделит «Лесной хребет» – пышный зеленый коридор. Помимо привычного набора функций в аэропорте Гелепху запланированы залы для занятий йогой, медитаций или принятия гонг-ванн. 
 
Аэропорт планируют ввести в строй в 2029 году. 
 
Победители номинаций в категории «Проект»


 

***

Ландшафт года


Embracing Flood: Xinjiang River Ecological Corridor, Шанжао, Китай
Turenscape
 
Пойменный участок реки Синьцзян, растянувшийся на три километра, долгое время был недоступен жителям города Шанжао из-за сезонных паводков и более серьезных наводнений, которые случаются каждые 10-20 лет. Проект бюро Turenscape вместо того, чтобы обуздать природное явление, делает его частью своей драматургии. 
Используя концепцию «города-губки», получающего все более широкое распространение в Китае, архитекторы восстановили экосистему поймы площадью 102 гектара и превратили ее в динамичное экологическое и рекреационное пространство. Система прудов сформировала пористые ландшафты, которые удерживают воду, поддерживают влажность на участке и формируют низины для фильтрации ливневых вод из близлежащих горных долин. Система островов преобразовала низменные зоны в водно-болотные угодья, обогащая экосистему и поддерживая дикую природу. 
В течение года ландшафт может сильно меняться, предлагая посетителям все новые впечатления. Территория становится доступной благодаря многоуровневому пешеходному мосту, способному пережить даже сильные наводнения. Верхний уровень открывает панорамный обзор на пойму.  
 
Проект может быть использован во всех городах, подверженных наводнениям.


Финалисты номинации «Ландшафт»


 

Аэропорт Гелепху, который строится на границе Бутана и Индии, – ключевой проект генерального плана Города осознанности, основанного на показателе валового национального счастья. О нем Архи.ру рассказывал здесь https://archi.ru/world/99357/psikhologicheskii-komfort-sredstvami-planirovaniya.

 

Терминал площадью 68 000 м2 архитекторы BIG спроектировали совместно с компанией NACO (Netherlands Airport Consultants). Архитектура самобытна и многое черпает из национальной культуры. Инженерную доску, из которой будут сложены ромбовидные ячейки, покроет традиционная резьба. Интерьеры украсят росписями и тканями. Древесину планируют добыть из местных «устойчивых» лесозаготовок.  

 

Щедрое озеленение создаст впечатление, что в терминал проникли джунгли. Панорамное остекление откроет виды на Гималаи и зальет помещения естественным светом. Внутренний и международный терминалы разделит «Лесной хребет» – пышный зеленый коридор. Помимо привычного набора функций в аэропорте Гелепху запланированы залы для занятий йогой, медитаций или принятия гонг-ванн. 

 

Аэропорт планируют ввести в строй в 2029 году. 

Civic and community: The Holy Redeemer Church and Community Centre of Las Chumberas, Сан-Кристобаль-де-ла-Лагуна, Испания.
Бюро: Fernando Menis
Civic and community: The Holy Redeemer Church and Community Centre of Las Chumberas, Сан-Кристобаль-де-ла-Лагуна, Испания. Бюро: Fernando Menis
Photo by © Roland Halbe, Simona Rota, Hisao Suzuki / предоставлено WAF
Civic and community: The Holy Redeemer Church and Community Centre of Las Chumberas, Сан-Кристобаль-де-ла-Лагуна, Испания.
Бюро: Fernando Menis
Civic and community: The Holy Redeemer Church and Community Centre of Las Chumberas, Сан-Кристобаль-де-ла-Лагуна, Испания. Бюро: Fernando Menis
Photo by © Roland Halbe, Simona Rota, Hisao Suzuki / предоставлено WAF
Civic and community: The Holy Redeemer Church and Community Centre of Las Chumberas, Сан-Кристобаль-де-ла-Лагуна, Испания.
Бюро: Fernando Menis
Civic and community: The Holy Redeemer Church and Community Centre of Las Chumberas, Сан-Кристобаль-де-ла-Лагуна, Испания. Бюро: Fernando Menis
Photo by © Roland Halbe, Simona Rota, Hisao Suzuki / предоставлено WAF
Civic and community: The Holy Redeemer Church and Community Centre of Las Chumberas, Сан-Кристобаль-де-ла-Лагуна, Испания.
Бюро: Fernando Menis
Civic and community: The Holy Redeemer Church and Community Centre of Las Chumberas, Сан-Кристобаль-де-ла-Лагуна, Испания. Бюро: Fernando Menis
Photo by © Roland Halbe, Simona Rota, Hisao Suzuki / предоставлено WAF
Civic and community: The Holy Redeemer Church and Community Centre of Las Chumberas, Сан-Кристобаль-де-ла-Лагуна, Испания.
Бюро: Fernando Menis Photo by © Roland Halbe, Simona Rota, Hisao Suzuki / предоставлено WAF
Civic and community: The Holy Redeemer Church and Community Centre of Las Chumberas, Сан-Кристобаль-де-ла-Лагуна, Испания. Бюро: Fernando Menis
Photo by © Roland Halbe, Simona Rota, Hisao Suzuki / предоставлено WAF
Civic and community: The Holy Redeemer Church and Community Centre of Las Chumberas, Сан-Кристобаль-де-ла-Лагуна, Испания.
Бюро: Fernando Menis Photo by © Roland Halbe, Simona Rota, Hisao Suzuki / предоставлено WAF
Civic and community: The Holy Redeemer Church and Community Centre of Las Chumberas, Сан-Кристобаль-де-ла-Лагуна, Испания. Бюро: Fernando Menis
Photo by © Roland Halbe, Simona Rota, Hisao Suzuki / предоставлено WAF
Civic and community: The Holy Redeemer Church and Community Centre of Las Chumberas, Сан-Кристобаль-де-ла-Лагуна, Испания.
Бюро: Fernando Menis
Civic and community: The Holy Redeemer Church and Community Centre of Las Chumberas, Сан-Кристобаль-де-ла-Лагуна, Испания. Бюро: Fernando Menis
Photo by © Roland Halbe, Simona Rota, Hisao Suzuki / предоставлено WAF
Shopping: Central Nakhon Pathom, Накхонпатхом, Таиланд.
Бюро: stu/D/O Architects Photo by © W Work Space, Jinnawat Borihankijanan / предоставлено WAF
Shopping: Central Nakhon Pathom, Накхонпатхом, Таиланд. Бюро: stu/D/O Architects
Photo by © W Work Space, Jinnawat Borihankijanan / предоставлено WAF
Production energy and Logistics: Quinta de Adorigo Winery, долина реки Дору, Португалия.
Бюро: Atelier Sergio Rebelo Photo by © Fernando Guerra / FG + SG  / предоставлено WAF
Production energy and Logistics: Quinta de Adorigo Winery, долина реки Дору, Португалия. Бюро: Atelier Sergio Rebelo
Photo by © Fernando Guerra / FG + SG / предоставлено WAF
Sport: Hiwa, Recreation Centre, Окланд, Канада.
Бюро: Warren and Mahoney + MJMA Architecture & Design Photo by © Scott Norsworthy / предоставлено WAF
Sport: Hiwa, Recreation Centre, Окланд, Канада. Бюро: Warren and Mahoney + MJMA Architecture & Design
Photo by © Scott Norsworthy / предоставлено WAF
House & Villa (Urban/Suburban): Lantern House, Ванкувер, Канада.
Бюро: Leckie Studio Architecture + Design Inc Photo by © Ema Peter Photography / предоставлено WAF
House & Villa (Urban/Suburban): Lantern House, Ванкувер, Канада. Бюро: Leckie Studio Architecture + Design Inc
Photo by © Ema Peter Photography / предоставлено WAF
School: FK Kindergarten and Nursery, Нагасаки, Япония.
Бюро: HIBINOSEKKEI + Youji no Shiro Photo by © Ryuji Inoue  / предоставлено WAF
School: FK Kindergarten and Nursery, Нагасаки, Япония. Бюро: HIBINOSEKKEI + Youji no Shiro
Photo by © Ryuji Inoue / предоставлено WAF
Civic and community: The Holy Redeemer Church and Community Centre of Las Chumberas, Сан-Кристобаль-де-ла-Лагуна, Испания.
Бюро: Fernando Menis Photo by © Roland Halbe, Simona Rota, Hisao Suzuki / предоставлено WAF
Civic and community: The Holy Redeemer Church and Community Centre of Las Chumberas, Сан-Кристобаль-де-ла-Лагуна, Испания. Бюро: Fernando Menis
Photo by © Roland Halbe, Simona Rota, Hisao Suzuki / предоставлено WAF
Creative Re-use: Younghusband, Мельбурн, Австралия.
Бюро: Woods Bagot Photo by © Nose To Tail; Trevor Mein; Papermill / предоставлено WAF
Creative Re-use: Younghusband, Мельбурн, Австралия. Бюро: Woods Bagot
Photo by © Nose To Tail; Trevor Mein; Papermill / предоставлено WAF
Culture: Shunde Yunlu Wetland Museum, Фошань, Китай.
Бюро: Studio Link-Arc Photo by © Tian Fangfang, Arch-Exist / предоставлено WAF
Culture: Shunde Yunlu Wetland Museum, Фошань, Китай. Бюро: Studio Link-Arc
Photo by © Tian Fangfang, Arch-Exist / предоставлено WAF
Retrofit: Sirius Redevelopment, Сидней, Австралия.
Бюро: BVN Photo by © Trevor Mein and Bryn Donkersloot / предоставлено WAF
Retrofit: Sirius Redevelopment, Сидней, Австралия. Бюро: BVN
Photo by © Trevor Mein and Bryn Donkersloot / предоставлено WAF
Housing: Isla Intersections Supportive Housing & Paseo, Лос-Анджелес, США.
Бюро: Lorcan O′Herlihy Architects Photo by © Eric Staudenmaier  / предоставлено WAF
Housing: Isla Intersections Supportive Housing & Paseo, Лос-Анджелес, США. Бюро: Lorcan O′Herlihy Architects
Photo by © Eric Staudenmaier / предоставлено WAF
House and Villa – (Rural/Coastal): Ridge House, Канада.
Бюро: Superkül Photo by © doublespace photography / предоставлено WAF
House and Villa – (Rural/Coastal): Ridge House, Канада. Бюро: Superkül
Photo by © doublespace photography / предоставлено WAF
Office: T3 Diagonal Mar Offices, Барселона, Испания.
Бюро: Batlleiroig Photo by © Oriol Gómez  / предоставлено WAF
Office: T3 Diagonal Mar Offices, Барселона, Испания. Бюро: Batlleiroig
Photo by © Oriol Gómez / предоставлено WAF
Display: Osaka-Kansai Expo 2025 Japan Pavilion, Осака, Япония.
Бюро: NIKKEN SEKKEI LTD Photo by © Ministry of Economy, Trade and Industry / предоставлено WAF
Display: Osaka-Kansai Expo 2025 Japan Pavilion, Осака, Япония. Бюро: NIKKEN SEKKEI LTD
Photo by © Ministry of Economy, Trade and Industry / предоставлено WAF
Health: AGNES Kantonsspital Baden, Баден, Швейцария.
Бюро: Nickl & Partner Architekten Schweiz AG Photo by © HG Esch and Achim Birnbaum / предоставлено WAF
Health: AGNES Kantonsspital Baden, Баден, Швейцария. Бюро: Nickl & Partner Architekten Schweiz AG
Photo by © HG Esch and Achim Birnbaum / предоставлено WAF
Higher Education and Research: Munarra Centre for Regional Excellences, Шеппартон, Австралия.
Бюро: ARM Architecture Photo by © Peter Bennetts / предоставлено WAF
Higher Education and Research: Munarra Centre for Regional Excellences, Шеппартон, Австралия. Бюро: ARM Architecture
Photo by © Peter Bennetts / предоставлено WAF
Hotel and Leisure: Poodom Deqin Meri Hotel, Дечен, Китай.
Бюро: BUZZ | Büro Ziyu Zhuang Photo by © Shengliang Su,Yumeng Zhu / предоставлено WAF
Hotel and Leisure: Poodom Deqin Meri Hotel, Дечен, Китай. Бюро: BUZZ | Büro Ziyu Zhuang
Photo by © Shengliang Su,Yumeng Zhu / предоставлено WAF
Mixed Use: Republica, Амстердам, Голландия.
Бюро: Marc Koehler Architects Photo by © Sebastian van Damme, Maikel Samuels  / предоставлено WAF
Mixed Use: Republica, Амстердам, Голландия. Бюро: Marc Koehler Architects
Photo by © Sebastian van Damme, Maikel Samuels / предоставлено WAF
Transport: Central Station, Сидней, Австралия.
Бюро: Woods Bagot in collaboration with John McAslan + Partners Photo by © Trevor Mein  / предоставлено WAF
Transport: Central Station, Сидней, Австралия. Бюро: Woods Bagot in collaboration with John McAslan + Partners
Photo by © Trevor Mein / предоставлено WAF
Международный аэропорт Гелепху
Международный аэропорт Гелепху
© BIG
Международный аэропорт Гелепху
Международный аэропорт Гелепху
© BIG
Международный аэропорт Гелепху
Международный аэропорт Гелепху
© BIG
Международный аэропорт Гелепху
Международный аэропорт Гелепху
© BIG
Международный аэропорт Гелепху
Международный аэропорт Гелепху
© BIG
Leisure Led Development: Luana Farms, Калака, Филиппины © Plontur Group / предоставлено WAF
Leisure Led Development: Luana Farms, Калака, Филиппины
© Plontur Group / предоставлено WAF
Infrastructure: Gelephu International Airport, Гелепху, Бутан © BIG-Bjarke Ingels Group  / предоставлено WAF
Infrastructure: Gelephu International Airport, Гелепху, Бутан
© BIG-Bjarke Ingels Group / предоставлено WAF
Sport: Acclimated Sports + Multipurpose Hall, Давао, Филиппины © Avally Design Studio / предоставлено WAF
Sport: Acclimated Sports + Multipurpose Hall, Давао, Филиппины
© Avally Design Studio / предоставлено WAF
Urban Design: Te Ara Tukutuku, Окленд, Новая Зеландия © LandLAB + SCAPE as part of Toi Waihanga design collective / предоставлено WAF
Urban Design: Te Ara Tukutuku, Окленд, Новая Зеландия
© LandLAB + SCAPE as part of Toi Waihanga design collective / предоставлено WAF
Masterplanning:Smithfield Birmingham, Бирмингем, Великобритания © Prior + Partners and Field Operations / предоставлено WAF
Masterplanning:Smithfield Birmingham, Бирмингем, Великобритания
© Prior + Partners and Field Operations / предоставлено WAF
Civic: Vancouver Aquatic Centre, Ванкувер, Канада © MJMA Architecture & Design + Acton Ostry Architects / предоставлено WAF
Civic: Vancouver Aquatic Centre, Ванкувер, Канада
© MJMA Architecture & Design + Acton Ostry Architects / предоставлено WAF
Commercial mixed-use: LONE LUNG SPACE, Бангалор, Индия © Gayathri And Namith Architects / предоставлено WAF
Commercial mixed-use: LONE LUNG SPACE, Бангалор, Индия
© Gayathri And Namith Architects / предоставлено WAF
Culture: Qiddiya Performing Arts Centre, Киддия, ОАЭ © Tom Wiscombe Architecture / предоставлено WAF
Culture: Qiddiya Performing Arts Centre, Киддия, ОАЭ
© Tom Wiscombe Architecture / предоставлено WAF
Competition entries: Where Earth Remembered :An Axis Of Heritage and Hope, Бам, Иран © Eade Va Ejra/ Peno visualization / предоставлено WAF
Competition entries: Where Earth Remembered :An Axis Of Heritage and Hope, Бам, Иран
© Eade Va Ejra/ Peno visualization / предоставлено WAF
Health: International Children′s Cancer Research Centre, Киби, Гана © Adjaye Associates / предоставлено WAF
Health: International Children′s Cancer Research Centre, Киби, Гана
© Adjaye Associates / предоставлено WAF
Experimental: “The Other City: Reimagining Gulf Labor Camps as Creative Campuses”, Дубаи, ОАЭ © design and more international / предоставлено WAF
Experimental: “The Other City: Reimagining Gulf Labor Camps as Creative Campuses”, Дубаи, ОАЭ
© design and more international / предоставлено WAF
Residential: The Perigon, Майами, США © OMA / предоставлено WAF
Residential: The Perigon, Майами, США
© OMA / предоставлено WAF
Education: Canadian School, Чолула, Мексика © Sordo Madaleno / предоставлено WAF
Education: Canadian School, Чолула, Мексика
© Sordo Madaleno / предоставлено WAF
House: Dune House, Те Араи, Новая Зеландия © Monk Mackenzie Architects / предоставлено WAF
House: Dune House, Те Араи, Новая Зеландия
© Monk Mackenzie Architects / предоставлено WAF
Embracing Flood: Xinjiang River Ecological Corridor, Шанжао, Китай. Бюро: Turenscape
Embracing Flood: Xinjiang River Ecological Corridor, Шанжао, Китай. Бюро: Turenscape
Photo by © Turenscape / предоставлено WAF
Embracing Flood: Xinjiang River Ecological Corridor, Шанжао, Китай. Бюро: Turenscape
Embracing Flood: Xinjiang River Ecological Corridor, Шанжао, Китай. Бюро: Turenscape
Photo by © Turenscape / предоставлено WAF
Embracing Flood: Xinjiang River Ecological Corridor, Шанжао, Китай. Бюро: Turenscape
Embracing Flood: Xinjiang River Ecological Corridor, Шанжао, Китай. Бюро: Turenscape
Photo by © Turenscape / предоставлено WAF
Embracing Flood: Xinjiang River Ecological Corridor, Шанжао, Китай. Бюро: Turenscape
Embracing Flood: Xinjiang River Ecological Corridor, Шанжао, Китай. Бюро: Turenscape
Photo by © Turenscape / предоставлено WAF
Embracing Flood: Xinjiang River Ecological Corridor, Шанжао, Китай. Бюро: Turenscape
Embracing Flood: Xinjiang River Ecological Corridor, Шанжао, Китай. Бюро: Turenscape
Photo by © Turenscape / предоставлено WAF
Eden Dock, Лондон, Великобритания. Бюро: Architect – Howells. Landscape Architect – HTA Design Photo by © Tim Crocker, HTA Design, Howells and Canary Wharf Group  / предоставлено WAF
Eden Dock, Лондон, Великобритания. Бюро: Architect – Howells. Landscape Architect – HTA Design
Photo by © Tim Crocker, HTA Design, Howells and Canary Wharf Group / предоставлено WAF
Alibaba Xixi Tech Campus Landscape, Ханчжоу, Китай. Бюро: ASPECT Studios Photo by © Wangwenjie  / предоставлено WAF
Alibaba Xixi Tech Campus Landscape, Ханчжоу, Китай. Бюро: ASPECT Studios
Photo by © Wangwenjie / предоставлено WAF
NaMo Grand Central Park, Тхана, Индия. Бюро: Landscape Architects 49 Limited Photo by © Rungkit Charoenwat, NaMo Grand Central Park′s Official website, Kalpataru Limited / предоставлено WAF
NaMo Grand Central Park, Тхана, Индия. Бюро: Landscape Architects 49 Limited
Photo by © Rungkit Charoenwat, NaMo Grand Central Park′s Official website, Kalpataru Limited / предоставлено WAF
One Bangkok, Бангкок, Таиланд. Бюро: P Landscape co.,ltd. Photo by © Srirath Somsawat Ketsiree Wongwan Frasers Property Limited / предоставлено WAF
One Bangkok, Бангкок, Таиланд. Бюро: P Landscape co.,ltd.
Photo by © Srirath Somsawat Ketsiree Wongwan Frasers Property Limited / предоставлено WAF
Jiaozi Pedestrain Bridge, Чэнду, Китай. Бюро: China Southwest Architectural Design and Research Institute Corp.Ltd Photo © предоставлено WAF
Jiaozi Pedestrain Bridge, Чэнду, Китай. Бюро: China Southwest Architectural Design and Research Institute Corp.Ltd
Photo © предоставлено WAF
Maa Mundeshwari Wildlife Eco Park, Бхабуа, Индия. Бюро: Iconographic Designs Private Limited ( Rurban Design Lab ) Photo by © Nikhil Paliwal & Angad S Phokela / предоставлено WAF
Maa Mundeshwari Wildlife Eco Park, Бхабуа, Индия. Бюро: Iconographic Designs Private Limited ( Rurban Design Lab )
Photo by © Nikhil Paliwal & Angad S Phokela / предоставлено WAF
Premio Unic, Бангкок, Таиланд. Бюро: VV Desine Landscape Architecture Company Limited Photo by © Rungkit Charoenwat / предоставлено WAF
Premio Unic, Бангкок, Таиланд. Бюро: VV Desine Landscape Architecture Company Limited
Photo by © Rungkit Charoenwat / предоставлено WAF
The Phi Phi Wastewater Management Ecological Park, провинция Краби, Таиланд. Бюро: Turenscape Photo by © Arsomsilp Community and Environment Architect Co.,Ltd. / W Workspace Company Limited / предоставлено WAF
The Phi Phi Wastewater Management Ecological Park, провинция Краби, Таиланд. Бюро: Turenscape
Photo by © Arsomsilp Community and Environment Architect Co.,Ltd. / W Workspace Company Limited / предоставлено WAF
The Osona Viewpoint Network, Испания. Бюро: Arsomsilp Community and Environmental Architect Photo by © Antonio Navarro Wijkmark, DEL RIO BANI, Fernando Marí   / предоставлено WAF
The Osona Viewpoint Network, Испания. Бюро: Arsomsilp Community and Environmental Architect
Photo by © Antonio Navarro Wijkmark, DEL RIO BANI, Fernando Marí / предоставлено WAF
Taikoo Place, Гонконг. Бюро: Gustafson Porter + Bowman & Urbis Limited Photo by ©  Vivien Liu / Studio UNIT OR © Urbis Limited OR © Gustafson Porter + Bowman  / предоставлено WAF
Taikoo Place, Гонконг. Бюро: Gustafson Porter + Bowman & Urbis Limited
Photo by © Vivien Liu / Studio UNIT OR © Urbis Limited OR © Gustafson Porter + Bowman / предоставлено WAF
Drop by Drop, Каталония, Испания. Бюро: Batlleiroig Photo by © DEL RIO BANI / предоставлено WAF
Drop by Drop, Каталония, Испания. Бюро: Batlleiroig
Photo by © DEL RIO BANI / предоставлено WAF