Размещено на портале Архи.ру (www.archi.ru)

10.04.2025

Механика цветения стеклянного леса

Юлия Тарабарина
Объект:
Комплекс апартаментов Саввинская 27 от Level
Адрес:
Россия, Москва. Саввинская набережная, 27
Мастерская:
ODA
Проектное бюро АПЕКС
Авторский коллектив:
Авторы концепции – ODA: Eran Chen AIA, Michael Unsicker AIA, Keith Sagliocca, Michelle Le, Mohammad Askarzadeh

Генеральный проектировщик – APEX: ГАП – Светлана Леонтюк; руководители группы архитекторов: Елизавета Черникевич, Наталья Стоялова; ведущие архитекторы: Мария Щукина, Денис Гридасов-Новиков; архитекторы: Ангелина Каминская, Екатерина Филонова, Василий Горохов

Комплекс апартаментов Саввинская 27 от Level, строительство которого сейчас уже подходит к концу на вытянутом вдоль реки протяженном участке рядом с Новодевичьим монастырем, – обладает очень смелой для Москвы пластикой. Визуально он похож на результат работы стеклодува в соавторстве со скульптором, этакие стеклянно-бетонные джунгли, ритмизованные, но растущие энергично и живописно. Воплотить такую идею – не так-то просто. Рассказываем о концепции ODA и о методах, использованных архитекторами компании АПЕКС для ее реализации. Показываем узлы.

Участок, на котором сейчас строится клубный дом Саввинская 27 от Level – для премиального жилья прямо-таки находка. Он вытянут вдоль набережной с видом на реку, а торцом выходит к Новодевичьему проезду, где сразу же начинается знаменитый парк с прудами при монастыре, чей охраняемый ЮНЕСКО ансамбль, – один из красивейших в Москве. 

В 2020 году девелопер Level Group выкупил этот участок вместе с бывшим общежитием фабрики «Московский шелк» – в соседнем квартале в ее ревитализованных корпусах сейчас расположился бизнес-центр того же имени. И в 2021 провел закрытый конкурс на архитектурную концепцию здания; в нем участвовали de Architekten Cie, Arch(e)type, UNK.

Победил проект нью-йоркского бюро ODA Эрана Чена.

Комплекс апартаментов Саввинская 27 от Level. Вверху: концепция ODA; внизу, слева направо концепции от бюро de Architekten Cie, Arch(e)type, UNK
Комплекс апартаментов Саввинская 27 от Level. Вверху: концепция ODA; внизу, слева направо концепции от бюро de Architekten Cie, Arch(e)type, UNK
© ODA, Проектное бюро АПЕКС

Даже на первый взгляд – не самый экономный в реализации и далеко не самый простой по форме. Прежде всего, по форме фасада. Он представляет собой объемный «лес» из утопленных в моллированном стекле медных тяг и, главное – гигантских «сепалиев»-чашелистиков из стеклофибробетона, несущих эркеры. Каждый такой эркер: тонкая ножка скульптурной подставки, сама асимметричная «чаша», стеклянный объем с медным перехватом и прозрачное ограждение поверх, – образует форму, недвусмысленно похожую на цветок. 
Комплекс апартаментов Саввинская 27 от Level
Комплекс апартаментов Саввинская 27 от Level
© ODA, Проектное бюро АПЕКС

Но – не местный цветок, нет таких в средней полосе; скорее это экзотическое растение из джунглей. Выступы и углубления, эркеры и балконы перемешаны намеренно-асимметрично, маскируя четырехсекционную структуру дома. Три вертикальных медных углубления – анти-эркеры, устанавливают в преобладающей асимметрии равномерный ритм. Их можно было бы принять за лестничные клетки, но нет, это окна спален и гостиных, лестницы и лифты, для экономии драгоценного светового фронта, расположены внутри объема. Но вертикали придают главному фасаду сходство с доходными домами начала XX века, выстраивают переклички между супер-актуальной скульптурно-стеклянной стилистикой и традиционной городской застройкой по красной линии. 

В нижнем ярусе, где разместится лобби дома и городской ретейл, объемные «чаши» выстроены в ряд и образуют, с одной стороны, подобие колоннады-пилонады с более строгим ритмом, приличествующим первому этажу – а с другой стороны, рифмуются с асимметричными импостами выше: «держат» дом подобно кашпо или корневой системе. 
Комплекс апартаментов Саввинская 27 от Level
Комплекс апартаментов Саввинская 27 от Level
© ODA, Проектное бюро АПЕКС / предоставлено пресс-службой Москомархитектуры

Смелый дом. Изогнутое стекло в Москве все больше набирает популярность, но здесь стекла и скруглений настолько много, что весь дом, во всяком случае три его главных фасада, похожи на работу стеклодува, а может быть, даже на некий вариант «горки» хрустальных бокалов. Стен почти нет – в значительной своей части они прозрачны; что подчеркивает левитацию фибробетонных чашелистиков эркеров и балконов. 

В то же время медь, использованная во всех перемычках и в редких непрозрачных частях фасада, дает оттенок одновременно ретро-стимпанка – и роскоши. На ощущение роскоши работают и гладкие «кулачки» балконных чаш – скульптурные, конечно, скульптурные... В духе, может быть, Генри Мура. 
Комплекс апартаментов Саввинская 27 от Level
Комплекс апартаментов Саввинская 27 от Level
© ODA, Проектное бюро АПЕКС

Конечно, прототипы и прообразы у этого дома есть. Мало от кого, думаю, ускользнет перекличка с садом бетонных грибов Томаса Хезервика, причалом 55, это известнейшее произведение. Впрочем, грибообразная бетонная колонна присутствует в лексиконе современной архитектуры минимум с начала XX века. И, глядя на этот фасад, неужели никто не вспомнит Casa Mila Гауди? Да, разумеется, «там все другое». Но идея  данном случае развита – та же самая. Если подумать, то и отсылка к готике в данном случае тоже есть; какая? а вы вспомните тюльпановидные основания готических кафедр, вырастающих на колоннах.

В работах самого Эрана Чена тоже есть дом-прообраз: проект высотки рядом с Офисом почты в Роттердаме, 2019 года. Там скорее арки с объемными выступами, здесь – объемные выступы перед арками, и тем не менее, родственность ощущается, что началось там – получило законченный вид здесь. 
Комплекс апартаментов Саввинская 27 от Level
Комплекс апартаментов Саввинская 27 от Level
© ODA, Проектное бюро АПЕКС

Реализацией смелых предложений занимались архитекторы российской компании АПЕКС – они обладают большим опытом адаптации иностранных проектов для Москвы: RED7, Бадаевский, ГЭС-2 – их работа. За полтора года в АПЕКС разработали консолидированную концепцию, затем проектную документацию стадии ПД для экспертизы, и прошли все этапы согласования с городом.

Одного взгляда на фасад, где стеклофибробетонные элементы буквально-таки «утоплены» в стекле, достаточно для того, чтобы понять, что работа по проектированию была скрупулезной и виртуозной. 

На Саввинской работой архитекторов АПЕКС руководила ГАП Светлана Леонтюк. 
 
Светлана Леонтюк, Проектное бюро АПЕКС
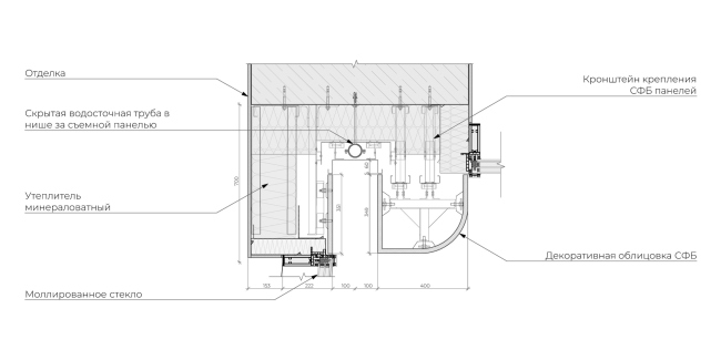
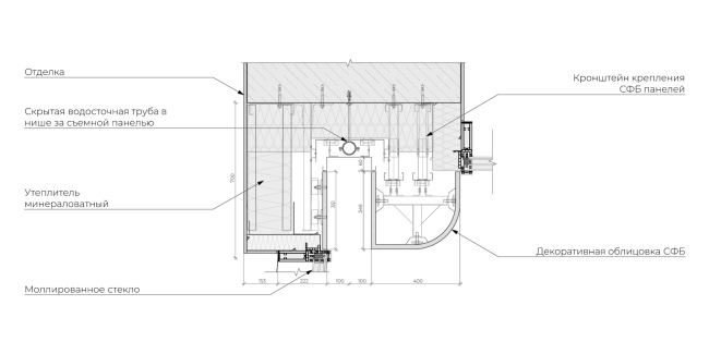
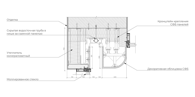
Бионические балконы и эркеры с технической точки зрения представляют собой усложнённый вариант традиционной навесной фасадной системы. Несущая конструкция лепестков – консольные плиты перекрытий, или балконные плиты: из них «вырастают» балконные и эркерные ограждения. «Ножки» лепестков полые.
 
Лепестки сделаны из стеклофибробетона. Этот материал позволяет создать сложную форму методом напыления – с минимальным весом и количеством стыковочных швов. Один декоративный лепесток состоит из четырех крупноформатных элементов. Каждый такой стеклофибробетонный элемент крепится к нижней и к боковой поверхности монолитной выступающей плиты с помощью сложных объемных металлических конструкций подсистем. Между плитой и СФБ-элементами находится утеплитель.
 
Все лепестки с третьего по шестой этаж имеют один размер: модульность позволила сократить затраты на подготовку форм и креплений. При поиске оптимального положения для всех лепестков учитывалась высота окна на нижележащем этаже – высоты этажей увеличиваются от 3.22 м на втором до 4 м на шестом этаже – и влияние скошенного объема на пол-эркера.
 
Эффект непрерывного остекления эркера, которое переходит через перекрытие в ограждение балкона на следующем этаже, достигается за счет промежуточной детали витражной системы, расположенной в уровне перекрытия и скрывающей толщину пола, торец плиты и запотолочное пространство нижнего этажа. За стеклопакетом находится замкнутая полость, и ее внутренняя поверхность выстилается металлическим листом. При этом не требуется стемалит, и визуальные характеристики стеклопакета сохраняются. Такой же прием использован при переходе витражной системы в ограждение на кровле.

Благодарим архитекторов АПЕКС за возможность показать итоговые «узлы» фасадных конструкций. Слева – разрез стеклофибробетонного «основания» балкона, справа разрез межэтажной тяги. 
Комплекс апартаментов Саввинская 27 от Level. Узел подшивки эркера © ODA, Проектное бюро АПЕКС
Комплекс апартаментов Саввинская 27 от Level. Узел подшивки эркера
© ODA, Проектное бюро АПЕКС
Комплекс апартаментов Саввинская 27 от Level. Узел стыковки балкона и эркера © ODA, Проектное бюро АПЕКС
Комплекс апартаментов Саввинская 27 от Level. Узел стыковки балкона и эркера
© ODA, Проектное бюро АПЕКС

Особенно хороша идея спрятать металл межэтажной тяги за стеклом на некотором расстоянии, заменившая традиционный стемалит. Мы, конечно, увидим результат после завершения работы, но и сейчас можно предполагать, что металл за стеклом приобретет «музейное» качество и будет существенно отличаться от общепринятых «глухих» полос. 
Комплекс апартаментов Саввинская 27 от Level
Комплекс апартаментов Саввинская 27 от Level
© ODA, Проектное бюро АПЕКС

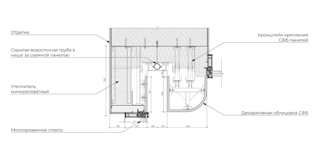
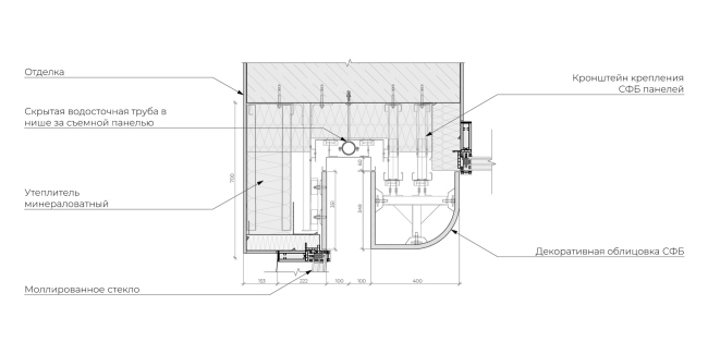
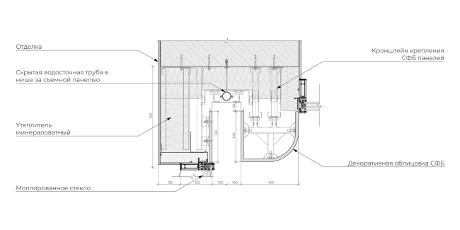
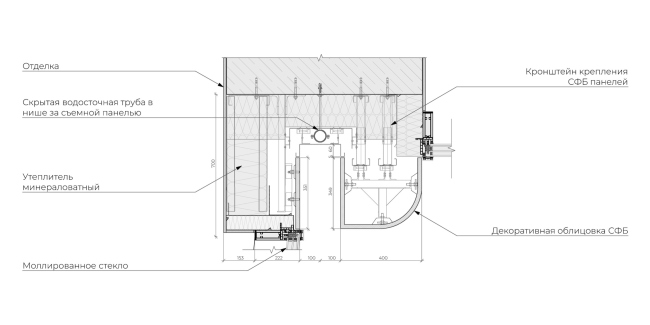
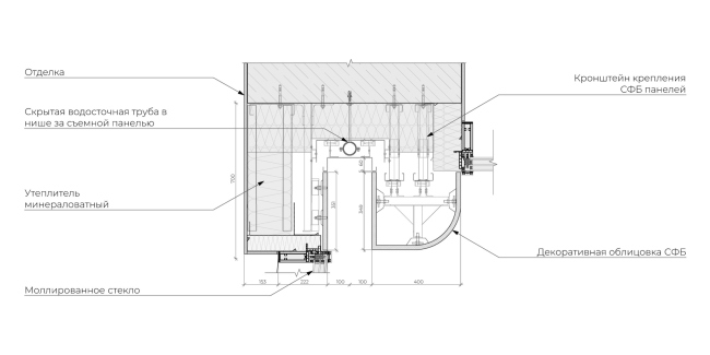
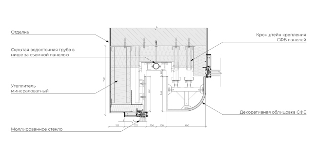
Эркеры не позволяют использовать стандартные вертикальные водосточные воронки, – рассказывают архитекторы АПЕКС. Несмотря на относительно небольшую площадь балконов – около двух квадратных метров, – у них есть организованное водоотведение: дождевая и талая вода собирается в скрытую водосточную систему, а не стекает по фасаду. Сбор дождевой воды проходит под финишным покрытием балкона – это каменные плиты на опорах – через плоскую воронку в утепленной конструкции кровли над эркером, сформированной клиновидными теплоизоляционными плитами. Плоские воронки соединены с вертикальной частью водостока, размещенной в специальной фасадной нише. Ниша закрывается съемными панелями, которые обеспечивают доступ ко всей высоте водостока для проведения плановой прочистки.
Комплекс апартаментов Саввинская 27 от Level. Узел водостока
Комплекс апартаментов Саввинская 27 от Level. Узел водостока
© ODA, Проектное бюро АПЕКС

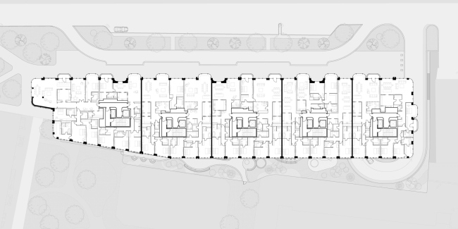
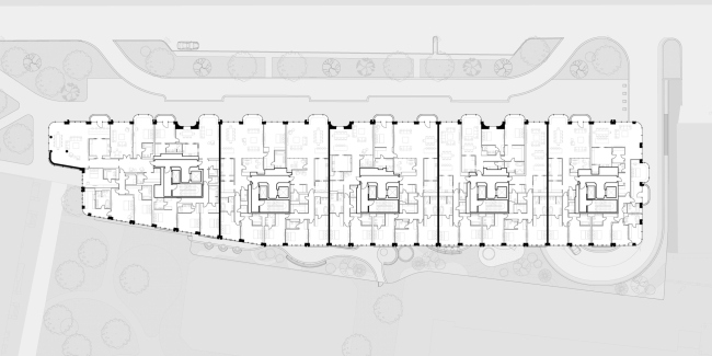
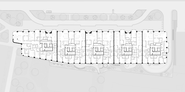
В здании 61 жилой лот, но при необходимости их можно соединять. Все апартаменты получились глубокими: в тех, что выходят на две стороны, гостиные ориентированы на набережную, спальни – во двор, а помещения, не нуждающиеся в дневном свете: санузлы, гардеробные, иногда кухни – расположены в центре квартир и граничат с лестнично-лифтовыми узлами. Есть апартаменты, занимающие не всю глубину здания, а лишь половину – они ориентированы на реку. Каждый лот имеет собственный «лепесток» на фасаде – открытый балкон или эркер.
Комплекс апартаментов Саввинская 27 от Level. План жилого этажа
Комплекс апартаментов Саввинская 27 от Level. План жилого этажа
© ODA, Проектное бюро АПЕКС

Часть плоской крыши здания задумана как эксплуатируемая терраса, куда все жители дома смогут подняться на лифте. Чтобы сохранить общественное пространство кровли, часть инженерных помещений расположили на подземных этажах. Другая часть технических сооружений осталась на кровле, но в глубине, и не видна с улицы. С кровли, также как и из каждой квартиры «речного» фронта открывается вид на башни Москва-Сити: небольшой – шестиэтажный, дом перекликается с ними как «современное с современным», «технологичное с технологичным». 

Тем не менее дом вписан именно в классицистическое квартальное окружение Хамовников – в чем ему помогает и теплый оттенок меди, и небольшая, комфортная этажность. Это городской дом, пусть и роскошный. Поэтому он, заботясь, с одной стороны, о тишине, покое и приватности – с другой стороны, встроен в пространство города своими первыми этажами. На первом и подземном ярусах в проекте расположены бассейн и спа, спортзал, ритейл, рестораны. 

Бассейн освещен через приямки, на первом коммерческом этаже запланирован небольшой зимний сад. Но главный пространственный аттракцион общественных ярусов – это открытая винтовая лестница, которая соединяет первый и минус-первый этажи. 
Комплекс апартаментов Саввинская 27 от Level. План 1 этажа © ODA, Проектное бюро АПЕКС
Комплекс апартаментов Саввинская 27 от Level. План 1 этажа
© ODA, Проектное бюро АПЕКС
Комплекс апартаментов Саввинская 27 от Level. Поперечный разрез © ODA, Проектное бюро АПЕКС
Комплекс апартаментов Саввинская 27 от Level. Поперечный разрез
© ODA, Проектное бюро АПЕКС
Комплекс апартаментов Саввинская 27 от Level. План подземного этажа © ODA, Проектное бюро АПЕКС
Комплекс апартаментов Саввинская 27 от Level. План подземного этажа
© ODA, Проектное бюро АПЕКС

С трех сторон дом решен как скульптура, и мы видим, что реализации задуманного проектировщики АПЕКС приложили немало усилий и технических знаний. Дворовый фасад лаконичнее, он представляет собой уплощенную проекцию обращенной к реке живописной композиции, но приподнят консолью, так вдоль первого этажа и здесь образуется прогулочная галерея под «козырьком». С другой стороны, именно в проекции лучше читаются арки, составляющие графическую основу всех фасадов здания. 
Комплекс апартаментов Саввинская 27 от Level © ODA, Проектное бюро АПЕКС
Комплекс апартаментов Саввинская 27 от Level
© ODA, Проектное бюро АПЕКС
Комплекс апартаментов Саввинская 27 от Level © ODA, Проектное бюро АПЕКС / предоставлено пресс-службой Москомархитектуры
Комплекс апартаментов Саввинская 27 от Level
© ODA, Проектное бюро АПЕКС / предоставлено пресс-службой Москомархитектуры