Размещено на портале Архи.ру (www.archi.ru)

29.08.2024

Смотрящий на воду

Дарья Горелова
Объект:
Villa Sonata
Адрес:
Россия, Тверская область,
Архитектор:
Роман Леонидов
Мастерская:
АБ Романа Леонидова
Авторский коллектив:
Роман Леонидов  

Участок виллы Sonata вытянут от дороги до кромки воды, у него есть собственный берег, пристань, хорошая речная панорама. Раскрывая виды, Роман Леонидов «срезал» фасад по диагонали параллельно реке: так у дома образовалось две главные оси и, как следствие, «две головы». А внутреннее ядро – два двусветных пространства, гостиная и оранжерея, и «мостик» над ними – делает дом и проницаемым, и светлым.

Villa Sonata расположилась на прибрежном участке. Он протяженный и даже узкий – вытянут между рекой и дорогой, его границы по боковым сторонам параллельны, со стороны дороги и воды, напротив, срезаны под углом, что и определило, во многом, и принцип застройки, и форму дома. 

Дом разделяет собой участок на два двора: ближе к дороге – квадратный открытый, здесь при входе гараж, совмещенный с гостевым домом, вытянут вдоль правой границы.

Villa Sonata. План благоустройства © Архитектурное бюро Романа Леонидова
Villa Sonata. План благоустройства
© Архитектурное бюро Романа Леонидова
Гараж и гостевой дом при въезде на участок. Villa Sonata Фотография © Роман Леонидов
Гараж и гостевой дом при въезде на участок. Villa Sonata
Фотография © Роман Леонидов

Эта, со стороны дороги – первая часть территории крупнее и дорожка, выложенная светлым камнем, пошире. Первоначально слева планировался небольшой искусственный пруд с водой для полива, но в процессе строительства от него отказались.

Первый двор можно определить, хотя и не без доли условности, как cour d'honneur, парадный двор. Второй двор, со стороны реки – более живой и природный; здесь – склон к воде и сухой декоративный «ручей» с мостиком.
Villa Sonata Фотография © Роман Леонидов
Villa Sonata
Фотография © Роман Леонидов
Villa Sonata Фотография © Роман Леонидов
Villa Sonata
Фотография © Роман Леонидов

По словам Романа Леонидова, владельцы дома чаще заходят в дом отсюда, от реки. Этот двор – в большей степени приватный, хотя вся территория окружена деревьями, которым предстоит вырасти и лучше оградить внутреннее пространство. Но ему достались панорамы речного простора, пирс-пристань, два небольших пляжа, галечный и песчаный. Здесь на берегу, у кромки воды, расположился домик для барбекю – временное сооружение в водоохранной зоне, павильон с металлическим каркасом. Домик, накрытый «крылом» кровли с далеким выносом козырька, вытянут вдоль кромки воды; на плане участка он поддерживает диагональ. 
Вид на домик BBQ со стороны пристани. Villa Sonata Фотография © Роман Леонидов
Вид на домик BBQ со стороны пристани. Villa Sonata
Фотография © Роман Леонидов
Villa Sonata Фотография © Роман Леонидов
Villa Sonata
Фотография © Роман Леонидов

Если говорить о главном доме, то оба его фасада: обращенный к дороге и выходящий на реку – скорее равнозначны, но отличаются по образу и силуэту.

Со стороны въезда на территорию вилла вытянута по горизонтали, два асимметричных «ризалита» обрамляют глубокую лоджию входа. Сюда может, при необходимости, к дому подъехать автомобиль; он лаконичен, по-своему строг и уверенно распределен по земле. 
Villa Sonata
Villa Sonata
Фотография © Роман Леонидов

Фасад, выходящий к реке, ассиметричен: больше половины его длины срезано по линии, параллельной берегу и домику барбекю. Так что здесь встречаются две сетки: ортогональная и диагональная. Архитектор признается: «вообще-то я не люблю такого рода скосы, но здесь поворот был необходим, чтобы раскрыть максимум речных панорам». 

Диагональ гипотенузой объединяет главные оси дома: вдоль участка к воде и поперек. Объемное воплощение осей – две крупные «мансарды»: одна смотрит прямо, другая от дороги влево, от реки вправо. 
Villa Sonata
Villa Sonata
Фотография © Роман Леонидов

Обе накрыты дугообразными кровлями, а это – один из любимых приемов Леонидова; гнутые кровли из клееного дерева встречаются во многих его домах, взять к примеру «усадьбу Завидное» или Omega house – изгиб, по словам архитектора, помогает смягчить жесткость геометричного объема. 
Villa Sonata
Villa Sonata
Фотография © Роман Леонидов

В данном случае развитие темы недвусмысленно показывает, что у дома – две головы. Растут они из примерно одной точки, а смотрят в разные, хотя и не противоположные стороны.

Сложно подыскать более явственную метафору того факта, что у загородного дома два хозяина: он и она. Так и есть; помимо гостевых комнат и общих пространств дом делится на две половины – если смотреть со стороны дороги, то правая половина мужская, левая женская. В правой больше прямоугольников, в левой скосов, так что «мужская» оказывается более основательной, распластанной по земле, «квадратичной», тут и хамам, и бильярд, и кабинет, и комната отдыха. С этой, правой стороны – большая квадратная в плане терраса на кровле ризалита с бильярдной внутри. Снаружи, между «мужской» частью и гостевым домом – спортивная площадка. 
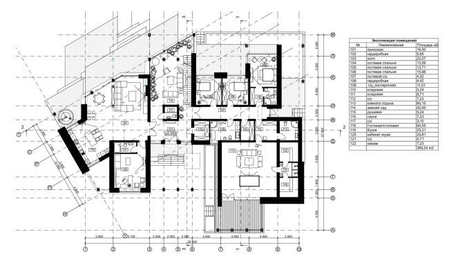
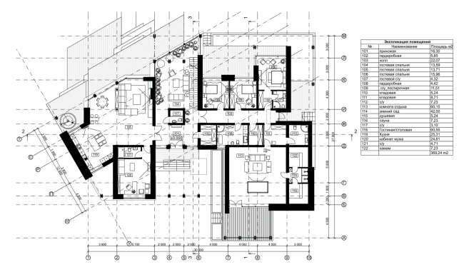
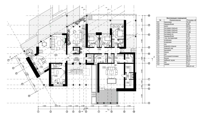
Villa Sonata. План 1 этажа
Villa Sonata. План 1 этажа
© Архитектурное бюро Романа Леонидова

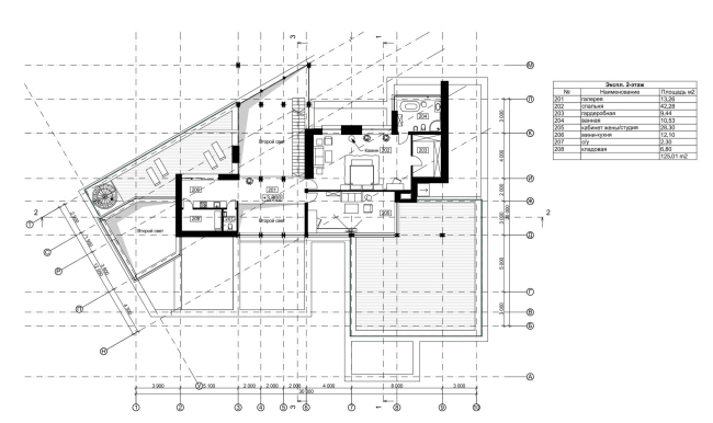
Левая, «женская», часть подчинена скошенному объему, она откликается на реку, но и нанизана на поперечную ось «как голова на шею». Внутри ось выражена в навесном переходе, который на уровне второго этажа соединяет главную спальню и мастерскую хозяйки. В мастерской, к слову сказать, и душ, и мини-кухня, так что в этой части дома можно жить, особенно не спускаясь вниз. 
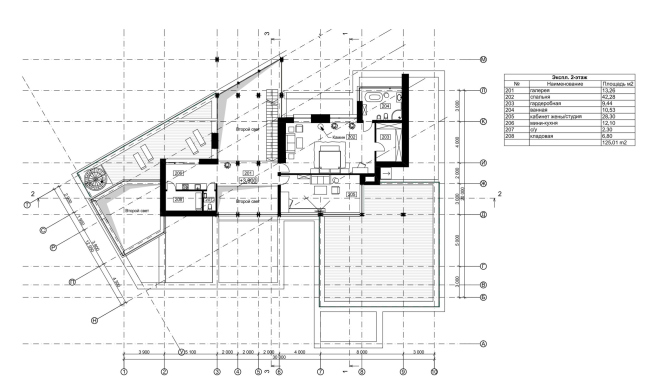
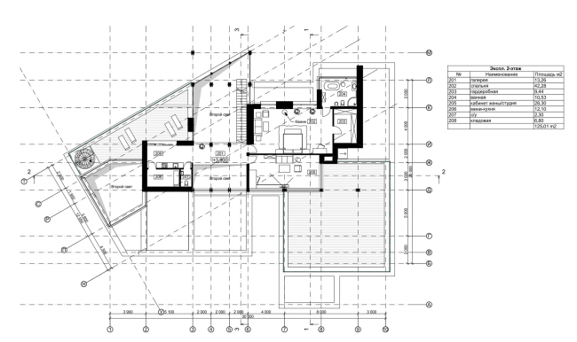
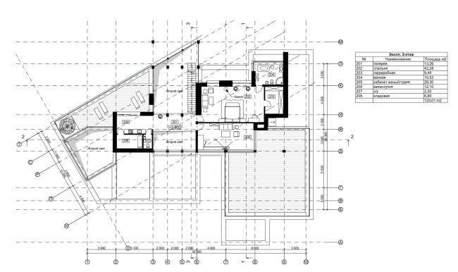
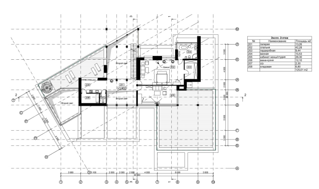
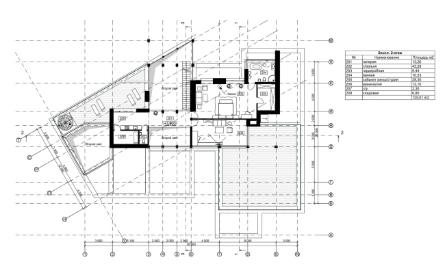
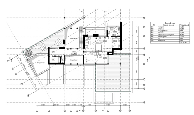
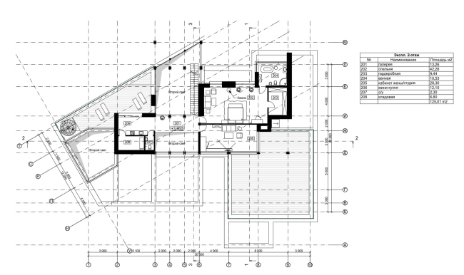
Villa Sonata. План 2 этажа
Villa Sonata. План 2 этажа
© Архитектурное бюро Романа Леонидова

Мостик «парит» над проходом в оранжерею от главного входа и оформляет, таким образом, главное перекрестье общественной или гостевой части интерьера. Оранжерея – увлечение хозяйки, она большая, двусветная, ее витраж обращен к реке. Если входить в дом со стороны дороги, то мы увидим мостик, за ним растения и витраж с видом на воду. Слева гостиная, тоже двусветное пространство.

В этой части дома тоже есть своя терраса на кровле. Это солярий, место для загорания; он расположен на кровле гостиной и его граница тоже срезана по диагонали, что делает вторую (или, от реки, первую) террасу более динамичной и легкой. Одна терраса широкая квадратная, другая – с заостренными краями, как лезвие. Внизу солярию вторит другой настил, вынесенный от фасада дальше вперед. 

На солярий можно подняться, или спуститься с него, по металлической винтовой лестнице на углу перед витражом, это еще один из любимых приемов Романа Леонидова; взять хотя бы Zeppelin house 2008 года. Лестница – и практически полезный элемент, поскольку благодаря ей возникает «кольцевой проход» по дому: внутри оранжереи можно подняться, с террасы спуститься, и наоборот, – и декоративный. 
Villa Sonata Фотография © Роман Леонидов
Villa Sonata
Фотография © Роман Леонидов
Villa Sonata Фотография © Роман Леонидов
Villa Sonata
Фотография © Роман Леонидов
Villa Sonata
Villa Sonata
Фотография © Роман Леонидов

Еще один характерный прием Леонидова – опоясывающие дом горизонтальные окна: «они словно разрывают монолит стены, делают здание легким».
 
Дом построен из клееного бруса, отделан планкенами из лиственницы, часть стен – светлым кварцитом и темным сланцем. «В отделке использовались исключительно натуральные материалы – дерево и камень; а большие витражные окна и террасы помогают стереть границу между интерьером и окружающим ландшафтом» – говорит Роман Леонидов.
Villa Sonata Фотография © Роман Леонидов
Villa Sonata
Фотография © Роман Леонидов
Villa Sonata Фотография © Роман Леонидов
Villa Sonata
Фотография © Роман Леонидов
Villa Sonata Фотография © Роман Леонидов
Villa Sonata
Фотография © Роман Леонидов
Villa Sonata Фотография © Роман Леонидов
Villa Sonata
Фотография © Роман Леонидов
Villa Sonata Фотография © Роман Леонидов
Villa Sonata
Фотография © Роман Леонидов
Villa Sonata Фотография © Роман Леонидов
Villa Sonata
Фотография © Роман Леонидов

Тема дерева и камня повторяется в ландшафтном дизайне, где  деревья сочетаются с каменными тумбами, валунами, гравийной крошкой, дорожками светло-серого и темно-серого камня. 

Не менее важной частью виллы стали растения; любовь к растениям – ведущий мотив дома, их много и снаружи, и внутри, в зимнем саду и на клумбах: всесезонные и летние растения как будто даже «переглядываются» между собой. 
Villa Sonata Фотография © Роман Леонидов
Villa Sonata
Фотография © Роман Леонидов
Озеленение обещает разростись, но уже сейчас здесь немало деревьев, но особенно – цветов. Villa Sonata Фотография © Роман Леонидов
Озеленение обещает разростись, но уже сейчас здесь немало деревьев, но особенно – цветов. Villa Sonata
Фотография © Роман Леонидов

Да и сам дом, как мы помним, «смотрит» на окрестности, что особенно заметно со стороны пристани.

Энергичная форма, свойственная Роману Леонидову, вообще нередко делает его дома похожими на живых существ; не буквально, скорее эмоционально. Так что «двухголовый» дом с павильоном у пристани, накрытым козырьком-крылом, или даже «кепкой» – сколь бы ни было привычно это сравнение – может показаться семейством, расположившимся на лужайке у реки.