Размещено на портале Архи.ру (www.archi.ru)

15.08.2024

Балконы на Дунае

Нина Фролова
Объект:
Жилой комплекс Karlheinz Hora Hof
Адрес:
Австрия, None, Вена. Handelskai 214A, 1020 Wien
Мастерская:
querkraft architekten

Комплекс муниципального жилья в Вене по проекту querkraft architekten максимально использует длинный участок вдоль берега Дуная.

Жилой комплекс из семи корпусов, водруженных на озелененный подиум вдоль набережной Хандельскай, продолжает знаменитую традицию венского муниципального жилья: в таких квартирах живет четверть горожан независимо от достатка и социальной группы (о том, как эта история началась сто лет назад, мы подробно писали здесь).
 

Жилой комплекс Karlheinz Hora Hof
Жилой комплекс Karlheinz Hora Hof
Фото © Hertha Hurnaus. Предоставлено querkraft architekten

Сложный участок длиной 400 м и шириной 20 м ограничен с одной стороны проезжей частью и линией городской и пригородной электрички, отрезающими его от зеленой зоны у воды, а с другой – длинным комплексом муниципального жилья конца XX века.
 
Жилой комплекс Karlheinz Hora Hof
Жилой комплекс Karlheinz Hora Hof
Фото © Hertha Hurnaus. Предоставлено querkraft architekten

В 2017 на проект ЖК в этом месте был проведен закрытый конкурс, в котором победили querkraft architekten. Они постарались извлечь максимум от близости к Дунаю и при этом с уважением отнестись к существующим домам и их обитателям.
 
Жилой комплекс Karlheinz Hora Hof
Жилой комплекс Karlheinz Hora Hof
Фото © Hertha Hurnaus. Предоставлено querkraft architekten

Поэтому комплекс состоит из семи сравнительно узких корпусов, которые не загораживают реку живущим «на второй линии». Ритм расположения новостроек совпадает с композицией проходящего параллельно более старого ЖК, который мы упоминали выше.
 
Жилой комплекс Karlheinz Hora Hof
Жилой комплекс Karlheinz Hora Hof
Фото © Hertha Hurnaus. Предоставлено querkraft architekten

Располагавшийся перед тем ЖК гараж потерял один этаж, что позволило лучше осветить здесь квартиры. Далее, в полосе между новым и старым комплексами, создали удобную приватную улицу, с которой на подиум сооружения querkraft architekten ведут широкие лестницы. Наверху устроен сад, открытый не только жильцам, но и всем горожанам, а внутри подиума устроен паркинг.
 
Жилой комплекс Karlheinz Hora Hof
Жилой комплекс Karlheinz Hora Hof
Фото © Hertha Hurnaus. Предоставлено querkraft architekten

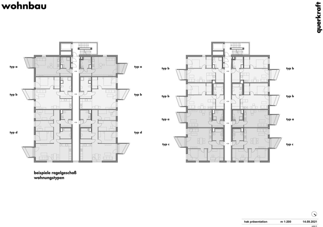
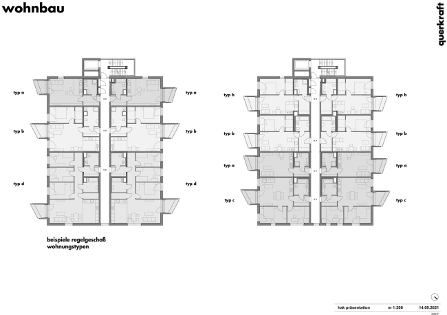
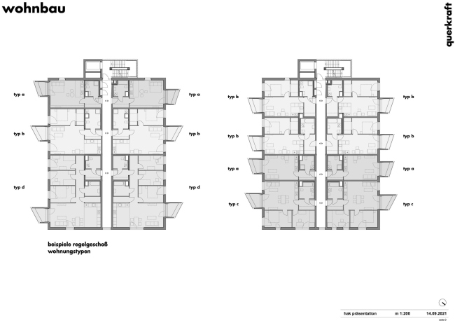
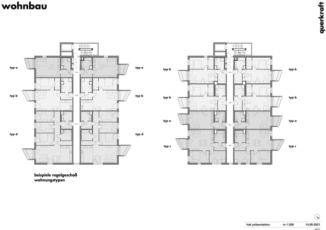
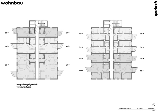
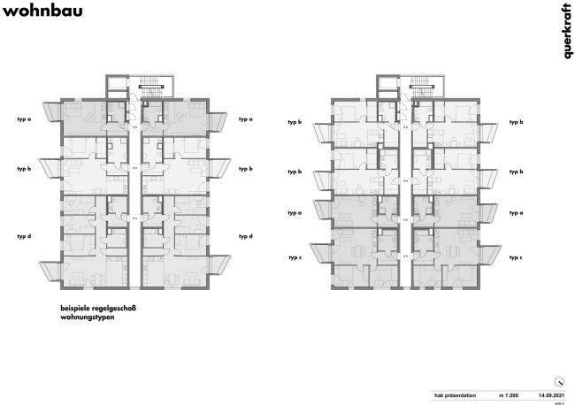
Корпуса немного отличаются высотой и формой, а также расцветкой, разработанной совместно с известным художником и исследователем цвета Инго Нуссбаумером. Отличительная черта комплекса – асимметричные оконные проемы, а также бетонные балконы-консоли, напоминающие лоджии (у них есть стенки и крыша). Их целиком изготовляли на заводе, на стройплощадке оставалось лишь прикрепить их в четырех точках к фасаду.
 
Жилой комплекс Karlheinz Hora Hof © querkraft architekten
Жилой комплекс Karlheinz Hora Hof
© querkraft architekten
Жилой комплекс Karlheinz Hora Hof © querkraft architekten
Жилой комплекс Karlheinz Hora Hof
© querkraft architekten

Балконы выходят во дворы на подиуме, чтобы сохранить приватность жильцов, но при этом слегка «искривлены», чтобы те могли одновременно любоваться Дунаем. Архитекторы предусмотрели систему «персонализации» балконов жильцами.
Жилой комплекс Karlheinz Hora Hof
Жилой комплекс Karlheinz Hora Hof
© querkraft architekten
Жилой комплекс Karlheinz Hora Hof © querkraft architekten
Жилой комплекс Karlheinz Hora Hof
© querkraft architekten
Жилой комплекс Karlheinz Hora Hof © querkraft architekten
Жилой комплекс Karlheinz Hora Hof
© querkraft architekten
Жилой комплекс Karlheinz Hora Hof © querkraft architekten
Жилой комплекс Karlheinz Hora Hof
© querkraft architekten
Жилой комплекс Karlheinz Hora Hof © querkraft architekten
Жилой комплекс Karlheinz Hora Hof
© querkraft architekten