Размещено на портале Архи.ру (www.archi.ru)

16.08.2024

Конь огонь

Алёна Кузнецова
Объект:
Концепции благоустройства площади у станции метро «Тулпар» в Казани
Адрес:
Россия, Казань.
Станция метро «Тулпар»
Адрес:
Россия, Казань.
Мастерская:
NTML architects
TOBE architects
Авторский коллектив:
Денис Хохлов

Консорциум TOBE Architects и NTML architects победил в конкурсе на концепцию благоустройства площади у станции метро «Тулпар» в Казани. Зонирование, учитывающее мастер-план развития района, архитекторы совместили с национальными мотивами, вписав в «полотно» территории выходящего из воды волшебного коня Тулпара и отсылки к традиционному женскому костюму.

Конкурс, о котором идет речь, – один из немногих, что учитывают интересы и застройщика, и города. С одной стороны, площадь – часть инфраструктуры жилого комплекса «Мой ритм», продолжение его пешеходного бульвара и «визитная карточка», предъявляемая всем, кто идет или проезжает по улице Академика Сахарова. Одновременно эта территория является важным общегородским пространством, поскольку в будущем будет примыкать к вестибюлю станции метро «Тулпар». Она станет четвертой на новой ветке, которая уже строится для обслуживания обширного Советского района. Напротив площади располагается торговый комплекс «Мега» – еще одна точка, которая генерирует поток пешеходов и автомобилистов.  

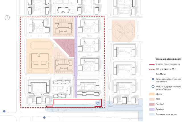
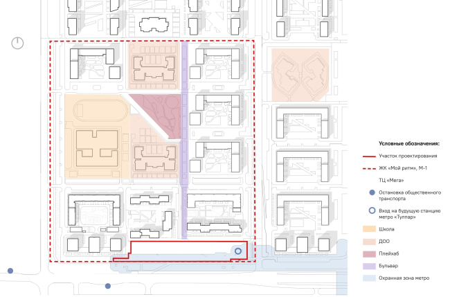
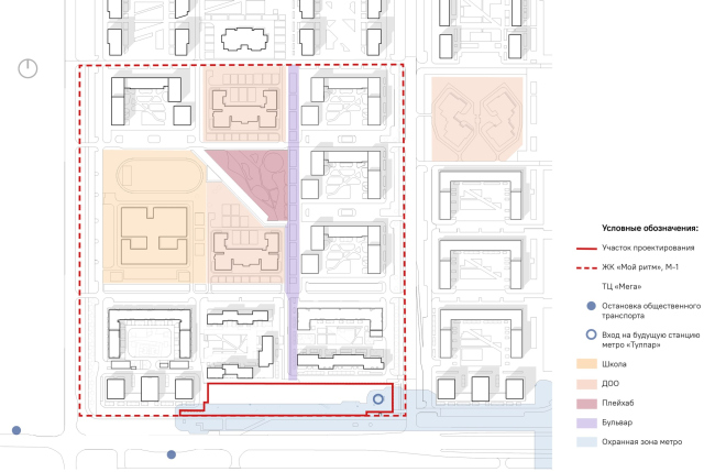
Концепции благоустройства площади у станции метро «Тулпар» в Казани. Ситуационный план
Концепции благоустройства площади у станции метро «Тулпар» в Казани. Ситуационный план
© TOBE architects, NTML architects
Концепции благоустройства площади у станции метро «Тулпар» в Казани. Схема размещения объектов благоустройства на территории райна
Концепции благоустройства площади у станции метро «Тулпар» в Казани. Схема размещения объектов благоустройства на территории райна
© TOBE architects, NTML architects

Тулпар – крылатый конь из тюркской мифологии и популярный персонаж татарских сказок. Он появился в названии станции не случайно, поскольку рядом находится крупнейший в России ипподром. В 2023 году проходил конкурс на оформление новых станций, для «Тулпар» выбрали концепцию Дениса Хохлова, который предположил нанести на стены детские рисунки волшебного коня. 

Таким образом, конкурсантам было необходимо увязать несколько сюжетов: вписать площадь в сценарий комплекса «Мой ритм» и всего микрорайона, предложить приезжающим за покупками горожанам досуг, а также поддержать семейную и национальную тему. 
Концепции благоустройства площади у станции метро «Тулпар» в Казани
Концепции благоустройства площади у станции метро «Тулпар» в Казани
© TOBE architects, NTML architects

Заявка TOBE и NTML была подержана большинством голосов жюри. Бюро NTML в консорциуме отвечало за облик арт-объектов. 

Архитекторы предложили разделить линейную площадь на несколько зон. Более спокойные – променады и островки озеленения – располагаются рядом с домами. Более активные объекты отнесены в глубину – это событийная площадка с амфитеатром у вестибюля метро, а также торговые павильоны с кафе и беседкой в противоположной части. Функциональные зоны не препятствуют движению транзитных потоков, а от дороги и парковок их отделяет «буфер» плотного озеленения.  
Концепции благоустройства площади у станции метро «Тулпар» в Казани. План благоустройства
Концепции благоустройства площади у станции метро «Тулпар» в Казани. План благоустройства
© TOBE architects, NTML architects
Концепции благоустройства площади у станции метро «Тулпар» в Казани © TOBE architects, NTML architects
Концепции благоустройства площади у станции метро «Тулпар» в Казани
© TOBE architects, NTML architects
Концепции благоустройства площади у станции метро «Тулпар» в Казани © TOBE architects, NTML architects
Концепции благоустройства площади у станции метро «Тулпар» в Казани
© TOBE architects, NTML architects
Концепции благоустройства площади у станции метро «Тулпар» в Казани © TOBE architects, NTML architects
Концепции благоустройства площади у станции метро «Тулпар» в Казани
© TOBE architects, NTML architects
Концепции благоустройства площади у станции метро «Тулпар» в Казани © TOBE architects, NTML architects
Концепции благоустройства площади у станции метро «Тулпар» в Казани
© TOBE architects, NTML architects

Авторы проекта рассказывают, что "функциональное зонирование отсылает к традиционной части национального татарского женского костюма – хасите, – полотно которого наполняется монетами, брошами и амулетами, что символизирует богатство хозяйки и является ее оберегом».
Концепции благоустройства площади у станции метро «Тулпар» в Казани. Функциональное зонирование
Концепции благоустройства площади у станции метро «Тулпар» в Казани. Функциональное зонирование
© TOBE architects, NTML architects

Пешеходный бульвар жилого комплекса «Мой ритм», который вливается в площадь, архитекторы замыкают ярким акцентом – фигурой коня, символически выходящего из воды – согласно мифологии, Тулпар пришел со дна колодца или моря, либо сказочные герои ловят его на берегу озера. Этот мотив поддерживает рисунок мощения, выполненный в виде ряби на водной глади, а также зеркальные панели облицовки торговых павильонов. Амфитеатр и островки зелени в этом контексте становятся выступающими из воды скалами.
Концепции благоустройства площади у станции метро «Тулпар» в Казани
Концепции благоустройства площади у станции метро «Тулпар» в Казани
© TOBE architects, NTML architects
Концепции благоустройства площади у станции метро «Тулпар» в Казани. Развертки
Концепции благоустройства площади у станции метро «Тулпар» в Казани. Развертки
© TOBE architects, NTML architects

Форма коня, слегка напоминающая дракона, отсылает к детским рисункам, которыми будет оформлена станция метро. Зимой Тулпар становится центром катка, небольшую площадь которого компенсируют интересные траектории движения.
Концепции благоустройства площади у станции метро «Тулпар» в Казани © TOBE architects, NTML architects
Концепции благоустройства площади у станции метро «Тулпар» в Казани
© TOBE architects, NTML architects
Концепции благоустройства площади у станции метро «Тулпар» в Казани © TOBE architects, NTML architects
Концепции благоустройства площади у станции метро «Тулпар» в Казани
© TOBE architects, NTML architects

Другие яркие объекты площади – «колосья» и беседка, стилизованная под головной убор калфак. Цветовая палитра вдохновлена гербом Казани, на котором преобладают красный, зеленый и черный цвета.
Концепции благоустройства площади у станции метро «Тулпар» в Казани
Концепции благоустройства площади у станции метро «Тулпар» в Казани
© TOBE architects, NTML architects
Концепции благоустройства площади у станции метро «Тулпар» в Казани. Индивидуальный МАФ
Концепции благоустройства площади у станции метро «Тулпар» в Казани. Индивидуальный МАФ
© TOBE architects, NTML architects

В финал конкурса прошли работы бюро Атом, консорциума «Простор», UNK landscape и Dot bureau. С победителем же будет заключен договор на доработку конкурсного предложения.
Концепции благоустройства площади у станции метро «Тулпар» в Казани. Зона островков и входная зона в метро © TOBE architects, NTML architects
Концепции благоустройства площади у станции метро «Тулпар» в Казани. Зона островков и входная зона в метро
© TOBE architects, NTML architects
Концепции благоустройства площади у станции метро «Тулпар» в Казани. Зона событийной площадки © TOBE architects, NTML architects
Концепции благоустройства площади у станции метро «Тулпар» в Казани. Зона событийной площадки
© TOBE architects, NTML architects
Концепции благоустройства площади у станции метро «Тулпар» в Казани. Зона событийной площадки праздничный сценарий © TOBE architects, NTML architects
Концепции благоустройства площади у станции метро «Тулпар» в Казани. Зона событийной площадки праздничный сценарий
© TOBE architects, NTML architects
Концепции благоустройства площади у станции метро «Тулпар» в Казани. Центральная зона с фонтаном © TOBE architects, NTML architects
Концепции благоустройства площади у станции метро «Тулпар» в Казани. Центральная зона с фонтаном
© TOBE architects, NTML architects
Концепции благоустройства площади у станции метро «Тулпар» в Казани. Центральная зона с фонтаном зимний сценарий © TOBE architects, NTML architects
Концепции благоустройства площади у станции метро «Тулпар» в Казани. Центральная зона с фонтаном зимний сценарий
© TOBE architects, NTML architects
Концепции благоустройства площади у станции метро «Тулпар» в Казани. Торговая зона © TOBE architects, NTML architects
Концепции благоустройства площади у станции метро «Тулпар» в Казани. Торговая зона
© TOBE architects, NTML architects
Концепции благоустройства площади у станции метро «Тулпар» в Казани. Торговая зона зимний сценарий © TOBE architects, NTML architects
Концепции благоустройства площади у станции метро «Тулпар» в Казани. Торговая зона зимний сценарий
© TOBE architects, NTML architects