Размещено на портале Архи.ру (www.archi.ru)

13.02.2019

Полкилометра культуры

Объект:
Культурный центр района Лунган
Адрес:
Китай, None, Шэньчжэнь.
Мастерская:
Mecanoo

В Шэньчжэне открылся Культурный центр района Лунган по проекту бюро Mecanoo.

Культурный центр района Лунган. Фото © Zhang Chao
Культурный центр района Лунган. Фото © Zhang Chao

Если в Шэньчжэне, основанном всего лишь в 1980 как «социалистический» близнец тогда еще британского Гонконга, живет сейчас более 12 млн человек, то в одном его районе Лунган – почти два миллиона. Для них и предназначен новый культурный центр общей площадью почти 100 тыс. м2.
 
Культурный центр района Лунган. Фото © Zhang Chao
Культурный центр района Лунган. Фото © Zhang Chao

По замыслу архитекторов Mecanoo, выигравших конкурс на его проект еще в 2011, это 400-метровое низкое (25 м) и сравнительно неширокое (50 м) сооружение расположено на лентовидном участке между парком и деловым центром. Правила зонирования определили его необычную форму, но, вместо того, чтобы стать преградой между двумя частями города, здание обеспечивает их связь. Четыре объема (каждый – со своей функцией) разделены проходами, которые обеспечивают циркуляцию не только пешеходов (они устроены по линии существующих улиц), но и воздушных потоков, образуют защищенные от солнца и дождя площади, что актуально в субтропическом климате. Обтекаемые криволинейные объемы кадрируют эффектные виды на город, а одинаковое решение фасадов позволило их все сделать «главными».
Культурный центр района Лунган. Фото © Zhang Chao
Культурный центр района Лунган. Фото © Zhang Chao

Бетонные стены открыты в интерьер «изнанкой», поэтому посетители находятся как будто внутри литой бетонной скульптуры, считают авторы.
 
Культурный центр района Лунган. Фото © Zhang Chao
Культурный центр района Лунган. Фото © Zhang Chao

Программа включает в себя центр популярной науки для детей и юношества (10 000 м2), молодежный центр для общения, занятий спортом, концертов (8 000 м2), художественный музей (13 500 м2), где на первом этаже и в цоколе открыт центр градостроительства. Самый большой объем с дополнительными «воротами» посередине занят книжным торговым центром с кафе и ресторанами (35 000 м2). Также в комплекс входят 7000 м2 других магазинов и 21 500 м2 подземного гаража. При площади участка в 3,8 га значительная его часть занята общественным пространством.
Культурный центр района Лунган. Фото © Zhang Chao
Культурный центр района Лунган. Фото © Zhang Chao
Культурный центр района Лунган. Фото © Zhang Chao
Культурный центр района Лунган. Фото © Zhang Chao
Культурный центр района Лунган. Рендер © Mecanoo Architects, фото © Zhang Chao
Культурный центр района Лунган. Рендер © Mecanoo Architects, фото © Zhang Chao
Культурный центр района Лунган. Фото © Zhang Chao
Культурный центр района Лунган. Фото © Zhang Chao
Культурный центр района Лунган. Фото © Zhang Chao
Культурный центр района Лунган. Фото © Zhang Chao
Культурный центр района Лунган. Фото © Zhang Chao
Культурный центр района Лунган. Фото © Zhang Chao
Культурный центр района Лунган. Фото © Zhang Chao
Культурный центр района Лунган. Фото © Zhang Chao
Культурный центр района Лунган. Фото © Zhang Chao
Культурный центр района Лунган. Фото © Zhang Chao
Культурный центр района Лунган. Фото © Zhang Chao
Культурный центр района Лунган. Фото © Zhang Chao
Культурный центр района Лунган. Фото © Zhang Chao
Культурный центр района Лунган. Фото © Zhang Chao
Культурный центр района Лунган. Фото © Zhang Chao
Культурный центр района Лунган. Фото © Zhang Chao
Культурный центр района Лунган. Фото © Zhang Chao
Культурный центр района Лунган. Фото © Zhang Chao
Культурный центр района Лунган. Фото © Zhang Chao
Культурный центр района Лунган. Фото © Zhang Chao
Культурный центр района Лунган. Фото © Zhang Chao
Культурный центр района Лунган. Фото © Zhang Chao
Культурный центр района Лунган. Фото © Zhang Chao
Культурный центр района Лунган. Фото © Zhang Chao
Культурный центр района Лунган. Фото © Zhang Chao
Культурный центр района Лунган. Фото © Zhang Chao
Культурный центр района Лунган. Фото © Zhang Chao
Культурный центр района Лунган. Фото © Zhang Chao
Культурный центр района Лунган. Фото © Zhang Chao
Культурный центр района Лунган. Фото © Zhang Chao
Культурный центр района Лунган. Фото © Zhang Chao
Культурный центр района Лунган. Фото © Zhang Chao
Культурный центр района Лунган. Фото © Zhang Chao
Культурный центр района Лунган. Фото © Zhang Chao
Культурный центр района Лунган. Фото © Zhang Chao
Культурный центр района Лунган. Фото © Zhang Chao
Культурный центр района Лунган. Фото © Zhang Chao
Культурный центр района Лунган. Фото © Zhang Chao
Культурный центр района Лунган. Фото © Zhang Chao
Культурный центр района Лунган. Фото © Zhang Chao
Культурный центр района Лунган. Фото © Zhang Chao
Культурный центр района Лунган. Фото © Zhang Chao
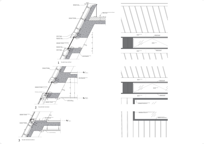
Культурный центр района Лунган © Mecanoo Architects
Культурный центр района Лунган © Mecanoo Architects
Культурный центр района Лунган © Mecanoo Architects
Культурный центр района Лунган © Mecanoo Architects
Культурный центр района Лунган © Mecanoo Architects
Культурный центр района Лунган © Mecanoo Architects
Культурный центр района Лунган © Mecanoo Architects
Культурный центр района Лунган © Mecanoo Architects
Культурный центр района Лунган © Mecanoo Architects
Культурный центр района Лунган © Mecanoo Architects
Культурный центр района Лунган © Mecanoo Architects
Культурный центр района Лунган © Mecanoo Architects
Культурный центр района Лунган © Mecanoo Architects
Культурный центр района Лунган © Mecanoo Architects
Культурный центр района Лунган © Mecanoo Architects
Культурный центр района Лунган © Mecanoo Architects
Культурный центр района Лунган © Mecanoo Architects
Культурный центр района Лунган © Mecanoo Architects
Культурный центр района Лунган © Mecanoo Architects
Культурный центр района Лунган © Mecanoo Architects
Культурный центр района Лунган © Mecanoo Architects
Культурный центр района Лунган © Mecanoo Architects
Культурный центр района Лунган © Mecanoo Architects
Культурный центр района Лунган © Mecanoo Architects
Культурный центр района Лунган © Mecanoo Architects
Культурный центр района Лунган © Mecanoo Architects
Культурный центр района Лунган © Mecanoo Architects
Культурный центр района Лунган © Mecanoo Architects