Размещено на портале Архи.ру (www.archi.ru)

16.07.2018

Критика информационного хаоса

Объект:
Штаб-квартира GS1 Portugal
Адрес:
Португалия, None, Лиссабон.
Мастерская:
Promontorio

Архитекторы Promontorio реконструировали в Лиссабоне офисное здание 1980-х под штаб-квартиру португальского отделения GS1; на его фасад помещен барельеф мастера стрит-арта Vhils’а.

Штаб-квартира GS1 Portugal. Архитекторы Promontorio. Фото © Fernando Guerra / FG+SG
Штаб-квартира GS1 Portugal. Архитекторы Promontorio. Фото © Fernando Guerra / FG+SG

GS1 – международная некоммерческая организация, занимающаяся бизнес-стандартами типа штрих-кодов, QR-кодов, классификацией товаров, тары и т.д. Для ее новой штаб-квартиры в Лиссабоне выбрали устаревшее морально и технически здание 1980-х на одном из первых в стране инновационных кампусов IAPMEI, в районе Лумиар. На проект реконструкции в 2014 был проведен конкурс, который бюро Promontorio выиграло совместно с художником-стрит-артистом Vhils’ом (Александром Фарту).
 
Штаб-квартира GS1 Portugal. Архитекторы Promontorio. Фото © Fernando Guerra / FG+SG
Штаб-квартира GS1 Portugal. Архитекторы Promontorio. Фото © Fernando Guerra / FG+SG

Главный фасад здания теперь остеклен; интерьер от солнечного света и жара защищен установленными под углом бетонными панелями. На них и нанесен барельеф Вилса, тема которого – критика современного информационного хаоса и визуального шума. Одновременно этот арт-проект – результат длительной работы художника и архитекторов над технологией литья крупномасштабных сборных бетонных деталей.
 
Штаб-квартира GS1 Portugal. Архитекторы Promontorio. Фото © Fernando Guerra / FG+SG
Штаб-квартира GS1 Portugal. Архитекторы Promontorio. Фото © Fernando Guerra / FG+SG

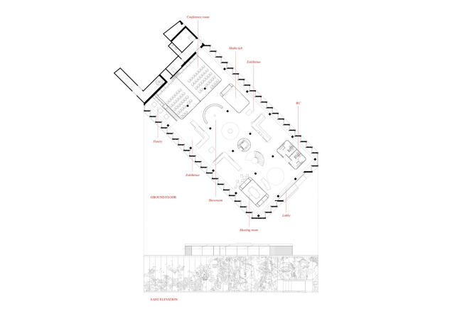
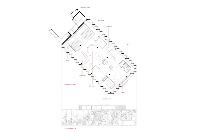
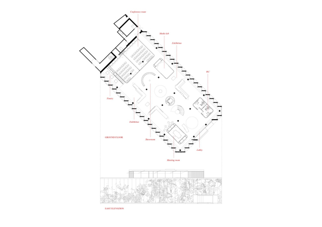
В интерьере здание осталось двухэтажным, с перекрытиями из кессонных панелей и расставленными по ортогональной сетке опорами. Первый этаж занят шоу-румом с медиа-инсталляциями, там же находятся зрительный зал и технические помещения. На втором ярусе расположены офисы со свободном планом, где переговорные и подсобные помещения спрятаны в «островах» с непрозрачными стенами. На крыше находятся помещения общего пользования с кофейней-баром и затененной террасой.
 
Штаб-квартира GS1 Portugal. Архитекторы Promontorio. Фото © Fernando Guerra / FG+SG
Штаб-квартира GS1 Portugal. Архитекторы Promontorio. Фото © Fernando Guerra / FG+SG

Тема реконструкции, вторичного использования подчеркнута открытыми в интерьер бетонными перекрытиями с хорошо видными проводами и системой вентиляции, без навесного потолка. Они контрастируют с приятными на ощупь материалами на уровне человеческого роста: пробкой, тканями, ковровыми покрытиями, линолеумом. Бюджет проекта составил 2 млн евро, общая площадь здания – 1750 м2.
Штаб-квартира GS1 Portugal. Архитекторы Promontorio. Фото © Fernando Guerra / FG+SG
Штаб-квартира GS1 Portugal. Архитекторы Promontorio. Фото © Fernando Guerra / FG+SG
Штаб-квартира GS1 Portugal. Архитекторы Promontorio. Фото © Fernando Guerra / FG+SG
Штаб-квартира GS1 Portugal. Архитекторы Promontorio. Фото © Fernando Guerra / FG+SG
Штаб-квартира GS1 Portugal. Архитекторы Promontorio. Фото © Fernando Guerra / FG+SG
Штаб-квартира GS1 Portugal. Архитекторы Promontorio. Фото © Fernando Guerra / FG+SG
Штаб-квартира GS1 Portugal. Архитекторы Promontorio. Фото © Fernando Guerra / FG+SG
Штаб-квартира GS1 Portugal. Архитекторы Promontorio. Фото © Fernando Guerra / FG+SG
Штаб-квартира GS1 Portugal. Архитекторы Promontorio. Фото © Fernando Guerra / FG+SG
Штаб-квартира GS1 Portugal. Архитекторы Promontorio. Фото © Fernando Guerra / FG+SG
Штаб-квартира GS1 Portugal. Архитекторы Promontorio. Фото © Fernando Guerra / FG+SG
Штаб-квартира GS1 Portugal. Архитекторы Promontorio. Фото © Fernando Guerra / FG+SG
Штаб-квартира GS1 Portugal. Архитекторы Promontorio. Фото © Fernando Guerra / FG+SG
Штаб-квартира GS1 Portugal. Архитекторы Promontorio. Фото © Fernando Guerra / FG+SG
Штаб-квартира GS1 Portugal. Архитекторы Promontorio. Фото © Fernando Guerra / FG+SG
Штаб-квартира GS1 Portugal. Архитекторы Promontorio. Фото © Fernando Guerra / FG+SG
Штаб-квартира GS1 Portugal. Архитекторы Promontorio. Фото © Fernando Guerra / FG+SG
Штаб-квартира GS1 Portugal. Архитекторы Promontorio. Фото © Fernando Guerra / FG+SG
Штаб-квартира GS1 Portugal. Архитекторы Promontorio. Фото © Fernando Guerra / FG+SG
Штаб-квартира GS1 Portugal. Архитекторы Promontorio. Фото © Fernando Guerra / FG+SG
Штаб-квартира GS1 Portugal. Архитекторы Promontorio. Фото © Fernando Guerra / FG+SG
Штаб-квартира GS1 Portugal. Архитекторы Promontorio. Фото © Fernando Guerra / FG+SG
Штаб-квартира GS1 Portugal. Архитекторы Promontorio. Фото © Fernando Guerra / FG+SG
Штаб-квартира GS1 Portugal. Архитекторы Promontorio. Фото © Fernando Guerra / FG+SG
Штаб-квартира GS1 Portugal. Архитекторы Promontorio. Фото © Fernando Guerra / FG+SG
Штаб-квартира GS1 Portugal. Архитекторы Promontorio. Фото © Fernando Guerra / FG+SG
Штаб-квартира GS1 Portugal. Архитекторы Promontorio. Фото © Fernando Guerra / FG+SG
Штаб-квартира GS1 Portugal. Архитекторы Promontorio. Фото © Fernando Guerra / FG+SG
Штаб-квартира GS1 Portugal. Архитекторы Promontorio. Фото © Fernando Guerra / FG+SG
Штаб-квартира GS1 Portugal. Архитекторы Promontorio. Фото © Fernando Guerra / FG+SG
Штаб-квартира GS1 Portugal. Архитекторы Promontorio. Фото © Fernando Guerra / FG+SG
Штаб-квартира GS1 Portugal. Архитекторы Promontorio. Фото © Fernando Guerra / FG+SG
Штаб-квартира GS1 Portugal. Архитекторы Promontorio. Фото © Fernando Guerra / FG+SG
Штаб-квартира GS1 Portugal. Архитекторы Promontorio. Фото © Fernando Guerra / FG+SG
Штаб-квартира GS1 Portugal. Архитекторы Promontorio. Фото © Fernando Guerra / FG+SG
Штаб-квартира GS1 Portugal. Архитекторы Promontorio. Фото © Fernando Guerra / FG+SG
Штаб-квартира GS1 Portugal. Архитекторы Promontorio. Фото © Fernando Guerra / FG+SG
Штаб-квартира GS1 Portugal. Архитекторы Promontorio. Фото © Fernando Guerra / FG+SG
Штаб-квартира GS1 Portugal. Архитекторы Promontorio. Фото © Fernando Guerra / FG+SG
Штаб-квартира GS1 Portugal. Архитекторы Promontorio. Фото © Fernando Guerra / FG+SG
Штаб-квартира GS1 Portugal. Вид здания до реконструкции. Фото © Fernando Guerra / FG+SG
Штаб-квартира GS1 Portugal. Вид здания до реконструкции. Фото © Fernando Guerra / FG+SG
Штаб-квартира GS1 Portugal © Promontorio
Штаб-квартира GS1 Portugal © Promontorio
Штаб-квартира GS1 Portugal © Promontorio
Штаб-квартира GS1 Portugal © Promontorio
Штаб-квартира GS1 Portugal © Promontorio
Штаб-квартира GS1 Portugal © Promontorio
Штаб-квартира GS1 Portugal © Promontorio
Штаб-квартира GS1 Portugal © Promontorio