Размещено на портале Архи.ру (www.archi.ru)

01.06.2015

Океан как главный герой

Объект:
«Прибрежная библиотека»
Адрес:
Китай, None, Циньхуандао.
Мастерская:
Vector Architects

Библиотека по проекту бюро Vector Architects на китайском курорте Аранья.

Аранья в составе городского округа Циньхуандао – один из популярных курортов Северного Китая, где бывает в том числе немало россиян. Однако «Прибрежная библиотека», построенная здесь пекинской мастерской Vector Architects, сильно отличается от привычных «туристических» построек – подобное учреждение вообще сложно представить на современном курорте. Впрочем, в случае с Араньей это объект коммерческого девелопера, который оказался вполне востребован отдыхающими на берегу Тихого океана.
 

Прибрежная библиотека. Фото: Su Shengliang © Vector Architects
Прибрежная библиотека. Фото: Su Shengliang © Vector Architects

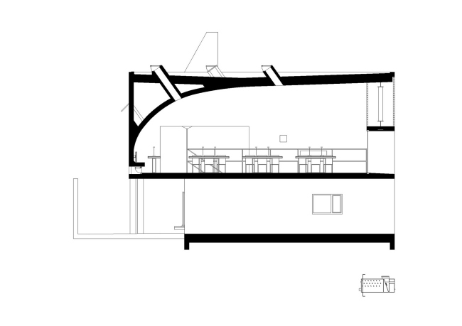
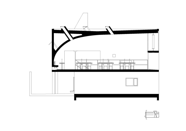
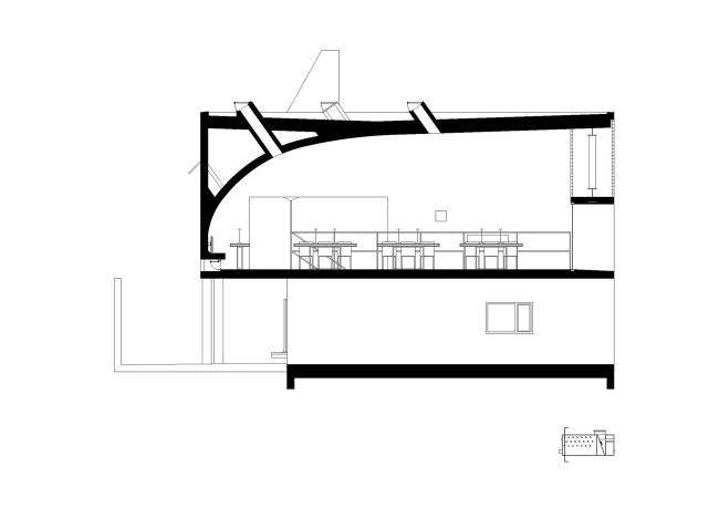
Архитекторы вдохновлялись ландшафтом побережья с остатками просмоленных рыбачьих хижин, окна которых «кадрируют» виды океана, превращая их в картины. По тому же принципу здание библиотеки служит не только своей прямой функции, но и позволяет человеку воспринять океан «глубже» и более лично, чем снаружи. В читальном зале панорамное окно и открывающиеся стеклянные окна и двери под ним играют роль своего рода сцены, и посетители располагаются на поднимающемся вверх «амфитеатре», чтобы следить за главным героем «драмы природы» – океаном. Свет и морской ветер проникают внутрь также и сквозь округлые окна в кровле.
 
Прибрежная библиотека. Фото: Xia Zhi © Vector Architects
Прибрежная библиотека. Фото: Xia Zhi © Vector Architects

В библиотеке имеется комната для медитаций, откуда океан не виден, но хорошо слышен через два окна-щели (одно «улавливает» рассветный свет, другое – закатный). Над этим помещением на крыше устроена терраса. Кроме того, в здании имеются пространство для активных занятий, бар и зона отдыха.
 
Прибрежная библиотека. Фото: Xia Zhi © Vector Architects
Прибрежная библиотека. Фото: Xia Zhi © Vector Architects

Особое внимание авторы проекта уделили материалам. Бетон они рассматривали как рукотворную скалу; с другой стороны, отпечатавшиеся на его поверхности грубые доски опалубки, по замыслу архитекторов, придают ему теплоту, в то время как стеклоблоки на океанском фасаде «смягчают» жесткость поддерживающих кровлю стальных ферм и меняют качество света – и солнечного, и искусственного.
Прибрежная библиотека. Фото: Su Shengliang © Vector Architects
Прибрежная библиотека. Фото: Su Shengliang © Vector Architects
Прибрежная библиотека. Фото: Su Shengliang © Vector Architects
Прибрежная библиотека. Фото: Su Shengliang © Vector Architects
Прибрежная библиотека. Фото: Xia Zhi © Vector Architects
Прибрежная библиотека. Фото: Xia Zhi © Vector Architects
Прибрежная библиотека. Фото: Xia Zhi © Vector Architects
Прибрежная библиотека. Фото: Xia Zhi © Vector Architects
Прибрежная библиотека. Фото: Su Shengliang © Vector Architects
Прибрежная библиотека. Фото: Su Shengliang © Vector Architects
Прибрежная библиотека. Фото: Xia Zhi © Vector Architects
Прибрежная библиотека. Фото: Xia Zhi © Vector Architects
Прибрежная библиотека. Фото: Xia Zhi © Vector Architects
Прибрежная библиотека. Фото: Xia Zhi © Vector Architects
Прибрежная библиотека. Фото: Su Shengliang © Vector Architects
Прибрежная библиотека. Фото: Su Shengliang © Vector Architects
Прибрежная библиотека. Фото: Su Shengliang © Vector Architects
Прибрежная библиотека. Фото: Su Shengliang © Vector Architects
Прибрежная библиотека. Фото: Su Shengliang © Vector Architects
Прибрежная библиотека. Фото: Su Shengliang © Vector Architects
Прибрежная библиотека. Фото: Xia Zhi © Vector Architects
Прибрежная библиотека. Фото: Xia Zhi © Vector Architects
Прибрежная библиотека. Фото: Xia Zhi © Vector Architects
Прибрежная библиотека. Фото: Xia Zhi © Vector Architects
Прибрежная библиотека. Фото: Xia Zhi © Vector Architects
Прибрежная библиотека. Фото: Xia Zhi © Vector Architects
Прибрежная библиотека. Фото: He Bin © Vector Architects
Прибрежная библиотека. Фото: He Bin © Vector Architects
Прибрежная библиотека. Фото: He Bin © Vector Architects
Прибрежная библиотека. Фото: He Bin © Vector Architects
Прибрежная библиотека. Фото: Xia Zhi © Vector Architects
Прибрежная библиотека. Фото: Xia Zhi © Vector Architects
Прибрежная библиотека. Фото: Su Shengliang © Vector Architects
Прибрежная библиотека. Фото: Su Shengliang © Vector Architects
Прибрежная библиотека. Фото: Xia Zhi © Vector Architects
Прибрежная библиотека. Фото: Xia Zhi © Vector Architects
Прибрежная библиотека. Фото: Su Shengliang © Vector Architects
Прибрежная библиотека. Фото: Su Shengliang © Vector Architects
Прибрежная библиотека. Фото: Xia Zhi © Vector Architects
Прибрежная библиотека. Фото: Xia Zhi © Vector Architects
Прибрежная библиотека. Фото: Xia Zhi © Vector Architects
Прибрежная библиотека. Фото: Xia Zhi © Vector Architects
Прибрежная библиотека. Фото: Xia Zhi © Vector Architects
Прибрежная библиотека. Фото: Xia Zhi © Vector Architects
Прибрежная библиотека. Фото: Xia Zhi © Vector Architects
Прибрежная библиотека. Фото: Xia Zhi © Vector Architects
Прибрежная библиотека. Фото: Su Shengliang © Vector Architects
Прибрежная библиотека. Фото: Su Shengliang © Vector Architects
Прибрежная библиотека. Фото: He Bin © Vector Architects
Прибрежная библиотека. Фото: He Bin © Vector Architects
Прибрежная библиотека. Фото: Su Shengliang © Vector Architects
Прибрежная библиотека. Фото: Su Shengliang © Vector Architects
Прибрежная библиотека. Фото: Xia Zhi © Vector Architects
Прибрежная библиотека. Фото: Xia Zhi © Vector Architects
Прибрежная библиотека. Фото: Xia Zhi © Vector Architects
Прибрежная библиотека. Фото: Xia Zhi © Vector Architects
Прибрежная библиотека. Фото: Sun Dongping © Vector Architects
Прибрежная библиотека. Фото: Sun Dongping © Vector Architects
Прибрежная библиотека © Vector Architects
Прибрежная библиотека © Vector Architects
Прибрежная библиотека © Vector Architects
Прибрежная библиотека © Vector Architects
Прибрежная библиотека © Vector Architects
Прибрежная библиотека © Vector Architects
Прибрежная библиотека © Vector Architects
Прибрежная библиотека © Vector Architects
Прибрежная библиотека © Vector Architects
Прибрежная библиотека © Vector Architects
Прибрежная библиотека © Vector Architects
Прибрежная библиотека © Vector Architects
Прибрежная библиотека © Vector Architects
Прибрежная библиотека © Vector Architects
Прибрежная библиотека © Vector Architects
Прибрежная библиотека © Vector Architects
Прибрежная библиотека © Vector Architects
Прибрежная библиотека © Vector Architects
Прибрежная библиотека © Vector Architects
Прибрежная библиотека © Vector Architects
Прибрежная библиотека © Vector Architects
Прибрежная библиотека © Vector Architects