Размещено на портале Архи.ру (www.archi.ru)

21.10.2013

Новый расцвет

Объект:
Бывшая еврейская школа для девочек – реконструкция
Адрес:
Германия, None, Берлин.
Мастерская:
Grüntuch Ernst

Бывшее здание еврейской школы для девочек в Берлине после десятилетий запустения превращено архитекторами Grüntuch Ernst в культурный центр.

Бывшая еврейская школа для девочек - реконструкция © Jan Bitter. Предоставлено Grüntuch Ernst Architekten
Бывшая еврейская школа для девочек - реконструкция © Jan Bitter. Предоставлено Grüntuch Ernst Architekten

Аугустус-штрассе, определенно – одна из самых интересных улиц в Восточном Берлине. Вскоре после объединения Германии там стали открываться небольшие галереи, магазины и симпатичные кафе, городские профессионалы с семьями – как модные, так и не очень – стали селиться в новых домам на соседних улицах: этот район приятен по масштабу и по разнообразию инфраструктуры.
Бывшая еврейская школа для девочек - реконструкция © Jan Bitter. Предоставлено Grüntuch Ernst Architekten
Бывшая еврейская школа для девочек - реконструкция © Jan Bitter. Предоставлено Grüntuch Ernst Architekten

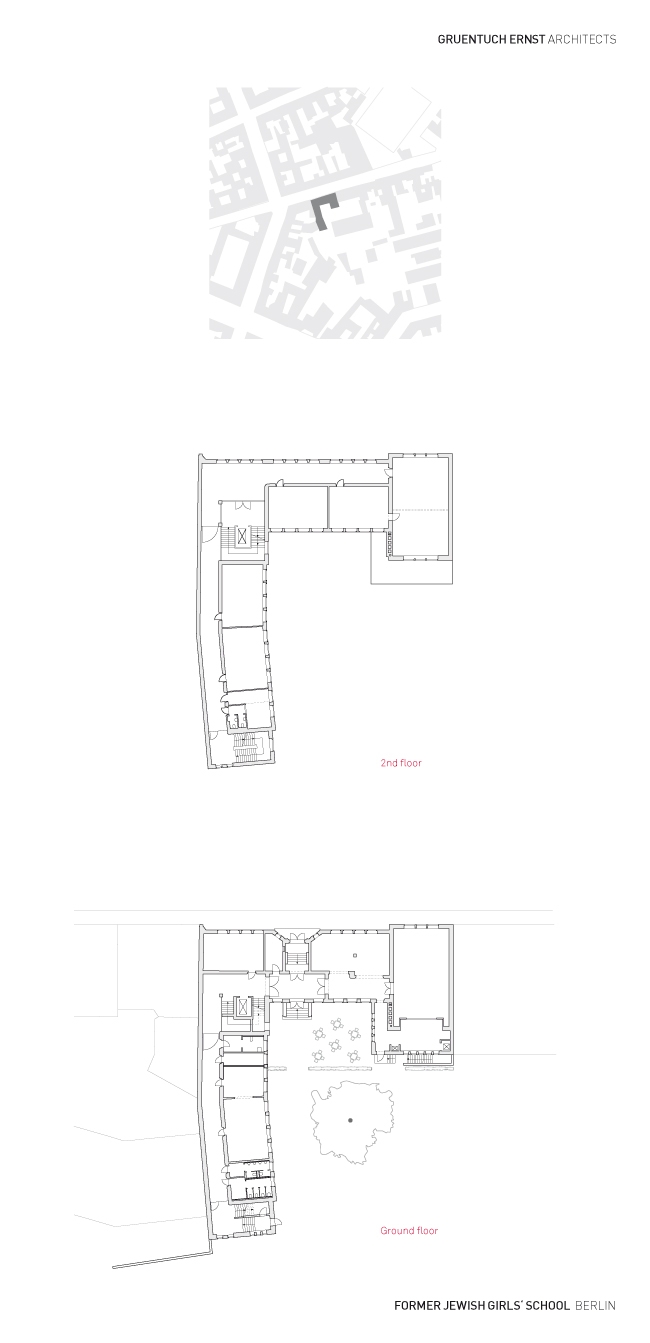
Но многие годы одно здание выбивалось из общей картины – обветшавший дом по Аугустус-штрассе под номером 11–13: бывшая еврейская школа для девочек, строительство которой завершилось в 1930. Архитектор Александр Бер (Alexander Beer) спроектировал ее в русле Новой Вещественности. Школа закрылась в 1942 и была превращена во временный госпиталь. Позже, во период ГДР, там вновь открыли школу, проработавшую до 1996. Это здание площадью около 3000 м2, где до Второй мировой учились 300 школьниц, стало одной из последних построек еврейской общины в Берлине.
Бывшая еврейская школа для девочек - реконструкция © Jan Bitter. Предоставлено Grüntuch Ernst Architekten
Бывшая еврейская школа для девочек - реконструкция © Jan Bitter. Предоставлено Grüntuch Ernst Architekten

Эта постройка из темного кирпича все еще отличается от окружающих ее более старых домов, но теперь она отреставрирована и получила новых хозяев и программу. По инициативе галериста Михаэля Фукса (Michael Fuchs) обновлением школы занялось бюро Grüntuch Ernst Architekten. Приспособление под новые функции стало очень интересной задачей, хотя и весьма непростой: помимо прочего, от архитекторов требовалось работать очень быстро. Все удалось сделать за 9 месяцев, включая необходимое сотрудничество с организациями по охране памятников.
Бывшая еврейская школа для девочек - реконструкция © Jan Bitter. Предоставлено Grüntuch Ernst Architekten
Бывшая еврейская школа для девочек - реконструкция © Jan Bitter. Предоставлено Grüntuch Ernst Architekten

Среди институций, разместившихся в модернизированном здании – музей семьи Кеннеди The Kennedys, переехавший сюда с Паризер-платц: в его собрании – уникальные фото- и видеоматериалы об истории этого влиятельного рода.
Бывшая еврейская школа для девочек - реконструкция © Jan Bitter. Предоставлено Grüntuch Ernst Architekten
Бывшая еврейская школа для девочек - реконструкция © Jan Bitter. Предоставлено Grüntuch Ernst Architekten

На первом этаже бывший актовый зал школы превращен в элегантный ресторан Pauly Saal с напоминающим клуб баром. Атмосфера там призвана напоминать «золотые двадцатые годы», и делает это с большим достоинством. Также имеется открытая терраса с бирюзовыми металлическими стульями и большими белыми зонтиками. Со стороны улицы открыта кулинария в нью-йоркском духе – Mogg & Melzer, обставленная мебелью финского дизайнера Илмари Тапиоваара (Ilmari Tapiovaara): классическими деревянными стульями, скамьями и столиками.
Бывшая еврейская школа для девочек - реконструкция. Ресторан Pauly Saal © Stefan Korte. Предоставлено Ehemalige Jüdische Mädchenschule
Бывшая еврейская школа для девочек - реконструкция. Ресторан Pauly Saal © Stefan Korte. Предоставлено Ehemalige Jüdische Mädchenschule

В бывших классных комнатах и коридорах открылись художественные галереи Michael Fuchs Galerie, CWC Gallery and EIGEN + ART. В центр большой парадной лестницы, служащей главным коммуникационным узлом, вставлена остекленная шахта лифта.
Бывшая еврейская школа для девочек - реконструкция. Ресторан Pauly Saal © Stefan Korte. Предоставлено Ehemalige Jüdische Mädchenschule
Бывшая еврейская школа для девочек - реконструкция. Ресторан Pauly Saal © Stefan Korte. Предоставлено Ehemalige Jüdische Mädchenschule

Архитекторы обошлись без модных пурпурного, розового и цвета лайма. Интерьер выдержан в оттенках серого и белого, а индивидуальность ему придают исторические плитка и мозаика во входной зоне.
Бывшая еврейская школа для девочек - реконструкция. Ресторан Pauly Saal © Stefan Korte. Предоставлено Ehemalige Jüdische Mädchenschule
Бывшая еврейская школа для девочек - реконструкция. Ресторан Pauly Saal © Stefan Korte. Предоставлено Ehemalige Jüdische Mädchenschule

Здание школы имеет трагическую историю – его архитектор Бер нашел свою смерть в концлагере Терезиенштадт, большинство учителей и учениц также погибли во время Холокоста, однако сейчас оно не только напоминает о прошлом, но и служит открытым для всех культурным и общественным центром. Особенное достижение архитекторов Grüntuch Ernst – в том, что, что они сохранили тонкость деталировки и общую атмосферу межвоенной архитектуры.
Бывшая еврейская школа для девочек - реконструкция. Ресторан Pauly Saal © Stefan Korte. Предоставлено Ehemalige Jüdische Mädchenschule
Бывшая еврейская школа для девочек - реконструкция. Ресторан Pauly Saal © Stefan Korte. Предоставлено Ehemalige Jüdische Mädchenschule
Бывшая еврейская школа для девочек - реконструкция. Ресторан Pauly Saal © Stefan Korte. Предоставлено Ehemalige Jüdische Mädchenschule
Бывшая еврейская школа для девочек - реконструкция. Ресторан Pauly Saal © Stefan Korte. Предоставлено Ehemalige Jüdische Mädchenschule
Бывшая еврейская школа для девочек - реконструкция. Ресторан The Kosher Classroom © Patricia Parinejad. Предоставлено Ehemalige Jüdische Mädchenschule
Бывшая еврейская школа для девочек - реконструкция. Ресторан The Kosher Classroom © Patricia Parinejad. Предоставлено Ehemalige Jüdische Mädchenschule
Бывшая еврейская школа для девочек - реконструкция. Ресторан The Kosher Classroom © Patricia Parinejad. Предоставлено Ehemalige Jüdische Mädchenschule
Бывшая еврейская школа для девочек - реконструкция. Ресторан The Kosher Classroom © Patricia Parinejad. Предоставлено Ehemalige Jüdische Mädchenschule
Бывшая еврейская школа для девочек - реконструкция. Ресторан The Kosher Classroom © Patricia Parinejad. Предоставлено Ehemalige Jüdische Mädchenschule
Бывшая еврейская школа для девочек - реконструкция. Ресторан The Kosher Classroom © Patricia Parinejad. Предоставлено Ehemalige Jüdische Mädchenschule
Бывшая еврейская школа для девочек - реконструкция. Michael Fuchs Galerie © Stefan Korte. Предоставлено Ehemalige Jüdische Mädchenschule
Бывшая еврейская школа для девочек - реконструкция. Michael Fuchs Galerie © Stefan Korte. Предоставлено Ehemalige Jüdische Mädchenschule
Бывшая еврейская школа для девочек - реконструкция. Michael Fuchs Galerie © Stefan Korte. Предоставлено Ehemalige Jüdische Mädchenschule
Бывшая еврейская школа для девочек - реконструкция. Michael Fuchs Galerie © Stefan Korte. Предоставлено Ehemalige Jüdische Mädchenschule
Бывшая еврейская школа для девочек - реконструкция. Michael Fuchs Galerie © Stefan Korte. Предоставлено Ehemalige Jüdische Mädchenschule
Бывшая еврейская школа для девочек - реконструкция. Michael Fuchs Galerie © Stefan Korte. Предоставлено Ehemalige Jüdische Mädchenschule
Бывшая еврейская школа для девочек - реконструкция © Stefan Korte. Предоставлено Ehemalige Jüdische Mädchenschule
Бывшая еврейская школа для девочек - реконструкция © Stefan Korte. Предоставлено Ehemalige Jüdische Mädchenschule
Бывшая еврейская школа для девочек - реконструкция © Grüntuch Ernst Architekten
Бывшая еврейская школа для девочек - реконструкция © Grüntuch Ernst Architekten
Бывшая еврейская школа для девочек - реконструкция © Grüntuch Ernst Architekten
Бывшая еврейская школа для девочек - реконструкция © Grüntuch Ernst Architekten