Размещено на портале Архи.ру (www.archi.ru)

20.02.2013

Пожарное дело архитектора

Объект:
Пожарная часть и казармы пожарных
Адрес:
Португалия, None, Санту-Тирсу.

Близ Порту построена пожарная часть по проекту Алваро Сизы.

Пожарная часть и казармы пожарных © João Morgado
Пожарная часть и казармы пожарных © João Morgado
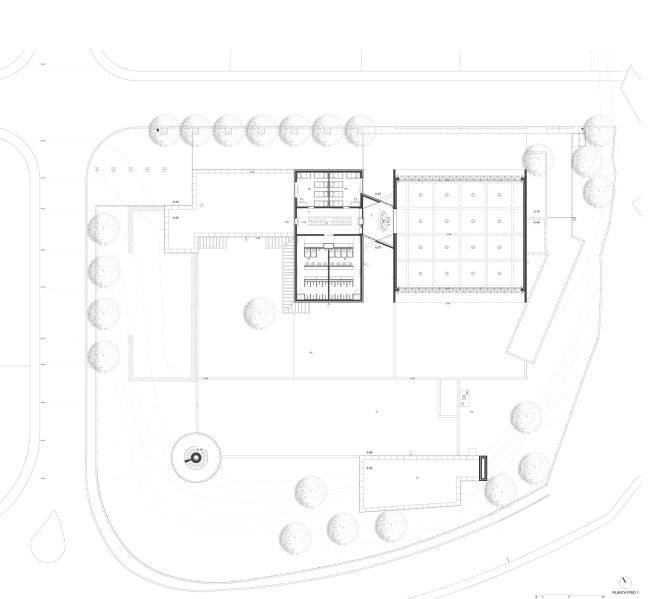
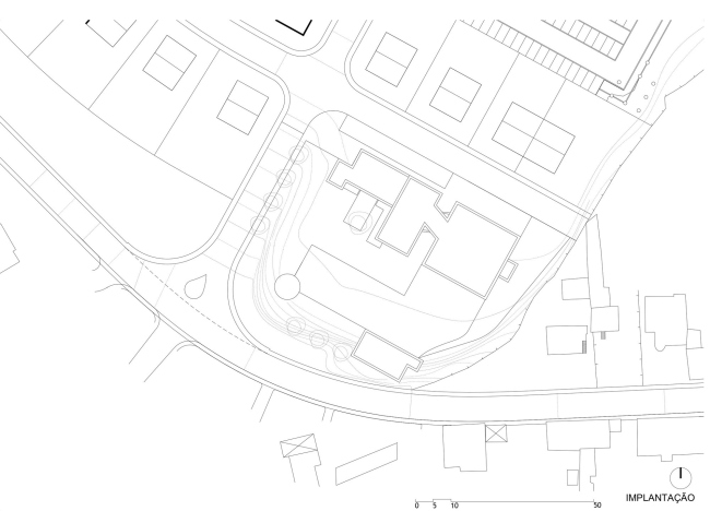
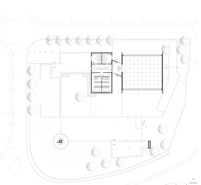
Комплекс находится на окраине города Санту-Тирсу и включает в себя три сооружения. Основной корпус состоит из соединенных переходом гаража с бетонными фасадами и кирпичной части с офисами, учебными и жилыми помещениями.
Пожарная часть и казармы пожарных © João Morgado
Пожарная часть и казармы пожарных © João Morgado

Со стороны двора к ним примыкает лужайка и небольшой плац, вымощенный плиткой. Пространство вестибюля снаружи отмечено остеклением.
Пожарная часть и казармы пожарных © João Morgado
Пожарная часть и казармы пожарных © João Morgado

Также в комплекс входят кирпичное здание с мастерскими, складом и другими хозяйственными помещениями и бетонная пожарная вышка.

Н. Ф.
Пожарная часть и казармы пожарных © João Morgado
Пожарная часть и казармы пожарных © João Morgado
Пожарная часть и казармы пожарных © João Morgado
Пожарная часть и казармы пожарных © João Morgado
Пожарная часть и казармы пожарных © João Morgado
Пожарная часть и казармы пожарных © João Morgado
Пожарная часть и казармы пожарных © João Morgado
Пожарная часть и казармы пожарных © João Morgado
Пожарная часть и казармы пожарных © João Morgado
Пожарная часть и казармы пожарных © João Morgado
Пожарная часть и казармы пожарных © João Morgado
Пожарная часть и казармы пожарных © João Morgado
Пожарная часть и казармы пожарных © João Morgado
Пожарная часть и казармы пожарных © João Morgado
Пожарная часть и казармы пожарных © João Morgado
Пожарная часть и казармы пожарных © João Morgado
Пожарная часть и казармы пожарных © João Morgado
Пожарная часть и казармы пожарных © João Morgado
Пожарная часть и казармы пожарных © João Morgado
Пожарная часть и казармы пожарных © João Morgado
Пожарная часть и казармы пожарных © João Morgado
Пожарная часть и казармы пожарных © João Morgado
Пожарная часть и казармы пожарных © João Morgado
Пожарная часть и казармы пожарных © João Morgado
Пожарная часть и казармы пожарных © João Morgado
Пожарная часть и казармы пожарных © João Morgado
Пожарная часть и казармы пожарных © João Morgado
Пожарная часть и казармы пожарных © João Morgado
Пожарная часть и казармы пожарных © João Morgado
Пожарная часть и казармы пожарных © João Morgado
Пожарная часть и казармы пожарных © João Morgado
Пожарная часть и казармы пожарных © João Morgado
Пожарная часть и казармы пожарных © João Morgado
Пожарная часть и казармы пожарных © João Morgado
Пожарная часть и казармы пожарных © João Morgado
Пожарная часть и казармы пожарных © João Morgado
Пожарная часть и казармы пожарных © João Morgado
Пожарная часть и казармы пожарных © João Morgado
Пожарная часть и казармы пожарных © João Morgado
Пожарная часть и казармы пожарных © João Morgado
Пожарная часть и казармы пожарных © João Morgado
Пожарная часть и казармы пожарных © João Morgado
Пожарная часть и казармы пожарных © João Morgado
Пожарная часть и казармы пожарных © João Morgado
Пожарная часть и казармы пожарных © João Morgado
Пожарная часть и казармы пожарных © João Morgado
Пожарная часть и казармы пожарных © João Morgado
Пожарная часть и казармы пожарных © João Morgado
Пожарная часть и казармы пожарных © João Morgado
Пожарная часть и казармы пожарных © João Morgado
Пожарная часть и казармы пожарных © João Morgado
Пожарная часть и казармы пожарных © João Morgado
Пожарная часть и казармы пожарных © João Morgado
Пожарная часть и казармы пожарных © João Morgado
Пожарная часть и казармы пожарных © João Morgado
Пожарная часть и казармы пожарных © João Morgado
Пожарная часть и казармы пожарных © João Morgado
Пожарная часть и казармы пожарных © João Morgado
Пожарная часть и казармы пожарных © João Morgado
Пожарная часть и казармы пожарных © João Morgado
Пожарная часть и казармы пожарных © João Morgado
Пожарная часть и казармы пожарных © João Morgado
Пожарная часть и казармы пожарных © João Morgado
Пожарная часть и казармы пожарных © João Morgado
Пожарная часть и казармы пожарных © João Morgado
Пожарная часть и казармы пожарных © João Morgado
Пожарная часть и казармы пожарных © João Morgado
Пожарная часть и казармы пожарных © João Morgado
Пожарная часть и казармы пожарных © João Morgado
Пожарная часть и казармы пожарных © João Morgado
Пожарная часть и казармы пожарных © Álvaro Siza
Пожарная часть и казармы пожарных © Álvaro Siza
Пожарная часть и казармы пожарных © Álvaro Siza
Пожарная часть и казармы пожарных © Álvaro Siza
Пожарная часть и казармы пожарных © Álvaro Siza
Пожарная часть и казармы пожарных © Álvaro Siza
Пожарная часть и казармы пожарных © Álvaro Siza
Пожарная часть и казармы пожарных © Álvaro Siza
Пожарная часть и казармы пожарных © Álvaro Siza
Пожарная часть и казармы пожарных © Álvaro Siza
Пожарная часть и казармы пожарных © Álvaro Siza
Пожарная часть и казармы пожарных © Álvaro Siza
Пожарная часть и казармы пожарных © Álvaro Siza
Пожарная часть и казармы пожарных © Álvaro Siza
Пожарная часть и казармы пожарных © Álvaro Siza
Пожарная часть и казармы пожарных © Álvaro Siza
Пожарная часть и казармы пожарных © Álvaro Siza
Пожарная часть и казармы пожарных © Álvaro Siza
Пожарная часть и казармы пожарных © Álvaro Siza
Пожарная часть и казармы пожарных © Álvaro Siza
Пожарная часть и казармы пожарных © Álvaro Siza
Пожарная часть и казармы пожарных © Álvaro Siza
Пожарная часть и казармы пожарных © Álvaro Siza
Пожарная часть и казармы пожарных © Álvaro Siza
Пожарная часть и казармы пожарных © Álvaro Siza
Пожарная часть и казармы пожарных © Álvaro Siza
Пожарная часть и казармы пожарных © Álvaro Siza
Пожарная часть и казармы пожарных © Álvaro Siza
Пожарная часть и казармы пожарных © Álvaro Siza
Пожарная часть и казармы пожарных © Álvaro Siza
Пожарная часть и казармы пожарных © Álvaro Siza
Пожарная часть и казармы пожарных © Álvaro Siza
Пожарная часть и казармы пожарных © Álvaro Siza
Пожарная часть и казармы пожарных © Álvaro Siza
Пожарная часть и казармы пожарных © Álvaro Siza
Пожарная часть и казармы пожарных © Álvaro Siza
Пожарная часть и казармы пожарных © Álvaro Siza
Пожарная часть и казармы пожарных © Álvaro Siza
Пожарная часть и казармы пожарных © Álvaro Siza
Пожарная часть и казармы пожарных © Álvaro Siza
Пожарная часть и казармы пожарных © Álvaro Siza
Пожарная часть и казармы пожарных © Álvaro Siza
Пожарная часть и казармы пожарных © Álvaro Siza
Пожарная часть и казармы пожарных © Álvaro Siza
Пожарная часть и казармы пожарных © Álvaro Siza
Пожарная часть и казармы пожарных © Álvaro Siza
Пожарная часть и казармы пожарных © Álvaro Siza
Пожарная часть и казармы пожарных © Álvaro Siza
Пожарная часть и казармы пожарных © Álvaro Siza
Пожарная часть и казармы пожарных © Álvaro Siza
Пожарная часть и казармы пожарных © Álvaro Siza
Пожарная часть и казармы пожарных © Álvaro Siza
Пожарная часть и казармы пожарных © Álvaro Siza
Пожарная часть и казармы пожарных © Álvaro Siza