Published on Archi.ru (https://archi.ru)

07.01.2024

The Northern Thebaid

Studio:
APRELarchitects

The central part of Ferapontovo village, adjacent to the famous monastery with frescoes by Dionisy, has been improved according to the project by APRELarchitects. Now the place offers basic services for tourists, as well as a place for the villagers’ leisure.

Description provided by the architects

The Ferapontov Monastery is a UNESCO World Heritage Site. The project of development and improvement of the territory of the central part of Ferapontovo village, located in close proximity to the monastery, won the All-Russian contest of comfortable urban environment.

Ferapontovo village: the Northern Russian Thebaid
Ferapontovo village: the Northern Russian Thebaid
Copyright: Photo provided by APRELarchitects


Ferapontovo village: the Northern Russian Thebaid. Before
Ferapontovo village: the Northern Russian Thebaid. Before
Copyright: Photo provided by APRELarchitects


Ferapontovo village: the Northern Russian Thebaid. After
Ferapontovo village: the Northern Russian Thebaid. After
Copyright: Photo provided by APRELarchitects


The design area included the space of the main square of the village, the path that leads to the monastery via a bridge over the Paska River, and a path running along the shore of Borodaevskoe Lake with views of the monastery.

Ferapontovo village: the Northern Russian Thebaid
Ferapontovo village: the Northern Russian Thebaid
Copyright: © APRELarchitects


Ferapontovo village: the Northern Russian Thebaid
Ferapontovo village: the Northern Russian Thebaid
Copyright: © APRELarchitects


The project improved the cohesiveness of the area, established new pedestrian routes, and regulated the automotive traffic. An open pedestrian space for events was created in the main square. Landscape restoration works were also carried out.

Ferapontovo village: the Northern Russian Thebaid
Ferapontovo village: the Northern Russian Thebaid
Copyright: Photo provided by APRELarchitects


Ferapontovo village: the Northern Russian Thebaid
Ferapontovo village: the Northern Russian Thebaid
Copyright: Photo provided by APRELarchitects


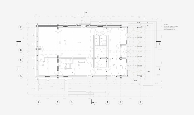
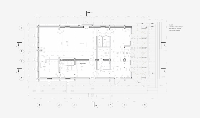
The vacant building of the “House of Culture” on the main square was turned into a multifunctional public facility by transforming its discordant facades and roof. The façade overlooking the square can be transformed into an open-air stage by means of transformable panels.

Ferapontovo village: the Northern Russian Thebaid. The club. The plan
Ferapontovo village: the Northern Russian Thebaid. The club. The plan
Copyright: © APRELarchitects


The building was adapted to host a tourist information center, but its larger part was given to the multipurpose hall of the village culture house. Thus, the square has both basic services for tourists (information, toilet, coffee and a terrace overlooking the monastery) and a place for meeting and holding events for the villagers. The project also provides for the appearance of a playground, as well as bread and souvenir shops. A shadowy gallery has been added to bind all the buildings into a combined and harmonious composition.

Ferapontovo village: the Northern Russian Thebaid Copyright: Photo provided by APRELarchitects
Ferapontovo village: the Northern Russian Thebaid
Copyright: Photo provided by APRELarchitects
Ferapontovo village: the Northern Russian Thebaid Copyright: Photo provided by APRELarchitects
Ferapontovo village: the Northern Russian Thebaid
Copyright: Photo provided by APRELarchitects
Ferapontovo village: the Northern Russian Thebaid Copyright: Photo provided by APRELarchitects
Ferapontovo village: the Northern Russian Thebaid
Copyright: Photo provided by APRELarchitects


While working on the all-rounded improvement and forming new scenarios for the use of the territory, the APRELarchitects team considered it necessary to develop a tourist map of the village and create an identity, which formed the basis for a line of tourist products and promotion of Ferapontovo village in the external information space. The map was developed together with Vologda artist and graphic designer Mikhail Priemyshev / Misha Priem.

Ferapontovo village: the Northern Russian Thebaid. The color set of the project. Frescoes by Dionisy Copyright: Photo provided by APRELarchitects
Ferapontovo village: the Northern Russian Thebaid. The color set of the project. Frescoes by Dionisy
Copyright: Photo provided by APRELarchitects
Ferapontovo village: the Northern Russian Thebaid Copyright: © APRELarchitects
Ferapontovo village: the Northern Russian Thebaid
Copyright: © APRELarchitects
Ferapontovo village: the Northern Russian Thebaid Copyright: © APRELarchitects
Ferapontovo village: the Northern Russian Thebaid
Copyright: © APRELarchitects
Ferapontovo village: the Northern Russian Thebaid Copyright: © APRELarchitects
Ferapontovo village: the Northern Russian Thebaid
Copyright: © APRELarchitects
Ferapontovo village: the Northern Russian Thebaid Copyright: © APRELarchitects
Ferapontovo village: the Northern Russian Thebaid
Copyright: © APRELarchitects
Ferapontovo village: the Northern Russian Thebaid Copyright: © APRELarchitects
Ferapontovo village: the Northern Russian Thebaid
Copyright: © APRELarchitects
Ferapontovo village: the Northern Russian Thebaid Copyright: © APRELarchitects
Ferapontovo village: the Northern Russian Thebaid
Copyright: © APRELarchitects
Ferapontovo village: the Northern Russian Thebaid Copyright: © APRELarchitects
Ferapontovo village: the Northern Russian Thebaid
Copyright: © APRELarchitects