Published on Archi.ru (https://archi.ru)

22.05.2023

Terra Incognita

Alyona Kuznetsova, Julia Tarabarina
Architect:
Alexsey Ginzburg
Studio:
Ginzburg Architects

An 800-room hotel complex, designed by Ginzburg Architects, offers the seaside city of Anapa a fragment of well-organized urban environment that keeps up the cultural spirit of the place. The architects break away from traditional white facades, turning to the antique and even archaic periods of the history of this land, and drawing inspiration in the color of red clay and simple, yet lightweight, shapes.

At the end of 2021, a new master plan of Anapa was adopted, which implies that the construction of multi-apartment residential development will be significantly reduced, while the construction of resort facilities will increase. The construction of one of such projects, a 800-room hotel complex, will begin in the near future. According to “Kommersant”, “the project will be one of the largest in the hotel market of the Krasnodar region”.

The land site is situated pretty far away from the city center, but within a walking distance from the railway station and the Pionersky Avenue, which will later be turned into a 12-kilometer promenade. There is still about a kilometer to go to the seashore. Judging by Wikimapia, this place used to be a children’s summer camp; now it is a rectangular chunk of land with an area of about 7.5 hectares, upon which a few unfinished private residences stand. Its neighbors are a military hospital, the “Chernomorskaya Zorka” resort, and a few agricultural fields. Aleksey Ginzburg artistically describes this place as “in the middle of nowhere”.

The hotel complex in Anapa
The hotel complex in Anapa
The hotel complex in Anapa
The hotel complex in Anapa
The hotel complex in Anapa
The hotel complex in Anapa
The hotel complex in Anapa
The hotel complex in Anapa


Since the context is not exactly abundant – just as the limitations are – the architects decided to proceed from the regular shape of the site and their own preferences.

Proceeding from the expected economic performance of the project, the architects divided the complex into a few “lots” meant to attract different crowds. On the side of the station and Simferopol highway, there is a long building of a four-star hotel and a multi-level parking lot with a sports field on the roof. A wide strip of landscaping and the axis of the intra-block driveway separate them from the apartment buildings gathered around a large courtyard with a swimming pool and another axis of the pedestrian boulevard, which connects the area to the projected street. The perimeter of the site is surrounded by a fire lane with a turnaround, and open parking spaces by the hotel, brightened by islands of greenery.

The hotel complex in Anapa. The master plan
The hotel complex in Anapa. The master plan


For all the buildings the architects choose the same modular facade grid and the same cladding material – composite panels or red clay plaster. Alexey Ginzburg explains that in this work the architects wanted to get away from the usual white architecture of the Black Sea resorts and turn to the more ancient history of the place, when Anapa was an ancient city of Gorgippia with stone houses topped with tiled roofs, round ovens and amphorae. Back then, the city was by no means dazzling white.



This is not the company’s only work executed in terra cotta tones – we can take, for example, the hotel in the area of Tuapse (2021); if we are to compare them, it becomes clear that the sources of inspiration can be much more than just the ancient past of Anapa, and the final solution is rather “a collage of images connected by sun, south, rich colors, and shiny temperament”. In the collage, we can guess such prototypes as, for example, the Villa Malaparte on the island of Capri, or maybe even the early works of Zurab Tsereteli for the Black Sea towns. In general red ochre is one of the favorite colors of antiquity, and clay is the most ancient building material, and the audacity of subordinating the entire building to not the most trivial shade refreshes the perception exactly through the allusions associated with archaic and archeology. It also makes us think of some “tepes”, densely built earthen cities, where simple surfaces, riddled with many openings, look like a porous chocolate cake in a section. In this semantic context, the tubs of flowers on the loggias remind us of the hanging gardens of ancient Babylon, which was built, as we remember, solely of clay.

At the same time, while the Tuapse hotel is as sculptural as a sail on a rock, and is built in accordance with the rules of a modernist hotel – as a landmark – then the Anapa buildings are not just more elongated, calm, and rational, but their modular grid looks as if it were designed for self-reproduction. It looks as though what we are seeing is an embryo of midsize construction, which is, by the way, perfect for “new urbanism” from 4 to 7 stories high. Its appearance here in the fields, in somewhat loose resort surroundings, where high-rises are interspersed with small private residences, is inclined to “discipline” the structure of space, offering to it a new rhythm and a slightly different path of development.

The hotel complex in Anapa
The hotel complex in Anapa


The grid deserves a special mention. It “embraces” the entire hotel building, forming a slim “external skeleton”: sometimes the lines dissect the loggias of the two-layer facades, typical for the south, and sometimes they structure the empty spaces, continuing as “the second skin” on the building’s ends, forming a pergola in the top tier, which masks the terrace of the restaurant designed on the 7th floor (here what came to my mind was the solarium of the Narkomfin House, even though there is no direct quote here). In the lower tier, the same grid grows into pylonades of the gallery, and in the end parts – into permeable spaces on thin “legs”. And here it is difficult not to recall Moscow houses “on legs” and, of course, the Marseille Unité d'habitation, although in this case the fragments of open spaces under the building are relatively small and rather merely denote their presence.

The hotel complex in Anapa
The hotel complex in Anapa


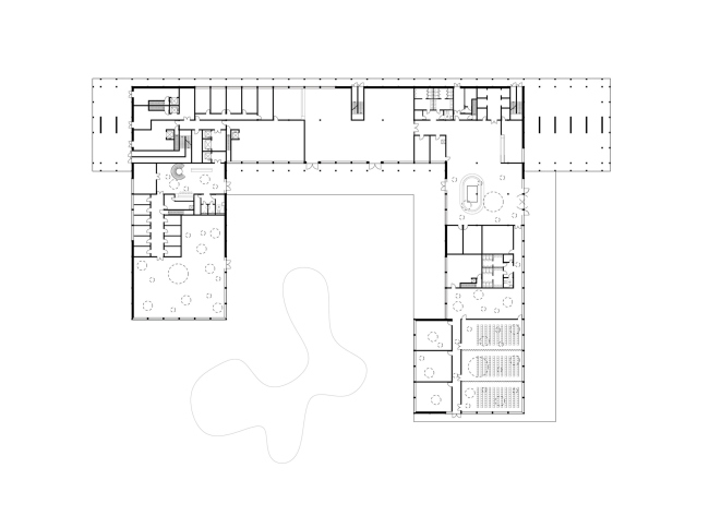
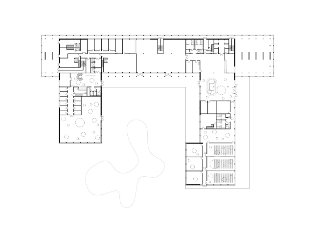
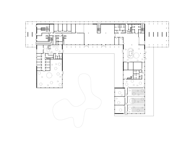
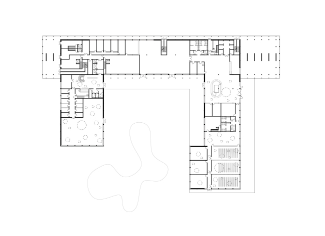
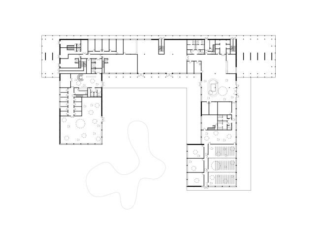
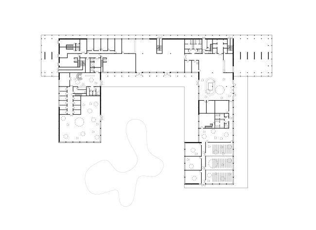
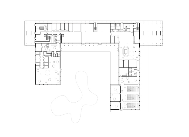
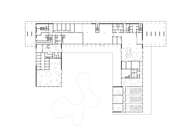
If we look closer at the hotel building, we can see that its 7-floor volume consists in fact of two parts: a slab that stretches along the outside street and the three-dimensional grid of the external skeleton “brought to a parallelepiped”, and a U-shaped unit. Its wings, one of which hosts a spa, and the other a conference hall, protrude far in the direction of the yard, while the slab of the hotel looks as though it were placed on top of it. This slightly asymmetric construction – slightly larger in the east and slightly smaller in the west – makes perfect sense in terms of distributing the functions, and is perfectly readable in the plan of the first floor.

The hotel complex in Anapa
The hotel complex in Anapa


The hotel complex in Anapa. Plan of the 1st floor
The hotel complex in Anapa. Plan of the 1st floor


The volumetric grid is quite obviously reminiscent of deconstructivist experiments in materialized “ruling” of space, but differs from the prototypes by a noticeable regularity and symmetry of the grid “cover” of the building. And the fine proportions of the lines suggest comparisons with projects that use a wooden frame, although in this case we are not talking about wooden structures, the significance of the three-dimensional grid is compositional.

The apartments are lower in height, their number of floors varies from 4 to 6, the spaces between the buildings occur more often, and the grid is less busy here: at the ends of the houses the relief reproduced, as well as on the facades of the spa and conference center; although sometimes the volumes are still spliced together with a grid floating in space.

The hotel complex in Anapa
The hotel complex in Anapa


The hotel complex in Anapa
The hotel complex in Anapa


Along Zheleznodorozhnaya Street, the first floors are occupied by retail; the rest is taken up by premises of different types, from studios to three-room apartments. Roof terraces are open to all guests.
 
A “seaside resort” environment was formed around the hotel buildings, which allows you to spend the whole day on the territory of the complex: a system of green boulevards, pools with sun beds, sports, and playgrounds.

The hotel complex in Anapa
The hotel complex in Anapa


The hotel complex in Anapa
The hotel complex in Anapa

 
The project rationally solves the proposed problem. Its main advantage, however, and interest lies in the combination of the advantages of the resort spirit and the orderly urban environment: with a system of axes, a street front, a coherent traffic scheme and a hierarchy of spaces. In this sense, Ginzburg Architects’ proposal creates an important precedent for many Russian seaside cities.
 
The hotel complex in Anapa. Plan of the -1 floor
The hotel complex in Anapa. Plan of the -1 floor
The hotel complex in Anapa. Plan of the 2-4 floors
The hotel complex in Anapa. Plan of the 2-4 floors
The hotel complex in Anapa. Plan of the 5-8 floors
The hotel complex in Anapa. Plan of the 5-8 floors
The hotel complex in Anapa
The hotel complex in Anapa