|
Stepan Liphart has designed two houses for two small land sites situated in the area surrounding the Varshavsky Railway Station, which is being intensively developed now. The sites are situated close but not next to each other, and they are different, yet similar: the theme is the same but it is interpreted in different ways. In this issue, we are examining and comparing both projects.
Over the last ten years, the territory behind the Bypass Channel between the Moskovsky Avenue and the Mitrofanyevskoe Highway has been transforming with such unbelievable intensity that it even looks as though it decided to “start all over from scratch”: it vigorously “turned the page of the industrial past”, and the construction of large residential areas started.
Developers paid attention to this part of the “gray belt” in the early 2010s: back then, they started to clear the territory belonging to the former Petmol plant, as well as the “fan” of the Varshavsky Railway Station – a complex of access roads and maintenance buildings. As for the railway station itself, it was shut down still in the beginning of the 21 century, then it served as a shopping center for a long time, and was recently rebranded to become a grand-scale food mall with a railway theme. Now you can see what the charm of this place was all about, and what exactly the city preservation activists struggled for: laconic basilica-like buildings of large heavy bricks with brands, rotary mechanisms overgrown with grass and moss, and wooden doors. Eventually, they did manage to defend some of these things, and now the blatantly dilapidated depots and water towers are standing waiting to be fitted into the context of new houses, new industrial parks, and nearly completed residential complexes.
But then again, the intensive construction will end one day, but the location will remain – a very convenient one, situated within a walking distance from the city center, the Bypass Channel, and the main city thoroughfares. This is the reason why even small lacunae that remained from the former industrial “fields” still arouse a lot of interest, which is quite in the spirit of St. Petersburg: you don’t leave any “unmotivated” empty spaces.
Two such sites, relatively small, elongated, and situated not exactly next to one another but still in some proximity, became the ones that Stepan Liphart worked with, designing houses that are different, yet echoing one another.
Intergalactic Spaces
The first house is situated next to the postal warehouse, which has an elongated shape, very much like a quay. The shape of the site, given all the historical circumstances, is quaint, and looks very much like a saw: a relatively wide “handle” is situated on the side of the Albuminnaya Street, while the “blade” goes past the warehouse. The name of the street, by the way – Albuminnaya – is a reminder of the albumin factory that used to be here along with the cattle yard and the slaughterhouse in the late 19 century.
 The Parfenovskaya 1 housing complex. The master planCopyright: © Liphart Architects
Along the length of the warehouse, the architects place parking spaces, while the two-section house is inscribed into the overall composition of the “Galactica” complex, turning it into a link of a single chain. East of the building, on the side of the Izmailovo Boulevard, the slab of Galactica is situated, behind which two gems of the neighborhood are hidden: the circular car repair depot, and a business center designed by Artem Nikiforov. The western facade overlooks the future linear park and yet another building of “Galactica”, which it mirrors to some extent.
The Parfenovskaya 1 housing complex. View from the northwestCopyright: © Liphart Architects
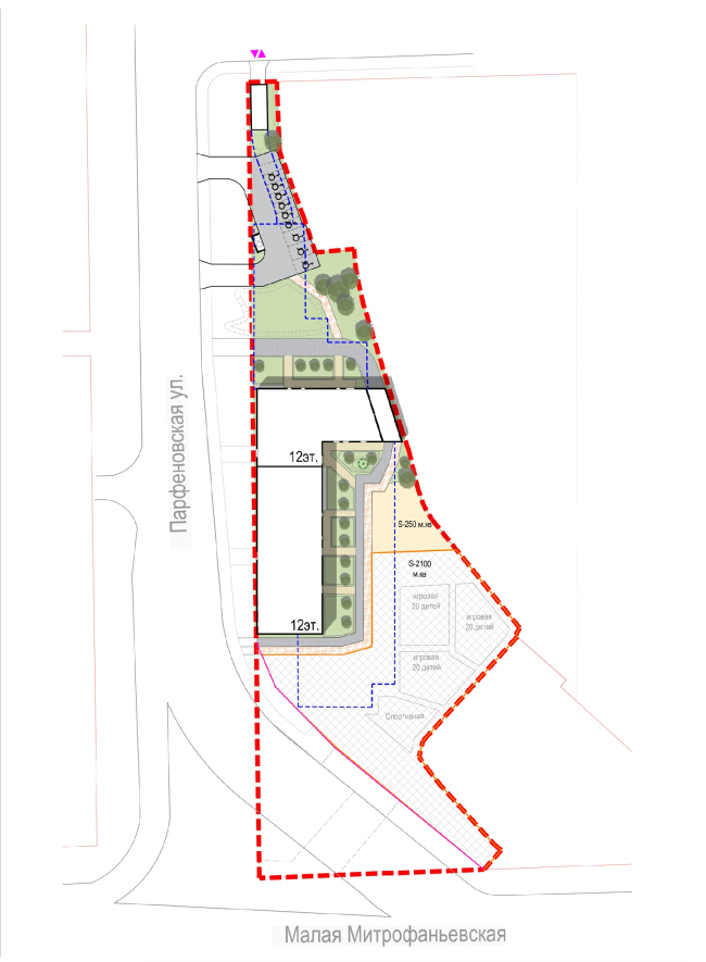
The other site is situated further south, at the crossing of Parfenovskaya and Malaya Mitrofanyevskaya streets. Its shape is a little simpler, but it is still palpably multi-angle; in addition, a large portion of the territory is “eaten up” by the playgrounds of an inserted kindergarten, and some of the territory is reserved for the future street (you cannot build upon it), so the site is smaller than it looks. Across the road, there is the same Galactica, with a school and the carriage repair depot, which is to become a shopping mall; on the north, there is the Art-Kvartal housing complex. Due to the vicinity of the tramway depot, the windows of even the lower floors will command good views of the red-brick factory buildings, the office building of the Yurgenson bakery, but more importantly, of the Novodevichiy Monastery, situated just behind the Moskovskiy Avenue.
Given the current surroundings, the house has an “island” position, which, however, does not stop it from following the logic of forming the front of the Parfenovskaya Street. This house is also a two-section one, but the other section is placed in an orthogonal way, forming an L-shaped plan. The two bottom floors are occupied by an inbuilt kindergarten.
The Mitrofanyevskaya housing complex. The master planCopyright: © Liphart Architects
The Mitrofanyevskaya housing complex. View from the southwestCopyright: © Liphart Architects
The ledge and the cutaway
The main technique that Stepan Liphart is for both houses – the alternation of ledges and cutaways – was proposed by Gottlieb Eliel Saarinen in 1922, and then picked up and developed by Art Deco architects.
In this case, the basis is constituted by a 40-meter volume – “the chunk” – and out of this chunk the architect “cuts off all spare”, making the volume lighter from the lower floors to the upper ones. The “body” of the house is at the same time preserved because it is only the “top layers” that are removed, as a result of which it periodically looks like a canyon, whose rock has been for years honed by water and wind. This “telescopic” character is further enhanced by materials that are contrastive in color and texture. The geometrical shapes are accompanied by detailing: textured tiles and bricks, rounded corners, grilles of the French balconies, pylons raised to the entire height of the building, and fluted little belts.
The ledges and cutaways do not appear spontaneously, but only where a great view is expected to appear – that of the city center, water, the Varshavsky Station or the Novodevichiy Monastery. All this gives the house a character of a circular sculpture – the cascades of the ledges make the facades different on all sides, the angles change the perception of the house, and a silhouette appears that is unconventional for this typology. The portals of the entrance groups are also designed in a “liberal” way, in the spirit of Stepan Liphart’s Art Deco, represented by double-height recessed balconies, with glass its entire height, and with jambs: sometimes chamfered and faceted, and sometimes rounded along the pair of compasses in such a way that a ledge on one side is echoed by a cutaway on the other, as if the Sim-Sim wall parted in front of us; interestingly, the cascades of the cutaways pick up the same theme on some imperceptible level, maybe like part of a rock or part of the oriental fairy tale. One way or another, the entrances are not overloaded but they look really grand thanks to their proportions, and they echo the cutaways above them.
But then again, the houses turned out to be not just similar – rhymed in a number of techniques – but also quite different in mood, first of all because of decoration materials.
The Parfenovskaya 1 housing complex. View from the southwestCopyright: © Liphart Architects
The Mitrofanyevskaya housing complex. The overall view from the northwest (from the direction of the Parfenovskaya Street)Copyright: © Liphart Architects
The tile tiers
The coating of the house on the Parfenovskaya Street uses light-colored stucco, while the cutaways feature volumetric ceramic tiles of emerald color that brings the fireplace tiles to mind. It seems that a similar technique is used in the Lesnaya metro station.
The cutaways are only to be seen on two facades. At the end facing the postal warehouse, a white negative on an emerald background shows the silhouette of a stepped tower. It has a vertical axis, in respect to which one of the halves is turned at a 90-degree angle. Such a technique makes the wall more solid and brings some sort of intrigue into the relationship between the blind and glazed parts, creating more architectural events.
The Parfenovskaya 1 housing complex. View from the northeastCopyright: © Liphart Architects
The second “speckled” facade looks towards the “Depot #1” business center and the tracks of the Baltiyskaya Railway Station, but in fact – still at the equal height of the Galaxy building. The elaboration of this particular side is explained by the fact that it will be seen by those walking in the Linear Park. Here, the ledges are forming four “towers” that are separated by pylons raised the entire height of the building: there is something of downpipes in them, even the grooves resemble the joints of gutters. The tiers of the towers are accentuated by fluted friezes. The rigid and clear grid of the facade is filled with windows and French balconies, whose vaults are complemented by curbs of volumetric tiles. The corners of the cutaways and the ribs of the “towers” are rounded, or should we say “streamlined”, which further separates them from the body of the house. A multi-apartment house, long and tall? Yes. But has St. Petersburg ever seen a comfort-class house with such a degree of detailing and presence of architecture? The reverse side of the house, by the way, is less busy, but it pleases the eye with relaxed proportions and clear rhythm.
The Parfenovskaya 1 housing complex. Panorama view from the southwestCopyright: © Liphart ArchitectsThe Parfenovskaya 1 housing complex. Fragment of the east facadeCopyright: © Liphart ArchitectsThe Parfenovskaya 1 housing complex. Photographic montage. View from the southeastCopyright: © Liphart ArchitectsThe Parfenovskaya 1 housing complex. Photographic montage. View from the northwestCopyright: © Liphart Architects
Special attention should be paid to the entrance groups and the level of the first floors, where you can see all of the textures, materials, and stylistic devices that the architect employs in this project. The entrance portal is recessed, yet at the same time is raised to the level of the second floor, while the “wave”, created by the bulge and the recession, “pulls” you in. Here we are exposed to a rich sensory experience: the opaqueness of the stucco, the high-gloss of the glazed tiles, the play of light on its relief, the metallic coldness of the “bristling” balcony grilles, and the alternation of smooth lines and sharp angles. The house invites you to touch it – and such tactile attractiveness, as we know, is a good sign.
The Parfenovskaya 1 housing complex. The entrance groupCopyright: © Liphart Architects
Steampunk-Petersburg
While the materials and coloristic solutions of the first house rather follow the Galaxy project, the second one is fully on the side of the brick past of this territory. This is evidenced by its relative independence from the solutions of the site plan, as well as by the visual proximity to the carriage repair depot and the Petrograd baking factory facilities.
The Mitrofanyevskaya housing complex. View from the southeast (from the yard side)Copyright: © Liphart Architects
On the sidewalls, a stronger accent is placed on the cutaways rather than the ledges: whole “tectonic breaks” have formed here, and the general movement is the opposite – from a breakthrough to a collapse. But then again, this may be an optical illusion: you see what you are inclined to see, like on the famous Necker Cube. What I am personally inclined to see here is the fact that Stepan Liphart turned to the aesthetics of the ruins of the Varshavsky Station, and the gray tiles are meant to represent the traces of steam engine soot. The house seems to be settling: it does not have a wide base, and the number of stories increases by the tier. One of the ends of the house is a classic firewall, the outline of which resembles a factory tower.
The Mitrofanyevskaya housing complex. View from the northeastCopyright: © Liphart Architects
This house is more “whetted”: instead of rounded corners, it gets extra facets, and the friezes are accentuated by volumetric masonry with protruding brick corners. A curious detail at the first floor level: relief brick stripes falling down with a thin triangular fringe, reminiscent either of a free interpretation of a favorite Secession technique, or a variant of the decor of the Alter residential complex on Magnitogorskaya Street.
The Mitrofanyevskaya housing complex. The entrance groupCopyright: © Liphart Architects
The Mitrofanyevskaya housing complex. A panoramic view from the southwestCopyright: © Liphart ArchitectsThe Mitrofanyevskaya housing complex. Photographic montage. View from the southwestCopyright: © Liphart ArchitectsThe Mitrofanyevskaya housing complex. Photographic montage. View from the northwestCopyright: © Liphart Architects
***
Currently, it is already known that the houses will not be built, but the two projects create an interesting precedent. Considering the context, the limitations, and the type of housing, Stepan Liphart, instead of resorting to his favorite 1930’e style, opted for a slightly different version of Art Deco, more reserved in terms of details, but working on the level of subtleties: it looks as if it “slices” the simple volume, yet not in a single straight cut but as if with some sophisticated instrument, maybe from a sculptor’s toolbar or maybe designed for linoleum engraving, sometimes rounded and sometimes jagged. The moderately colored tiles that show up at the cut show us that in fact that on the inside the house is made of a different material, much more valuable. It’s like when you walk down the beach, pick up a pebble, and break it up to find a streak of amethyst in it – a small thing, really, but heart-warming.
The Parfenovskaya 1 housing complex. Plan of the basement floor at the -4.100 elevationCopyright: © Liphart ArchitectsThe Parfenovskaya 1 housing complex. Plan of the 1st floorCopyright: © Liphart ArchitectsThe Parfenovskaya 1 housing complex. Section A. Plan of the 12th floorCopyright: © Liphart ArchitectsThe Parfenovskaya 1 housing complex. Section A. Plan of the standard floorCopyright: © Liphart ArchitectsThe Parfenovskaya 1 housing complex. Section B. Plan of the standard floorCopyright: © Liphart ArchitectsThe Parfenovskaya 1 housing complex. Section B. Plan of the 12th floorCopyright: © Liphart ArchitectsThe Parfenovskaya 1 housing complex. A cross-section viewCopyright: © Liphart ArchitectsThe Mitrofanyevskaya housing complex. A simplified plan of the basement with a parking garage at the -4.100 elevationCopyright: © Liphart ArchitectsThe Mitrofanyevskaya housing complex. Plan of the 1st floorCopyright: © Liphart ArchitectsThe Mitrofanyevskaya housing complex. Section A. Plan of the standard floorCopyright: © Liphart ArchitectsThe Mitrofanyevskaya housing complex. Plan of the 8th floorCopyright: © Liphart ArchitectsThe Mitrofanyevskaya housing complex. Plan of the standard floorCopyright: © Liphart ArchitectsThe Mitrofanyevskaya housing complex. Section B. Plan of the 8th floorCopyright: © Liphart ArchitectsThe Mitrofanyevskaya housing complex. A cross-section viewCopyright: © Liphart Architects
|