|
How do you make a comfortable high-end residential complex that meets the modern requirements for expensive downtown housing, and keep as much of the original 1915 building as possible? Ilia Utkin, together with Sminex, solved this charade for Potapovsky Lane, 5 – here is how.
The city blocks lying between Maroseyka and Myasnitskaya Streets present one of the examples of the integral, well-formed and successfully surviving environment of Moscow’s historical center. Well-known monuments of Russian architecture, such as the Menshikov Tower, stand here next to landmarks servings as tourist attractions that arrest everyone’s gaze: from the Tea House on Myasnitskaya Street to the tenement of the Trinity Church with its relief animals that architect Leon Kravetsky borrowed from the temples of Vladimir and Suzdal. All these (and many other) landmarks, empire mansions, are immersed in the city environment, composed of houses built at different times, but nonetheless calm, peaceful, and pleasant to look at. Most of it formed on the brink of the 19th and 20th centuries, during the time of “jam packing” the “mansion” Moscow with newly built tenements. Hitherto, the city was rather sparse, and there were a lot of lacunae in it – gardens and backyards – but then the space began to be filled, and the “big village” was gradually transformed into a European-type city. The development, just as in St. Petersburg, was made within the city blocks, as well as in the spaces between redlines.
 High-end housing complex Chistye Prudy / Potapovsky Lane 5 Bld 4, in the process of reconstruction: views of the surroundings, the main landmark to the north is the Menshikov towerCopyright: Photograph: Julia Tarabarina, Archi.ru
The house in the Potapovsky Lane is exactly of this kind. It is inscribed in the middle of the city block between the the Chistoprudny Boulevard and the lane, the lane being faced by the main entrance and the grand facade because it is here that the passage between the two buildings along the redline is situated. Originally, the house was designed and built by an architect (and a baron too!) named Otto von Dessin as a tenement of the “Yakor” insurance company. Due to its in-yard location, and partially because of the time of its design and construction – 1913-1915 were not exactly conducive to rich embellishments – the three main facades look pretty reserved. However, Von Dessin covered the three facades with a thin rusticated coating and gave the house a slightly romantic flavor on the verge of neoclassicism, historicism, and Art Nouveau. This impression was also enhanced by quarters of towers inscribed into corners between the main volume and the risalit wings.
High-end housing complex Chistye PrudyCopyright: © Sminex
In Soviet time, the building was rebuilt, possibly even more than once, and made first into a housing project, then into an office center: the original inner structure was completely redone, and before the reconstruction began the interiors were dominated by drywall and plastic.
So! The house in Potapovsky Lane is a valuable city landmark. The company Sminex, following the guidelines from the Department of Cultural Heritage of Moscow, refrained from making a project with a large area of facade glazing, as well as from the modern stylistic solutions, placing its bets on preserving, as much as possible, the architectural forms of 1915, along with the authentic brick walls.
The project was developed by Ilia Utkin, the architect known for his interest in classic form making and respectful attitude towards the authenticity of historical buildings. Probably, he is one of those architects who are capable of ensuring the “Venetian” – i.e. based on maximum non-intrusiveness and keen attention to detail – approach to reconstruction.
 Ilya Utkin, U-Studio The district of “Chistye Prudy” (“Clean Ponds”) was formed at the beginning of the XX century, when it was built up with apartment buildings; then officials and poor nobles, who were the middle class of their time, lived in them. They determined the nature of the environment, and essentially formed the Clean Ponds neighborhood. There are a number of similar districts in Moscow, but they differ in nuances. Bronnaya, for example, it similar, but it is not exactly the same. Now, of course, all these areas are changing, this has been happening for a long time, somewhere the process of renewal is more, and somewhere less intense.
We love the architecture of the past. And we consider it important, whenever possible, to contribute to the preservation of the historical “face” both for individual buildings and for the urban fabric – especially where it has an integral character. And when we get such a chance, we do everything in our power for this.
In this case, the company Sminex asked us to develop a project for the most delicate reconstruction of the building in Potapovsky Lane – while preserving the external brick walls and the logic of the facade decoration. The house is high-quality and beautiful in its own way. On the whole it is an organic part of the development, an element characteristic of its time. It has thick brick walls, about 80 cm thick; the original plaster on the facades was of high quality at one time, but over time it was largely spoiled and at the same time the plastique of the facades was quite simple and concise – on the verge of modern and neoclassical, shallow rust, draughts, and windows with arched tops.
In short, it cannot be said that some exceptional elements were preserved on the facades. At the same time, when we began to explore and measure the house, we discovered in this simplicity some incredible variety of different features and subtleties. The facades were full of subtle plastique – not flashy, but interesting in its own way. We saw the value in this and decided to keep it. We have measured everything and plan to reproduce it.
Ilya Utkin thoroughly studied the house, literally “crawling” through the scaffolding with a ruler and collected, thanks to his research initiative, a fair amount of detailed material about all the nuances of detailing – which became the basis for drawings of facades that reproduce the historical decor.
 High-end housing complex Chistye Prudy. The main facadeCopyright: © Ilia UtkinHigh-end housing complex Chistye Prudy. The side facadeCopyright: © Ilia Utkin
The “basement” tier – the decor of the two bottom floors – will be done, instead of stucco, in natural stone, yet it will still reproduce the Von Dessin plastique. Higher up, the same facades will be reproduced in good modern-quality stucco. The rear facade, turned in the direction of the boulevard and facing its just as “secondary” counterparts forming its redline, was historically only roughly drawn: here the architects roughly reproduced the logic of the other three facades. From the side of Chistye Prudy, the architects also preserve the characteristic pattern of the pitched hip roof, its volume will help hide engineering equipment.
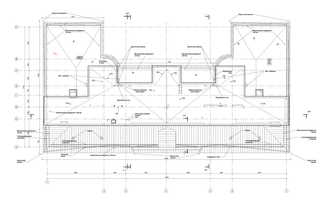
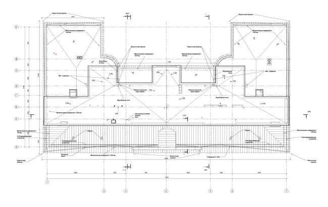
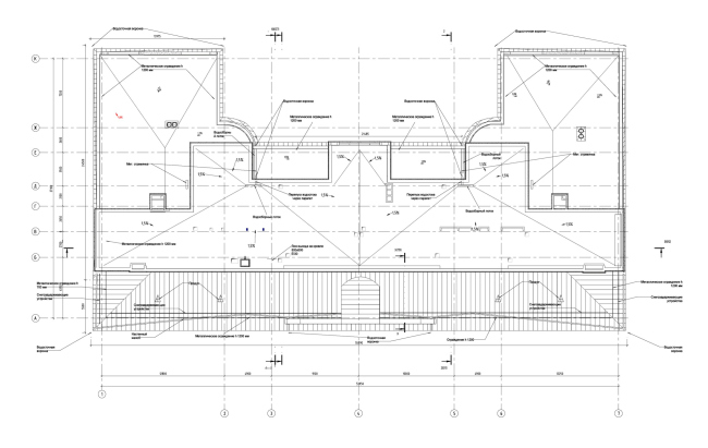
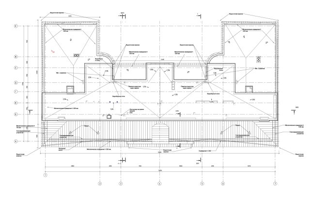
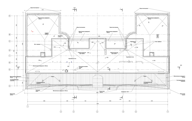
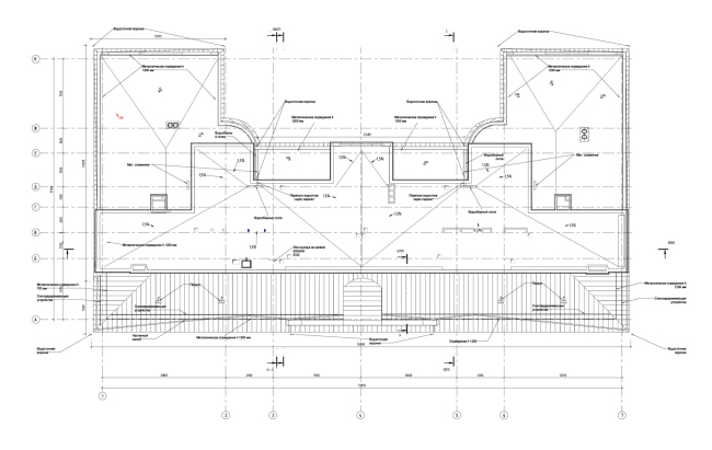
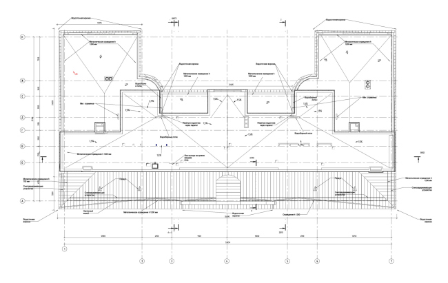
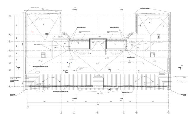
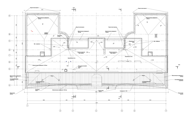
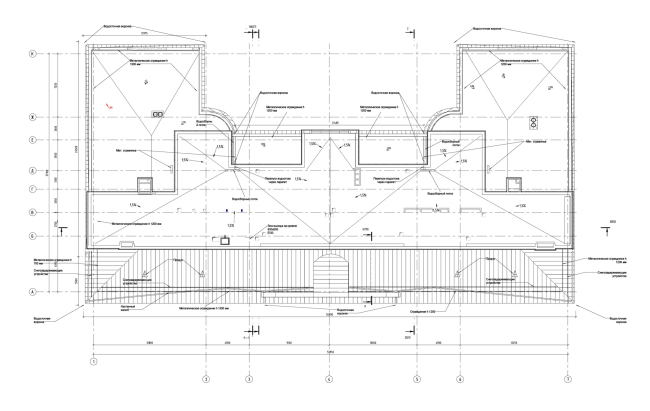
The roof plan. High-end housing complex Chistye PrudyCopyright: © Sminex
High-end housing complex Chistye PrudyCopyright: © SminexHigh-end housing complex Chistye PrudyCopyright: © Sminex
Underneath the house, there will be a parking garage for 45 cars – a solution that is absolutely necessary for a modern high-end housing complex located in the city center. The three underground tiers step back a little from the historical contour – the construction pit will be deepened not directly underneath the walls but with a slight margin as a safeguard. The parking garage is fully automated; this is all but a commonly accepted standard for expensive downtown housing. For the residents, as much as for the drivers, the rooms are provided, in which they can await the cars; the residents exit from the parking zone directly to the lobby, without having to descend underground. All the elevators and parking places are quite spacious (5.8 c 2.15 m), slots will be chosen pretty fast, and “nobody will scratch your car during the parking” – the developer stresses.
The new inner floors of reinforced concrete will be constructed in accordance with the up&down technology which presupposes building the floors from to directions in order to save time. The brick walls, about 80-centimeter thick, will be fully preserved: currently, all of them are reinforced – the construction contains about 400 tons of metal.
High-end housing complex Chistye Prudy / Potapovsky Lane 5 Bld 4, in the process of reconstruction: the metallic fasteningsCopyright: Photograph: Julia Tarabarina, Archi.ruHigh-end housing complex Chistye Prudy / Potapovsky Lane 5 Bld 4, in the process of reconstruction: the metallic fasteningsCopyright: Photograph: Julia Tarabarina, Archi.ruHigh-end housing complex Chistye Prudy / Potapovsky Lane 5 Bld 4, in the process of reconstruction: the metallic fasteningsCopyright: Photograph: Julia Tarabarina, Archi.ru
Meanwhile, the new function of the building is a modern high-end residential development, an expensive housing project in the center of Moscow. The house, keeping its century-old strong points, is meant to reinvent itself, taking on a new quality, and becoming modern, convenient, and even somewhat flashy. Ilia Utkin was to find a reasonable balance between the two poles – a task, let’s face it, far from simple; this is where you need real mastery of delicate work with the legacy of a historical city.
And, it must be said that along with the preserved historical image, the house is packed with cool new features, which work at different perception levels. First of all, a modern high-end residential development requires good ambient light, views of the old city, and windows reaching down to the floor. The architects were able to place such windows on the former rear facade, because its historical design was of little architectural value. Applying to it the compositional principles of the main facade, the architects carefully inscribed the enlarged apertures on the common rhythm – in such a way that it yielded quite a lot of ambient light on the inside, yet there are no noticeable stained glass windows on the outside. Two stair and elevator cores were placed in the “body” of the building, freeing up the maximum light front for apartments.
High-end housing complex Chistye PrudyCopyright: © SminexHigh-end housing complex Chistye PrudyCopyright: © SminexHigh-end housing complex Chistye PrudyCopyright: © SminexHigh-end housing complex Chistye Prudy. The rear facadeCopyright: © SminexHigh-end housing complex Chistye Prudy. The rear facadeCopyright: © Sminex
Next come the floor plans: the house has 31 apartments in it, and each one is unique: there is not a single “standard” floor, which assures a good variety for the buyers to choose from. In the lower floors, the apartments are smaller; higher up, they grow bigger. The top is occupied by four penthouses with spacious terraces on the roof. The latter will command beautiful views of the Chistoprudny Boulevard, Maroseyka and Myasnitskaya streets, and even the Kremlin and Moscow City complex.
High-end housing complex Chistye PrudyCopyright: © SminexHigh-end housing complex Chistye PrudyCopyright: © SminexHigh-end housing complex Chistye PrudyCopyright: © SminexHigh-end housing complex Chistye PrudyCopyright: © SminexHigh-end housing complex Chistye PrudyCopyright: © SminexHigh-end housing complex Chistye PrudyCopyright: © SminexHigh-end housing complex Chistye PrudyCopyright: © Sminex
Thus, from the architectural standpoint, the house can be regarded as an example of an almost model balance between preservation and implementation of modern conveniences, or “solutions for residents’ comfort” as they are sometimes called; an example of masterful adaptation of a more-than-a-century-old building to the realities of Moscow of the 2020’s.
From the point of view of development, sales, and more broadly, the typology of modern real estate, the house in Potapovsky is also marked by innovations. As a rule, the representatives of Sminex emphasize, high-end properties in Moscow have neither a courtyard nor additional functions, only a lobby with a reception, which is explained by the cramped conditions of the sites where this typology of modern housing is developing. In the case of “Clean Ponds”, conditions are also limited, but the developer used all the features of the site at their disposal.
The land site is located inside the block, which means that the place, as was already mentioned, will not just be quiet, but very quiet. In addition, a certain environment is formed around the house, as is usually the case in Moscow courtyards, due to the distances between it and the neighboring buildings. On the adjacent territory, whose area (1300 sqm) is quite large by the standards of such a house, landscaping is planned in the form of a small but lush garden surrounding the house; it is positioned as a “garden” yard (the authors of the project: Sminex and ALD specialists).
High-end housing complex Chistye PrudyCopyright: © SminexHigh-end housing complex Chistye PrudyCopyright: © SminexHigh-end housing complex Chistye PrudyCopyright: © SminexHigh-end housing complex Chistye PrudyCopyright: © SminexHigh-end housing complex Chistye PrudyCopyright: © SminexHigh-end housing complex Chistye PrudyCopyright: © Sminex
Second, Moscow yards, as a rule, are filled with small outlaw constructions and annexes. In our particular case, a few such small-size houses – some of them appeared a little bit earlier, and some simultaneously with the house – will contain a public lounge for the residents with a fireplace (in accordance with the FRIEND’S LAB standard), children’s edutainment spaces (in accordance with the KID’S LAB standard), a fitness hall (in accordance with the FIT LAB standard), as well as a place for parking strollers and bicycles.
In the new construction, these functions, which allow the residents to use services without leaving their home, are usually placed in a stylobate; in this case, however, the basis for development was a compound structure of historical in-yard development. The project of reconstructing the pavilions was performed by APRELarchitects in cooperation with Sminex.
The “representative” function is performed by the lobby of the first floor: yet another public space with a 4.7 meter ceiling (the authors of design of the public spaces: specialists of Sminex and Woodstone). “We are bringing historical pavilions back to the city environment and fill them with new functions. We invest into the landscaping of Clean Ponds so that the residents would not have to choose between privacy and comfort. For this housing complex that has only 31 apartments in it, we thought out an unprecedented amount of additional service. There is everything here for a healthy lifestyle, children’s development, recreation, walks and communication,” says Ivan Obukhov, Sales Director of Sminex.
High-end housing complex Chistye Prudy. The main facadeCopyright: © Sminex
Efforts both to preserve the building and to develop a new, more complex version of the Moscow high-end housing complex with an extremely diverse apartment layout and developed public spaces, apparently, bring “market” results: the offer arouses the interest of apartment buyers. Since the start of sales in January 2022, about a quarter of the apartments have already been sold.
|