Published on Archi.ru (https://archi.ru)

30.08.2022

Three in One

Alyona Kuznetsova
Studio:
Evgeniy Gerasimov & partners

The house on Telezhnaya Street, designed by Evgeny Gerasimov and Partners, located just a couple of steps away from the Nevsky Prospect, can be visually divided into three independent entities. By doing this, the architects keep up the scale of the historical street and overcome the challenges posed by a stretching land site.

The “Novy Nevsky” house is situated literally two steps away from the city’s main thoroughfare, yet in its less reputed and “tread-upon” part lying around the “Alexander Nevsky Square” metro station. The city environment is tangibly diverse here: deluxe boutiques stand next to Belarus Jersey discounters here, elite restaurants next to inexpensive bakeries, and high-end real property next to hazardous buildings. The closer to the Neva, the more industrial parks are hidden behind the grand facades.

“Novy Nevsky” housing complex
“Novy Nevsky” housing complex
Copyright: © Photograph © Andrey Belimov-Gushchin / photo courtesy by Evgeny Gerasimov and Partners


The address of the house is Telezhnaya Street. In the 18th century it could have become the continuation of the Nevsky Prospect, and in the Soviet time its parallel relief road, had it not been for the fact that the town planners finally made a decision to combine it with the Goncharnaya Street, treating down a couple of 19th century buildings standing between the Poltavskaya and Kharkovskaya Streets. This, however, did not come to pass, and the street ended up being slightly distanced from the center of the city and the area of the Moskovsky Railway Station. Possibly, for this reason, or, possibly, due to the proximity to the infection Botkin Clinic and a sawmill, or, possibly, because of the mostly shabby facades of the historical tenements standing here, over the past few decades the Telezhnaya Street has been perceived as one that belongs more with the outskirts than with the city center. Until recently, its southeast part, leading in the direction of the metro station and the gardens of the Alexander Nevsky monastery, lay virtually undeveloped: garages and a tire service on the left, and the industrial park of the sawmill on the right.

Designed by Evgeny Gerasimov and Partners, the Novy Nevsky house stretches 130 meters on the left side of the street. It picks up the rhythm and morphology of its historical front – “builds up” on it on a slightly bigger scale, but in a modern quality, hinting in this way at the prospects for its development.

“Novy Nevsky” housing complex
“Novy Nevsky” housing complex
Copyright: © Photograph © Andrey Belimov-Gushchin / photo courtesy by Evgeny Gerasimov and Partners


Designing this house is something that the company started a long time ago – back in 2009. The number of versions allows you to track how the client’s preferences shifted – the architects gradually moved from colorful facades to more laconic ones. In one of the first drawings, the house is designed in an Art Nouveau key, and looks very much like another work by the architects – the house at Nevsky 137, built in 2004. The next interpretation is very brutal-looking, with large volumes and aggressive-looking cantilevered structures. Then the house begins to look more and more like the current version, but it is characterized by more ornaments. One of the visualizations displays a facade clad in red brick, where small details of exposed concrete look like snowflakes – this technique echoes the company’s project on Mirgorodskaya Street.

A version of the “Novy Nevsky” house Copyright: © photo courtesy by Evgeny Gerasimov and Partners
A version of the “Novy Nevsky” house
Copyright: © photo courtesy by Evgeny Gerasimov and Partners
A version of the “Novy Nevsky” house Copyright: © photo courtesy by Evgeny Gerasimov and Partners
A version of the “Novy Nevsky” house
Copyright: © photo courtesy by Evgeny Gerasimov and Partners
A version of the “Novy Nevsky” house Copyright: © photo courtesy by Evgeny Gerasimov and Partners
A version of the “Novy Nevsky” house
Copyright: © photo courtesy by Evgeny Gerasimov and Partners
A version of the “Novy Nevsky” house Copyright: © photo courtesy by Evgeny Gerasimov and Partners
A version of the “Novy Nevsky” house
Copyright: © photo courtesy by Evgeny Gerasimov and Partners
A version of the “Novy Nevsky” house Copyright: © photo courtesy by Evgeny Gerasimov and Partners
A version of the “Novy Nevsky” house
Copyright: © photo courtesy by Evgeny Gerasimov and Partners
A version of the “Novy Nevsky” house Copyright: © photo courtesy by Evgeny Gerasimov and Partners
A version of the “Novy Nevsky” house
Copyright: © photo courtesy by Evgeny Gerasimov and Partners


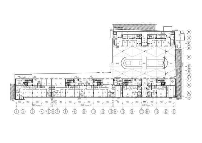
Despite the tangible differences, all the versions have in common the technique of simulating firewall construction: a volume that stretches alongside the street’s redline, is composed of a few different facades. This parceling is also preserved in the final project – the street part of the Novy Nevsky includes five sections and one arch passage leading into the yard, while its facade wall is interpreted as three different “houses” drawn within the framework of the common logic, but “by different hands”. The street building is complemented by the yard one: it is twice as short, and the facades are designed in a neutral way.

“Novy Nevsky” housing complex
“Novy Nevsky” housing complex
Copyright: © Evgeny Gerasimov and Partners


One thing that all the three street facades of the main buildings have in common is hand-molded brick, as well as the structure: the first “commercial” floor forming the basis, the five upper floors forming the “body” of the house. The sixth “residential” tier of the penthouses steps back deeper from the facades, forming open terraces before the apartments; it is all but invisible from the street below.

The architectural design of the facades and the scale of the units are adapted to the surrounding historical construction. The house fits into the context and at the same time offers a new statement on the development of this part of the city. Then the differences follow.

“Novy Nevsky” housing complex
“Novy Nevsky” housing complex
Copyright: © Photograph © Ivan Smelov / photo courtesy by Evgeny Gerasimov and Partners


The closest to the Alexander Nevsky Monastery stands a “house” composed of light bricks of slightly different colors. It is designed in a symmetrical way; the center of the axis is the tower that reaches up to the terraces, crowned with a semblance of battlements. The rhythmic pattern of the facade is adorned by charming details of exposed concrete – diamonds and “pleats” – echoed by the wrought iron grilles on the windows. The wind brings to Telezhnaya Street the smell of bread from the nearby “Karavay” (“Loaf”) bakery, and then it seems that the “pleats” appeared precisely because of this circumstance. However, the architects claim that they focused on Art Nouveau. In any case, this part of “Novy Nevsky” turned out to be elegant and even somewhat romantic.

“Novy Nevsky” housing complex
“Novy Nevsky” housing complex
Copyright: © Photograph © Andrey Belimov-Gushchin / photo courtesy by Evgeny Gerasimov and Partners


“Novy Nevsky” housing complex
“Novy Nevsky” housing complex
Copyright: © Photograph © Andrey Belimov-Gushchin / photo courtesy by Evgeny Gerasimov and Partners


The middle “house” of classic red brick possesses the same character: here, lavish cascades of ornaments are replaced by bay windows, standing at attention; the loose-looking masonry gives way to a high-gloss surface, and that open shop windows of the first floor to more narrow “introvert” ones. Despite the clear boundary, the second “house” bleeds into the first one thanks to the decoration of the bay windows with light natural stone and light-colored masonry mortar.

“Novy Nevsky” housing complex
“Novy Nevsky” housing complex
Copyright: © Photograph © Andrey Belimov-Gushchin / photo courtesy by Evgeny Gerasimov and Partners


“Novy Nevsky” housing complex
“Novy Nevsky” housing complex
Copyright: © Photograph © Andrey Belimov-Gushchin / photo courtesy by Evgeny Gerasimov and Partners


“Novy Nevsky” housing complex
“Novy Nevsky” housing complex
Copyright: © Photograph © Azamat Abikenov / photo courtesy by Evgeny Gerasimov and Partners


The third “house” is the only one that does not have a symmetry axis, and the most “loft” one thanks to the large window pattern and the brick of a wine-red “factory” hue, the depth of which is accentuated by a checkered pattern. At the joint with the neighboring five-story house built in 1961, the redline of the street changes, which allowed the architects to add a rather massive accentuated tower that steps slightly forward. According to the architects, this facade is stylistically connected with the austere functionalist architecture of Europe of the 20th century.

“Novy Nevsky” housing complex
“Novy Nevsky” housing complex
Copyright: © Photograph © Andrey Belimov-Gushchin / photo courtesy by Evgeny Gerasimov and Partners


“Novy Nevsky” housing complex
“Novy Nevsky” housing complex
Copyright: © Photograph © Andrey Belimov-Gushchin / photo courtesy by Evgeny Gerasimov and Partners


From the yard side, the house keeps up the decoration and the main facade solutions, while the second unit is designed in a rather neutral way: three walls ended up being blind ones because the house stands with its “back” turned to the pre-revolution wing. All the windows of this house overlook the little yard of the complex. The buildings are united by an underground level, in which there is an underground parking garage for 89 cars. The main building of the “Novy Nevsky” includes 120 apartments ranging from 47 to 180 square meters.

“Novy Nevsky” housing complex
“Novy Nevsky” housing complex
Copyright: © photo courtesy by Evgeny Gerasimov and Partners


“Novy Nevsky” housing complex
“Novy Nevsky” housing complex
Copyright: © photo courtesy by Evgeny Gerasimov and Partners