|
The project of the airport, which ASADOV Architects developed for the city of Tobolsk, and which won in the architectural competition, was not implemented. However, it is interesting as an example of designing an airport building of a very small scale, where the main challenge is the optimal organization of space and infrastructure without compromising the imagery component.
Today, Tobolsk is a classic example of a provincial city, small and remote. Among the cities of a similar scale, Tobolsk, the ex-capital of Siberia, from which in the late 16th century Russia began systematic development thereof, is remarkable both for its history and monuments of architecture. Later on, however, the trade routes shifted southward; the city stopped growing, and now its population is a little under a hundred thousand people. Thus, it comes as no surprise that hitherto Tobolsk did not have an airport. Its construction was scheduled within the framework of the new program for developing the city’s infrastructure; an architectural competition was held for the airport project in 2020, it was won by ASADOV Architects. Alas, the building of the Tobolsk terminal, which was opened recently in September, was constructed in accordance with a different, slightly simpler, project. In this article, however, we are going to share about the project that won in the competition but was not implemented.
 The Tobolsk airport, a project, 2020Copyright: © ASADOV Architects
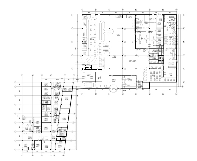
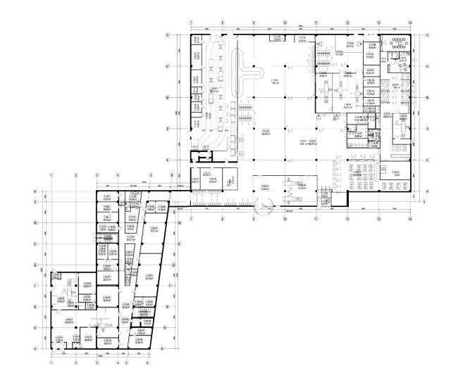
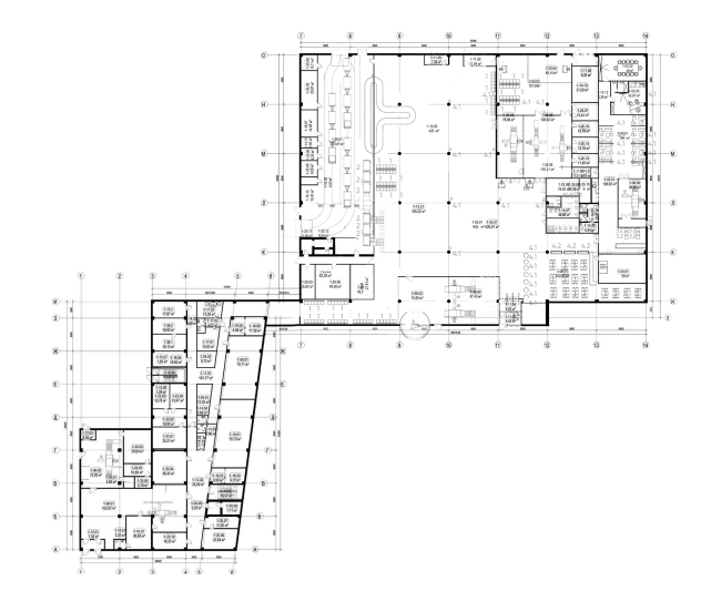
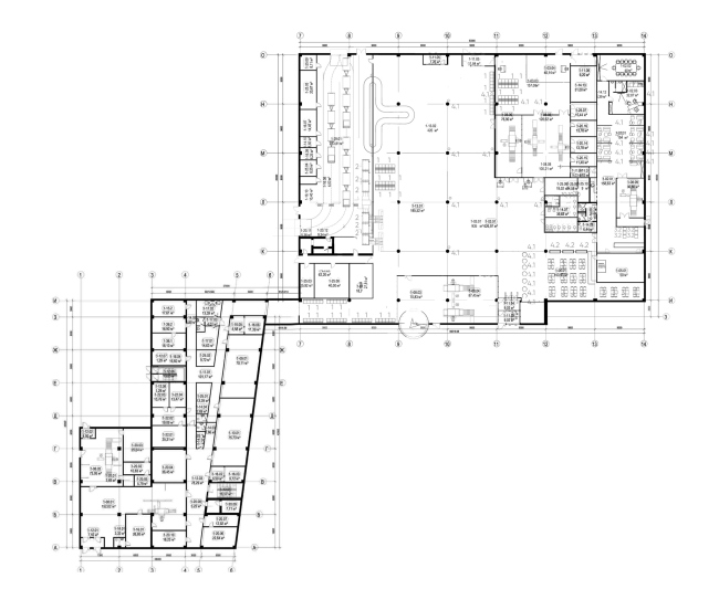
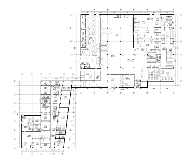
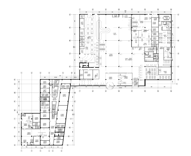
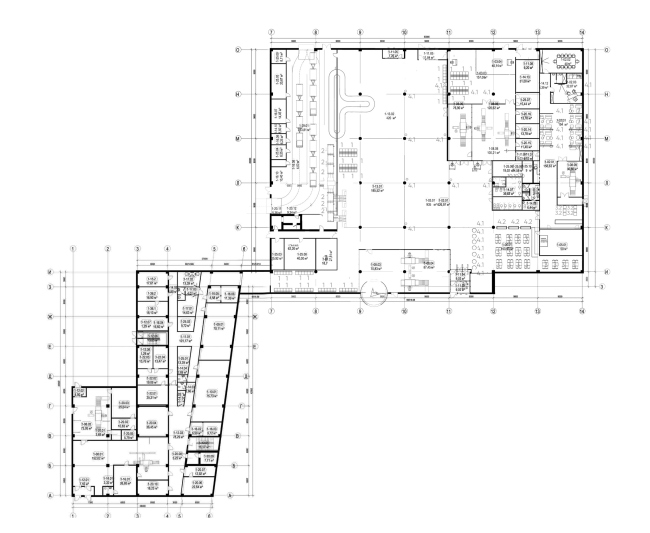
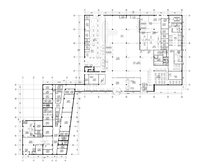
In the project by ASADOV Architects, a small building with a total area of 3,000 square meters comprised the terminal and the offices of the airport services.
And the driving idea, from which the architects proceeded in their work on the airport’s imagery, was the value of the possibility of flight per se. Indeed, Tobolsk has always, or at least for quite a while, been connected with the center or the main transport arteries only indirectly. This is why the architects took as a basis an airplane as such, or one might even say, the idea of an airplane the way Plato envisaged it.
The graphic silhouette of an airliner was designed and drawn in such a way as to be clearly read both from a birds-eye view, as well as from the ground level. This construction was meant to enrich the basic rectangular volume of the terminal: to create height differences in the roof, thus highlighting the central zones in the interior, to form skylights, as well as to organize entrance groups – one from the side of the city, and one from the side of the airfield.
The Tobolsk airport, a project, 2020Copyright: © ASADOV Architects
The Tobolsk airport. The original version, a view from the landside areaCopyright: © ASADOV Architects
However, the client asked the architects to revise the project and come up with a simpler version. This is how a second version appeared, in which the architects came up with new imagery – pitched roofs, clad in wooden finish and bringing up associations with northern architecture or log houses that were abundant here when the city was just founded. Thus, the second version refers to the historical past of Tobolsk, and this associative series is much more complex than one may think when a log house was mentioned: the smooth curves of the ridges and pitches of the roof, and the prominent thickness of the roof coverage create an effect of a thick layer of snow that softens all the shapes and inevitably comes to mind as one main attributes of Siberia.
The Tobolsk airport. The original version, a birds-eye viewCopyright: © ASADOV Architects
At the same time, this smoothness makes it possible to make a transition to the modern interpretation of the traditional pitched roof – the entire silvery roof is perceived as a parabolic surface that hovers above the weightless glass base. Its dynamic outline is telling the tale of moving upwards and gaining height. Another interesting fact is that technically the curvilinear roof was designed by the architects in an even more cost-effective way than the faceted shapes of the conditional airplane – the ridge of the roof is taking up the position of the diagonal, yet at the same time it is symmetrical, and therefore it will include metallic beams of just a handful of types and sizes, which will streamline the construction costs.
The Tobolsk airport. A view from the landside areaCopyright: © ASADOV Architects
The Tobolsk airport. A birds-eye viewCopyright: © ASADOV Architects
In the course of working on the project, the inner plan was also changing – after the “Regional Airports” company became the official operator of the Tobolsk airport, the floor plans became even more open, and merging of zones yielded more useful floor space. Such a thought-out floor plan is particularly important for an ultra-small airport. Everything is very compact here, all the modules are positioned on one level, but the terminal contains the full set of the zones that you would expect to see in an airport, including retail, cafes, and an executive lounge.
The interior design solution again refers to the images of Siberia as a harsh northern land – the decoration of the ceiling in its high part with light-colored lamellas imitates a cloudy sky; there are pinpoint lights shimmering between their facets, which create a theatrical effect of falling snow; the lower zones are decorated with warm wood, and by contrast they look particularly cozy.
The Tobolsk airport. A birds-eye viewCopyright: © ASADOV Architects
The Tobolsk airport. The interiorCopyright: © ASADOV Architects
The Tobolsk airport. The interiorCopyright: © ASADOV Architects
The Tobolsk airport. The interiorCopyright: © ASADOV Architects
The elongated wing of the curvilinear roof connects the terminal to the office building of airport services, which, again, allows you to save up on the infrastructure – for example, the office coworkers may use the cafes in the terminal. However, the main advantage of combining the two buildings into a single complex is the design of the plaza in front of the terminal. Typologically, the “landside area” has been around for almost 150 years, and, as the architectural styles kept changing, it went through various ways of interpreting its space. And, while in major airports it is designed based solely on the technological and logistics approach, in this small-scale version, in the absence of several levels and the need for large capacity, it retains a few features of previous approaches and styles. In the ASADOV architects project, the plaza comprises several zones: the pedestrian space, the landscape section with greenery, the driveway, and the parking lot – everything sets a “human-friendly” scale instead of a “conveyor belt”.
The Tobolsk airport. A cross section viewCopyright: © ASADOV Architects
Meanwhile, pursuing the path of cost optimization, the client company ultimately refrained from any architectural imagery and eventually built the airport in accordance with the most simplified project. And still, the appearance of an airport in Tobolsk as such is hard to overestimate. In the earlier versions of the project, one can see the name of the conqueror of Siberia, Ataman Ermak, but ultimately the airport was named after Simon Remezov – the Siberian map-maker, chronicler, icon painter and architect of the Tobolsk Kremlin. This versatile man fully deserves the name of the Siberian Leonardo, and acquaintance with his heritage is part of the cultural program for tourists visiting Tobolsk. Thanks to the airport, their number is expected to increase to seven million per year. However, the airport does not just improve transport links – it boosts the investment attractiveness of the city, and ultimately gives a powerful impetus to its development, which Tobolsk has been waiting for 300 years.
The Tobolsk airport. The northern and southern facadesCopyright: © ASADOV ArchitectsThe Tobolsk airport. The eastern and western facadesCopyright: © ASADOV ArchitectsThe Tobolsk airport. Plan of the terminal and the office building of airport services
|