|
Built in the town of Pushkino in the Moscow area, the “Turgeneva 13” housing complex, while fitting in with the surrounding context, differs from it with the rhythmic austerity of its dual composition, a slight wave of the façade, and the color design, in which one can see two images, winter and summer, both “growing” from the specifics of the place.
The “Turgeneva 13” housing complex is not the first new project designed for Moscow area’s Pushkino by KPLN, but the first completed one. The two towers with business-class apartments, sold at rather moderate prices (2-room apartments starting at 6M rubles) stand on the embankment on the Serebryanka River. Their location is remarkable in its duality: this is almost the center of the city, next to two squares (one has a Pushkin monument standing on it, the other a memorial to the Great Patriotic War), and to the local park; at the same time, on the opposite side of the Serebryanka, there is an arboretum park, and it seems that the town stops short here: there just has been a scatter of residential towers, and – bang! – the city ends. While the embankment on this side is sturdy and made of concrete, the opposite side is total wilderness; in winter fishermen sit on the ice of the pond, and some panoramas turn out to be unexpectedly suburban and pastoral.
 Na Turgeneva housing complexCopyright: Photo courtesy by KPLN
Na Turgeneva housing complexCopyright: Photo courtesy by KPLN
At the same time, if you look from the Yaroslavl highway, from where the housing complex is pretty viewable, it obviously looks like it belongs in the league of the Moscow-area high-rise development, which has already spread a kilometer to the north. However, what makes “Turgeneva 13” different from the rank-and-file high-rise housing projects is its compact and collected appearance and neatly drawn architecture, and even some noble character amidst the buildings, some of which are too standard, some plain ugly, and some garish-looking – the usual Moscow-area panorama that we are accustomed to.
Na Turgeneva housing complexCopyright: Photo courtesy by KPLN
Na Turgeneva housing complexCopyright: Photo courtesy by KPLN
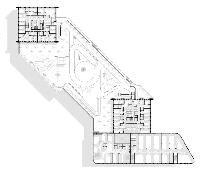
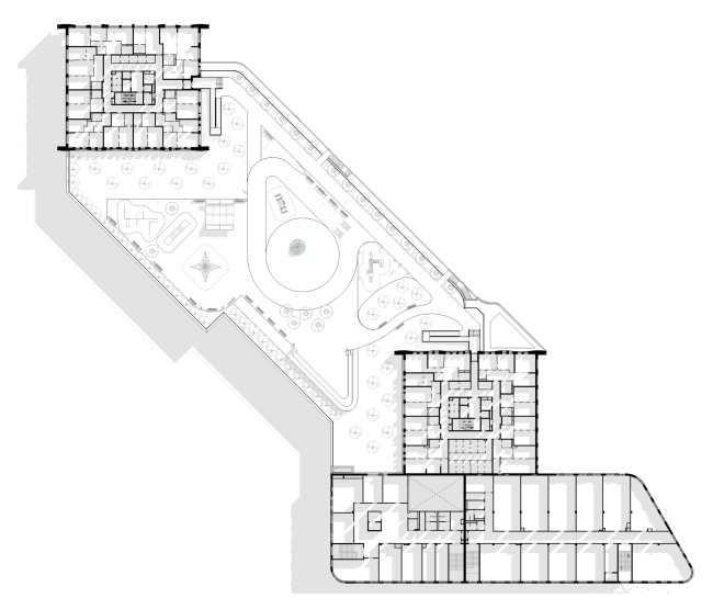
The two towers, square on the plan, are connected by an elongated stylobate: the underground car parks are placed on the inside, while on the roof there is a yard with a playground and a two-tiered wooden amphitheater that bypasses the playground at an acute angle. Sitting on its stairs, you can both watch your children play and admire the pond.
Na Turgeneva housing complexCopyright: Photo courtesy by KPLN
Na Turgeneva housing complexCopyright: Photo courtesy by KPLN
The stylobate is not exactly wide – about 40 meters wide – but it is raised high enough, about 5 or 6 meters above the ground, which ensures sufficient privacy. The towers stand at side ends – the bottom tier is “stretched” between them – and are turned at a 45-degree angle both to the line of the embankment and the stylobate’s axis, so that both from the water area and from the yard we see the houses at an angle, which allows us to appreciate the diversity of the facades.
Plan on the elevation of the 2nd floor. Na Turgeneva housing complexCopyright: © KPLN
This difference is something that the entire plastique intrigue is based upon. North and south are faced by the white facades – they are a little bit longer, and, in addition, are extended by ledges that merge with the upper cornice link – this is how peculiar U-shaped “casings” appear that wrap around the volumes of the towers. forming a kind of a volumetric “frame”. The external surface of the white facades is slightly wavy, and they look particularly interesting in a slanted light that enhances the sculptural character of the curve.
Na Turgeneva housing complexCopyright: Photograph: Archi.ru
Na Turgeneva housing complexCopyright: Photograph: Archi.ru
At the same time, if we look at them en face in a soft light, the white façade with a fine pattern of windows of different height and black boxes of the air conditioners take on a graphically laconic character of the pure design solution, advantageous against the multicolored context, but livened up by the different heights of the windows, which seem suspended from the upper line, like a fringe, and echo the wavy surface of the facade.
Na Turgeneva housing complexCopyright: Photo courtesy by KPLNNa Turgeneva housing complexCopyright: Photo courtesy by KPLNNa Turgeneva housing complexCopyright: Photo courtesy by KPLNNa Turgeneva housing complexCopyright: Photo courtesy by KPLN
The west and the east facades are dark-colored; the horizontal panels of porcelain stoneware with an effect of brown wood form a differently toned surface. The wall recedes backwards from the white frame and sinks in one more time in the center, forming a broad vertical ledge, framed by two “risalits”. The volumetric wave of the white facades is echoed by the decorative wave of the light-beige lattices that cover some of the windows of the recessed balconies, slightly softening the straight character of the vertical lamellas.
Na Turgeneva housing complexCopyright: Photo courtesy by KPLN
Thus, the two identical towers seem to be elements cut from some kind of a blank: a light wavy “crust”, and a dark soft “middle” – on the whole, this is a well-known modern technique, but in this case it helps to build a complex solely volumetrically, based on the intrigue of comparing two types of “plastique matter”.
Na Turgeneva housing complexCopyright: Photo courtesy by KPLN
Na Turgeneva housing complexCopyright: Photo courtesy by KPLN
In the southern part, from the side of the 1st Nekrasovsky Drive (which serves here as the main road from the city) the lower tier is joined by a two-story volume of retail. Its facades, like the facades of the stylobate, are designed in a dark “wooden” key; the corners are rounded, the windows are combined in vertical pairs and alternate with the recesses of the entrances. A few stores are already open here, and the side-end part looks quite spectacular and seems to be a viable basis for urban life on the lake shore.
Na Turgeneva housing complexCopyright: Photo courtesy by KPLN
Na Turgeneva housing complexCopyright: Photo courtesy by KPLN
Yet another peculiar feature of the stylobate are the entrances of the residential buildings. Located in the corners between the stylobate and the bases of the towers, they are asymmetrical, shady and cozy in their own way. In front of them, there are little green knolls of geoplastics, which give the entrances an unexpected likeness to caves.
The facade from the embankment side. Na Turgeneva housing complexCopyright: © KPLN
The canopies over the entrances are a separate story: they flow, bend, and stretch lintels to one another through the air, supported by round black columns.
In a word, everything here, in the part of the complex, to which the end users – its residents – are exposed most of all, austerity gives way to some “sculptural-ness”, specifically, deconstruction. In any case, the solution, proposed by the architects, is far from “standard”: not a portal, not a portico, not a recession, but a little bit of everything rolled into one. Maybe it is this building that gives a start, like a boat sailing the lake, to the “wave” of white surfaces on the towers? This is a version just as good as any other – like some sort of the building’s reaction to the river.
Na Turgeneva housing complexCopyright: Photovraph: Archi.ru
Today, in January, you can strongly feel not just the response to the vicinity of the pond on the Serebryanka river, but also the complex’s emotional kinship to winter – not the “postcard” kind with Santa Clause, but to the real winter, the way that we see every day on the city streets. The two main tonalities: a wavy white “crust” and a loose multi-tone “base” echo each other, one with the surfaces of untouched snowdrifts and snowfields, and the other with roads traveled among them. What it ends up being is a recognizable white-ochre-brown scale, sung by the painting of the XX century; because of it, houses seem to grow “right out of the ground”, flesh and blood of the surrounding landscape, and seem firmly rooted in it. This is an unconventional approach to the context: instead of adapting to the surrounding buildings, the new complex quietly resists them, offering its own view of the image of the place.Na Turgeneva housing complexCopyright: Photo courtesy by KPLNNa Turgeneva housing complexCopyright: Photo courtesy by KPLNNa Turgeneva housing complexCopyright: Photo courtesy by KPLNNa Turgeneva housing complexCopyright: Photo courtesy by KPLNThe scheme of the architectural solution. Na Turgeneva housing complexCopyright: Photo courtesy by KPLN
|