|
The project of the new terminal of the Muraviev-Amursky airport in Blagoveshchensk offers architecture based on a modular form – endowed with a special imagery, it becomes the basis both for the carrying structures of the building and the plastique of the facade, at the same time reverberating in the interior design.
The common description of “air gateway” really adequately reflects the essence of an airport as your first exposure to the city and your first impression from it. This is why it is so important for the architects designing an airport to find its identity that would reveal to the travelers the genotype of the place, its individuality, and the most interesting features.
ASADOV Architects have accumulated tremendous experience in projects of this typology, having already designed fifteen airport terminals across the country, some of them – in Kemerovo, Saratov, and Perm – being completed and quite popular.
The initial phase of the design process is creating a “mood board” or “inspiration board”, which becomes the basis for searching for the genotype of the place. For Blagoveshchensk, and, more generally, Amursky Territory, the set of characteristic features turned out to be quite diverse – equally important were the historical past of the city, the natural specifics of the region, and the vector of its modern development.
Only in the Amur Territory a special kind of Far Eastern lotus grows – one of the most beautiful aquatic plants on the planet, and only on the Amur River you can see the so-called “burning” mountains – water washes away the loose soil at the base of the ridge, exposing brown coal, which ignites spontaneously when in contact with air, burning with a smoky flame, and constantly yielding smoke. And, finally, it the Blagoveshchensk airport that welcomes those whose end destination is the Vostochny spaceport – the proximity of the spaceport gives Blagoveshchensk a special flavor and special status, therefore the space theme turned out to be especially important and attractive for the authors of the project.
 The concept. The project of the new terminal of the Muraviev-Amursky airport in BlagoveshchenskCopyright: © ASADOV Architects
The architects added to the airport’s architecture a “telltale” form – they developed a folded structure based upon a triangular module, which they filled with meaning and turned into a symbol that has absorbed the images of lotus petals, mountains, and a rocket at the start. The triangular folded structure was devised as the basic element of the airport’s architecture: it is to be seen in the main facade, the roof design, the carrying structures, and the interior elements. It is thanks to this structure that the facade takes on volumetric plastique, and the roof gets sawtooth skylights. The roof continues in a powerful cantilevered structure, and the triangular folds that fracture its surface are involved in rhythmic interaction with the multidirectional triangular planes that form the facade.
The project of the new terminal of the Muraviev-Amursky airport in BlagoveshchenskCopyright: © ASADOV Architects
The facade finish is the classic combination of glass and metal; the decorative metallic cassettes of a large format set the scale that is just right for a public building – not too fine and just a little bit more “heroic” in respect to the human being.
The main facade. The project of the new terminal of the Muraviev-Amursky airport in BlagoveshchenskCopyright: © ASADOV Architects
The big cantilevered structure above the entrance is one of the favorite techniques of Soviet modernism; in the case of a large-scale public building, such a railway station or an airport, it is particularly functionally justified, and, possibly, this is the reason why it has recently become relevant again: Oodi library in Helsinki is the first thing that comes to mind. In this specific instance, the cantilever creates a cozy recessed balcony before the facade, at the same time not obscuring the ambient light due to the lights on the ceiling. One can also easily notice similarities with other ASADOV airports, the golden “wing” in Perm or the metallic awning in Kemerovo.
The project of the new terminal of the Muraviev-Amursky airport in BlagoveshchenskCopyright: © ASADOV Architects
Designing airport terminals is a tricky task because from the very start the project must include a possibility of development: adding new grounds and increasing the capacity. As a matter of fact, this designed facility is an extension in itself – the Blagoveshchensk airport has been in existence for more than sixty years. The laconic modernist building of the old terminal without any unnecessary frills will be preserved, while the new volume will be placed in such a way that together they form the airport plaza – this plaza will be totally vehicle-free, this will be an open-air recreation area, where you can wait for your flight or take a rest upon arrival.
The new terminal faces the green place with one of its sidewalls, designed as a massive triangular support – it is placed beyond the contour of the volume, thanks to which a buffer zone appears between this support and the entrance, presenting a space protected from the wind and the rain. The plane of the support becomes a decorative accent and a place for a large portrait of Count Nikolai Muraviev-Amursky, after whom the airport was named. Thanks to the efforts of this man – the tsarist general and governor of Eastern Siberia – the history of the Amur region began, which was previously sparsely populated and almost uninhabited.
The birds-eye view. The project of the new terminal of the Muraviev-Amursky airport in BlagoveshchenskCopyright: © ASADOV Architects
The birds-eye view. The project of the new terminal of the Muraviev-Amursky airport in BlagoveshchenskCopyright: © ASADOV Architects
In the interior, the authors of the project continue the “triangular” theme by using a decorative ceiling – the vertical panels form a crystalline grid suspended below the utility lines running under the ceiling. This pass-through additional layer performs several functions at the same time, creating an acoustic effect and serving as the basis for the linear light sources.
The interior. The project of the new terminal of the Muraviev-Amursky airport in BlagoveshchenskCopyright: © ASADOV ArchitectsThe interior. The project of the new terminal of the Muraviev-Amursky airport in BlagoveshchenskCopyright: © ASADOV ArchitectsThe interior. The project of the new terminal of the Muraviev-Amursky airport in BlagoveshchenskCopyright: © ASADOV Architects
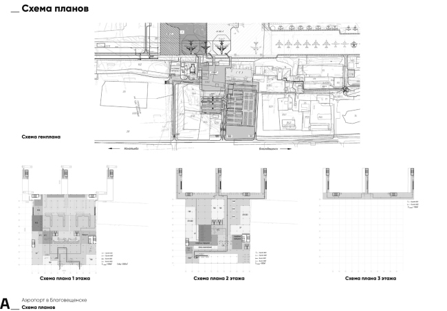
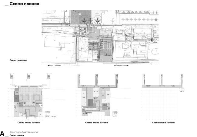
The functional diagram of the airport places the departure and arrival halls at different levels; the tall double-height zone stretched along the main facade serves as a place for the distribution of flows, and it is from here that the internal architecture of the terminal is read the most clearly and presents itself at its absolute best.
The project of the new terminal of the Muraviev-Amursky airport in BlagoveshchenskCopyright: © ASADOV Architects
The new terminal is meant to raise the passenger comfort to a whole new level: jetways will appear, as well as cafes and new retail facilities. The gaze of a modern person is accustomed to a quick change of impressions, and therefore architecture, in order to be fashionable and modern, must be full and saturated, instead of empty and laconic. However, in these conditions a problem arises of the integrity of the project and its emotional component – in this instance, as we believe, this task was successfully achieved, both in terms of approach and the end result, manifested in the architectural concept of this terminal.
|