Published on Archi.ru (https://archi.ru)

08.06.2021

​Walking on Clouds

Alyona Kuznetsova
Architect:
Sergey Pereslegin
Nikolay Pereslegin
Georgy Trofimov
Studio:
Kleinewelt Architekten

A restaurant in the Khibiny skiing complex: 820 meters above the sea level, sweeping views, a levitation effect, and ingenious engineering solutions.

The closed borders made us all travel within our country and discover that we also have quite a lot of picturesque mountains, terrain routes, gastronomic wonders, and UNESCO heritage sites. We are still missing the tourism infrastructure “like in Europe”, but there have definitely been changes in this direction. The mountain restaurant in Khibiny, designed and built by Kleinewelt Architekten, is a vivid example of that. 

Kirovsk is a popular alternative to Krasnaya Polyana; in the post-COVID season, the influx of skiers here only increased – an opportunity that one could not afford to miss. The city has two ski resorts, situated on the slopes of mountains with Saam names that are really hard to pronounce – Kukisvumchorr and Aikuaivenchorr. In 2002, on the southern slope of the Aikuaivenchorr Mountain, the mountain skiing complex AO “Apatit” opened, which is part of the FosAgro complex – now it is called “Bolshoi Vudyavr” by the name of the nearby lake. Today, this is the highest mountain resort in the Northwest of Russia; the skiing season here spans from November to May. It started from 30K people per season, but today, according to the resort management, this figure hiked up to 250K. Due to the fact that Après ski is a part of a skiing vacation just as important as the slopes and comfortable cable cars, a restaurant with panoramic views, posted massively on social media sites, will definitely become a competitive advantage and an extra all-season tourist attraction.

The restaurant in the mountains
The restaurant in the mountains
Copyright: © Kleinewelt Architekten


The restaurant is being built at a height of 820 meters above the sea level, at a point where the two ropeways – a cablecar and a chairlift – meet, one serving the south slope, the other the north one. On a cloudless day, this place commands panoramic views of Kirovsk, the Bolshoi Vudyavr Lake, and the mountaintops. Brace yourself for the names: Vudyavrchorr, Rasvumchorr, Kukisvumchorr, Lovchorr, and the Poachvumchorr ridge. If there are clouds hanging above the valley, the view is just as striking, and in winter, they say, you can even see aurora borealis here. The restaurant itself can be seen from any point of Kirovsk because the mountain, on which it stands, overhangs above the city.

Despite the fact that the architectural context is nonexistent here, inscribing the building in the surroundings was just as difficult as in a city: you can easily get lost against the background of magnificent mountains, and your character shows clearly in this environment. The recognizable “hockey puck” shape, concrete as the main material, and the band of glazing makes one look for the prototypes in the Soviet architecture, which has a lot of connotations with athletic achievements and skis, albeit of the cross-country variety. And such prototypes are easily found: the “palaces of culture” or “river stations” or stadiums of the Soviet times come to mind.

It turned out, however, that the architects drew inspiration from quite different sources: it was magnetic levitation that became the starting point for the shape making process. This phenomenon presents a sight that is quite magical: at extremely low temperatures, the metal becomes superconductive and makes the magnet float in the air. This is exactly the likeness that the architects were trying to achieve: the powerful base of the “superconductor”, the floating “magnetic disk” and the air cushion between them.

The restaurant in the mountains
The restaurant in the mountains
Copyright: © Kleinewelt Architekten


The scale of the building is quite significant for its location – the restaurant is designed for 300 guests. Two out of the five floors are technical – they are situated at the topmost and bottommost levels. The middle lobby floor is accessed by a rather high staircase, covered by snow in the wintertime with only two or three stairs peeping out. The same level includes a bar and a viewing platform. The stylobate contains a kitchen, while the climax cantilever drum is the bistro cafe and a restaurant, where each and every table commands a beautiful view.

The restaurant in the mountains
The restaurant in the mountains
Copyright: © Kleinewelt Architekten


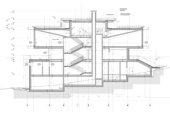
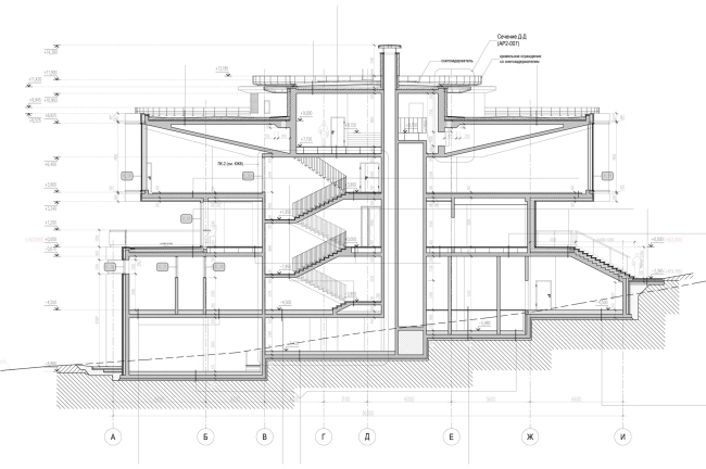
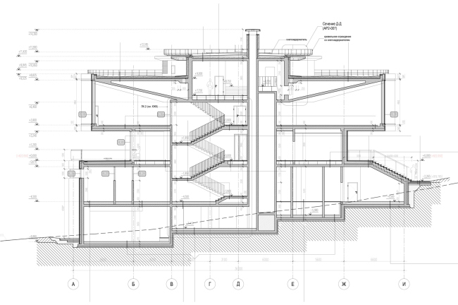
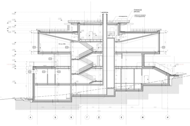
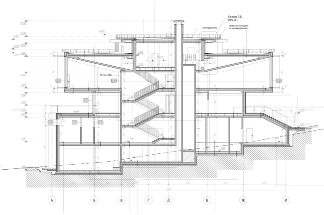
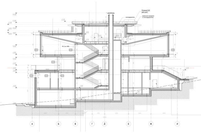
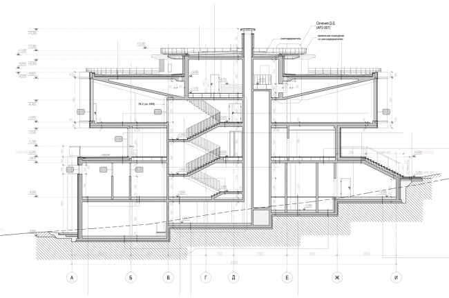
The greatest technical challenge was to ensure “levitation” of the restaurant disk, that is, to find an alternative to columns. The foundation of the building is a reinforced concrete slab, which lies on rocky ground – in order to prepare the pit, it was necessary to perform drilling and blasting operations. The main volumes of the restaurant are strung on a “rod” in which public areas, elevators and stairs are grouped together. The “rod” holds the upper support structure – an inverted cone of the roof, which expands towards the facade. Together with a flat sectional intermediate floor, the structure forms a triangle that provides the required stiffness. The lower floor slab – the floor of the restaurant – is suspended from the wide part of the cone with the help of thin metal strands. To reduce the weight of floor slabs without loss of strength, they were poured using a special technology with the introduction of hollow elements. Thanks to the solutions found by the architects, the restaurant floor protrudes from the supporting structures of the bar by 8 meters.

A section view. The restaurant in the mountains
A section view. The restaurant in the mountains
Copyright: © Kleinewelt Architekten


The engineering findings also affected the interior design of the restaurant. Due to the fact that the “stiffness cone” had enough room for all the ventilation shafts, electrical and other utility lines, the architects were able to keep the “honest” exposed texture of the sloping ceilings of the main hall. The absence of any supports, as well as the floor-to-ceiling panoramic windows whopping five meters high erase the barrier between the humans and the sweeping mountain panorama outside. The highlights of the interior design are anodized aluminum and inclusions from the local rock formation – khibinite. The only thing that somehow threw me off balance was the fact that it was easier for me to visualize James Bond’s girlfriend in such a place than a family in tousled skiwear after a day of skiing.

The restaurant in the mountains
The restaurant in the mountains
Copyright: © Kleinewelt Architekten


A mountain restaurant is a facility that is challenging not just in terms of design and construction but also in terms of operation. Delivering the building materials to the site, just as pouring concrete, was only possible in some certain time of the year, and then only during a brief period. Yet another challenge was to find suitable stained glass panels – big enough, yet at the same time with heat retaining capabilities. A lot of materials and design solutions did not stand the test of wind, snow, and cold. Nevertheless, the most difficult part has already been done – the monolith construction and the panoramic glazing are already complete.

It is expected that the restaurant will be open all year round: in summer, it will be accessed by ropeway and hiking routes, and in winter it will also be accessed by a passenger snowcat, which will also deliver food to the restaurant. The communications are being built concurrently with the restaurant building; there is a separate project of a pump station at the foot of the slope. The restaurant will be heated by electricity.

***

It seems like Kleinewelt Architekten have designed a new highlight not only for Kirovsk but also for the whole Russia – and it’s not just about the photogenic angles, but also the building itself, the benefits, strength and beauty of which are undeniable. According to the owners, “in terms of the conditions and labor intensity of construction, the project is comparable to facilities in Europe at altitudes of 2000-3000 meters”, and the project is unique for the country, since similar solutions have not yet been applied in such locations.
The unity of engineering and aesthetic solutions nevertheless makes it related to the outstanding examples of Soviet architecture, and modern and high-quality materials surely add some extra gloss. The opening of the restaurant is scheduled for the second half of 2021.

The restaurant in the mountains Copyright: © Kleinewelt Architekten
The restaurant in the mountains
Copyright: © Kleinewelt Architekten
The restaurant in the mountains Copyright: © Kleinewelt Architekten
The restaurant in the mountains
Copyright: © Kleinewelt Architekten
The restaurant in the mountains Copyright: © Kleinewelt Architekten
The restaurant in the mountains
Copyright: © Kleinewelt Architekten
The restaurant in the mountains Copyright: © Kleinewelt Architekten
The restaurant in the mountains
Copyright: © Kleinewelt Architekten
The restaurant in the mountains Copyright: © Kleinewelt Architekten
The restaurant in the mountains
Copyright: © Kleinewelt Architekten