Published on Archi.ru (https://archi.ru)

20.08.2020

From Foundation to Teaspoon

Oleg Guichar
Architect:
Roman Leonidov
Studio:
Studio of Roman Leonidov

Based on the taste of their friendly clients, the architects Olga Budennaya and Roman Leonidov designed and built a house in the Moscow metropolitan area playing Art Nouveau. At the same time, they enriched the typology of a private house with modern functions of a garage loft and a children’s art studio.

Usually, Olga Budennaya and Roman Leonidov – an architectural as well as a family duo – design houses in a modernist style. For their friends, however, they made an exception. The clients of this house are very open-minded people, who are into fine arts and theater. The mistress of the house is also a very creative person in love with Art Nouveau. The style of the house was chosen at the client’s request; she took part in the design process as the decorating coauthor, and, taking into account all of these constructive and creative solutions, the architects finally decided to “play Art Nouveau”, and this is how they defined their creative task. The house does not have any verbatim quotes in it, but it does have a lot of recognizable motifs: arched windows, stained glass windows with characteristic “flattened” tops, a bent roof, and decorative ceramic elements of the facade. Another interesting fact is that alongside the figured stained glass windows the architects also use simple rectangular windows with grid glazing pattern in the spirit of modernist factory architecture. A combination of red brick and white stucco details is not the most frequent technique to be encountered in historical Art Nouveau buildings, yet it does pop up here and there in Riga and Kharkov; or in Shekhtel Mansion in the Ermolaevsky Lane. In other words, when the architects were creating the image for the new house, Art Nouveau was not a dogma for them, but rather a starting point.

The house in the Moscow metropolitan area
The house in the Moscow metropolitan area
Copyright: Photograph © Sophia Leonidova

 
The design process consisted of a few stages. The key event was the fact that the clients got inspired by the interior of the VILLA KÉRYLOS (1902) that is situated in the French Riviera in a small town of Beaulieu-sur-Mer near Nice. This villa was built by the architect Emmanuel Pontremoli for the archaeologist and patron of the arts Theodore Reinach, combining Ancient Greek aesthetics and modernist style. The villa made such a great impression on our architects that they decided to quote some of its elements in their project, such as the chandelier in the hall or some decoration motifs from the bathrooms. Such interpretation of Art-Nouveau and the method of introducing classical elements into it became a technique that the architects made full use of. 
 
The distribution of the creative responsibility areas was traditional: Roman Leonidov did the volumetric composition and the structure of the house. The two tall volumes linked by a single-story overpass did not come around by accident. Originally, the house was designed for two friends and business partners and their families. Then their plans changed, and now the house is occupied by one family, yet it was decided to keep the two individual blocks, each with a character and form-making logic of its own. All the more so, because asymmetry of the volume is one of the characteristic features of Art Nouveau.

The house in the Moscow metropolitan area
The house in the Moscow metropolitan area
Copyright: Photograph © Sophia Leonidova

 
Now the structure with two elevated parts found a new functional rationale. This way, the unit with an Art Nouveau “hat” roof contains the parents’ rooms, while the lower unit, with a less sophisticated top is the children’s half. The tall volume (the one with a “hat”) is placed in the center of the composition; there is a spacious garage to the right of it, whose roof supports an open-air terrace with a wrought-iron barrier and green plants.

The house in the Moscow metropolitan area Copyright: Photograph © Sophia Leonidova
The house in the Moscow metropolitan area
Copyright: Photograph © Sophia Leonidova
The house in the Moscow metropolitan area Copyright: Photograph © Sophia Leonidova
The house in the Moscow metropolitan area
Copyright: Photograph © Sophia Leonidova

 
The public space of the second floor is designed as a classic enfilade with lateral branches. From the anteroom, situated on the central axis of the house, the visitor gets into the central hall with a staircase that features wrought-iron railings, and the aforementioned chandelier – the kind that is there in the French Kerylos Villa, executed by Saint Petersburg artisans.

The house in the Moscow metropolitan area Copyright: Photograph © Sophia Leonidova
The house in the Moscow metropolitan area
Copyright: Photograph © Sophia Leonidova
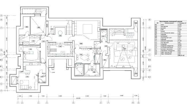
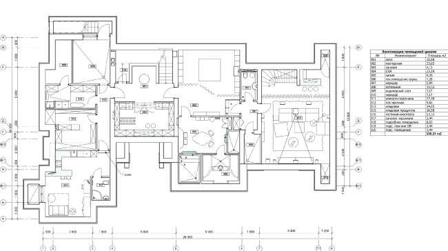
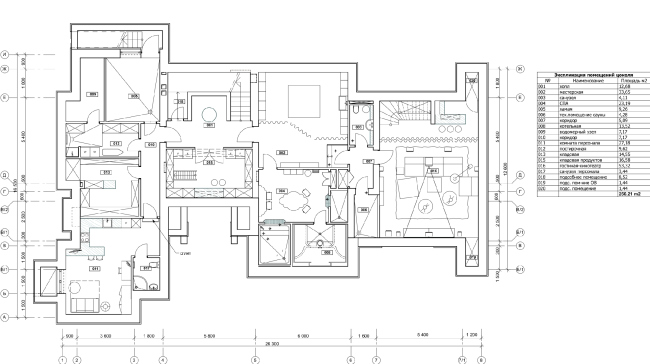
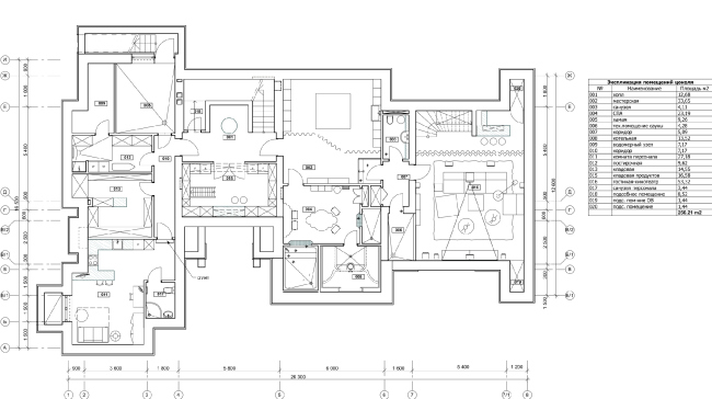
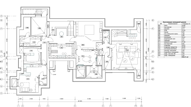
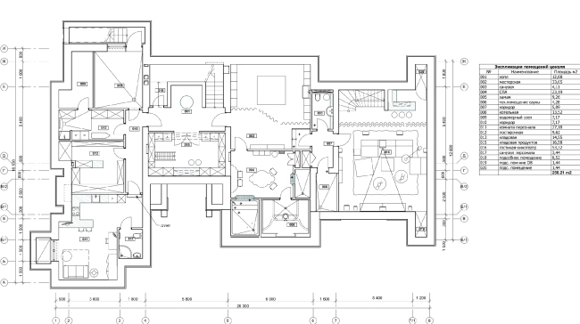
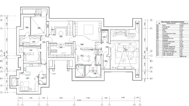
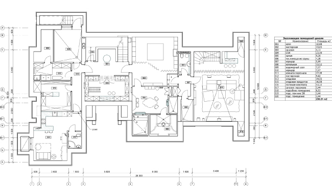
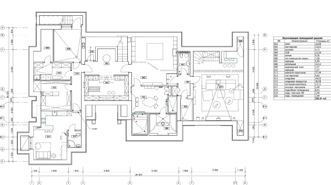
Plan of the 1st floor with furniture.  Copyright: © Studio of Roman Leonidov
Plan of the 1st floor with furniture.
Copyright: © Studio of Roman Leonidov
The house in the Moscow metropolitan area Copyright: Photograph © Sophia Leonidova
The house in the Moscow metropolitan area
Copyright: Photograph © Sophia Leonidova
The house in the Moscow metropolitan area Copyright: Photograph © Sophia Leonidova
The house in the Moscow metropolitan area
Copyright: Photograph © Sophia Leonidova

 
Left of the hall, there is an area that consists of a few zones bleeding into one another: a kitchen, then a dining room, then the room with a fireplace (plays the role of the main living room), and still another, “winter garden” living room, essentially a fully-glazed bay window, decorated by tropical plants.

The house in the Moscow metropolitan area Copyright: Photograph © Sophia Leonidova
The house in the Moscow metropolitan area
Copyright: Photograph © Sophia Leonidova
The house in the Moscow metropolitan area Copyright: Photograph © Sophia Leonidova
The house in the Moscow metropolitan area
Copyright: Photograph © Sophia Leonidova


Right of the hall, there is the mistress’s study with a library, a desk, and a sofa area, adorned by a designer magazine table, executed by a Moscow-area artisan by the authors’ drafts. From the study, one can exit into a garage loft. This special space – with high ceilings and an area of 60 Sqm, one of whose walls is slit by seven tall windows with a very characteristic glazing pattern – looks like an old factory workshop. Strictly speaking, this is not just a garage but an atmospheric loft that can be used for taking guests in and for giving parties.

The house in the Moscow metropolitan area Copyright: Photograph © Sophia Leonidova
The house in the Moscow metropolitan area
Copyright: Photograph © Sophia Leonidova
The house in the Moscow metropolitan area Copyright: Photograph © Sophia Leonidova
The house in the Moscow metropolitan area
Copyright: Photograph © Sophia Leonidova
The house in the Moscow metropolitan area Copyright: Photograph © Sophia Leonidova
The house in the Moscow metropolitan area
Copyright: Photograph © Sophia Leonidova

 
From the “loft” garage, we get down to the basement with a home theater, and further on – to the workroom. The latter is equipped with a large work table, where children and adults get together to make artistic things with their hands. It is a curious chain of creative spaces: mistress’s study – loft – home cinema – workroom.

Plan of the basement floor. The house in the Moscow metropolitan area
Plan of the basement floor. The house in the Moscow metropolitan area
Copyright: © Studio of Roman Leonidov

 
The second floor and the attic contain private rooms of the members of the family: a parents’ block and two children’s rooms. They all consist of two levels: the lower one is occupied by little living rooms and working areas, the attic floor has two bedrooms in it; two of them are accessed by spiral staircases. The parents’ living room exits to a large terrace with a garden, which is formed by an alley of ball-trimmed maples, planted into a “vase” on the roof, specially designed for growing large trees in it. This detail brings up associations with a “hanging garden”, certainly adding to the beauty of the architectural composition. One of the children’s rooms also has a balcony of its own, while a large recessed balcony, situated in the center of the house, between the two main volumes, joins them both visually and functionally. In the children’s rooms, color is extensively used – they are painted green and yellow, while the walls of the mistress’s bedroom are decorated with designer ornament panels. The vaulted ceilings are made from wood.

The house in the Moscow metropolitan area Copyright: Photograph © Sophia Leonidova
The house in the Moscow metropolitan area
Copyright: Photograph © Sophia Leonidova
The house in the Moscow metropolitan area Copyright: © Studio of Roman Leonidov
The house in the Moscow metropolitan area
Copyright: © Studio of Roman Leonidov
Plan of the 2nd floor with furniture. The house in the Moscow metropolitan area Copyright: © Studio of Roman Leonidov
Plan of the 2nd floor with furniture. The house in the Moscow metropolitan area
Copyright: © Studio of Roman Leonidov
Plan of the attic floor. The house in the Moscow metropolitan area Copyright: © Studio of Roman Leonidov
Plan of the attic floor. The house in the Moscow metropolitan area
Copyright: © Studio of Roman Leonidov

 
The bedrooms, just as many other things here, are inspired by the interior design of Kerylos Villa: they are adorned with exquisite mosaic with a fish-scale pattern, and stenciled ornaments, filled with colors and aesthetic-looking metalwork. In the bathrooms, just like in many other places around the house, many things are custom-designed.

The house in the Moscow metropolitan area Copyright: Photograph © Sophia Leonidova
The house in the Moscow metropolitan area
Copyright: Photograph © Sophia Leonidova
The house in the Moscow metropolitan area Copyright: Photograph © Sophia Leonidova
The house in the Moscow metropolitan area
Copyright: Photograph © Sophia Leonidova
The house in the Moscow metropolitan area Copyright: Photograph © Sophia Leonidova
The house in the Moscow metropolitan area
Copyright: Photograph © Sophia Leonidova
The house in the Moscow metropolitan area Copyright: Photograph © Sophia Leonidova
The house in the Moscow metropolitan area
Copyright: Photograph © Sophia Leonidova

 
As we already said, the mistress took an active part in the creative process, proposing her own insights, coming up with interesting solutions, and selecting the decor: sculptures and antique vases, chandeliers, and door handles. Many of these things were bought at European antique shops; others were made to order by the analogs of things from days past. Thanks to the mistress’s ideas, the house got romantic details like inner balconies on intricate custom-designed beams, and a hamam with Morocco mosaic.

The house in the Moscow metropolitan area Copyright: Photograph © Sophia Leonidova
The house in the Moscow metropolitan area
Copyright: Photograph © Sophia Leonidova
The house in the Moscow metropolitan area Copyright: Photograph © Sophia Leonidova
The house in the Moscow metropolitan area
Copyright: Photograph © Sophia Leonidova
The house in the Moscow metropolitan area Copyright: Photograph © Sophia Leonidova
The house in the Moscow metropolitan area
Copyright: Photograph © Sophia Leonidova

 
The modern customers from many countries, including Russia and the US, quite often have a soft spot for Art Nouveau. I will even venture a guess why: out of all modern styles, Art Nouveau is probably the most emotional one. The architects, on the other hand, have a more controversial attitude to it. When asked about the reasons for the popularity of Art Nouveau, Olga Budennaya and Roman Leonidov described the features of that style that appealed specifically to them. Olga Budennaya said that people loved Art Nouveau for really beautiful things, for the possibility to decorate and present them in a subtle manner, and at the same time for being highly contemporary and functional. Roman Leonidov believes that “the main characteristic feature of Art Nouveau is total control over the entire life of the house: from the foundation and down to the last teaspoon. This trend is also observed in Art-Deco. Both Mackintosh and Wright did everything in their products: architecture, furniture, and object design.” In this specific case one could say that total control was executed by the authors: Olga Budennaya, Roman Leonidov, Xenia Volkova, and the mistress of the house, Nadezhda Fomenko. The result turned out to be quite stunning, up to the owners’ creative message and public temperament.