Published on Archi.ru (https://archi.ru)

26.08.2019

​New York in Itself

Alyona Kuznetsova
Architect:
Aleksandr Popov
Olga Tchernova
Studio:
Archimatika

Archimatika has presented the first project that it did for Manhattan, in which the company fully implemented all of its PRO-housing principles. The premium class residential complex with expressive architecture is designed in such a way that its residents will feel secure, yet by no means isolated.

Snail Apartments housing complex
Snail Apartments housing complex
Copyright: © Archimatika


Designing a project for the city of New York is quite an achievement for any architectural company, much more so for one from the post-Soviet territory. There is a popular opinion that our architects are not exactly welcome guests in the western countries – they are generally perceived as falling short of the world standards, because “they need to learn how to build in their homeland in the first place”. However, there are a few recent projects of this kind: Sergey Tchoban is now building in Germany, and Meganom has designed an ultra-slim skyscraper for Manhattan, to name but two. These first “expansion steps” are interesting to examine: what is it that these architects have to offer to the western world? What makes it different from ours? How do they adapt to a different bureaucracy and a different legal environment?

In the case of Archimatika, we can assume that its competitive edge was the company’s philosophy that was eventually transformed into a method: all of the projects designed by this Kiev-based company are based on fundamentally developed concept of housing individuality that the authors are constantly perfecting.

Here is what their method is about. Before getting into the design stage, Archimatika performs a rather serious sociological survey: what kind of target audience will the future complex be designed for? What do these people want? Where do they work? What habits do they have? After which, the company comes up with floor plans that will suit specifically these people, then combine the apartments to form a house, then design the façade. This method has a lot in common with context-based architecture but what is taken into consideration here is not just the history and the surrounding buildings but, more importantly, the needs of the modern users. Proceeding not from some accidental flashy image but “from the inside”, Archimatika creates houses that really reflect the hero of our time. And it takes architecture to its logical conclusion because it is not just the outer shell that is creatively developed but also the environment around it.

Snail Apartments housing complex
Snail Apartments housing complex
Copyright: © Archimatika


Anyway, Manhattan. Its average resident is a slightly neurotic type, like Woody Allen, a little of James Bond, and a little bit of the heroine of Amy Schumer from “I Feel Pretty”. A lone wolf, a successful upbeat manager, he is always in a hurry, doesn’t cook at home, and generally is not into doing much housework – he will happily delegate it to hired assistants. He doesn’t like to have guests in but he keeps a dog. In addition, he is polite to the point of paranoia – if he accidentally bumps into you in the city crowd, he will immediately apologize profusely, although probably because of his desire to extinguish this accidental contact and forget about you forever. He needs to have a shelter – an island of peacefulness amidst the never-ending hassle, a quiet lagoon, a shell, a den, after all, where he can hide from the world outside and focus on himself and his problems, a place where he can make a pause. Yet, at the same time, you need to make sure that he won’t feel lonely in his cocoon. Is some respects, this description may seem like a stereotypical one for any megalopolis, but, when taken in its entirety, it’s a very Manhattan-specific portrait. 

Based on this “composite portrait”, the company developed 16 floor plan types for 30 apartments of the future complex. These 30 “modules” ranging from 27 to 170 square meters, like some volumetric Tetris pieces, come together to form the rectangular block of the entire building.

Snail Apartments housing complex
Snail Apartments housing complex
Copyright: © Archimatika


Snail Apartments housing complex. Apartment plans
Snail Apartments housing complex. Apartment plans
Copyright: © Archimatika


Snail Apartments housing complex. Section views
Snail Apartments housing complex. Section views
Copyright: © Archimatika


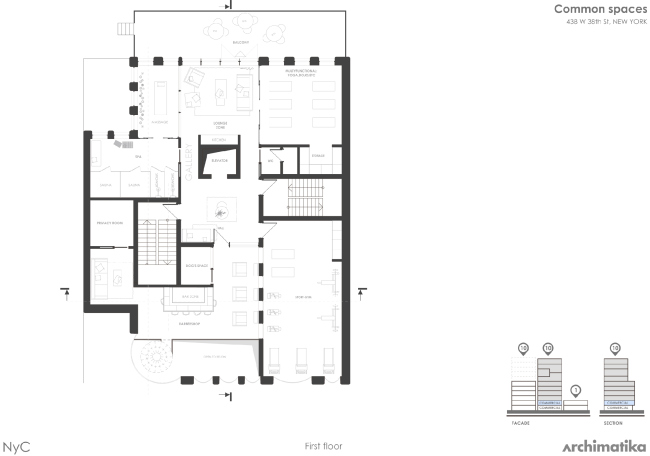
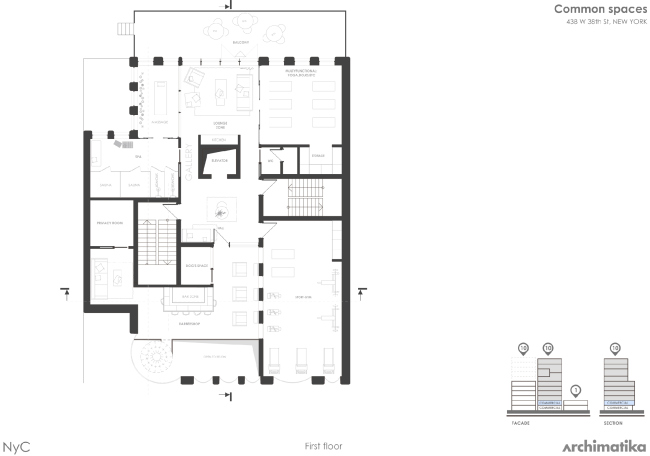
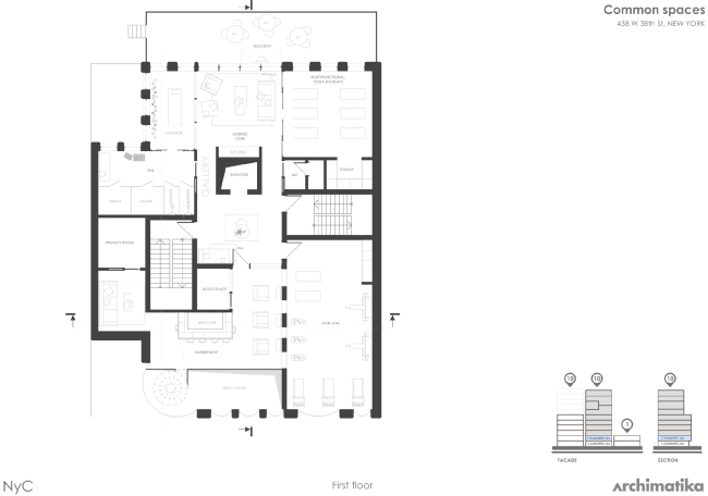
The first two floors are public ones; we’ll get to them later. The lower residential floors are occupied by small studios. These include a tiny kitchen with a front a little more than a meter long and two stove burners – to warm up your food, have a quick bite to eat, be on the go all day, and then crash down to sleep. The workplace is the perfect match for the kitchen: a laptop, a freelancer’s weapon of choice, doesn’t need much space. This planning hierarchy is reigned by the closet and the bed – they occupy most of the useful floor space. Generally, it all looks like a high-class hotel room. And, in order to make sure that one can comfortably spend a longer time inside the house under various circumstances, the architects provided for a large public-use kitchen, one per each floor, where one can cook a full-fledged supper, as well as a lounge, where you could visit with your friends or simply chat with your neighbor. Complemented with such an addition, the lower block starts looking, typology-wise, like a co-living hostel.

Snail Apartments housing complex. 2nd and 3rd floor
Snail Apartments housing complex. 2nd and 3rd floor
Copyright: © Archimatika


The next level are single-bedroom apartments, with a floor space of 40+ square meters. Here each functional zone gets clearer borders: the kitchen and the bedroom are separated, and there is even a small study. Further on – meaning, higher up – there are five apartments one and a half stories high: the “loft” contains a study that commands a city view; below, there is a bedroom and a kitchen. One of these apartments has access to a terrace: it appeared because of height difference, which is required by the local construction requirements.

Snail Apartments housing complex. Apartment plans Copyright: © Archimatika
Snail Apartments housing complex. Apartment plans
Copyright: © Archimatika
Snail Apartments housing complex. Section views Copyright: © Archimatika
Snail Apartments housing complex. Section views
Copyright: © Archimatika
Snail Apartments housing complex. Apartment plans Copyright: © Archimatika
Snail Apartments housing complex. Apartment plans
Copyright: © Archimatika
Snail Apartments housing complex. Section views Copyright: © Archimatika
Snail Apartments housing complex. Section views
Copyright: © Archimatika
Snail Apartments housing complex. The plans of the 4th and 5th floors Copyright: © Archimatika
Snail Apartments housing complex. The plans of the 4th and 5th floors
Copyright: © Archimatika


Snail Apartments housing complex
Snail Apartments housing complex
Copyright: © Archimatika


The topmost part is the penthouse, an indispensable element of any American house. There is a bathroom in each of the three bedrooms, as well as a dedicated study and a walk-in wardrobe. All the bulky seasonal stuff can be stowed away in the storage room – it is definitely too big to be called a closet. The dining room is situated in the bay window, from where you can see New York spread out before you.

Snail Apartments housing complex. Apartment plans
Snail Apartments housing complex. Apartment plans
Copyright: © Archimatika


Snail Apartments housing complex. The penthouse on the 10th floor
Snail Apartments housing complex. The penthouse on the 10th floor
Copyright: © Archimatika


The diverse floor plans make it possible to fill this house with people of different ages, family and social status, yet all with a similar life outlook. In theory, the neighbors will not be getting in each other’s way, yet they will soon meet each other, maybe even make friends, or will at least maintain more or less regular contacts. At any rate, this is one of the tasks that the architects set for themselves when they were designing this house. The solution to this task lies in the common-use areas.

The entrance group is marked by a giant – at least, by the scale of this building – brass marquee, upon which a sculptural family of snails is crawling up. The image has not been finally approved yet but it still expresses rather adequately the idea of perseverance: one immediately feels like saying: “Heck, this is my story, the story of us all!” – most of us are such snails, who slowly but surely move towards their goals. At the same time, these clams are large and sudden enough to be perceived as the author’s bright gesture; they have some Lewis Carroll quality about them – yet, on the other hand, this image of harmless “slow movers” is uniquely comforting in its own way, as if saying that here is your home, the “shell” or “shelter” for everyone who lives in it, you don’t really need to carry it around on your back, but you are more than welcome to come inside. The volumetric marquee boldly turns inside, “pulling in” everyone who comes in and creating an impression of you getting into the shell of the house – many of us, as children, probably examined a seashell, wondering how the calm gets in there, beyond the turn of its spiral, into the safely of its home. Oh, by the way, speaking of spirals – one is just within a hand’s reach: next to the entrance, the “spiral” theme (which is what many shells are essentially based upon) is supported by the staircase standing behind the transparent bay window – as if we are seeing a section view of a shell, like in a biology textbook, perceiving the shell as a whole and at the same time as the sum of its parts. The lobby, as opposed to the Manhattan tradition, is not very large, yet cozy – it also picks up the “shelter” narrative, however brittle and transparent, but still dependable. After all, a snail may mean either a screw, or a clam, so the image is developed still further, in unobtrusive bionic details, such as unexpectedly bulging windows – but first things first.

Snail Apartments housing complex
Snail Apartments housing complex
Copyright: © Archimatika


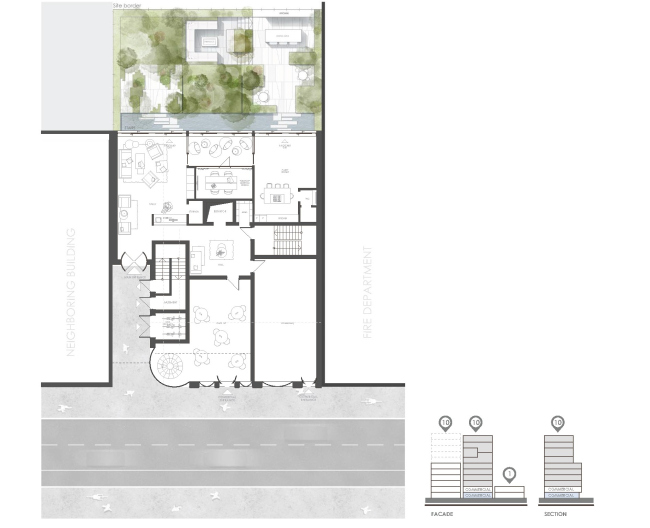
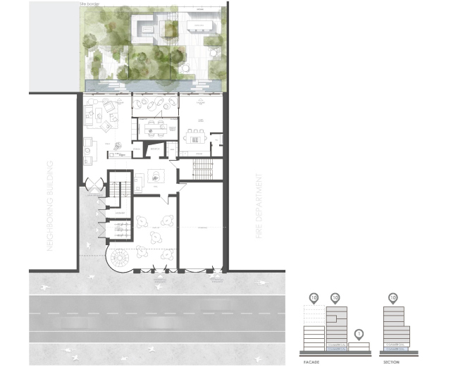
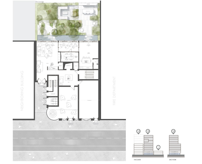
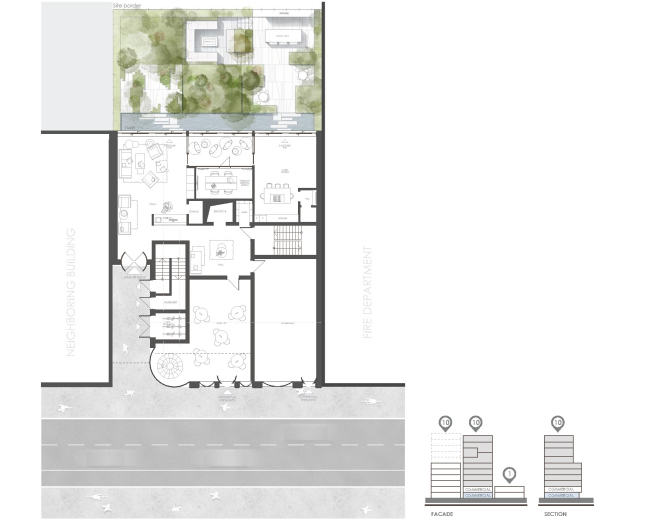
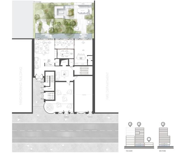
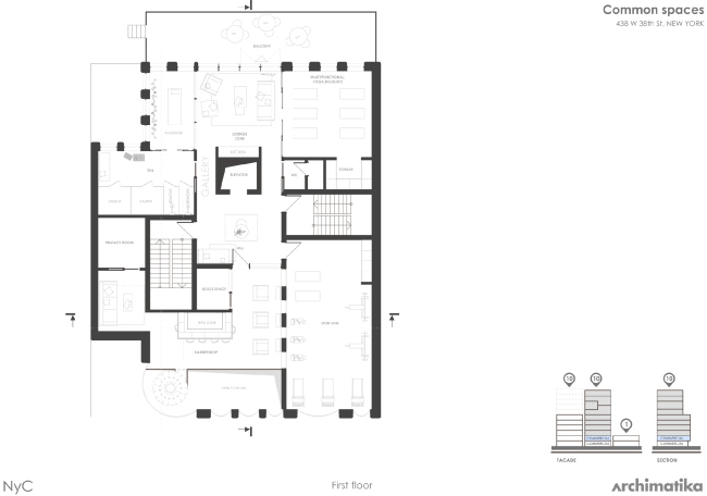
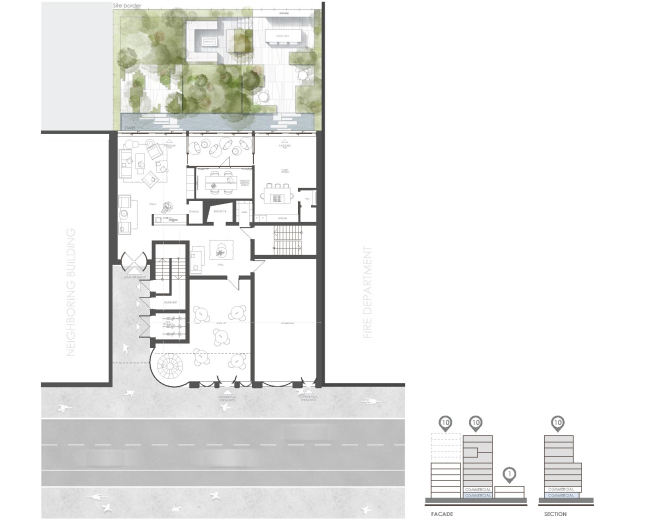
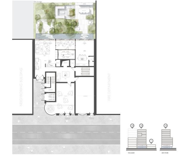
The first two floors are the “home” public space, to which you can come “with your slippers on”. The area will include a café, a cigar room, and a barbershop, which in the evenings will turn into a bar by a simple turnaround of the armchairs. Other recreational activities are represented by a workout gym, a yoga room, a massage room, and a sauna. There is also a bicycle parking, the already-mentioned joint-use kitchen, and a quiet room for an occasional important meeting. What is interesting is the fact that all of these zones can be joined together: there is a possibility to pull up the soundproof partitions and throw a grand old party here. And, of course, there is a special designated room for dogs, in which every pet can wait for its master and even, should such need arise, get a few kinds of service. Also, the residents and their guests will have at their disposal a little green yard, the ideas for the landscaping project of which, according to the long-standing tradition, Archimatika commissioned to the children studio Arch4Kids.

Snail Apartments housing complex. The public space
Snail Apartments housing complex. The public space
Copyright: © Archimatika


Snail Apartments housing complex. The first floor
Snail Apartments housing complex. The first floor
Copyright: © Archimatika


It is quite an unconventional way to write about an architectural project spending the first half of the article on the description of floor plans of the apartments and public areas. But – this is what Archimatika is all about. And, in spite of this, the “architecture” as such – if we are to speak about the outward appearance of the building – is still quite impressive.

The land site, upon which Snail Apartments is built, is essentially a lacuna between a fire station and a five-story housing project, both buildings being made of red brick with cast-iron staircases and cute little balconies – the classic New York, the way we know it from the Hollywood movies. Archimatika picks up this “loft” style, which is abundant here in other buildings of this area as well, and reinterprets it in new materials and new images. What remains unchanged, however, is the equality of the cornices: the height of the lower volume, which is standing out into the street, is aligned with the neighboring building, with the next six floors noticeably standing back into the depth of the land site, forming a large ledge with a terrace resting upon it in full accordance with the above-mentioned construction requirements.

Snail Apartments housing complex
Snail Apartments housing complex
Copyright: © Archimatika


Snail Apartments housing complex. The sixth floor
Snail Apartments housing complex. The sixth floor
Copyright: © Archimatika


The main detail is, of course, the bulging windows that look like the cylinders of pneumatic mail. The massive piers of the part of the building that meets the red construction line are a habitual way of creating an image of a shelter necessary to protect oneself from the enemy’s arrows or from the chilling winds. And the glass bubbles that are bulging out from the concrete framework look as if they are about to burst – this obviously has something to do with how fragile our spirits are, fatigued by the crazy pace of modern life. On the other hand, the opacity and the thickness of the bent glass gets one fantasizing about how the electronic waves may crash against this window that protects the residents against the information flow. The border turns out to be transparent yet palpable: one can keep on watching the world go by but it’s up to him whether or not to let it inside. And, if we are to envision the bulging windows and piers in a section view, we will get a pattern that looks like the cut of some spiral shell, consisting of a multitude of revolving partitions. The thing is that this elegant pattern is not twisted into a spiral but is “unrolled”, in a more human-friendly fashion, upon the façade that goes parallel to the street red line. The bulging windows create yet another association, the classical one – namely, that of arrays of arches of different width, which is a very popular architectural technique nowadays.

Snail Apartments housing complex
Snail Apartments housing complex
Copyright: © Archimatika


The cylindrical windows are not meant to be opened; for ventilation, the architects are planning to use a lateral profile with adjustable ventilation, developed by SCHUCO, as well as a system of artificial ventilation, rather common in the North America. The curvilinear windows are to be washed from the outside, much like modern glass façades. Thanks to its shape, the bent glass is a lot harder to break than the straight kind – the architects explain – but even if you do break it, the hardened glass, covered by protective film, will make it possible to avoid dangerously sharp fragments. 

The dark-red brick of the façades, traditional in New York, is replaced by chocolate-colored concrete with inclusions of marble of two colors. In combination with glass and brass, it pays homage to the traditions of Art Deco and the modern skyscrapers. 

All of the above obviously yields a house with a custom-designed appearance that puts one in the mind of Vienna experiments by Hans Hollain, at the same time reinterpreting the image of a traditional New York building in a modern lexicon, technologically more advanced – you can take as an example these curvilinear frameless bay windows that look really expensive, like some one-of-a-kind boutique thing. The flashy elements – the spiral staircase enclosed in a transparent cylinder, the golden surface of the wavy ribs of the “entrance to the home shell” underneath the marquee, the alternation of piers with rounded corners and semicircular windows – come together to form a nontrivial image, not devoid of some philosophical symbolism: it is about abidance, perseverance, love for small details, and an urge to display them on an artistic hyper-scale. The sculpture of the entrance grows into the house and defines its “genetic code”, finding rhythmic responses in its façades. It is a “sculpture” of a house, yet it is still akin to the neighboring “just” brick houses, combining designer technique and contextual tact, the bravery of modernist plastique of the sixties and seventies and the authors’ love for romantically reinterpreting everything they lay their hands on – everything that’s inside, outside, and everything that you can think about in this connection. What we ultimately get is a very curious kind of alloy, noticeable and integral at the same time, even though it does require a high-quality technical execution, which is, we assume, is quite possible in New York.

Snail Apartments housing complex
Snail Apartments housing complex
Copyright: © Archimatika


New York can be described by many words, one of them being “lonely”. There is a wonderful book written by Olivia Laing, which is named as much – The Lonely City – where she shares about various characters, from Edward Hopper to Andy Warhol, scrutinizing their feelings of being lost and lonely in this specific megalopolis – and she had plenty of material to go by. In many respects, Snail Apartments is resonant with this feeling; it addresses the topic of some brittleness and pathetic vulnerability, inherent even to the most successful people.

Currently, Archimatika, together with its clients and its partners, is doing the SWOT analysis – there is also a chance that the project will be revised.
Snail Apartments housing complex
Snail Apartments housing complex
Copyright: © Archimatika
Snail Apartments housing complex
Snail Apartments housing complex
Copyright: © Archimatika