|
A school for children with disabilities, a juvenile correctional facility, an orphanage… the students of Moscow Architectural Institute are creating a new image of modern education.
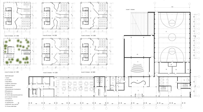
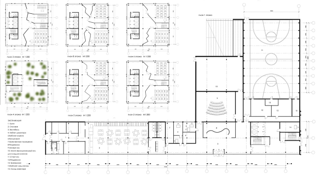
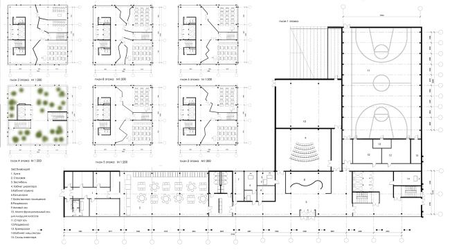
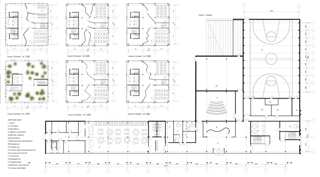
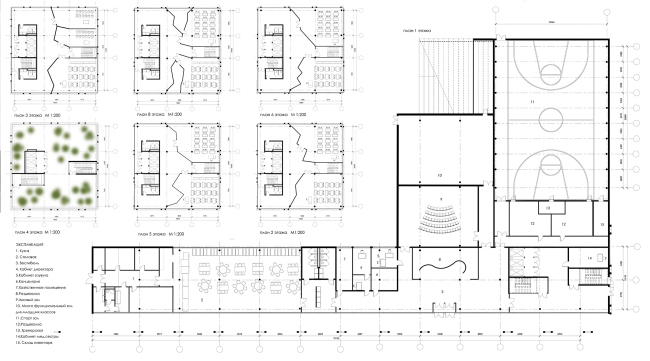
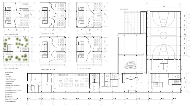
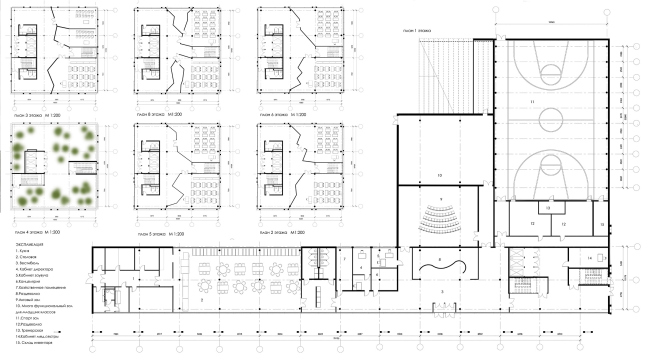
In the past academic year of 2018/2019, the students of the industrial architecture course of Moscow Architectural Institute, under the guidance of Vsevolod Medvedev, Mikhail Kanunnikov, and Elisaveta Medvedeva, worked on their projects of youth educational institutions. The teachers offered the students three project options to choose from: a school for children with disabilities, a juvenile correctional facility, and an orphanage.
Vsevolod Medvedev
The leader of the architectural company “Fourth Dimension”, assistant professor of the undustrial architecture department of Moscow Architectural Institute:
“We decided to develop projects of special schools. Each of these projects is interesting for its own peculiarities. For example, a juvenile correctional facility is a school with a strict division of groups of teenagers and a professional training center, as well as a guarded perimeter of the entire territory. An orphanage is a complex combination of school and home. And a school for children with disabilities is a complex of rigorous communication, social, and sanitary rules and regulations.
As the venues for design, we chose real land sites in Moscow and its nearest suburbs: derelict “young pioneer camps”, juvenile correctional facilities that are in need of reconstruction, unused school and orphanage buildings.
As for the lineup of the project, we traditionally decided to expand it in relation to the basic task given by institute. The main message of each of the projects is a search for the new image of the school and its planning structure. The students had to understand, feel, and find their own approach to solving the problem of interaction between special children and society, even if at the expense of being at odds with some of the construction norms. They are subject to change. The approach to education is always changing, the construction technologies and structures are constantly improved. And it makes perfect sense that schools must also change – starting from the school building and ending with the methods of teaching special children”.
Below, we are publishing the top 10 School Building Projects prepared by the students:
Anna Vorobyeva:
A school for children with autistic spectrum disorders
 A school for children with autistic spectrum disorders. Author: Anna Vorobyeva
The main idea of the project is creating a positive environment for successful education of autistic children. The main tool here is a special approach to forming and filling the inside space or the school.
The classrooms have a calm and secluded character, which makes it possible to focus as much as possible on the educational process. All the classrooms are different in their shape and size. The commonly used classrooms look more like traditional ones. The special laboratory-equipped classrooms and creative studios for music and drawing lessons have rounded or curvilinear profiles. Customized design solutions developed for each of the premises allow the children to easier get their bearings.
A school for children with autistic spectrum disorders. Author: Anna Vorobyeva
The classrooms are equipped with transformable furniture and pull-out partitions. This way, the space adjusts to the needs of a specific child. An important detail is the so-called “seclusion islands”, sensor rooms that are meant to give the child an opportunity to stay alone with himself or herself.
The classrooms are joined by the lounges – also transformable – with winter gardens, communication territories and “seclusion islands”.
A school for children with autistic spectrum disorders. Author: Anna Vorobyeva
The educational part is connected to the so-called “zone of urban adaptation”, a glass atrium, where all the games and entertaining activities are vertically placed. According to the author’s concept, this is a peculiar window to the outside world that at the same time keeps up the feeling of security.
The architectural image of the building is also highlighted by its transparency. Autistic children do not always make contacts with people easily. And it looks as though the building itself is trying to make up for it. Its laconic rectangular body is literally sliced with glass concave parabolic skylights. And only the façade surface of perforated panels makes some sort of borderline between the school and the city, allowing the children to feel safe and comfortable.
A school for children with autistic spectrum disorders. Author: Anna Vorobyeva
***
Yana Kurilova
Hidden School
Hidden School. Author: Yana Kurilova
This project of a forest school was developed for children with respiratory diseases. The land site is situated in a healthy environment – in a pine forest in the territory of Bykovo Township in the Moscow Region. Currently, there is an active educational orphanage there.
Hidden School. Author: Yana Kurilova
The author of the project tried to keep all the trees growing on the land site. Therefore, the body of the school building turned out to be rather prostrate, with a noticeable shift of some of its elements. The bulk of the building with a flat roof is raised one floor above the ground on slender legs that also look like the trunks of pine trees. The façades are made of glass and mirror panels. All this minimizes the architectural “intrusion” into the forest.
Hidden School. Author: Yana Kurilova
Inside, the building is divided into self-sufficient modules of classrooms and auditoriums. It was the shift of these modules that made it possible to keep the pine forest virtually intact. The classrooms are connected by a single lounge. It is turned into a large library with bookshelves running along the walls, secluded corners for reading and zones for communicating with friends.
The second floor is belted by a balcony. In warm weather, one can step outside on it to get a breath of fresh air. In addition, the classrooms are equipped with pull-out glass partitions. With their help, the classrooms are transformed into open-air summer premises. There are also three greenhouses installed on the level of the ground floor for winter walks.
Hidden School. Author: Yana Kurilova
***
Varya Nebolsina
A school for children with hearing, seeing, and speech disorders
Author: Varya Nebolsina
The main idea of the project consists in creating an integrated educational space for healthy children and children with hearing, seeing, and speech disorders. The joint education, according to the author of the project, is an important socialization experience, which will prepare the children for independent life in the future.
The school is situated in Moscow, on the Vosmogo Marta Street, next to a rehabilitation center for children with disabilities. According to the author of the project, such vicinity will allow the school to work in cooperation with the center.
Author: Varya Nebolsina
The school building is essentially an elongated volume covered by a gable roof. On the plan, it looks like an incomplete infinity sign. One of the “tails” of the sign hosts the elementary school, closer to the Vosmogo Marta Street. The other wing hosts a junior high school with an independent entrance from the yard. The wings of the school are joined by a common yard.
Author: Varya Nebolsina
Inside, there are no stairways. One can get from the first floor to the second by walking down a “ramp” corridor. Thanks to the gradual increase of the floor level, the loop-like two-story building reaches a four-story height in its highest point.
The zigzagged trajectory of the walls in the wing of the junior high school makes it easier for the children with eyesight disorders to find their bearings. For the students of the elementary school, on the other hand, the walls are rounded, and there are no corners at all.
Besides the school itself, the territory of the school hosts buildings on it, where after classes the children can also study painting, sculpture, robot science, dancing, and zoology. They can also study Braille or sign language here.
Author: Varya Nebolsina
***
Denis Omelchenko
The School of Performance for Problem Teenagers
Performance school. Author: Denis Omelchenko
The juvenile correctional facility is situated next to the “Rechnoi Vokzal” metro station. It is planned that the building will provide board, lodging, and education to 272 teenagers aged from 11 to 14.
Performance school. Author: Denis Omelchenko
The six-story building of the school looks like a fragment of a giant bridge, from which ten glass cubes of auditoriums are suspended. The cubes are hovering over the ground. According to the author, this is meant to inspire in the problem teenagers a feeling of being detached from the problems and bad thoughts. In the glass auditoriums, the kids will be able to meditate, master anger management, and do sports. For juvenile offenders, this is the best way to come to grips and overcome their hardships.
Performance school. Author: Denis Omelchenko
The “support of the bridge” contains the students’ dormitory. The entire sixth floor is occupied by classrooms for general education. On the first floor, there is an entrance zone and amphitheater, where various performances are staged. For the students, this is an opportunity to make a statement and express their identity.
Performance school. Author: Denis Omelchenko
***
Alena Sorokina
Orphanage school
Orphanage school. Author: Alena Sorokina
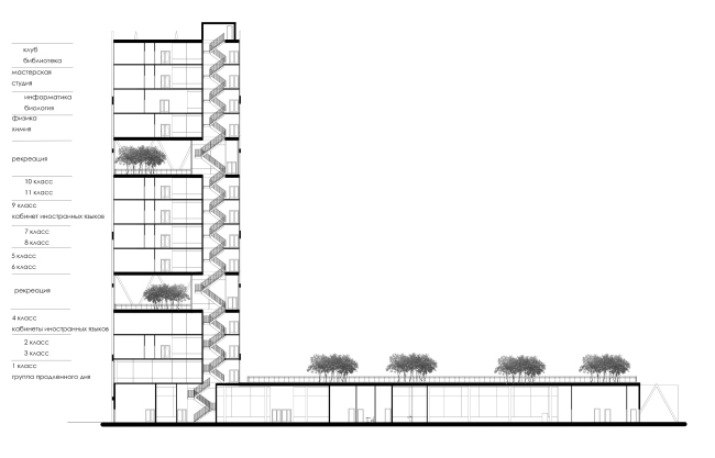
A vertical school for orphans is designed on the Povarskaya Street in Moscow. Its main bulk is broken into three large blocks towering one above another. The lower block contains the elementary school. The next one contains classrooms of the junior high. In the top part of the building, specialized classrooms are situated for chemistry, physics, biology, and computer science. This level also contains the teachers’ room and the management offices. One floor of each blocks contains two classrooms.
Orphanage school. Author: Alena Sorokina
The space of the floors between the glass blocks is occupied by winter gardens. This is a place where the children can spend their free time after the classes or during the breaks. The horizontal of the first floor, from which the multistory trunk of the school grows, contains the entrance group, the cafeteria, a gym, and an auditorium.
Orphanage school. Author: Alena Sorokina
The building itself motivates the children to learn and grow. Each year, going over to the next level of knowledge, the children get one floor higher, opening up new horizons.
Orphanage school. Author: Alena Sorokina
***
Sasha Terekhova
“Tree” Orphanage School
The Tree project – an orphanage school. Author: Sasha Terekhova
The educational orphanage is situated near the Moscow-area town of Istra. The author of the project depicted the plan of the school as a tree, where a complex root system is the school building, while the large oval fruits on the branches are residential “capsules”.
The Tree project – an orphanage school. Author: Sasha Terekhova
The shape of the four-story school building is complex and curvilinear, looking like mountain terrain. Each next floor is shifted in respect to the previous one. In the places where floors are shifted, open-air terraces are formed.
The elementary, the junior high, and the senior high schools occupy an independent tier each. Everywhere, the classrooms and auditoriums open up to a common lounge. The lounge areas provide all sorts of pastime scenarios – from entertaining to educational. There are also creative studios and trade shops.
The interiors of the school rooms are spacious and light. The panoramic windows with automatically controlled shutters fill the classrooms with ambient light.
The Tree project – an orphanage school. Author: Sasha Terekhova
The children’s homes are designed as oval capsules of different sizes and housing capacity. The younger students have larger capsules designed for 18-20 children with individual rooms for the teachers. For the junior high students, the capsules house 6-12 people. The most compact houses are designed for the high school students – they house from 2 to 4 people. This way the author of the project solves the problem of socializing the children who grow without parents.
The school and the housing block are separated by a large yard with sports fields and playgrounds.
The Tree project – an orphanage school. Author: Sasha Terekhova
***
Masha Cheltsova-Bebutova
An orphanage school in the North Tushino
Orphanage school. Author: Masha Cheltsova-Bebutova
The educational orphanage is situated in Moscow’s district of North Tushino. The land site lies on the border between the city and a large park. The location defined the main idea of the project to unite urban and rural space in one place.
Orphanage school. Author: Masha Cheltsova-Bebutova
The city side is faced by the façade of the school that constitutes the front of the street. This main façade is about 300 meters long. It recreates a fragment of the construction that consists of low-rise houses with stained glass windows standing next to one another. The silhouette is formed by the rooftops: the pitched gable ones, chamfered, flat, and even semicircular. The park is faced by small two or three-story houses. They create an atmosphere of peaceful rural life.
Orphanage school. Author: Masha Cheltsova-Bebutova
At school, the children study in two shifts, do research work in the laboratories, and do extracurricular activities in art class, finding like-minded kids of the same age, thus making up for the lack of communication with the family.
The residential and the academic parts are united by a common yard. The yard is crossed by a man-made brook, over which a few pedestrian bridges are thrown. The brook is a conditional border between town and country. The “city-side” bank of the brook is occupied by sports fields and playgrounds, while the green rural bank is created for rural pastime activities.
Orphanage school. Author: Masha Cheltsova-Bebutova
***
Dima Chudaev
Boarding school for juvenile delinquents
Boarding school for juvenile delinquents. Author: Dima Chudaev
The juvenile correctional facility for 288 delinquents is situated at the western suburb of the South Butovo, in the stead of the existing ravine. The author of the project proposes to fill this ravine with water. Very much like a moat, it will encircle the five-story school building. It is planned that the connection with the city will be kept up at the expense of four drives that will be coming together in the center of the site.
Boarding school for juvenile delinquents. Author: Dima Chudaev
According to the author of the project, the architectural image was born “from associations with barb and proneness to conflict of delinquent children”. Therefore, the elongated rectangular volume is literally sliced with vertical bristling plates of rusty metal. At the same time, there are panoramic windows installed in the classrooms and children’s residential cells. And this is also an attempt to overcome the conflict with the outside world.
The boys and girls live and study separately. Their residential and training zones are placed at different floors. The third floor is occupied by 18 residential blocks for boys. In each block, there are two bunk spaces, four students sharing each one. The classrooms for boys are situated one floor below. Similarly, only for girls, the fourth residential level is designed. The girls’ classrooms are situated on the top fifth floor.
The only tier that is common for all the students is the ground floor that includes a hall, a canteen, an auditorium, a gym, and meeting rooms for parents. The promenade area is organized on the usable roof. The lack of space around the building is made up for by the cold walking galleries on each of the residential levels.
Boarding school for juvenile delinquents. Author: Dima Chudaev
An important part of the project is classrooms for creative-minded children and teenagers. The unheated galleries have special spaces for graffiti in them. There is also a small expo center on the territory of the facility, where the children’s creations will be exhibited on a permanent basis. According to the author’s idea, it art that will break the barrier between the children and society.
Boarding school for juvenile delinquents. Author: Dima Chudaev
***
Evgeny Chumachenko
School for children with cerebral palsy
Boarding school for juvenile delinquents. Author: Dima Chudaev
The school for children with cerebral palsy will be built on the Vosmogo Marta Street in Moscow. The building will function not just as a school but also as a rehabilitation center, where the children will live on a permanent basis during the academic year and get all the treatment they need.
School for children with cerebral palsy. Author: Evganiy Chumachenko
The three-story volume with slanted stained glass windows is divided into three main sectors: the academic, the residential, and the medical one. The smoothly outlined buildings are connected by a heated glass gallery.
The block on the first floor is designed for the studies of the younger ones. For them, the author of the project provided an independent exit into the yard and playgrounds. Also, the first floor contains specialized classrooms for high school students. The children’s multifunctional hall is placed in a single outdoor volume but it can also be accessed from the building on the level of the second floor. The classrooms of the junior high school and the auditorium occupy almost the entire second floor. The third floor includes a library and a gym. The central nucleus of the school is a large atrium with a few lounges.
School for children with cerebral palsy. Author: Evganiy Chumachenko
The residential sector contains 8 rooms per floor. The children live in groups of 4 (2 children and two monitors). In addition, there is a small movie theater and a cafeteria. The housing block is linked to the medical with a heated overpass.
For permanent and prompt medical attention, in all the parts of the school, so-called “relaxation capsules” are created – places where a child will not only get medical help but also will be able to be alone with himself if he or she chooses to. There are also lots of game lounges and playgrounds inside the building.
School for children with cerebral palsy. Author: Evganiy Chumachenko
***
Anna Shikova
An orphanage school
Orphanage school. Author: Anna Shikova
The orphanage is situated in the district of Metrogorodok, next to the enormous Losiny Ostrov (“Elk Island”) Park. The complex consists of three parts: the academic block and residential rooms for the little children, a junior high school and homes for teenagers, and a youth center. A common yard and a walking zone serve as a link to the Losiny Ostrov.
Orphanage school. Author: Anna Shikova
In her project, Anna Shishkova is trying to solve the problem of the “guest complex” that orphans develop, devoid of their own homes. The new orphanage is not only meant to become a real home for the students but also an attraction center for students of other schools from other neighborhoods. The main centers of attraction are sports fields that are there on the territory of the orphanage, a rope park, and the youth center.
The residential space is organized in such a way that the children can easily invite guests in. For this, in their rooms, designed for four people each one, there are cozy living rooms.
Orphanage school. Author: Anna Shikova
The school also has transformable classrooms and multifunctional auditoriums. The heated underground corridor connects the senior high school with the youth center. Also, in this corridor, there are studies for secluded music practices.
Orphanage school. Author: Anna Shikova
***
|