Published on Archi.ru (https://archi.ru)

29.04.2019

​A Habitable Galaxy

Elena Petukhova
Studio:
APEX Project Bureau
Ostozhenka Bureau
Creative Union ‘Reserve’

APEX has headed the project of a large-scale residential complex in the north of Moscow, in which modern housing construction methods are combined with thought-out planning solutions, a recognizable image and an original landscaping concept.

ILOVE housing complex. View from the Godovikova Street
ILOVE housing complex. View from the Godovikova Street
Copyright © APEX Project Bureau


The Team Approach

One of the modern popular ways to diversify the construction within the framework of a large-scale project is the method of team work when several architectural companies are invited to design individual buildings. The developers try to create a really hard-packed, yet at the same time comfortable, urban environment with a highly developed recreational and social infrastructure, landscaping and thought-out public spaces.

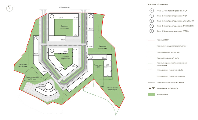
All of these principles are implemented and taken to a new level in the new housing project called “ILOVE” from the KORTOS Group. The design work is done by four leading architectural firms that specialize in housing and multifunctional construction. APEX is the chief designer and project developer of Buildings 1 and 2. The company AECOM developed the planning concept and the design code of the complex, and is responsible for the project of Building 5. Ostozhenka and Reserve Union are working on Buildings 3 and 4 respectively.

ILOVE housing complex. Birds-eye view. Arrangement of the buildings
ILOVE housing complex. Birds-eye view. Arrangement of the buildings
Copyright © APEX Project Bureau


A Universe from Nothing

The territory of the future housing complex ILOVE is essentially 7 hectares of a former industrial park. The facilities of the meat processing factory that used to occupy it were of no historical or architectural value, there was no need to preserve them, and the work was done “from scratch”, which, of course, simplified things a little but left the architects no opportunity to use the genius loci for the subject matter of the future complex.

ILOVE housing complex. Territory of the former meat processing factory
ILOVE housing complex. Territory of the former meat processing factory
Copyright © APEX Project Bureau


Nowadays, the architects endow nearly every architectural project with an imagery solution that has to do more with marketing strategy than with project documents. The architects really enjoy being able to become involved in the process of inventing a “legend”, coming up with new romantic names and design techniques that open up the associations that the project is meant to evoke, building up in their minds not only volumetric and planning parameters of the future buildings but also modeling the future living scenarios for the future residents. “We believe that this is an exciting thing to do, and it helps a lot in our work – says the president of APEX Anton Bondarenko – Because it stimulates our imagination and inspires our people to search for new and unconventional solutions. I suggest to my boys that they come up with a name for the complex, to draw a logo and a brand book, whose elements can be used in designing the façades, doing the landscaping part, as well as the graphic presentation of the concept. This helps us to get our idea across to the client, and get him involved in modeling a new world”.

ILOVE housing complex. Location plan
ILOVE housing complex. Location plan
Copyright © APEX Project Bureau


In the case of ILOVE, the starting point for the brand legend was found in the history of this area, where many streets have names related to space exploration. The project was interpreted as some kind of a space galaxy where all the volumetric elements – the façade design, the landscaping concept, and the lighting – are all based on stellar associations.

A Maximum of Everything

The configuration of the land site does look like a galaxy spiral with a “protuberance”. Capital Group, together with the partner of the project KORTOS, for the planning part, in order to get the required output of square meters, invited AECOM that has an extensive experience in devising land development concepts.

ILOVE housing complex. Master plan
ILOVE housing complex. Master plan
Copyright © APEX Project Bureau


Singling out the main trapeze-shaped part of the territory, the AECOM architects, who developed the master plan, ran through it a boulevard that on the plan looked like a pentagon pointing southwest with its sharpest angle. This is the main promenade and the main thoroughfare of this area. In the center, there is a pedestrian zone and a green public square. The boulevard is surrounded by sectional houses that form open squares and brackets; on the plan, they look very much like the famous “book” houses of the Novy Arbat. Underneath the entire complex, there is an underground parking garage for 1.5 cars. Thanks to the thought-out configuration of the plans and the though-out mutual arrangement of the buildings, each of the houses got a green yard. The remaining peripheral “protuberances” were turned into green areas and occupied by a school building for 300 students. The target audience of the complex is young families with children.

ILOVE housing complex. Fragment of the central “Sun” Square
ILOVE housing complex. Fragment of the central “Sun” Square
Copyright © APEX Project Bureau


Most of the sections are ten stories high, some of them soaring upwards as 35-story towers – a hybrid high-rise / city block construction technique popular nowadays, which helps to keep up a human-friendly scale, at the same getting the required amount of useful floor space. The high-rise parts are spaced out – the distance between the towers is no less than 200 meters, which makes it possible to keep up optimum insolation and views from the windows.

ILOVE housing complex
ILOVE housing complex
Copyright © APEX Project Bureau


Different Visions, One Approach

The development of the project on the basis of the master plan prepared by AECOM was conducted in collaboration with all of the architectural companies involved in the project. The chief designer APEX was preparing the initial permit documentation, coordinated the extremely complex operation of the whole team and brought together all of the proposals tying them in with the stipulated economic requirements and construction norms.

The chief architect of the project from the side of APEX, Irina Volenko, comments on the challenges and benefits of team work: “Collaborative work of several independent project organizations is significantly different from a situation when you do a project singlehandedly. Each member of the team has an opinion based on their experience and you have to find a way together to implement these opinions and approaches in the project. In this specific case, considering the size of the complex and the dramatic design solutions proposed by the team members, we preferred to keep the individuality of the planning and façade design solution for each of the buildings. I think that this practice is so efficient that it’s worth using it even when the project is led by a single organization. You can distribute the buildings among project groups and give them an opportunity to search for their own creative solution within the framework of a single method”.

One of the consequences of the team work was widening of the range of apartment types: they differ not only by the number of rooms but also by the planning methodology and mental tradition. A two-room or a three-room apartment can be planned in many different ways. There is a Russian tradition rooted back in the Soviet times, there is a European and even an American method. What makes them different is the way they address dozens of questions: how an apartment of this or that class should be organized, do you need a large anteroom or not, how must the kitchen be positioned, what is the difference between the square footage of the living room and the bedroom, how many bathrooms do you need and so on. Peculiarities of the design approach and the experience of each of the architectural companies got reflected in the planning solutions of the apartments in different buildings. Somebody placed their bets on functionality, somebody on the square footage, somebody gave priority to shared rooms, somebody to private ones. The architects gave to the future buyers an opportunity to choose the future plans of the apartments that matches best of all their lifestyles.

Each team proposed its own version of designing the volumetric composition consisting of 10-story multi-section part and a 35-story high-rise. Some designers interpreted it as a compound, yet integral, form with unified design of all of the façades. Some, like Ostozhenka, for example, highlighted the double-part composition of the complex and designed the low-rise and high-rise parts in two different ways.

Pillars of Creation

APEX is also designing two buildings on the northeast border of the site. These two will be built first: Building 1 is essentially an open square, whose northeast façade faces the Godovikova Street. Building 2, separated from Building 1 by a boulevard, is essentially a slab that consists of four sections. Both buildings consist of a main part – a 10-story podium – and a few high-rise parts: two towers in Building 1 and one tower in Building 2.

ILOVE housing complex
ILOVE housing complex
Copyright © APEX Project Bureau


ILOVE housing complex. Development drawing of the facades as seen from the Godovikova Street
ILOVE housing complex. Development drawing of the facades as seen from the Godovikova Street
Copyright © APEX Project Bureau


ILOVE housing complex. Facade fragment
ILOVE housing complex. Facade fragment
Copyright © APEX Project Bureau


Developing the façade concept, the APEX architects analyzed all possible options – from fracturing the building visually into a low-rise and a high-rise part and making a single façade – and ultimately opted for the latter. The role of the massive podium for the white-gray mount of buildings is played by a stylized stylobate that unites two bottom floors – the public ground floor (with an enlarged height of 5.4 meters), and a residential one. The stylobate is slightly sunken in in relation to the main façade and coated with dark gray exposed concrete. Similar design technique is applied to the top floors of the 10-story buildings that got – as a bonus – an open air terrace running along the entire perimeter. The top floors of the high-rise sections are only accentuated by a slender cornice with a ledge.

ILOVE housing complex. Facade fragment
ILOVE housing complex. Facade fragment
Copyright © APEX Project Bureau


ILOVE housing complex. View of the terrace along the perimeter of the top floor of Building 1
ILOVE housing complex. View of the terrace along the perimeter of the top floor of Building 1
Copyright © APEX Project Bureau


ILOVE housing complex. The image of the “Pillars of Creation” nebula and the method of getting teh pattern
ILOVE housing complex. The image of the “Pillars of Creation” nebula and the method of getting teh pattern
Copyright © APEX Project Bureau


The façades of both buildings form an intricate and seemingly random system created by window apertures of alternating width and height, dull glazing of tinted glass and light gray piers of exposed concrete. The pattern is based on the space-age imagery. One of the authors, an astronomy expert, proposed to use the image of Pillars of Creation, a photograph taken by the Hubble Space Telescope of elephant trunks of interstellar gas and dust in the Eagle Nebula. The architects designed a pixel pattern and applied it to the façade in 3-D Max. Then the APEX software developers wrote a plugin for Revit thar interpolated the image into the system of apertures and piers, based on the location and geometry of each of the sections.

ILOVE housing complex. Facade 1/36 – 1/1
ILOVE housing complex. Facade 1/36 – 1/1
Copyright © APEX Project Bureau


ILOVE housing complex
ILOVE housing complex
Copyright © APEX Project Bureau


ILOVE housing complex. The basic landscaping scheme.
ILOVE housing complex. The basic landscaping scheme.
Copyright © APEX Project Bureau


This play with the sizes of windows does not affect either the comfort or the class of the apartments. All of the windows are “down to the floor”, the width of the narrowest aperture being 1.80 meters, the width of the room being 3.1 meters, the height of the floor 3.3 meters. The visual sensation of narrow apertures, almost “portholes”, appears because of the fact that the windows of neighboring floors are grouped height-wise. The towers display the following sequence from the bottom to the top: one floor, two pairs of floors, three groups of three floors, then four floors, and then three groups of five floors at the very top. In order to arrange the types and sizes of the windows, the architects introduced a basic openable window sections that is always located next to the pier that holds the common vertical in the overall pattern.

The Cosmic Gardens

Most of the vehicle-free territory of the complex will be turned into a park, where natural green zones will be combined with landscaped areas, and pedestrian and bicycle trails. The authors of the landscaping concept – the British Gillespies and APEX – also based themselves on the cosmic set of associations, developing the themes stipulated in the architecture of the housing project. The central boulevard got a name of “Poyas Asteroidov” (“Asteroid Belt”) and a matching design, the central area becoming “Sun”, the gravity center of the entire area, the neighboring pedestrian area becoming “Milky Way”. The five buildings are named: 1 – Earth, 2 – Jupiter, 3 – Mats, 4 – Mercury, and 5 – Saturn.

ILOVE housing complex
ILOVE housing complex
Copyright © APEX Project Bureau


ILOVE housing complex. Fragment of the public space “Milky Way”
ILOVE housing complex. Fragment of the public space “Milky Way”
Copyright © APEX Project Bureau


Each of the yards and landscaped areas were designed individually, with consideration for the degree of insolation, proximity to public and residential buildings, intended function and target audience. In the “Mars” zone, the most shaded area of the complex, the architects actively used bright shades of red. “Milky Way” is designed as dispersed environment, in which paved sections are mingled with green fragments. And the “Asteroid Belt” boulevard is divided into parallel pedestrian, bicycle, and automobile lanes, separated by parkways and ecoparking spots. For each of the zones, the architects together with landscape designers and dendrologists came up with a selection of plants that will be effective both in winter and in summer.

ILOVE housing complex. Winter view of landscaping elements
ILOVE housing complex. Winter view of landscaping elements
Copyright © APEX Project Bureau




The lighting concept was also individually developed – the lighting not only performs a utilitarian function but it also is responsible for the creation of a cosmic image at nights. Some of the lights are designed to function very much like stage effects: in the “Earth” zone, for example, an illusion of moonlit ocean surface is created, from which green islands spring up.



***

Searching for the right imagery and detailed elaboration of the “legend” of every project is not just a tribute to fashion but the architects’ urge to deliver an integrated harmonious product and find in the harsh conditions of modern life and rather rigid construction parameters some planning, architectural and design techniques to create a living environment that will be as comfortable as possible and will be enough to make the future residents of “Habitable Galaxy” happy.