Published on Archi.ru (https://archi.ru)

13.02.2019

​A Zeppelin Designed by Roman Leonidov

Lara Kopylova
Architect:
Roman Leonidov
Studio:
Studio of Roman Leonidov

The architect Roman Leonidov gave a country house that he designed the name of ZEPPELIN in honor of the zeppelins that are to be frequently seen in drawings by the famous Ivan Leonidov, Roman’s namesake. The techno romance also prompted the architectural solution.

The romance of the zeppelins that back in the day would soar to a height of several thousand meters and made the first flights around the world as early as in the 1920’s (it was Count Zeppelin who was the first to do it, in fact) is surely to be felt in this house. First, the arc-shaped reverse-tilt wall of the living room (the middle atrium) brings direct associations with the bottom part of the zeppelin, and even the glazing pattern is like that of a zeppelin’s gondola. Second, the house has in it so many decks (one cannot bring himself to call them terraces), springboards, spiral staircases, masts, and other “captain’s bridges”, that playing ship/zeppelin/space rocket is surely implied. One can also make believe that this sophisticated machine is part of a circular starship because from the outline of the master plan one can plainly see that it is actually a sector of a circle.

The ZEPPELIN residence © Studio of Roman Leonidov
The ZEPPELIN residence © Studio of Roman Leonidov


The ZEPPELIN residence © Studio of Roman Leonidov
The ZEPPELIN residence © Studio of Roman Leonidov


The ZEPPELIN residence © Studio of Roman Leonidov
The ZEPPELIN residence © Studio of Roman Leonidov


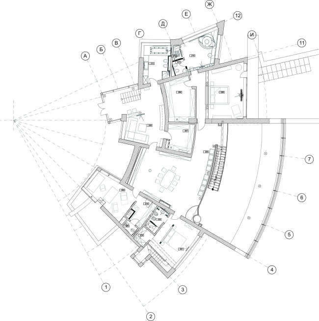
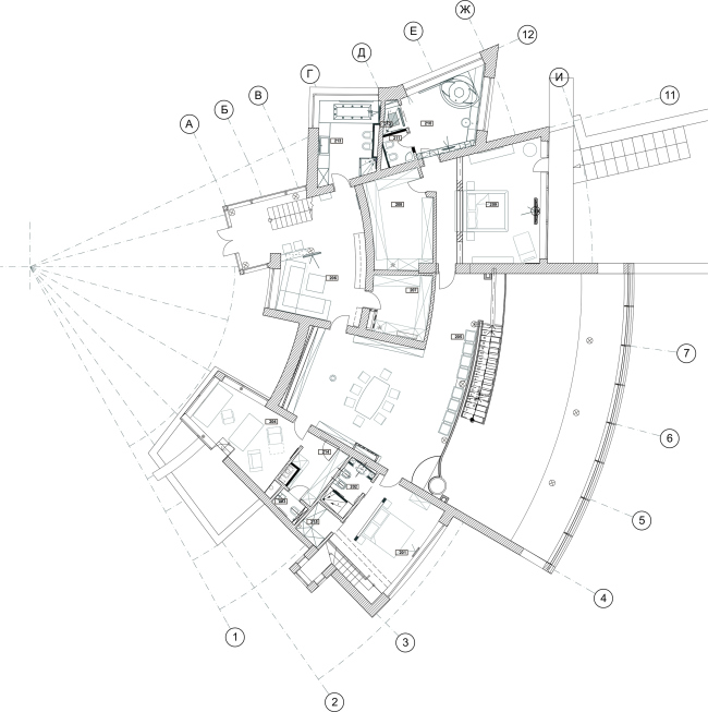
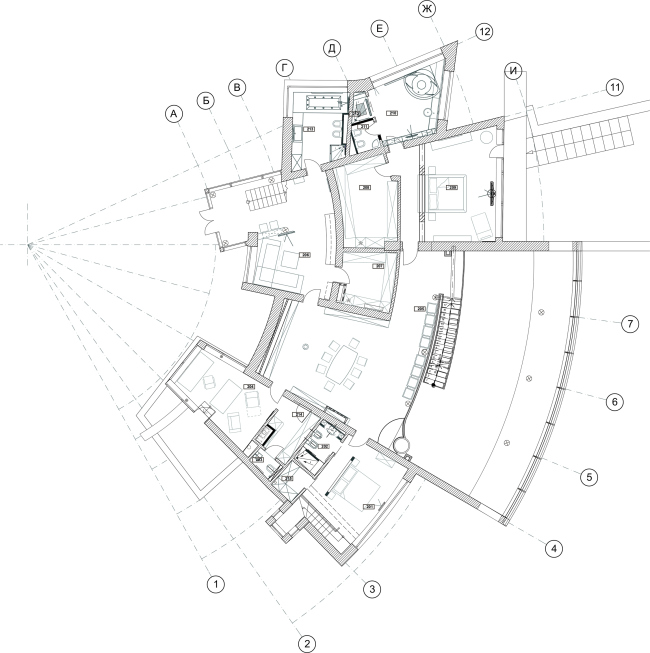
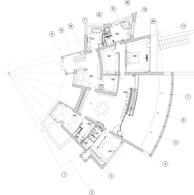
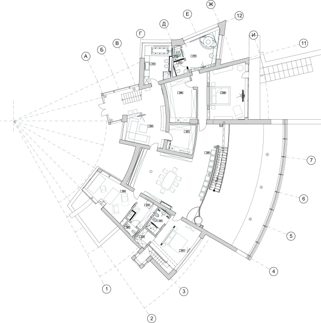
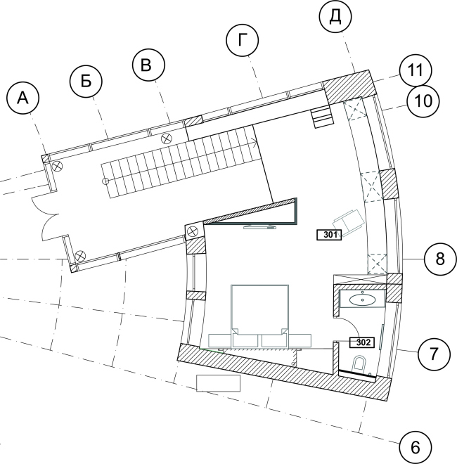
The ZEPPELIN residence. Plan of the 1st floor © Studio of Roman Leonidov
The ZEPPELIN residence. Plan of the 1st floor © Studio of Roman Leonidov


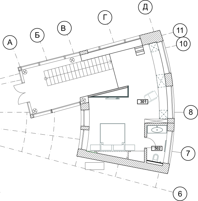
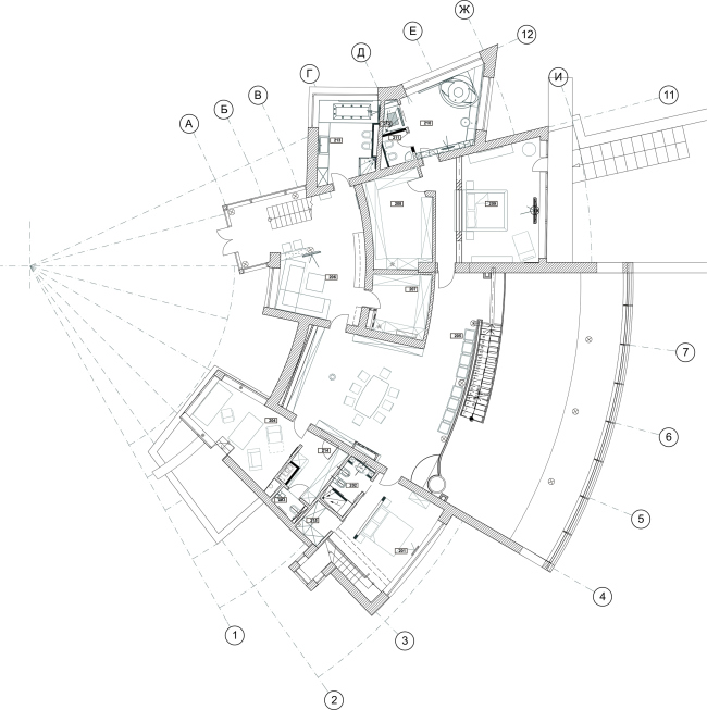
The ZEPPELIN residence. Plan of the 2nd floor © Studio of Roman Leonidov
The ZEPPELIN residence. Plan of the 2nd floor © Studio of Roman Leonidov


The ZEPPELIN residence. Plan of the 2rd floor © Studio of Roman Leonidov
The ZEPPELIN residence. Plan of the 2rd floor © Studio of Roman Leonidov


In reality, though, everything is slightly more prosaic. The sophisticated master plan and the compound volume of the house are explained by the necessity to squeeze it into a small land plot of an irregular shape. It was also necessary to fence off from the neighbors, and the architect, together with the client, made a nontrivial solution: the façade parts – the glass two-story atrium with the living room and the glass swimming pool – were to be turned in the direction of the driveway, while the more closed premises were to be turned to the neighbors.

On the first floor, there is a living room (102 square meters), a dining room (43 square meters), a swimming pool (172 square meters), and a kitchen (52 square meters), which, put together, forms a light and comfortable space for guest receptions. In the other part of the house, there are two guest rooms with a bathroom and a study, also very spacious (40 square meters). On the second floor, there is a masters’ bedroom with an exit to the terrace and a descent into the swimming pool, and two guest bedrooms. Also, there is a large library here – the passeist typology that is only to be seen in the houses of humanities-minded people.

The ZEPPELIN residence © Studio of Roman Leonidov
The ZEPPELIN residence © Studio of Roman Leonidov


The ZEPPELIN residence © Studio of Roman Leonidov
The ZEPPELIN residence © Studio of Roman Leonidov


The ZEPPELIN residence © Studio of Roman Leonidov
The ZEPPELIN residence © Studio of Roman Leonidov


For the owners’ son, the architect designed something like a captain’s bridge on the second floor, a glass apartment that looks as if it were hovering over the ground – because a zeppelin must have a captain! If we are to step aside from the zeppelin romance, this is a transparent belvedere executed in a high-tech style, and a two-storied one, too, the height of the second and third floors. The open glass part serves as the children’s room, the bedroom and the bathroom being hidden inside. The third floor provides access to the roof.

When the house was being designed, the boy was thirteen years old. Originally, ZEPPELIN was designed for two generations of the family, but, because it was in construction for about ten years, over this time signs of the third generation appeared, and now Roman Leonidov was commissioned with an expansion project – the designing process is about to begin.

The ZEPPELIN residence © Studio of Roman Leonidov
The ZEPPELIN residence © Studio of Roman Leonidov


The ZEPPELIN residence © Studio of Roman Leonidov
The ZEPPELIN residence © Studio of Roman Leonidov


The ZEPPELIN residence © Studio of Roman Leonidov
The ZEPPELIN residence © Studio of Roman Leonidov


The house is so compound and sophisticated that each of the façades is slightly unpredictable, like a sharp twist of the narrative. The image of the house is all about the ultimate plastique: lots of levels, intersected volumes, cantilevered structures resting on metallic supports create an impression of different flows of energy, mysterious powers at work, and the tension of the steel parts of this mechanism.

The ZEPPELIN residence. The facades © Studio of Roman Leonidov
The ZEPPELIN residence. The facades © Studio of Roman Leonidov


The ZEPPELIN residence © Studio of Roman Leonidov
The ZEPPELIN residence © Studio of Roman Leonidov


The ZEPPELIN residence © Studio of Roman Leonidov
The ZEPPELIN residence © Studio of Roman Leonidov


The ZEPPELIN residence © Studio of Roman Leonidov
The ZEPPELIN residence © Studio of Roman Leonidov


The ZEPPELIN residence © Studio of Roman Leonidov
The ZEPPELIN residence © Studio of Roman Leonidov


An all-covering horizontal mesh decorated with light-colored stone gathers the complex shapes of the house to form a single whole. The technology-inspired “ship” or “zeppelin” image is also “asking” for aluminum sheets but the clients opted for a sturdier solution, stone, which created a slight contradiction between the immanent “eternity” and the retrospective nature of the plaster as stone and the agility of the hi-tech forms. This is how the architects of the Russian avant-garde once imitated the then-innovative concrete structures with traditional bricks – the traditional material would make believe it was innovative. Here the stone makes believe it is aluminum, and, truth be told, it looks quite realistic. Probably, this is doing this architecture a lot of good because it carries a promise of graceful aging. The house becomes something like a monument to the zeppelin, more eternal and boasting a higher status than the technological invention itself.

The ZEPPELIN residence © Studio of Roman Leonidov
The ZEPPELIN residence © Studio of Roman Leonidov


The ZEPPELIN residence © Studio of Roman Leonidov
The ZEPPELIN residence © Studio of Roman Leonidov