Published on Archi.ru (https://archi.ru)

26.12.2018

​Fire and Ice: Architecture of Contradictions

Julia Tarabarina
Architect:
Levon Ayrapetov
Valeria Preobrazhenskaya
Studio:
TOTEMENT/PAPER

The Hotel complex designed by TOTEMENT / PAPER for Kamchatka, reinterprets the nature and the culture of the peninsula, at the same time challenging the cataclysms of the earthquake endangered zone, using the modern technologies to create pure, open, and beautiful architecture.

Petropavlovsk-Kamchatsky – the main and basically the only center of the peninsula, whose remoteness has long since become proverbial, and whose nature attracts fans of exotic tourism from Europe and Asia – hitherto did not have a modern hotel either for tourists or for business partners of the Kamchatka companies, or even for high-ranking statesmen. Such a hotel – memorable architecture, up-to-date services, two restaurants (one of them commanding beautiful views), 4 stars – is now being built by the project of TOTEMENT on the bank of the Kultuchnoe Lake in the center of the city.

The hotel got a land site of an irregular shape, stretching along the bank of the lake, a road, and – on the opposite side – a steep slope that as much as cancelled all the views from the north windows. On top of the hill, there is a couple of standard five-story houses, rather old and shabby. The south side, on the other hand, commands a view of the hills and the lake, landscaping a fragment of whose bank is also a part of the hotel project. The place is complex but not without some certain advantages. In addition to the hotel, it was planned from the very start to place here an office center, a fitness-and-spa center, and a conference hall, whose capacity in the course of work grew up to an impressive figure of 450 seats.

Kamchatka Hotel © TOTEMENT/PAPER
Kamchatka Hotel © TOTEMENT/PAPER


Kamchatka Hotel. Location plan  © TOTEMENT/PAPER
Kamchatka Hotel. Location plan © TOTEMENT/PAPER


The complexity of the land site and the wide range of functions became the reason for a long search for the right concept: the architects kept moving their volumes around, coming up with various shapes and floor plans. However, it must be recognized that the necessity to pack so many functions on such a small site lying on a slope of the mountain into a volumetric figure so much like origami is a task that can best be handled by TOTEMENT / PAPER with their passion for challenging goals that prompt contrastive, sophisticated but thought-out and self-consistent solutions, just as with their love for tectonic solid geometry and the culture of the Far East. These challenges became for them a chance for a detailed research and painstaking work.



When it turned out that the land site lying to the west of the main one – provided it was cleared from engineering lines – could also be added to the main “trapeze” of the construction blueprint, an opposition of two towers formed: a 15-story hotel tower in the eastern part, and an 11-story office tower in the eastern part. This opposition at once took on an image character: the hotel tower, streamlined and charcoal black, with a glittering drop of the backlit red marquee on top – a veritable volcano with a cloud of smoke on top of it just before the beginning of the eruption. The office tower is made of glass, with facets of broad planes and prominent corners as opposed to the rounded corners of the hotel. The glass is covered with a wealth of white triangles meant to mask the bands of the intermediate floors and partially to protect it from the direct sunlight but first of all to make the volume more integral and more “icy” – a semblance of an icy mountain slightly melted on the corner which is turned southeast in the direction of the Petrovskaya Mount, like a spot of pure glass.

Kamchatka Hotel. Master plan  © TOTEMENT/PAPER
Kamchatka Hotel. Master plan © TOTEMENT/PAPER


Kamchatka Hotel. The sketch of the idea © TOTEMENT/PAPER
Kamchatka Hotel. The sketch of the idea © TOTEMENT/PAPER


Kamchatka Hotel. Axonometric drawing © TOTEMENT/PAPER
Kamchatka Hotel. Axonometric drawing © TOTEMENT/PAPER


Kamchatka Hotel © TOTEMENT/PAPER
Kamchatka Hotel © TOTEMENT/PAPER


The first thing that comes to mind is the “fire and ice” metaphor, and the authors basically agree with that. Therefore, it comes as no surprise that the towers took the extreme left and right positions, the space between them occupied by a glass podium that not only included a few entrance areas, a lobby, a fitness center and a conference hall but also became the space of visual interpretation and the conceptual tension between the two poles. While we have a conditional “fire” in the east and “ice” in the west, between them there is a space that is essentially earth with all of its beauties and controversies.

The fitness-and-spa center is inscribed into the bottom floors of the office block like a volumetric puzzle figure. It has seven pools in it, including a large one with courses of the sportive length of 25 meters, a padding pool for the toddlers and a spa bath; also, there are four small ones, more like large bathtubs, which are part of the Korean bath meant to cater for the visitors from this neighboring country; such baths are quite common here in the Far East, and they enjoy great popularity.

The western wall of the swimming pool is completely white and is dissected with large-stroke graphic ornaments, which, first of all, are based on îñíîâàí íà petroglyphs and the traditional Kamchatka decor, and, second, was designed by the authors as a semblance of broken-ice pattern at the foot of the ice mountain. Routed out to the façade, this “shaman” ornamental wall raises its “head” and starts looking like some kind of a jagged dragon that scans the surroundings with his asymmetric eyes.

Kamchatka Hotel © TOTEMENT/PAPER
Kamchatka Hotel © TOTEMENT/PAPER


Kamchatka Hotel © TOTEMENT/PAPER
Kamchatka Hotel © TOTEMENT/PAPER


Kamchatka Hotel. The swimming pool © TOTEMENT/PAPER
Kamchatka Hotel. The swimming pool © TOTEMENT/PAPER


Kamchatka Hotel. The swimming pool © TOTEMENT/PAPER
Kamchatka Hotel. The swimming pool © TOTEMENT/PAPER


Kamchatka Hotel. The gym © TOTEMENT/PAPER
Kamchatka Hotel. The gym © TOTEMENT/PAPER


Kamchatka Hotel. The interiors © TOTEMENT/PAPER
Kamchatka Hotel. The interiors © TOTEMENT/PAPER


The conference hall is located more to the east and resembles another totem animal: Levon Airapetov and Valeria Preobrazhenskaya call it a “teddy bear”, not without tenderness. It indeed does look like a bear: a six-angle, yet still streamlined, body of the hall in the second tier, and four large legs of an also streamlined and complex configuration – the legs are volumetric, there are supports hidden within their walls, and inside they will have meeting rooms or maybe cafes. All the volumes – the “legs” and “body” alike – are covered with corrugated metal panels of a copper color, which makes our imaginary bear look like a shaman statuette cut from a figured piece of wood, some kind of northern birch tree. On the inside, the ceiling of the hall is flat, but, in order to provide for a support-free structure, there is a lot of girders above it – their enclosed space also contains the ventilation equipment. On the outside, the space of the girders stands out above the roof of the podium like a flattened dome that looks like the back of the bear or maybe the top of an extinct volcano.

Kamchatka Hotel. The functional diagram © TOTEMENT/PAPER
Kamchatka Hotel. The functional diagram © TOTEMENT/PAPER


Kamchatka Hotel. The conference hall © TOTEMENT/PAPER
Kamchatka Hotel. The conference hall © TOTEMENT/PAPER


Kamchatka Hotel. The plan on the -1st level © TOTEMENT/PAPER
Kamchatka Hotel. The plan on the -1st level © TOTEMENT/PAPER


Kamchatka Hotel. The plan on the 1st floor © TOTEMENT/PAPER
Kamchatka Hotel. The plan on the 1st floor © TOTEMENT/PAPER


Kamchatka Hotel. The plan on the 2nd floor © TOTEMENT/PAPER
Kamchatka Hotel. The plan on the 2nd floor © TOTEMENT/PAPER


Kamchatka Hotel. Section view 2-2 © TOTEMENT/PAPER
Kamchatka Hotel. Section view 2-2 © TOTEMENT/PAPER


Kamchatka Hotel. Section view 1-1 © TOTEMENT/PAPER
Kamchatka Hotel. Section view 1-1 © TOTEMENT/PAPER


Kamchatka Hotel. Schemes of laying out the interior © TOTEMENT/PAPER
Kamchatka Hotel. Schemes of laying out the interior © TOTEMENT/PAPER


Kamchatka Hotel. Master plan  © TOTEMENT/PAPER
Kamchatka Hotel. Master plan © TOTEMENT/PAPER


Kamchatka Hotel. The conference hall © TOTEMENT/PAPER
Kamchatka Hotel. The conference hall © TOTEMENT/PAPER


Around the conference hall “spins” the space of the bottom floors: the architects even tried to calculate the scenarios of the visitors’ behavior during the conference break. The starting space is the foyer. There are three main entrances in the building, the foyer uniting two of them: one, which leads to the hotel lobby, and the second one, the central, between the fitness center and the conference hall. In addition, the height difference of the land site is over five meters, and the entrance, which is on the hotel side, leads us by a broad staircase directly to the second tier, to the conference hall entrance, while the central entrance leads to the first floor. The space beneath the supports of the hall is lowered still a little more in order to eliminate the feeling of an oppressive ceiling – from three sides, the descents lead to a rather cozy and interesting space, surrounded by the rounded sides of the “bear’s legs” – the meeting rooms – while overhead we see a lot of bent plates, as the metallic hide were cut crosswise; this motif is continued on the ceiling of the first tier, while at one point this called structure flows down to the floor in a “stalactite” fashion, forming an exotic column.

Kamchatka Hotel. The conference hall © TOTEMENT/PAPER
Kamchatka Hotel. The conference hall © TOTEMENT/PAPER


Kamchatka Hotel. The space above the conference hall © TOTEMENT/PAPER
Kamchatka Hotel. The space above the conference hall © TOTEMENT/PAPER


Kamchatka Hotel. The space of the 1st floor with the supports of the conference hall © TOTEMENT/PAPER
Kamchatka Hotel. The space of the 1st floor with the supports of the conference hall © TOTEMENT/PAPER


Kamchatka Hotel. The space of the 2nd floor before  the conference hall © TOTEMENT/PAPER
Kamchatka Hotel. The space of the 2nd floor before the conference hall © TOTEMENT/PAPER


Kamchatka Hotel. The conference hall © TOTEMENT/PAPER
Kamchatka Hotel. The conference hall © TOTEMENT/PAPER


Closer to the side of the main façade and the central entrance, the foyer is double-height; further on, it is divided into two tiers by a balcony. The floor and ceiling of the second tier are more sedate, black and white, and geometric. The two types of patterns – the flowing and languid, akin to a volcano with its wisps of ashes and streams of lava, and the icy and jagged – finally meet, the lava flowing below, the ice piling up on top of it – which is basically the case from time to time on Kamchatka.

The fourth tier of the hotel hosts a restaurant that commands a view of the podium’s roof; its supports of parabolic outlines, masking the T-shaped supports are a metaphor of the boats that the Kamchatka fishermen would dry standing them up on end on the shore. The wavy ceiling symbolizes the water.

The Sky Bar on the top floor is covered by a water-drop-shaped curved metallic awning, which is meant to reflect its red floor, forming a semblance of a cloud of smoke above a smoldering volcano. The metallic pillars in this instance are a metaphor of cataclysm, just like the “cracks” of the lamps in the ceiling. But then again, the corrugated geometric “shaman” patterns on the walls stress the “controllability” of the cataclysm, as if saying: yes, we are on top of the volcano but, paradoxically, we are safe here.

Kamchatka Hotel. The lobby © TOTEMENT/PAPER
Kamchatka Hotel. The lobby © TOTEMENT/PAPER


Kamchatka Hotel. The plan on the 3rd floor © TOTEMENT/PAPER
Kamchatka Hotel. The plan on the 3rd floor © TOTEMENT/PAPER


Kamchatka Hotel. The restaurant © TOTEMENT/PAPER
Kamchatka Hotel. The restaurant © TOTEMENT/PAPER


Kamchatka Hotel. The Sky Bar © TOTEMENT/PAPER
Kamchatka Hotel. The Sky Bar © TOTEMENT/PAPER


It is obvious enough that the richness of the form and content is combined here with the degree of detailed treatment, which at some points gets close to the point of “total design”. We will stress it again at this point that the project is more than just a concept proposal – TOTEMENT prepared all the working documentation, selected all the decoration materials, mostly from the geographically close Chinese manufacturers.

Kamchatka Hotel. The Sky Bar © TOTEMENT/PAPER
Kamchatka Hotel. The Sky Bar © TOTEMENT/PAPER


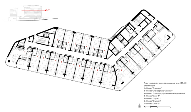
Kamchatka Hotel. The plan of the standard floor © TOTEMENT/PAPER
Kamchatka Hotel. The plan of the standard floor © TOTEMENT/PAPER


Kamchatka Hotel. Corridor © TOTEMENT/PAPER
Kamchatka Hotel. Corridor © TOTEMENT/PAPER


Kamchatka Hotel. The interiors. A standard room © TOTEMENT/PAPER
Kamchatka Hotel. The interiors. A standard room © TOTEMENT/PAPER


Kamchatka Hotel. The interiors. A standard room © TOTEMENT/PAPER
Kamchatka Hotel. The interiors. A standard room © TOTEMENT/PAPER


Kamchatka Hotel. The interiors. A studio room © TOTEMENT/PAPER
Kamchatka Hotel. The interiors. A studio room © TOTEMENT/PAPER


Kamchatka Hotel. The interiors. A suite © TOTEMENT/PAPER
Kamchatka Hotel. The interiors. A suite © TOTEMENT/PAPER


Kamchatka Hotel. The interiors. A suite © TOTEMENT/PAPER
Kamchatka Hotel. The interiors. A suite © TOTEMENT/PAPER


Kamchatka Hotel. VIP Lounge © TOTEMENT/PAPER
Kamchatka Hotel. VIP Lounge © TOTEMENT/PAPER


Kamchatka Hotel. VIP Lounge © TOTEMENT/PAPER
Kamchatka Hotel. VIP Lounge © TOTEMENT/PAPER


A single chapter of the story must be written about the work with the regulations of the seismically dangerous zone. “If you are to comply with all of the regulations, you will only be able to build a very small box of hideous proportions, and with tiny windows” – Valeria Preobrazhenskaya confesses. On the territory of the hotel, the architects were required to provide for a possibility of a 9 áàëëîâ earthquake, and immediately across the road – up to 10 points. In these circumstances, the architects made all the stability calculations together with the Central Research Institute of Construction Structures, the only institute that seriously explores this topic in this country; they used shielded and seismic supports – simplistically speaking, this technique consists in equipping the numerous basement highs with shock absorbers of rubber and steel, which made it possible to reduce the 9-point limit to an 8-point. The architects also developed and got the required approvals for several special conditions; they also invited to work, in particular, the same fire safety specialists who worked in Zaryadye Park. All of this is a brief summary of some absolutely titanic efforts, which resulted in large stained glass windows of the podium, floor windows in the offices and some of the hotel rooms, an incredible amount of cantilevered structures designed for this place, although quite restrained, since everything was inscribed in real calculations, and passed all necessary approvals.

Some editors-in-chief of well-known industry magazines are in the habit of saying: “Anyone can come up with a cool-looking thing – but can you actually build it?” Speaking on this particular subject, we will say that incredible efforts were invested not only in designing this complex, sophisticated and meaningful form but also in implementing it, starting with complex engineering calculations and ending the detailed layout of all the façade panels in order to make sure that they come together to form a beautiful ornament. As far as I know, the work took about two years, and was done with detailed analysis of every detail. The client considered the design of the hotel rooms on a 1:1 model, comparing it to the proposal by a Korean company. Ultimately, the TOTEMENT proposal was chosen. Today, the framework of the building has been fully cast in concrete.

 
Kamchatka Hotel. VIP Lounge © TOTEMENT/PAPER
Kamchatka Hotel. VIP Lounge © TOTEMENT/PAPER
Kamchatka Hotel. The facade solutions © TOTEMENT/PAPER
Kamchatka Hotel. The facade solutions © TOTEMENT/PAPER
Kamchatka Hotel. The facade solutions © TOTEMENT/PAPER
Kamchatka Hotel. The facade solutions © TOTEMENT/PAPER
Kamchatka Hotel. The facade solutions © TOTEMENT/PAPER
Kamchatka Hotel. The facade solutions © TOTEMENT/PAPER
Kamchatka Hotel. The facade solutions © TOTEMENT/PAPER
Kamchatka Hotel. The facade solutions © TOTEMENT/PAPER