Published on Archi.ru (https://archi.ru)

19.12.2018

​A Nest of Gentlefolk of the XXI Century


Architect:
Andrey Romanov
Ekaterina Kuznetsova
Studio:
ADM

Built by ADM on Moscow’s Sparrow Hills, the new residential complex, although totally up-to-date, shows nobility in its every detail, being a rightful heir to the legacy of this legendary part of Moscow.

"Vorobyev Dom" residential complex. Photograph © ADM
"Vorobyev Dom" residential complex. Photograph © ADM


Running between two rivers and two streets – Kosygina Street and Berezhkovskaya Embankment – the Vorobyevskoe Highway continues the tradition of these parts: back in the day, this land hosted manors of the nobility, and still later on, during the soviet period, the houses of academicians and prominent scientists. Today, this place is extremely popular among those who seek a cozy shelter offering a respectable kind of countryside life essentially in the very heart of one of the world’s busiest megalopolises. On the one side, you are surrounded by greenery and water, and, on the other side, you can admire the main “postcard” views of Moscow, which were once admired by Napoleon and Bulgakov’s Voland.

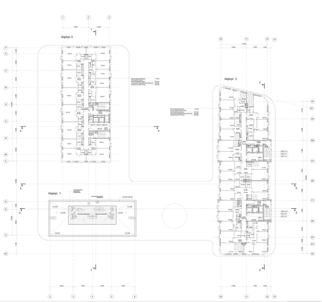
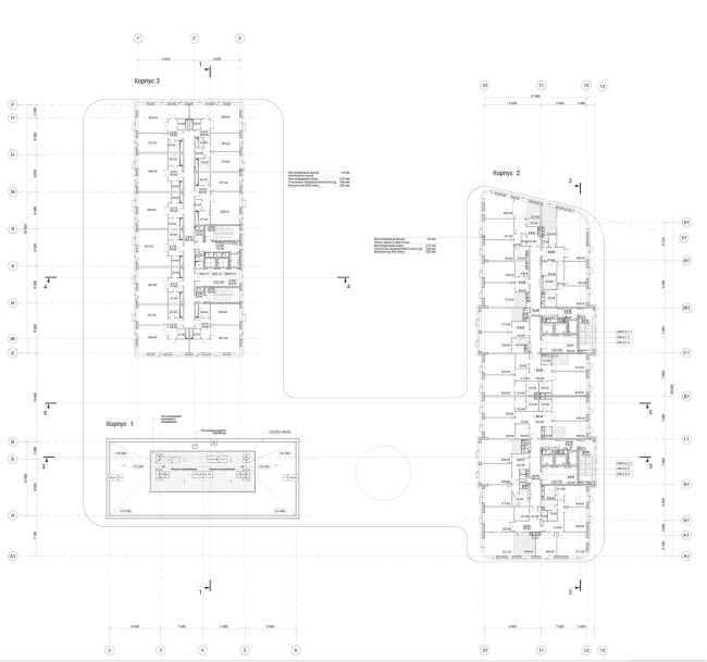
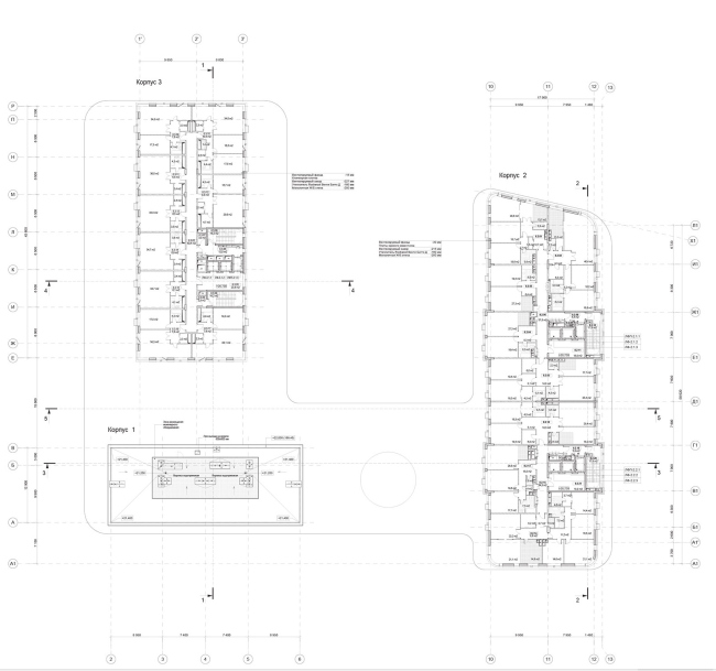
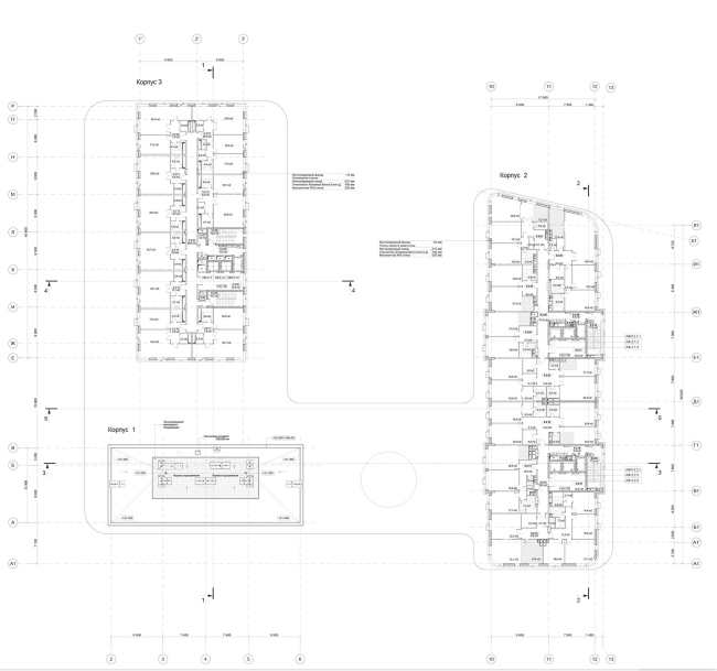
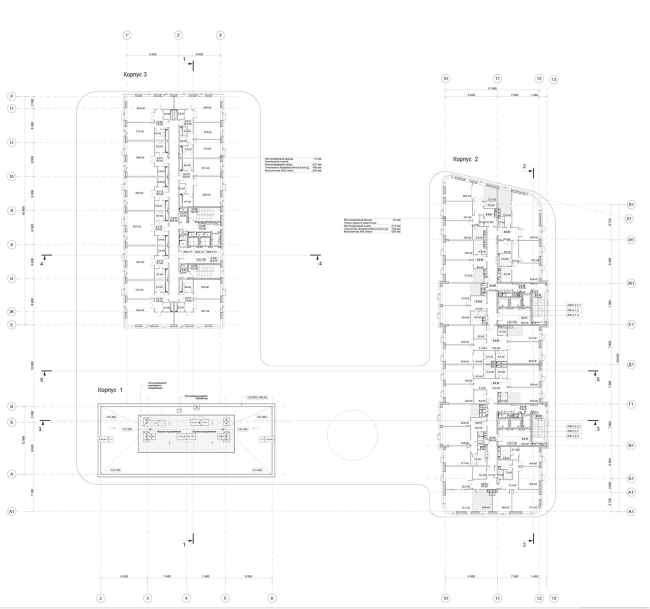
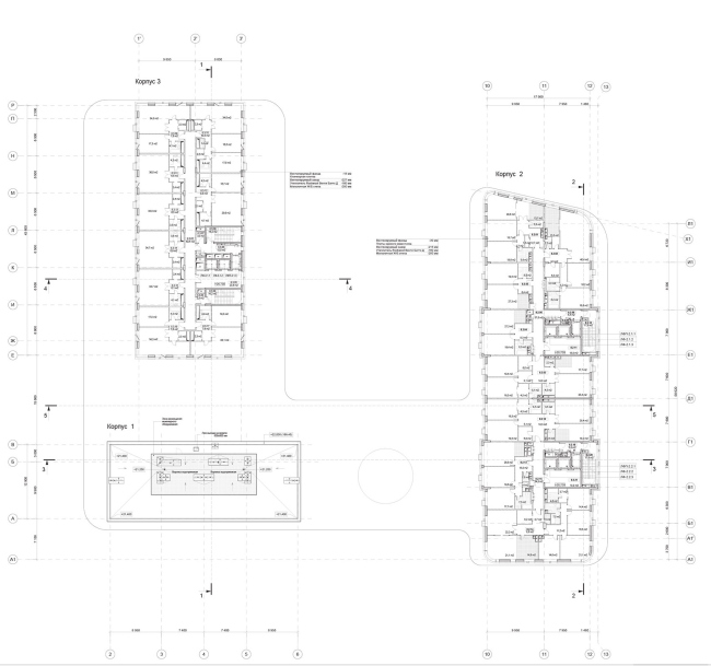
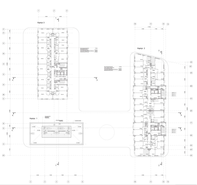
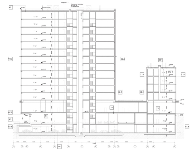
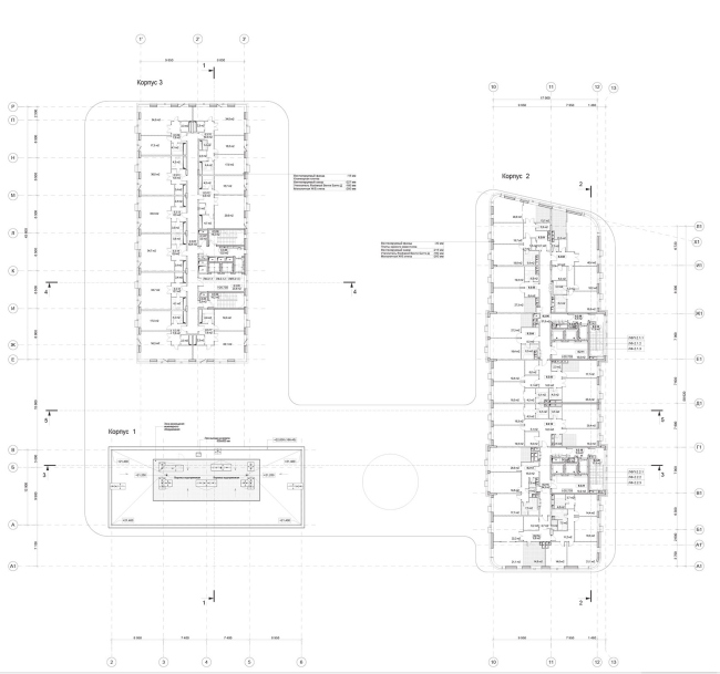
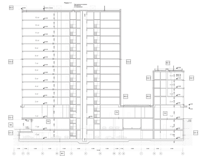
The peculiarity of the land site where the residential complex “Vorobyev Dom” was built, apart from its being situated on the very borderline of the nature reserve and the go-down to the Setun River, is the fact that legally there were two land sites, and uniting them would have hindered the project significantly. To a certain extent, this defined the composition of the complex: the land site of a smaller size of 0.06-hectare got the most compact unit out of three, five stories high, while the 0.8-hectare land site got two more residential buildings, one with flats, the other with apartments, 13 and 16 stories high respectively. Joining these three buildings with a transparent podium gave the contours of the green plateau of the yard and opened it up to the woodland and the river, turning the whole complex to them.

"Vorobyev Dom" residential complex. Photograph © ADM
"Vorobyev Dom" residential complex. Photograph © ADM


"Vorobyev Dom" residential complex. Photograph © ADM
"Vorobyev Dom" residential complex. Photograph © ADM


In addition, the idea to cover the human-proportionate level of the complex with the marquee of the podium allowed the architects to make a far more impressive turnaround of the project – taking it from the level of another rank-and-file housing project to the level of a residential complex marked by nobility and aristocratic exquisiteness. The latter are to be seen in the proportions of the structure and in the arrangement of the propylaea; in the wood sheathing on the inner side – where its texture catches the eye and literally wraps one into warmth; in the perfectly circular windows that “cut through” this sheathing and turn out to be sometimes spotlights and sometimes frames for trees; and in the very configuration of the marquee and the design of the driving access to the buildings: the cantilevered structure follows the contours of the roundabout that the hallways of all the three buildings go out to, and together they form a grand entrance, the kind you see in expensive hotels. The driver comes around, the passenger alights, and off the car goes – it drives either totally away or to the two-level underground parking garage. There is an overland parking lot as well but it is a very compact and payable one, devised for a short stay only – like near the mentioned hotels or airport terminals.

"Vorobyev Dom" residential complex. Photograph © ADM
"Vorobyev Dom" residential complex. Photograph © ADM


"Vorobyev Dom" residential complex. Photograph © ADM
"Vorobyev Dom" residential complex. Photograph © ADM


"Vorobyev Dom" residential complex. Photograph © ADM
"Vorobyev Dom" residential complex. Photograph © ADM


"Vorobyev Dom" residential complex. Photograph © ADM
"Vorobyev Dom" residential complex. Photograph © ADM


"Vorobyev Dom" residential complex. Photograph © ADM
"Vorobyev Dom" residential complex. Photograph © ADM


Therefore, the yard is designed as being completely vehicle-free – although small in size, it is surprisingly versatile. The architects even deliberately recreated relief drops characteristic for the local terrain and planted trees on the hills, while in the recessions that, when viewed from above, look like giant boulders (the authors jokingly called them “the balls”) and are paved with granite mosaic of painstakingly selected colors (yet another minute detail that, nonetheless, surely indicates class and nobility), they made zones for active and meditative recreation, including circular wooden benches, tubs for the trees and the lawn, and a playground of the same streamlined shape as the other recessions with a practical rubber coverage.

"Vorobyev Dom" residential complex. Photograph © ADM
"Vorobyev Dom" residential complex. Photograph © ADM


"Vorobyev Dom" residential complex. Photograph © ADM
"Vorobyev Dom" residential complex. Photograph © ADM


"Vorobyev Dom" residential complex. Photograph © ADM
"Vorobyev Dom" residential complex. Photograph © ADM


"Vorobyev Dom" residential complex. Photograph © ADM
"Vorobyev Dom" residential complex. Photograph © ADM


"Vorobyev Dom" residential complex. Photograph © ADM
"Vorobyev Dom" residential complex. Photograph © ADM


"Vorobyev Dom" residential complex. Photograph © ADM
"Vorobyev Dom" residential complex. Photograph © ADM


"Vorobyev Dom" residential complex. Photograph © ADM
"Vorobyev Dom" residential complex. Photograph © ADM


"Vorobyev Dom" residential complex. Photograph © ADM
"Vorobyev Dom" residential complex. Photograph © ADM


"Vorobyev Dom" residential complex. Photograph © ADM
"Vorobyev Dom" residential complex. Photograph © ADM


The yard is also the place, to which comes out the platform, raised on a podium, with a balustrade and yet another marquee, which gives four apartments on the ground floor of the 16-story high building a whole new quality: they have patios of their own, upon which they can make dacha-style tea parties. The rest of the premises on the ground floor are non-residential: lobbies, management offices, and a children’s center in one of the buildings. And, if we are to look at the complex from the woodland and the Setun River, we will see an array of stores that look as if they had grown into the hill – and one will hardly guess that the architects designed the façade of the underground parking garage in this way. 

"Vorobyev Dom" residential complex. Photograph © ADM
"Vorobyev Dom" residential complex. Photograph © ADM


Generally speaking, depending on one’s angle of vision, new and new layers come up. Again, if we are to look from up above (which is quite natural, come right down to it, for most of the residents of the complex, isn’t it?) that the roof of the podium – although the architects weren’t ultimately able to make it completely green the way they originally intended – became an organic part of the landscaping solutions and is marked by the characteristic mosaic “belts”.

"Vorobyev Dom" residential complex. Photograph © ADM
"Vorobyev Dom" residential complex. Photograph © ADM


Now we are making a 90-degree turn and put our gaze on the façades: if the architects took such a great pain selecting the tones of the granite paving we can only imagine how much effort was invested in the façades. The materials, just as they should be, are exclusively noble and, to some extent, of the signature “Moscow” kind: white stone, red brick, wood (rather, thin ceramic panels that imitate it). But then again, the list of painstakingly chosen materials could be fairly augmented by glass. For example, at the corners of the 16-story building, from where the best views open up, the glass parts are curvilinear and moulded, which yields full-fledged panoramic windows. And, again, these are framed at the top and bottom by stone belts: in order to achieve that, the stone was sawn circle-wise. In combination with the cornice that crowns the residential floors, the image of this house gets something about it that makes it imperceptibly related to the monumental architecture of the buildings standing along the Kosygina Street.

"Vorobyev Dom" residential complex. Photograph © ADM
"Vorobyev Dom" residential complex. Photograph © ADM


"Vorobyev Dom" residential complex. Photograph © ADM
"Vorobyev Dom" residential complex. Photograph © ADM


"Vorobyev Dom" residential complex. Photograph © ADM
"Vorobyev Dom" residential complex. Photograph © ADM


"Vorobyev Dom" residential complex. Photograph © ADM
"Vorobyev Dom" residential complex. Photograph © ADM


"Vorobyev Dom" residential complex. Photograph © ADM
"Vorobyev Dom" residential complex. Photograph © ADM


In the building of a smaller height, where the stone is liberally diluted with brick, the corner glass is also of a sophisticated kind - not bent, but without any lintels, so that nothing would stop the view.

The most interesting thing, however, is how these elements made of different materials combine with one another. It would not be an overstatement to call ADM geniuses of façade design: somehow they always manage to make the façade surface just as interesting and diverse as, seemingly, only a landscape of some super-up-to-date park can be (although, speaking on that particular subject, we can see that ADM were still able to make a mini model of it within the space of a regular yard). The staggered rhythm of brick and glazed surfaces, surprise inserts of alternative materials, recessions and screens for the air conditioning units, corrugated surface of the stone – all of this sophisticated (yet still looking quite natural) multilayered structure again puts you in the mind of, on the other hand, a “nest” made with love and care, and, on the other hand, about something that has been formed for years, imbibing the signs and traits of the previous generations.

"Vorobyev Dom" residential complex. Photograph © ADM
"Vorobyev Dom" residential complex. Photograph © ADM


"Vorobyev Dom" residential complex. Photograph © ADM
"Vorobyev Dom" residential complex. Photograph © ADM


"Vorobyev Dom" residential complex. Photograph © ADM
"Vorobyev Dom" residential complex. Photograph © ADM


"Vorobyev Dom" residential complex. Photograph © ADM
"Vorobyev Dom" residential complex. Photograph © ADM


"Vorobyev Dom" residential complex. Photograph © ADM
"Vorobyev Dom" residential complex. Photograph © ADM


"Vorobyev Dom" residential complex. Photograph © ADM
"Vorobyev Dom" residential complex. Photograph © ADM


So, the advertising slogan of the complex “See the Best” is equally applicable to its architecture. Because this a veritable feast for one’s eyes – quite comparable, in terms of breathtaking views, with the iconic panoramas of Moscow that these windows command.
"Vorobyev Dom" residential complex © ADM
"Vorobyev Dom" residential complex © ADM
"Vorobyev Dom" residential complex © ADM
"Vorobyev Dom" residential complex © ADM
"Vorobyev Dom" residential complex © ADM
"Vorobyev Dom" residential complex © ADM
"Vorobyev Dom" residential complex © ADM
"Vorobyev Dom" residential complex © ADM