Published on Archi.ru (https://archi.ru)

29.11.2018

​A Sports Hill

Alyona Kuznetsova
Studio:
Arhitekturium

Designed at the edge of “Laikovo” housing complex, the Academy of Badminton fits in nicely with its surroundings without going beyond the boundaries of the lexicon of modern architecture.

Fitness and health centre in "Laikovo" housing complex © Arhitekturium
Fitness and health centre in "Laikovo" housing complex © Arhitekturium


The Academy of Badminton, a fitness and health center with several gyms and a swimming pool, was designed by Vladimir Bindeman at the edge of “Laikovo” housing project, a large complex of neoclassical architecture, whose construction, as it turned out, was recently frozen. But then again, the building of the Academy of Badminton was designed independently – it neither conflicts with the architecture of the complex nor tries to fit in with it too strongly, which gives its authors grounds to believe that the project of this sports center can still find its buyer, if not here, then someplace else.

Anyway, the sports complex was to be situated not far away from the edge of the woodland, in the low-rise part of the residential area, in the triangle between the stadium and the school. According to the leader of the company, Vladimir Bindeman, the authors wanted to make the building of the Academy as inconspicuous as possible in order to soften the transition from one type of construction to the other – hence the “green” concept: the pitches of the roof that embrace the volumes, as if trying to enchant them, the wooden berms or the portals, and the planks of the pergola that cover broad stained glass windows. All of this is meant to visually dissolve the complex in its natural environment, to open up beautiful views from the inside, and minimize, as much as possible, its size from the outside. The architects had to refrain from the idea of making all of the roofs green with plants but the real grass was replaced by “camouflage” copper oxide.

Fitness and health centre in "Laikovo" housing complex © Arhitekturium
Fitness and health centre in "Laikovo" housing complex © Arhitekturium


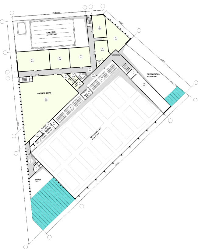
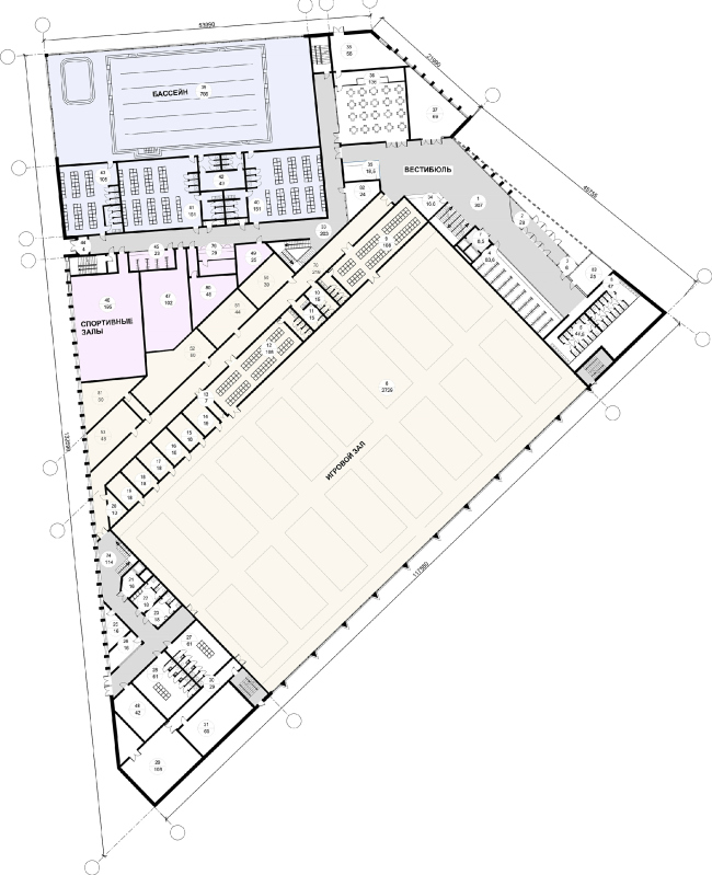
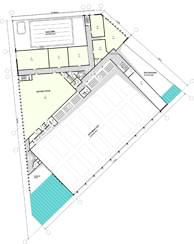
The composition of the building follows the set of functions that it is meant to perform: the jagged green roofs, which oftentimes descend down to earth, cover several double-height volumes at once. The nucleus is essentially the badminton hall, which consists of sixteen courts. Next to its both side ends, there are two lobbies; in the center, there is a “layer” of the fitness center and a swimming pool behind it. Functionally, it is not connected to the badminton hall in any way – the premises are situated at different elevation marks and are separated by a wall – but it has common spacious locker rooms with the swimming pool at the joint of the “wet” and “dry” zones, in order to avoid duplicating one and the same function. The first floor of the fitness center also hosts a children’s gym, gyms for squash and ping pong, while the larger gyms are situated on the second floor. This part also has in it a separate entrance for schoolchildren. Next to it there is an entrance to a two-level underground parking garage.

Fitness and health centre in "Laikovo" housing complex © Arhitekturium
Fitness and health centre in "Laikovo" housing complex © Arhitekturium


All the volumes are of a slightly different height; in addition, the pitches of the roofs are pointed in different directions – and the green hill falls into layers, opening up with cross-sections of the stained glass windows and the vertical “pergola” planks. Designed in this way, the building looks like an origami figure, distinctly displaying multiple façades, presenting a different look when viewed from every different angle. The roof of the large lobby has a circular skylight in it – it does not follow the roof’s tilt but is elevated slightly higher like a birdie stuck in the grass, the sign of the main function of the complex.

Fitness and health centre in "Laikovo" housing complex © Arhitekturium
Fitness and health centre in "Laikovo" housing complex © Arhitekturium


Fitness and health centre in "Laikovo" housing complex © Arhitekturium
Fitness and health centre in "Laikovo" housing complex © Arhitekturium


The largest hall is the badminton one, and it is also the most prominent one: its façade stands out “up and forward” with a portico consisting of sharp ribs that accentuate the dominant role of the volume resting on them. The pattern of the light-scattering mesh that is necessary for protecting the players from direct sunlight also echoes the outlines of a birdie skirt, while the portico itself looks like its development drawing – there is quite a lot of telltale details in this project.

Fitness and health centre in "Laikovo" housing complex © Arhitekturium
Fitness and health centre in "Laikovo" housing complex © Arhitekturium


Fitness and health centre in "Laikovo" housing complex © Arhitekturium
Fitness and health centre in "Laikovo" housing complex © Arhitekturium


The unquestionably modern image of the building and its dynamic outlined highlight the sports function, yet, at the same time, these cascades, asymmetry, and unconventional shapes, coupled with the wooden “colonnades” and the green roof, make it tolerances to virtually any kind of environment. 

Fitness and health centre in "Laikovo" housing complex © Arhitekturium
Fitness and health centre in "Laikovo" housing complex © Arhitekturium


The authors are planning to showcase this project at the exhibition “Architectural Potential”, which, as we hope, will give it a chance to get added to the list of other implemented sports facilities designed by Arhitekturium – a swimming pool and a fitness center are usually welcome guests in any housing project.
Fitness and health centre in "Laikovo" housing complex. Master plan © Arhitekturium
Fitness and health centre in "Laikovo" housing complex. Master plan © Arhitekturium
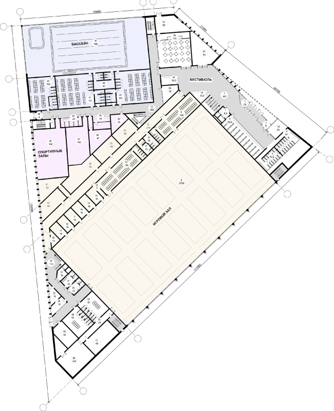
Fitness and health centre in "Laikovo" housing complex. Plan of the 1st floor © Arhitekturium
Fitness and health centre in "Laikovo" housing complex. Plan of the 1st floor © Arhitekturium
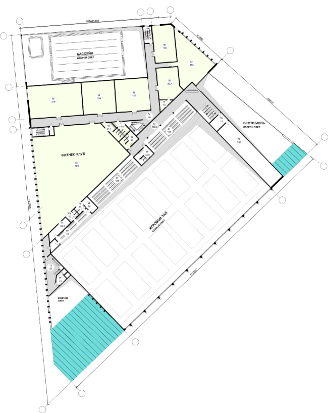
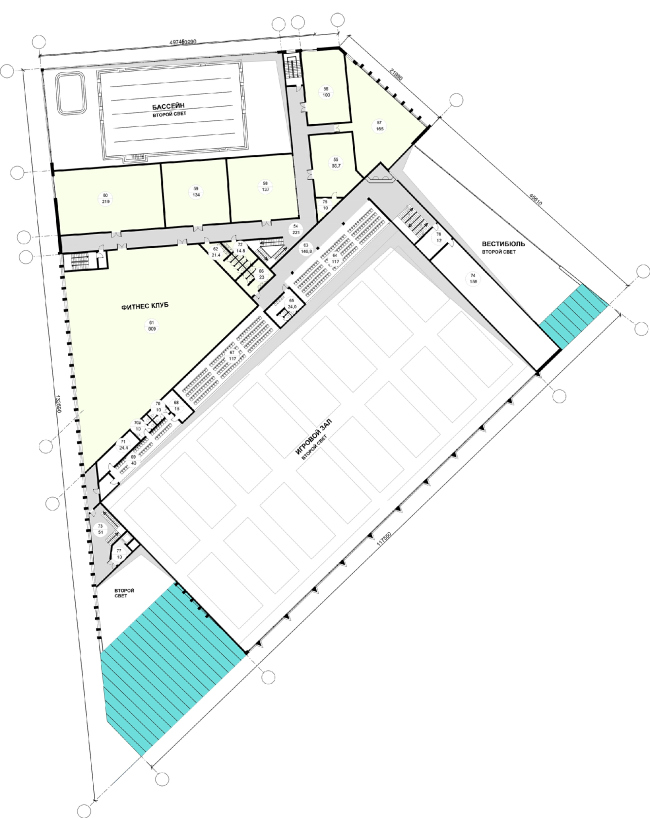
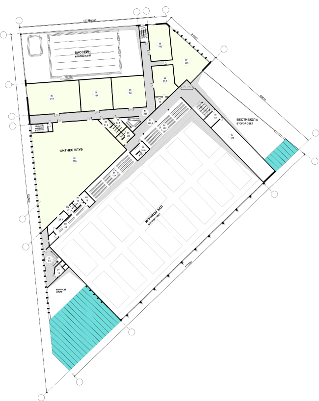
Fitness and health centre in "Laikovo" housing complex. Plan of the 2nd floor © Arhitekturium
Fitness and health centre in "Laikovo" housing complex. Plan of the 2nd floor © Arhitekturium
None
None