Published on Archi.ru (https://archi.ru)

05.12.2018

​Transforming a Suburb


Studio:
ATOM ga
A-GA

Giving the new housing complex in the village of Mostets in the Yaroslavl region the name of “Preobrazhenie” (which translates as “Transfiguration”), its authors set for themselves a task of changing not only the image of the place but the psychology of its residents as well.

"Preobrazhenie" residential complex in the village of Mostets © ATOM ag + A-GA
"Preobrazhenie" residential complex in the village of Mostets © ATOM ag + A-GA


“What the architect does is create a scenario for the life of a whole city block – contends Rustam Kerimov, the chief architect of the project – It sets the tone that is expressed through the façades and the spaces between the buildings, not just in the floor plans of individual apartments. This is why we pay so much attention to interacting with our client, trying to find the best possible solutions that answer the modern requirements for creating a comfortable environment, as well as to the economic aspect of the project”.

"Preobrazhenie" residential complex in the village of Mostets © ATOM ag + A-GA
"Preobrazhenie" residential complex in the village of Mostets © ATOM ag + A-GA


The land site in question is situated at the eastern outskirts of Yaroslavl. Back in the soviet time, the 200-hectare rectangle between the Tveritsky and Yakovlevsky forests hosted six prefabricated city blocks, averaged ten stories high – and now this place feels nothing like either a part of the old Russian town or even a Volga bank village: the privately owned cottages are grouped closer the west end of the site, and here one can hardly ever feel the presence of the Volga River because it is still four kilometers away.

The new housing complex is being built on the borderline between the old city blocks (or “micro-districts”) and the forest, picking up the scale of the former and counting on the recreational opportunities provided by the latter. In addition, the Yaroslavl Central Clinic is situated nearby.

"Preobrazhenie" residential complex in the village of Mostets © ATOM ag + A-GA
"Preobrazhenie" residential complex in the village of Mostets © ATOM ag + A-GA


The architects started working on this project from studying the nearby city blocks consisting of prefabricated houses and their yards. It turned out that the yards, as is often the case in many post-soviet cities, are used as parking lots, while whatever landscaping work had been there was gone without a trace. Therefore, among other things, the architects wanted to come up with an alternative to the unwelcoming and bleak yards of the late-Soviet construction.

The basis of the project was constituted by the concept of good neighbourliness, in which the yard is essentially the place of the residents’ common activities. Based on the placemaking theory, the architects tried to take into account all the components of this area’s attractiveness and incorporate them in a single city block.

"Preobrazhenie" residential complex in the village of Mostets © ATOM ag + A-GA
"Preobrazhenie" residential complex in the village of Mostets © ATOM ag + A-GA


Lined up along the perimeter of the trapeze-shaped land site, the buildings designed by the architects made it possible to create a chain of yards, different in their function but still interconnected. The L-shaped four-section building forms a construction front turned to the forest and the clinic, the single-section towers rhythmically standing along the Ordzhonikidze Street. The composition is completed by a two-section building that forms a large yard, which is the center of the block.

"Preobrazhenie" residential complex in the village of Mostets. Plan of the 1st floor  © ATOM ag + A-GA
"Preobrazhenie" residential complex in the village of Mostets. Plan of the 1st floor © ATOM ag + A-GA


The parking lot borders immediately on the block, helping the yards get rid of the cars, which is conducive to creating a vehicle-free in-block environment, which, according to the architects, must ultimately bring the residents together and help them form a community of their own.

"Preobrazhenie" residential complex in the village of Mostets. Master plan © ATOM ag + A-GA
"Preobrazhenie" residential complex in the village of Mostets. Master plan © ATOM ag + A-GA


It is common knowledge nowadays that the development of local communities depends to a large extent on the density of construction. While solving this problem, the architects convinced their client to refrain from building houses over 12 stories high. Recently, it was said at the “Comfortable City” conference that the upper threshold of the population of a yard, after which it actually stops being comfortable, is 4000 people; the new complex is expected to host a total of 1500 residents, which figure the authors consider to be the optimum one for supporting stable hobby communities, as well as development and implementation of joint projects.

This way, while still in the planning stage, the authors think about the future management of the territory. 

"Preobrazhenie" residential complex in the village of Mostets. Scheme of the facades © ATOM ag + A-GA
"Preobrazhenie" residential complex in the village of Mostets. Scheme of the facades © ATOM ag + A-GA


"Preobrazhenie" residential complex in the village of Mostets. Scheme of the facades © ATOM ag + A-GA
"Preobrazhenie" residential complex in the village of Mostets. Scheme of the facades © ATOM ag + A-GA


Another factor that matters for the future buyers of the apartments is the quality of the façades and other external features of the building: in “Preobrazhenie”, the architects used porous Flemish brick, a highly reputable water resistant material. The architects proposed to use hand-molded brick with a texture that enhances the tactile effect, of four different shades of color.

"Preobrazhenie" residential complex in the village of Mostets. Fragment of the facade © ATOM ag + A-GA
"Preobrazhenie" residential complex in the village of Mostets. Fragment of the facade © ATOM ag + A-GA


"Preobrazhenie" residential complex in the village of Mostets. Fragment of the facade © ATOM ag + A-GA
"Preobrazhenie" residential complex in the village of Mostets. Fragment of the facade © ATOM ag + A-GA


However, using the Flemish brick on all of the façades turned out to be prohibitively expensive, and the authors came up with another solution: instead of refraining from using the brick altogether, they combined it with metallic cassettes. They found a domestic manufacturer, proposed their own design solutions for the cassettes – and ultimately the price of one square meter of such façade ended up being about 9000 rubles, which is not too expensive. Various combinations of neutral shades of gray, chestnut and brown bricks, coupled with the smooth surfaces of the color cassettes, as well as the ledges of the bay windows, liven up the façades.

"Preobrazhenie" residential complex in the village of Mostets © ATOM ag + A-GA
"Preobrazhenie" residential complex in the village of Mostets © ATOM ag + A-GA


"Preobrazhenie" residential complex in the village of Mostets © ATOM ag + A-GA
"Preobrazhenie" residential complex in the village of Mostets © ATOM ag + A-GA


"Preobrazhenie" residential complex in the village of Mostets © ATOM ag + A-GA
"Preobrazhenie" residential complex in the village of Mostets © ATOM ag + A-GA


"Preobrazhenie" residential complex in the village of Mostets © ATOM ag + A-GA
"Preobrazhenie" residential complex in the village of Mostets © ATOM ag + A-GA


As was already said, the authors practice a placemaking approach, according to which an important role in the organization of the yards is played by the residents themselves. In this specific instance, of course, the architects can only form the prerequisites for that, based on the portrait of an average future buyer.

According to the survey, the future residents are young families and take out mortgages to buy apartments. The long-term investment is kind of a prerequisite for the fact that the people will perceive this place as their own and will make their own efforts to develop it.

"Preobrazhenie" residential complex in the village of Mostets © ATOM ag + A-GA
"Preobrazhenie" residential complex in the village of Mostets © ATOM ag + A-GA


In order to form such an environment, the architects are proposing to diversify the design solutions of the buildings’ bottom floors. The first floors, which run along the perimeter of the block, are occupied by commercial and public premises, while on the inside they are occupied by apartments with small gardens attached to them and a hedgerow.

"Preobrazhenie" residential complex in the village of Mostets © ATOM ag + A-GA
"Preobrazhenie" residential complex in the village of Mostets © ATOM ag + A-GA


"Preobrazhenie" residential complex in the village of Mostets © ATOM ag + A-GA
"Preobrazhenie" residential complex in the village of Mostets © ATOM ag + A-GA


"Preobrazhenie" residential complex in the village of Mostets. Greenery © ATOM ag + A-GA
"Preobrazhenie" residential complex in the village of Mostets. Greenery © ATOM ag + A-GA


The augmented height of the ground floor – 4.5 meters versus the height of a standard floor of 3.15 meters – the panoramic windows, and the small gardens are meant, according to the architects’ plan, to help to develop neighborly relations between the residents and better organization of the yard territory. The individual little gardens border on a small strip of land that every resident of the complex will be able to use as a public garden or a vegetable garden.

"Preobrazhenie" residential complex in the village of Mostets. Zoning in accordance with the age brackets of the residents © ATOM ag + A-GA
"Preobrazhenie" residential complex in the village of Mostets. Zoning in accordance with the age brackets of the residents © ATOM ag + A-GA


"Preobrazhenie" residential complex in the village of Mostets © ATOM ag + A-GA
"Preobrazhenie" residential complex in the village of Mostets © ATOM ag + A-GA


"Preobrazhenie" residential complex in the village of Mostets. Playgrounds © ATOM ag + A-GA
"Preobrazhenie" residential complex in the village of Mostets. Playgrounds © ATOM ag + A-GA


The uniqueness of each of the yards is conditioned by the diversity of the landscape and its functions: one can see here playgrounds, sports fields, and a special sports field covered with sand.

The architects’ opting out of standardized playgrounds and sports filed in favor of individual solutions is yet another interesting feature of the project. Originally, they considered the option of organizing the territory that implied using the playgrounds made by a Dutch manufacturer but that exceeded the budget, and then the architects turned to Ivan Shchetinin, a landscape artist who has been for years designing landscape projects in Nikola-Lenivets. Currently, he is working on a less costly proposal – a “natural playground”: it is meant to make the environment unique, and it is designed for children of different age brackets.

There are seven playgrounds with seven solutions, where a lot of attention is paid to minor architectural shapes – benches, gazebos, and greenery. The playgrounds, which look like wooden sculptures, promenades decorated with arches, and the spots for meditation and recreation amidst trees and shrubs that will look attractive in the wintertime as well – all of this must be conducive to the psychological comfort of the future residents.
"Preobrazhenie" residential complex in the village of Mostets © ATOM ag + A-GA
"Preobrazhenie" residential complex in the village of Mostets © ATOM ag + A-GA
"Preobrazhenie" residential complex in the village of Mostets © ATOM ag + A-GA
"Preobrazhenie" residential complex in the village of Mostets © ATOM ag + A-GA
"Preobrazhenie" residential complex in the village of Mostets. Facade in axis 9-1 © ATOM ag + A-GA
"Preobrazhenie" residential complex in the village of Mostets. Facade in axis 9-1 © ATOM ag + A-GA
"Preobrazhenie" residential complex in the village of Mostets. Facade in axis Ã-À © ATOM ag + A-GA
"Preobrazhenie" residential complex in the village of Mostets. Facade in axis Ã-À © ATOM ag + A-GA
"Preobrazhenie" residential complex in the village of Mostets. Section scheme 3-3 © ATOM ag + A-GA
"Preobrazhenie" residential complex in the village of Mostets. Section scheme 3-3 © ATOM ag + A-GA
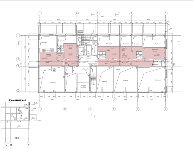
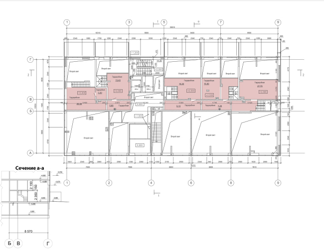
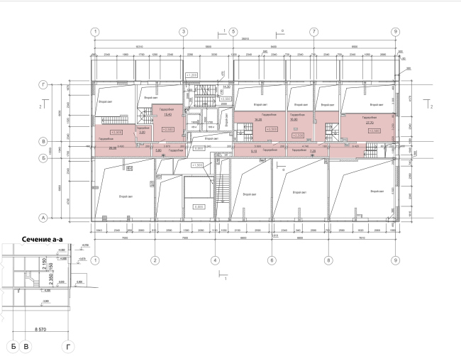
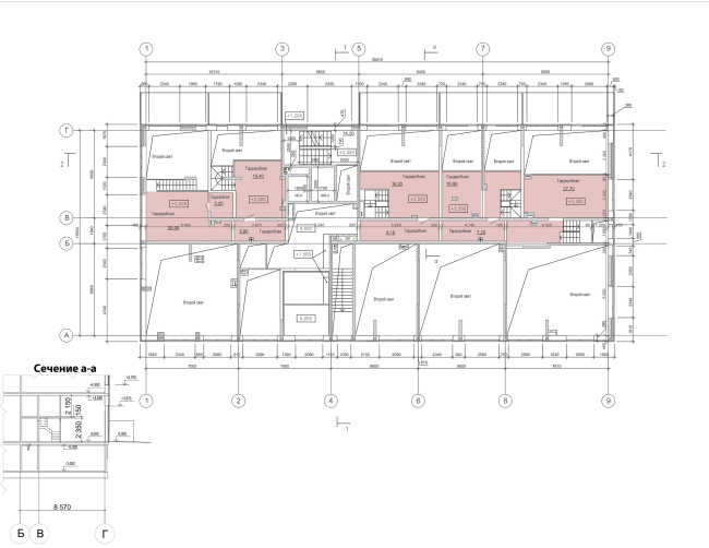
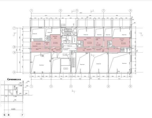
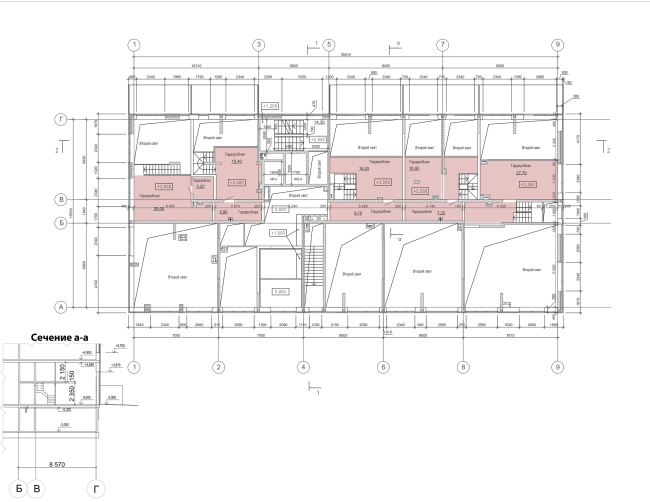
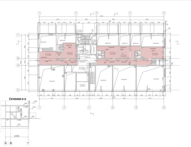
"Preobrazhenie" residential complex in the village of Mostets. Plan of floors 3,5,7,9,11 © ATOM ag + A-GA
"Preobrazhenie" residential complex in the village of Mostets. Plan of floors 3,5,7,9,11 © ATOM ag + A-GA
"Preobrazhenie" residential complex in the village of Mostets © ATOM ag + A-GA
"Preobrazhenie" residential complex in the village of Mostets © ATOM ag + A-GA
"Preobrazhenie" residential complex in the village of Mostets. Plan of the 1st floor © ATOM ag + A-GA
"Preobrazhenie" residential complex in the village of Mostets. Plan of the 1st floor © ATOM ag + A-GA
"Preobrazhenie" residential complex in the village of Mostets. Draughts of the "units" © ATOM ag + A-GA
"Preobrazhenie" residential complex in the village of Mostets. Draughts of the "units" © ATOM ag + A-GA
None
None