Published on Archi.ru (https://archi.ru)

12.10.2018

An Open House School

Alyona Kuznetsova
Architect:
Aleksandr Popov
Olga Tchernova
Studio:
Archimatika

Designed by Archimatika, the gymnasium A+ on the territory of Kiev’s housing complex “Comfort Town” is remarkable not only for its architecture that can best be described as a “friendly fortress” but also for its openness: it is designed in such a way that both students and their parents can have a comfortable time here, and other children and adults as well.

Gymnasium A+, project © Archimatika
Gymnasium A+, project © Archimatika


The gymnasium A+ opened its doors on the territory of the housing complex “Comfort Town”, also designed by Archimatika. This place also features yet another project designed by this firm: the complex of “Academy of Modern Education A+”, which consists of a kindergarten, a school of fine arts, and a junior high school. Gymnasium A+ will teach students from third to twelfth grade.

From a formal standpoint, a gymnasium or a high school is one of the “necessary evils” for the developers that you cannot avoid building in order to provide the required amount of student places for a residential area. Originally, it was planned that the place would get a regular state-run high school but it turned out that the city had no funds to enter it in its books – and then KAN Development invited a private school to be accommodated here. Ultimately, the housing complex ended up getting one of the best educational institutions in Kiev in all respects: in terms of architecture, educational program, and technical equipment.

Gymnasium A+, project © Archimatika
Gymnasium A+, project © Archimatika


The architects chose the location at the edge of “Comfort Town” – at the crossing of Berezneva and Vifleemskaya streets. Not far away, there is a railroad line that by default gave a 100-meter sanitary protection zone. Because of this, the construction could only be carried out on a small strip of land but on the other hand there was a large vacant territory around it, on which the architects made a park, playgrounds, sports fields, and a stadium. Calculating the insolation requirements, the architects came to the most efficient possible form – a square-plan building with a courtyard.

Gymnasium A+, project. The master plan © Archimatika
Gymnasium A+, project. The master plan © Archimatika


The architects wanted to make their gymnasium building look pristine – not only for the sake of contrast with the bright-colored houses of “Comfort Town” but also in order to highlight the fundamentality of education as such. At the same time, it was meant to look friendly and open. All of these tasks are solved by the form, color, and materials used.

The budget did not allow the architects to make the façades 100% stone, so they had to look for a compromise. According to the architects, the only suitable kind of stucco that could do the trick was Baumit: “because of the naturally chaotic inclusions of black and gray”. The stone was also selected to match the stucco: ultimately, they settled for the Armenian basalt – this material is not really widely spread and recognizable, and, therefore, as the authors say, it does not bring any associations with museums or memorials. As one of the chief architects of the project, Olga Chernova, put it, this stone is “soft and friendly, just like Armenians are who tend to treat everyone as part of their family”. Yet another shade of gray is given by the metallic gabled roof.

The first floor is executed of prominent chunks of basalt – the massive foundation, like the ruins of some ancient monastery, from which rock-face stuccoed tiles of varying thickness sprout upwards.

Gymnasium A+, construction, yard © Archimatika. Photograph © Alexander Angelovsky
Gymnasium A+, construction, yard © Archimatika. Photograph © Alexander Angelovsky


Gymnasium A+, construction, yard © Archimatika. Photograph © Alexander Angelovsky
Gymnasium A+, construction, yard © Archimatika. Photograph © Alexander Angelovsky


Gymnasium A+, construction, yard © Archimatika. Photograph © Alexander Angelovsky
Gymnasium A+, construction, yard © Archimatika. Photograph © Alexander Angelovsky


Gymnasium A+, construction, yard © Archimatika. Photograph © Alexander Angelovsky
Gymnasium A+, construction, yard © Archimatika. Photograph © Alexander Angelovsky


Gymnasium A+, construction, yard © Archimatika. Photograph © Alexander Angelovsky
Gymnasium A+, construction, yard © Archimatika. Photograph © Alexander Angelovsky


Making the building completely gray was something that the architects were unable to do – because they had to place on the main façade the marsala-colored A+ logo. It turned out that it looked quite harmonious, and then the architects added some color over the entire façade – they used the ultra-opaque paint of the same color to paint the window frames.

Gymnasium A+, project © Archimatika
Gymnasium A+, project © Archimatika


The reserved and pristine image of the gymnasium that the architects came up with automatically set before them the task of “making the building look as unlike Château d’If as possible”, making it calm but not frowning, noble-looking but not gloomy. Rather, according to the authors’ idea, the outline of the gabled roof must bring associations with mountains, the arch must bring associations with a cave; maybe even evoke some romantic cinematic and literary pictures of meeting your mentor – like in Star Wars and in many other films and books.

Gymnasium A+, project © Archimatika
Gymnasium A+, project © Archimatika


As for the main façade of the gymnasium, from an almost “blind” wall it switches over to a “crystal” stained glass window almost the entire height of the building, then it gets slit by the classroom windows, and then follows a 25-meter span of an unsupported arch – it invites and almost sucks you right into the yard with an amphitheater. It is planned that the yard will host school assemblies, concerts, performances by the student theater, and sometimes even lessons.

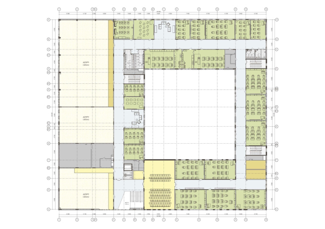
The windows of the first floor on the main façade belong to the parents’ cafeteria, separated from the school premises by an access system. Next to it, there is a library that has its own individual exit into the courtyard – should such need arise, the library can also be shut out from the rest of the school for conducting public events, coaching seminars, book presentations and open readings in it. According to the architects and the school administration’s plans, the library must become the cultural “hub” of the entire neighborhood. Also, on the first floor, there is a FIFA-certified gym, a cafeteria, an open-space teachers’ common room, a cloakroom, a first-aid station, and a few rooms of computer science and technology.

Gymnasium A+, construction © Archimatika. Photograph © Alexander Angelovsky
Gymnasium A+, construction © Archimatika. Photograph © Alexander Angelovsky


Gymnasium A+, construction © Archimatika. Photograph © Alexander Angelovsky
Gymnasium A+, construction © Archimatika. Photograph © Alexander Angelovsky


Gymnasium A+, construction © Archimatika. Photograph © Alexander Angelovsky
Gymnasium A+, construction © Archimatika. Photograph © Alexander Angelovsky


Gymnasium A+, construction © Archimatika. Photograph © Alexander Angelovsky
Gymnasium A+, construction © Archimatika. Photograph © Alexander Angelovsky


Gymnasium A+, construction © Archimatika. Photograph © Alexander Angelovsky
Gymnasium A+, construction © Archimatika. Photograph © Alexander Angelovsky


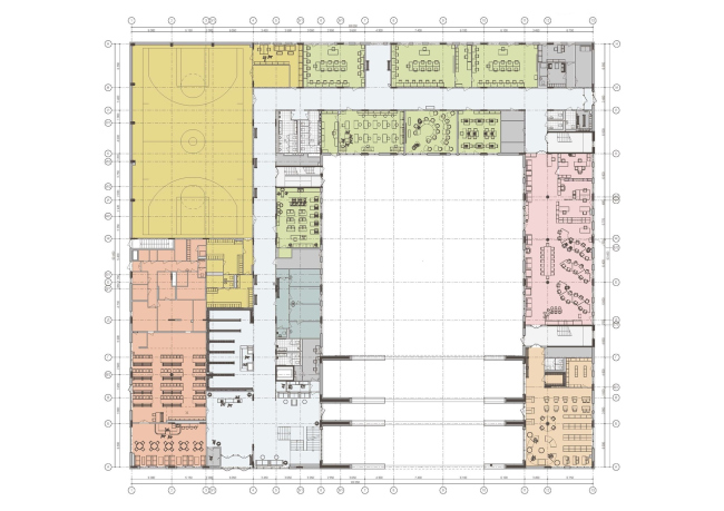
The second floor has an auditorium for 200 people in it, a gym, classrooms of mathematics, chemistry, physics and biology. One of the wings is occupied by the junior high – the third and fourth grade students will have a recreation area of their own – they will be able to roll about on the grass, hide in a “cabin” or swing from the lianas.

Gymnasium A+, construction. The interior of the playroom © Archimatika. Photograph © Alexander Angelovsky
Gymnasium A+, construction. The interior of the playroom © Archimatika. Photograph © Alexander Angelovsky


Gymnasium A+, construction © Archimatika. Photograph © Alexander Angelovsky
Gymnasium A+, construction © Archimatika. Photograph © Alexander Angelovsky


Gymnasium A+, construction © Archimatika. Photograph © Alexander Angelovsky
Gymnasium A+, construction © Archimatika. Photograph © Alexander Angelovsky


Gymnasium A+, construction © Archimatika. Photograph © Alexander Angelovsky
Gymnasium A+, construction © Archimatika. Photograph © Alexander Angelovsky


On the third floor, there is an art studio, a multifunctional black box rehearsal hall, and a lecture hall with 150 seats that can be easily turned into a movie theater. On all of the floors, the corridors create a closed-circuit quadrant around the classrooms and rehearsal halls. The interior design was developed in collaboration between Archimatika and Svoya Studio.

Gymnasium A+, construction © Archimatika. Photograph © Alexander Angelovsky
Gymnasium A+, construction © Archimatika. Photograph © Alexander Angelovsky


Gymnasium A+, construction © Archimatika. Photograph © Alexander Angelovsky
Gymnasium A+, construction © Archimatika. Photograph © Alexander Angelovsky


Gymnasium A+, construction © Archimatika. Photograph © Alexander Angelovsky
Gymnasium A+, construction © Archimatika. Photograph © Alexander Angelovsky


Gymnasium A+, construction © Archimatika. Photograph © Alexander Angelovsky
Gymnasium A+, construction © Archimatika. Photograph © Alexander Angelovsky


Gymnasium A+, construction © Archimatika. Photograph © Alexander Angelovsky
Gymnasium A+, construction © Archimatika. Photograph © Alexander Angelovsky


Gymnasium A+, construction © Archimatika. Photograph © Alexander Angelovsky
Gymnasium A+, construction © Archimatika. Photograph © Alexander Angelovsky


Gymnasium A+, construction © Archimatika. Photograph © Alexander Angelovsky
Gymnasium A+, construction © Archimatika. Photograph © Alexander Angelovsky


Gymnasium A+, construction © Archimatika. Photograph © Alexander Angelovsky
Gymnasium A+, construction © Archimatika. Photograph © Alexander Angelovsky


Gymnasium A+, construction © Archimatika. Photograph © Alexander Angelovsky
Gymnasium A+, construction © Archimatika. Photograph © Alexander Angelovsky


Gymnasium A+, construction © Archimatika. Photograph © Alexander Angelovsky
Gymnasium A+, construction © Archimatika. Photograph © Alexander Angelovsky


The school has an autonomous system of heating and air conditioning: underneath the football field, there are 170 wells for a geothermal heat pump. The street lights work on photovoltaic batteries; the parking lot has sockets for EV’s. There is also a small greenhouse and a vegetable garden on the territory of the gymnasium. According to the leader of the creative team Alexander Popov, the energy efficient solutions are not just a tribute to fashion. Since Ukraine raised the utility tariffs, such things have started bringing return on investment, and the demand for them is on the rise.

Gymnasium A+, construction © Archimatika. Photograph © Alexander Angelovsky
Gymnasium A+, construction © Archimatika. Photograph © Alexander Angelovsky


Gymnasium A+, construction © Archimatika. Photograph © Alexander Angelovsky
Gymnasium A+, construction © Archimatika. Photograph © Alexander Angelovsky


Gymnasium A+, construction © Archimatika. Photograph © Alexander Angelovsky
Gymnasium A+, construction © Archimatika. Photograph © Alexander Angelovsky


Gymnasium A+, construction © Archimatika. Photograph © Alexander Angelovsky
Gymnasium A+, construction © Archimatika. Photograph © Alexander Angelovsky


Gymnasium A+, construction © Archimatika. Photograph © Alexander Angelovsky
Gymnasium A+, construction © Archimatika. Photograph © Alexander Angelovsky


Gymnasium A+, construction © Archimatika. Photograph © Alexander Angelovsky
Gymnasium A+, construction © Archimatika. Photograph © Alexander Angelovsky




One of the main features of A+ that was implemented, among other things, by architectural means, is its openness. The lecture hall designed for a round of two or three classes hosts presentations by TV anchors, statesmen, artists, and athletes who lead lectures or do seminars. The auditorium, which, should such need arise, can be shut off from the other premises and used as a chamber theater, its sound and lighting systems conforming to the applicable standards. It is planned that this will be the place for performances given by the students and by the artist of the theater laboratory “Review”. The 60x40 meters football field will be used as the home arena by the youth football club “Vulkan”. In summer, the school will be turned into a summer camp full of various creative studios from the kids. The parents will be able to make use of the cafeteria, in the evenings – of the sports fields and the coach’s services; they can also sign up for the theater studio. The school also invites them to other activities and events – like the Vienna Opera Ball, for which you need to learn how to waltz and come up with costumes of your own design. The residents of “Comfort Town”, incidentally, get a little discount for their kids’ education.

***

Designing school buildings seem to become the by-specialty of Archimatika. This, although it makes perfect sense, is a rather rare case: like it was said above, schools and kindergartens are often designed by the architects simply because they have to be there, without getting the attention that they deserve. But then again, comparing private educational institutions and state-run ones is not quite a correct thing to do, the educational program of the latter still lagging behind the modern pedagogy.

In Kiev, Archimatika has designed and built the êîðïóñ Ïå÷åðñêîé ìåæäóíàðîäíîé øêîëû and the already-mentioned Academy of Modern Education A+ for younger kids. The company is planning to build its next school in “Fayna Town” residential area, then there will be a sports school in the housing complex “Respublika”, both under the brand of A+.
Gymnasium A+, construction. Crosswise sectioin view © Archimatika
Gymnasium A+, construction. Crosswise sectioin view © Archimatika
Gymnasium A+, construction. Longitudinal sectioin view © Archimatika
Gymnasium A+, construction. Longitudinal sectioin view © Archimatika
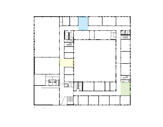
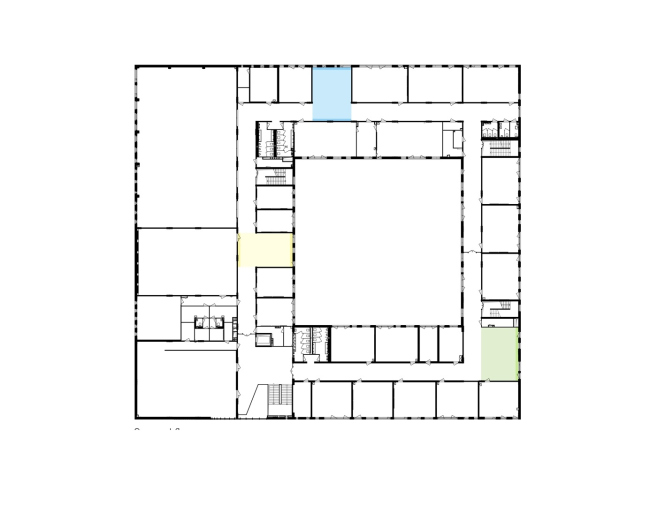
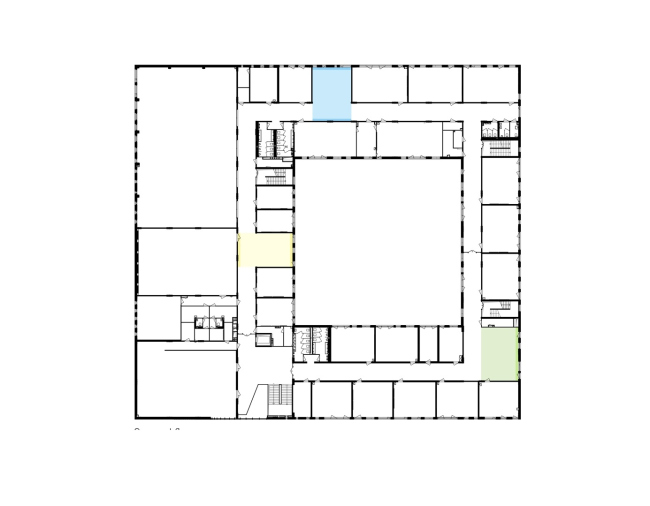
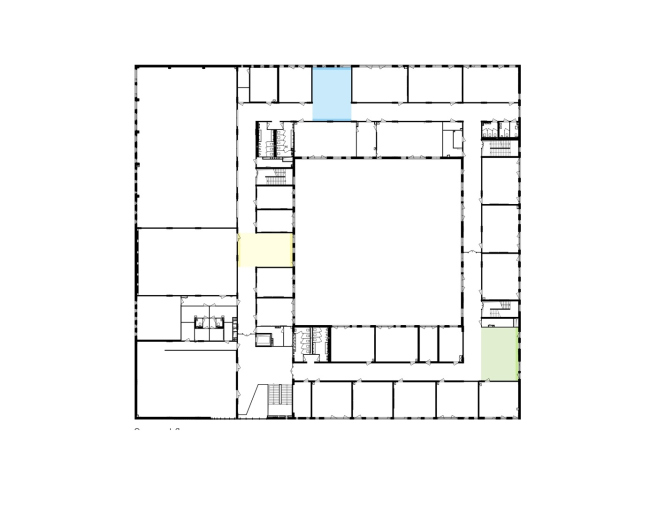
Gymnasium A+, construction. Plan of the 1st floor © Archimatika
Gymnasium A+, construction. Plan of the 1st floor © Archimatika
Gymnasium A+, construction. Plan of the 2nd floor © Archimatika
Gymnasium A+, construction. Plan of the 2nd floor © Archimatika
Gymnasium A+, construction. Plan of the 3rd floor © Archimatika
Gymnasium A+, construction. Plan of the 3rd floor © Archimatika
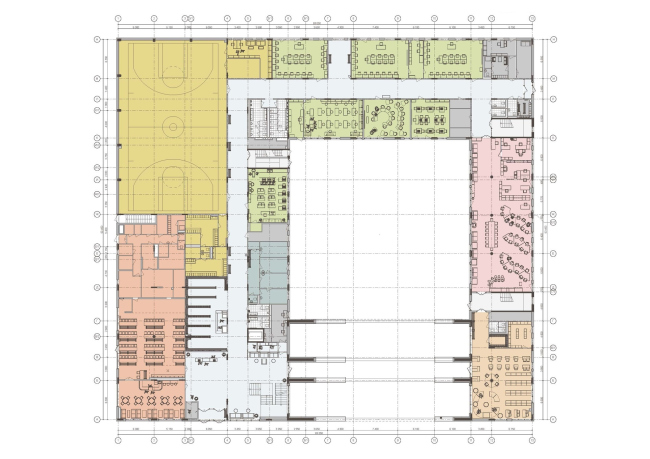
Gymnasium A+, construction. Layout of the 1st floor © Archimatika
Gymnasium A+, construction. Layout of the 1st floor © Archimatika
Gymnasium A+, construction. Layout of the 2nd floor © Archimatika
Gymnasium A+, construction. Layout of the 2nd floor © Archimatika
None
None