Published on Archi.ru (https://archi.ru)

10.04.2019

Sports and Organics

Alyona Kuznetsova
Studio:
A-Len

The smoothly flowing façade outlines of the Mercure Hotel in the center of Saransk, designed, among other things, to accommodate for sports teams, became the result of long discussions and searching for the right form, originally based on the architects’ desire to reinterpret the Mordovia national motifs.

Mercure Hotel. Photograph
Mercure Hotel. Photograph
Copyright: © Alexander Shemetov


The Mercure Hotel was built in the capital of Mordovia upon the initiative of Vladimir Gribanov, the President of KS Bank and also the Vice President of the Figure Skating Federation of Russia: he wanted to make a gift to the city that welcomes not only many tourists but also many athletes, this gift being a modern hotel capable of accommodating for guest teams with an appropriate level of hotel service. While the client and the architect were still trying to come to terms, discussing what the future hotel would look like, it turned out that Russia, and Saransk, among others cities, would be hosting the World Soccer Championship. This took the project to a whole new level: it aroused the interest of the head of the republic, a vacant land site for construction was found in the center of the city, an agreement was achieved with the hotel operator Accor Hotels and consultants from Arup company were invited.

Thanks to the initiative of the Arup experts, the architects were faced with a new task that they did not get to deal with for the entire 27-year period of their company’s existence – the building was engineered to maintain itself for a certain period of time in the case of a breakdown of all the main utility lines. “We installed a diesel generator that will make it possible to light and heat the hotel rooms for three days – the architects share – There is also a small stock of drinking water – 10 cubic meters”. Of course, this cannot ensure totally independent operation of the hotel like a space station but it sure can handle unexpected breakdowns of city infrastructure.

Mercure is situated in the very center of the city, at the crossing of Bolshevistskaya and Kommunisticheskaya streets, at an equal distance of 330 meters from the Church of Admiral Fedor Ushakov (who was canonized in 2000) and the bright-colored red-and-white sports complex Saransk Arena built in 2012. The hotel is surrounded on all sides by the city sites and buildings belonging to different architectural styles and epochs: the deep reddish-blue building of the music theater, the main post office with cathedral ambitions, and the building of Mordovia State University that looks very much like Moscow’s, but executed in alucobond. Headed eastward, the Kommunisticheskaya Street leads to yet another sports complex, the gigantic Mordovia Arena, built behind the Ansar River for the World Soccer Championship 2018. Therefore, for the guest athletes that come to town, the location of Mercure must be very convenient.

Mercure Hotel. Project 2014-2015
Mercure Hotel. Project 2014-2015
Copyright: © A.Len


Considering the diversity, not to say garishness, of the city context, the architects made a decision to refrain from responding to the surroundings – “no matter how hard you try, you just cannot please everyone”. At the same time, though, “according to their corporate rules, Mercure hotels must reflect the culture and history of their locations” – Sergey Oreshkin shares. Therefore, the search for the right set of images, based on meditation on the national motifs of Mordovia, was hard and took quite a long time, even though the idea of a wavy façade, as we can see from the sketches, came very early on.

Mercure Hotel
Mercure Hotel
Copyright: © A.Len


Mercure Hotel
Mercure Hotel
Copyright: © A.Len


From some of the sketches, one can see that the façade could have ended up looking like a piece of red-and-white cross-stitching work or a bright smooth surface but at the board meetings with the head of republic they asked the architects to reduce the expressiveness a little.

Mercure Hotel. Project.
Mercure Hotel. Project.
Copyright: © A.Len


The black-and-white version did not satisfy the client either, and the architects ultimately settled on a combination of blue and white – the blue color reflecting, even if in a richer manner, the postmodernist building of the post office across the street, which still can be interpreted as a way of contextual reaction to the surroundings. The two buildings took on the role of propylaea of sorts, even though, apart from the blue color and similar height (a little under 50 meters, which is the allowed maximum for this location) they do not have anything in common – in fact, they belong to two completely different architectural styles and epochs.

Anyway, after numerous board meetings and revisions of the project, the motif of the traditional Mordovia ornaments transformed into small-sized diagonal streaks running between white horizontals. The ornamental mesh, which was supposed to be applied over the white surfaces, turned out to be prohibitively expensive and also had to go. A similar technique was successfully used by A.Len in the Russian Center of Science and Culture in Kabul, only in that case the architects covered the aluminum façades with ornaments characteristic for the white-stone Russian architecture.

Which, by the way, is a pity because the national pattern of rhythmically grouped quatrefoils would have made the façades multidimensional, both in terms of plastique and meaning, which is quite noticeable, for example, in the pictures of night backlights that display the lights of the ornaments running over the façade strips and looking like some modern electronic characters but based on a repetition of the traditional motif.

Mercure Hotel. Project. The first version of backlighting from “Martin Light”
Mercure Hotel. Project. The first version of backlighting from “Martin Light”
Copyright: © A.Len


Mercure Hotel. Project. The second version of backlighting from “Martin Light”
Mercure Hotel. Project. The second version of backlighting from “Martin Light”
Copyright: © A.Len


Mercure Hotel. Project. The second version of backlighting from “Martin Light”
Mercure Hotel. Project. The second version of backlighting from “Martin Light”
Copyright: © A.Len


But then again, in the case of the Mercure building, the architects were able to keep the ornaments on the level of more localized and individual perception of the pedestrian or the guest’s: now we are seeing the ornaments on the pylon of the entrance group and in the print of the windows of the first floor.

Mercure Hotel. Photograph
Mercure Hotel. Photograph
Copyright: © Alexander Shemetov


Mercure Hotel
Mercure Hotel
Copyright: © A.Len


Mercure Hotel
Mercure Hotel
Copyright: © A.Len


On the other hand, the national decorative theme got reflected in the interiors of the hotel’s public spaces designed by Sundukovy Sisters, Russia’s only design studio that has a license for doing interior design for the Accor chain. The architects say that their chief source of inspiration was the museum of the Mordovian sculptor Stepan Erzya, also situated two steps away from Mercure. The design and decor have a lot of wood in them, the main colors being green and brown, just like the museum’s. The foyer is decorated with wooden structures of the local artisans and the pictures from the Mordovian mythology.

Mercure Hotel, interior design
Mercure Hotel, interior design
Copyright: © Sundukovy sisters. Photo courtesy by A.Len


Mercure Hotel, interior design
Mercure Hotel, interior design
Copyright: © Sundukovy sisters. Photo courtesy by A.Len


As for the façades of the building that are visible from a distance, what is left of the national Mordovian motifs in them is only the slim diagonal lintels between the corbel courses. Together they form a flexible framework whose sturdy curves outline the volume, rounding the corners and forming wave-shaped transitions.

For a person who is familiar with the context of modern architecture, Saransk’s Mercure will immediately bring up associations with Moscow’s famous Dominion tower, designed by Zaha Hadid. There are lots of similarities there, just as there are differences. What makes the two buildings look similar is the pattern of white stripes that is generally inherent in the modernist architecture, and the diagonals. But let us remember at this point that the search for the imagery of Saransk’s Mercure started with the “pleated” wavy stripes of the floors. The hotel design by Sergey Oreshkin is more compact, more vertical, and its outline is molded as being denser. The references to the business center designed by Zaha Hadid are pretty obvious yet they lie in the realm of the overall trend and the architects' urge to create a highly contemporary nonlinear shape. “Yes, I wanted to build here in the middle of Saransk a piece of bionic architecture, noticeable and completely belonging with our time” – Sergey Oreshkin says. 

The agile sculptured form is by no means cast in concrete but is realized by the wireframe and monolith method, with brick filling and aluminum sheet coating from a Russian-made composite material. At night, the building’s “power lines” are highlighted by diode backlights.

Mercure Hotel. Photograph
Mercure Hotel. Photograph
Copyright: © Alexander Shemetov


Mercure Hotel. Photograph
Mercure Hotel. Photograph
Copyright: © Alexander Shemetov


Mercure Hotel. Photograph
Mercure Hotel. Photograph
Copyright: © Alexander Shemetov


Mercure Hotel. Photograph
Mercure Hotel. Photograph
Copyright: © Alexander Shemetov


The building’s podium, which is marked by a diagonal white stela next to the entrance, is perceived as a large and broad pedestal that the building rests upon. It hosts a lobby, a restaurant and a bar, as well as a conference hall, a fitness center with a small spa, and the hotel management offices. The hotel’s seven floors are grouped into three layers separated by two dividing strips and slightly shifted in different directions – they serve as a metaphor for the three steps of the winner pedestal. The outstanding parts of the “band” host the premium-class suites – and the volumetric structure of the building reflects rather accurately its inner structure.


The hotel has 115 rooms in it, and, thanks to the nuances of the outlines of the outside walls and the differently sized windows, the floor plans are also pretty different: each room got an individual design of its own, also with “flowing” elements: “the work table flows into the head of the bed, which bleeds into part of the wall with a built-in bedside light” – Sergey Oreshkin explains. The smoothly flowing lines make a sharp contrast with the ornaments of triangles, squares, and hexagons on the floor, walls, and tiles. The hotel is a four-star one: it lacks two formal properties to become 5 stars: a swimming pool and a more capacious conference hall. 

According to Sergey Oreshkin, the end result is very close to the original 3D renders, and the architect is satisfied with his working with the client and with the end result as well: “We ended up getting noticeable architecture that is hot on Instagram and Pinterest, and people even ask, surprised: is this really Russia? We have three such projects – the Badminton Sports Complex, the SKA Hockey Arena and now Mercure – the brightest hotel we ever designed and built”.
Mercure Hotel. Facade
Mercure Hotel. Facade
Copyright: © A.Len
Mercure Hotel
Mercure Hotel
Copyright: © A.Len
Mercure Hotel. Master plan
Mercure Hotel. Master plan
Copyright: © A.Len
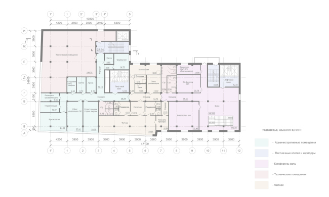
Mercure Hotel. Plan of the 1st floor
Mercure Hotel. Plan of the 1st floor
Copyright: © A.Len
Mercure Hotel. Plan of the 2nd floor
Mercure Hotel. Plan of the 2nd floor
Copyright: © A.Len
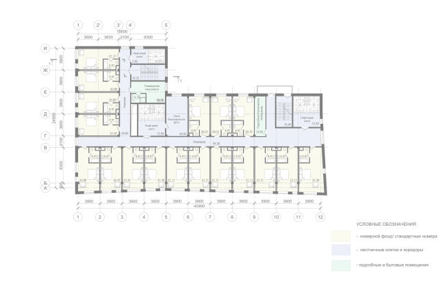
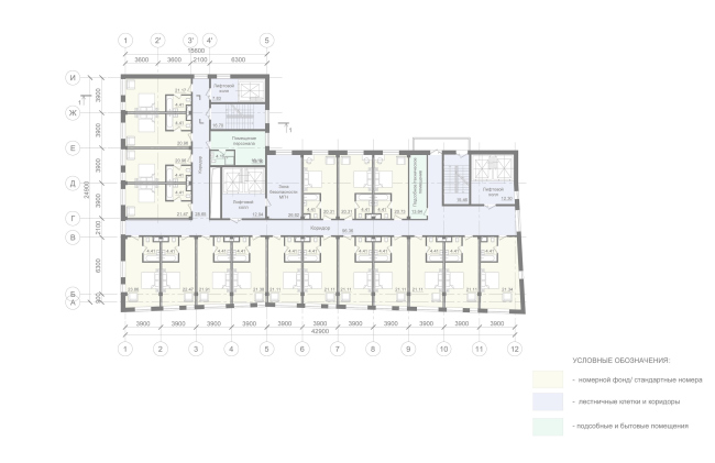
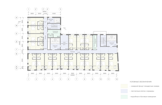
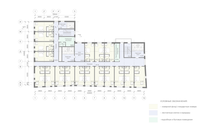
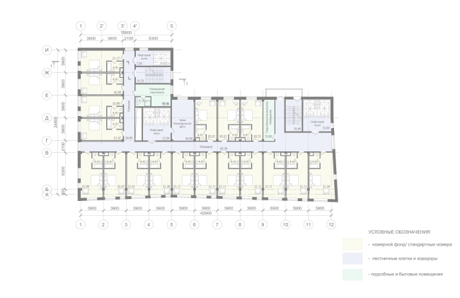
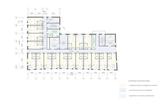
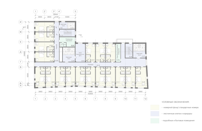
Mercure Hotel. Plan of the 3-9 floor
Mercure Hotel. Plan of the 3-9 floor
Copyright: © A.Len
Mercure Hotel. Section view 2
Mercure Hotel. Section view 2
Copyright: © A.Len
Mercure Hotel. Section view 1
Mercure Hotel. Section view 1
Copyright: © A.Len