Published on Archi.ru (https://archi.ru)

17.10.2018

​Sky. Circles. Syncopes.


Architect:
Andrey Romanov
Ekaterina Kuznetsova
Studio:
ADM

The recently built housing complex designed by ADM architects vividly shows how to make a whole city block out of but three towers, how to turn something that’s virtually flat into something volumetric, make houses of the same height look like something diverse, houses of odd height – like something uniformed, and integrate a maximum amount of sky and verdure into the environment that you create.

PerovSky housing complex © ADM
PerovSky housing complex © ADM


The new residential complex PerovSky built by MR Group developers is precisely the case when being located far away from the main transport arteries is definitely an advantage. Yes, you’ll have to walk a good 15 minutes to the Perovo metro station but the neighborhood literally swims in verdure: the Terletsky Park with its ponds and 300-year-old oaks is but a two-minutes’ walk away, on the other side lies the Izmailovsky Park, and on the third side lies the territory of the local clinic turned to this territory with its yard, which is essentially also a park.

Multifunctional building with residential and other kinds of premises on the Shosse Entuziastov. Master plan. Project, 2015 © ADM
Multifunctional building with residential and other kinds of premises on the Shosse Entuziastov. Master plan. Project, 2015 © ADM


At the same time, the yard and the street spaces are clearly separated – the ADM leaders Andrey Romanov and Ekaterina Kuznetsova are convinced that we as human beings are a lot more comfortable living in such a format. The Moscow government actively supports such city block division technique, meaning, the technique of building a closed-contour of houses of approximately equal height. However, the authors claim that if this height exceeds 13 floors, the feeling of comfort and proportion evaporates, the sky becomes scarce, and the houses oppressive. It’s a lot more honest in this case to build a composition of towers positioned in a freehand fashion – in this particular project there are three of them 23 stories each – and mark the border of the “private” and “public” spaces with a common podium.

PerovSky housing complex © ADM
PerovSky housing complex © ADM


PerovSky housing complex © ADM
PerovSky housing complex © ADM


This way, in the middle of the PerovSky land site, with its face to the Terletsky Park, appeared the first comparatively private yard that is also vehicle-free: leaving one’s car in the underground parking garage beneath this same yard, one will need to cross it in order to get from the central lobby into one of the two further towers. And as for the large public area, it is organized precisely next to the lobby: this is the point, to which the architects oriented the entrances of the podium’s premises designed to host shops, service centers and cafés. An individual entrance was also given to the inbuilt kindergarten. Its own playgrounds and sports fields on the other side of the complex form yet another functional block. And, if anything, the sky is something that PerovSky has in abundance: it can be seen both from the sunlit yard on the ground level and from the residential floors soaring above the trees. Even the towers proudly bear the names of constellations: Pegasus, Phoenix, and Aquarius.

PerovSky housing complex © ADM
PerovSky housing complex © ADM


By the way, the articulated height set a certain bar for the “fifth façade”, i.e. the podium. And, although the architects were ultimately unable to make its roof green as they had originally planned, the use of tiles and pebbles in the decoration, and, more importantly, camouflaging all of the utility lines with smart-looking semitransparent cylinders, turned the flat surface of the podium into a natural part of the landscape.

PerovSky housing complex © ADM
PerovSky housing complex © ADM


To a large extent, achieving this effect was possible thanks to the fact that the landscapes surrounding their housing complexes is something that ADM always design themselves, not trusting anyone else with this work. And the circles (we’ll mention in passing that this was the term that Plato used for all heavenly bodies) – sometimes forming complex molecular structures, sometimes running away in all directions from tree trunks like circles on the water from a thrown rock, sometimes covering the ventilation shafts, sometimes growing like green hills from the ground, and sometimes “cutting” into the podium line – turned out to be that simple, yet effective stylistic device that formed the harmonious living environment so pleasing to the eye (and all of the other human senses). As a bonus, the curvilinear “cuts” in the stylobate visually compensated for its length and generated apartments with unconventional floor plans: here, the second floor ultimately became the residential one. Generally, the apartments range from 32 square meter studios to 5-room apartments with an area of 172 square meters.

PerovSky housing complex © ADM
PerovSky housing complex © ADM


PerovSky housing complex © ADM
PerovSky housing complex © ADM


PerovSky housing complex © ADM
PerovSky housing complex © ADM


PerovSky housing complex © ADM
PerovSky housing complex © ADM


PerovSky housing complex © ADM
PerovSky housing complex © ADM


PerovSky housing complex © ADM
PerovSky housing complex © ADM


As for the vertical planes, the “diversity” – which has virtually already become one of the common decencies of modern architecture – is achieved by the architects by using quite different techniques. As a general rule, designing such middle-class complexes, architects settle for various types of decoration materials without changing the façade patterns. However, what made ADM one of the leading Moscow firms specializing in designing housing complexes, is the fact that it works with materials on a much subtler level, and even “flat” architecture takes on an extra dimension in their hands. In one of the light towers, at the expense of the gray inserts, the contours of the windows look unpredictable as if they were shifted off-center, even though all of the apartments feature the same ceilings 3 meters high.

PerovSky housing complex © ADM
PerovSky housing complex © ADM


PerovSky housing complex © ADM
PerovSky housing complex © ADM


The two other towers sport corner windows and specially designed metallic bars: at some places they stick to the wall like little decorative balconies, and at some places stand out like real balconies – but in reality they are essentially screens for the air conditioning units. The Klinker brick “makes a turn” going inside the windows – and this also makes the façade surface look deep and volumetric. And as for the façades of the stylobate, they are articulated by vertical wooden lamellae – all standing at a different distance from one another, like tree trunks in some wild-growing coppice – like in the Terletsky Park, for that matter. And all of this ostentatious lack of rhythm clearly shows the virtuoso art of executing architectural syncopated “jazz”, in which each seemingly improvised passage is carefully calculated and studiously rehearsed.

But then again, we cannot entirely rule out the possibility that the main melody was overheard from the Perovo skies.
PerovSky housing complex © ADM
PerovSky housing complex © ADM
PerovSky housing complex © ADM
PerovSky housing complex © ADM
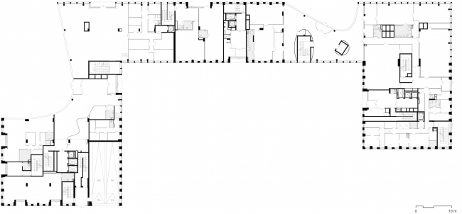
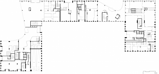
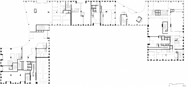
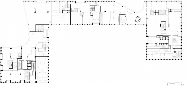
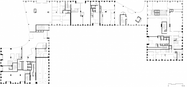
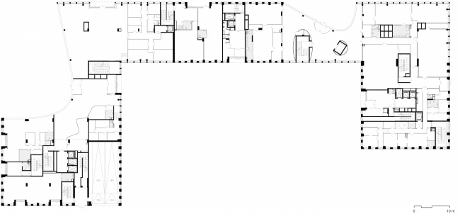
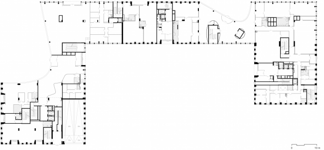
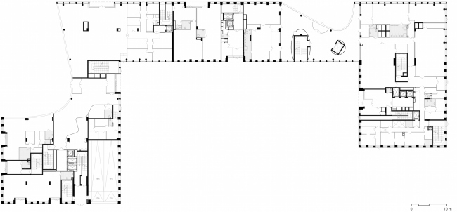
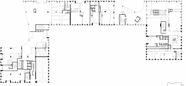
Multifunctional building with residential and other kinds of premises on the Shosse Entuziastov. Plan of the first floor. Project, 2015 © ADM
Multifunctional building with residential and other kinds of premises on the Shosse Entuziastov. Plan of the first floor. Project, 2015 © ADM
Multifunctional building with residential and other kinds of premises on the Shosse Entuziastov. Plan of the typical floor Project, 2015 © ADM
Multifunctional building with residential and other kinds of premises on the Shosse Entuziastov. Plan of the typical floor Project, 2015 © ADM