|
Agence d’Architecture Anthony Bechu & Associés and SYNCHROTECTURE headed by Anton Barklyansky developed a reconstruction project for the Alexander Dumas French Lyceum in the Milyutinsky Alley. The authors’ main idea is all about connecting nations and epochs.
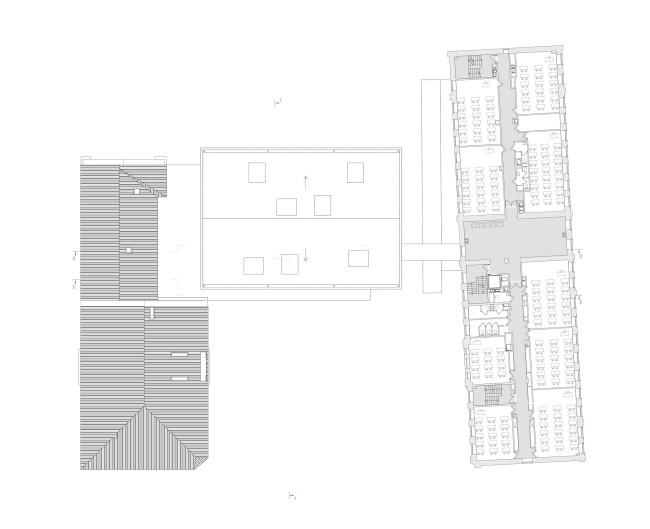
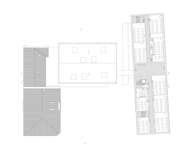
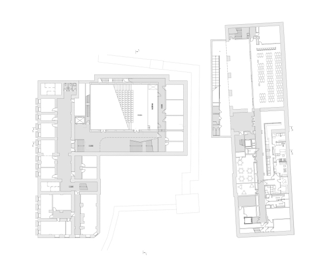
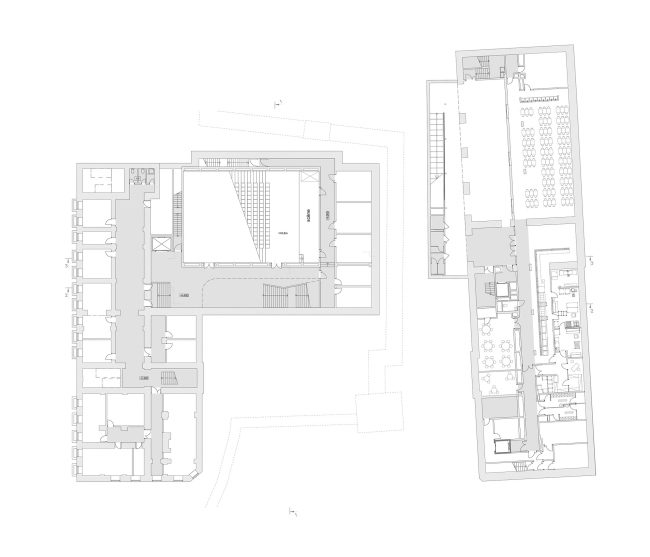
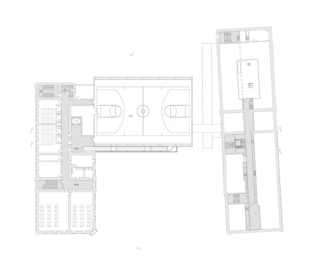
The fragment of Moscow that lies between the Milyutinsky Alley and the New Lubyanka, where the Lyceum is situated, happens to be the most “French” place of the nation’s capital: it has belonged to the local French community since the XVII century. In the times of Catherine of Russia, a St. Louis Catholic Church was built here to be replaced in 1827 by the current empire-style temple designed by Domenico Gilardi. In 1885, the catholic church saw the construction of a three-story St. Dorothea orphanage, while in 1899 Oscar Didio erected a four-story brick building for the St. Philip Neri non-classical secondary school for boys and St. Catherine girl’s high school. It is this specific building that currently hosts the Alexander Dumas Lyceum, which was reconstructed in 2004 by HUBERT & ROY Architects who added a glass buildup to it; now it has been decided to also expand the building: it has gotten the three-story building of the former orphanage that was handed over to the Lyceum, and a new building as well.
 The concept of expanding the French Alexander Dumas Lyceum in the Milyutinsky Alley © SYNCHROTECTURE in collaboration with Agence d’Architecture A.Bechu and SETEC Inginiring
In order to build this ensemble, the client, AEFE – the Agency for French Education Abroad – has organized a competition. For the second round, four consortiums were shortlisted, among these being the Agence d’Architecture Anthony Bechu & Associés, their partners – Anton Barklyansky’s SYNCHROTECTURE, and SETEC Inginiring. The project developed by the consortium won the first place at the competition organized by the State Department for Town Planning Policy Mosstroyinform in the “Past Present” nomination.
The new building with its glass atrium is ostentatiously contrastive to the old brick houses, which is one of Anton Barklyansky’s signature techniques. “Working in a historical environment is an exciting challenge because even if the buildings are neutral from the architectural standpoint, there is still a feeling that the builders made them with love setting the standards that you are to live up to” – Anton says. “Besides, old architecture subliminally creates a feeling of safety and security; it says that the past does exist, and you have something to lean on” – adds Marina Bukina, the partner of SYNCHROTECTURE.
The concept of expanding the French Alexander Dumas Lyceum in the Milyutinsky Alley © SYNCHROTECTURE in collaboration with Agence d’Architecture A.Bechu and SETEC Inginiring
A glass façade that stands out from the black framework highlights the brick walls of the historical buildings. The absorbing black color of the top tier was something that Pablo Lorenzino, the partner of AAAB insisted upon – in the evenings, the charcoal-black top will completely merge with the sky, creating a mesmerizing effect.
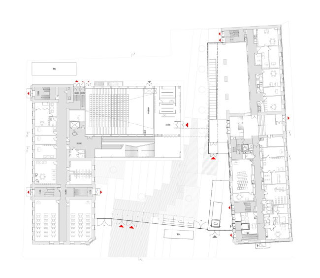
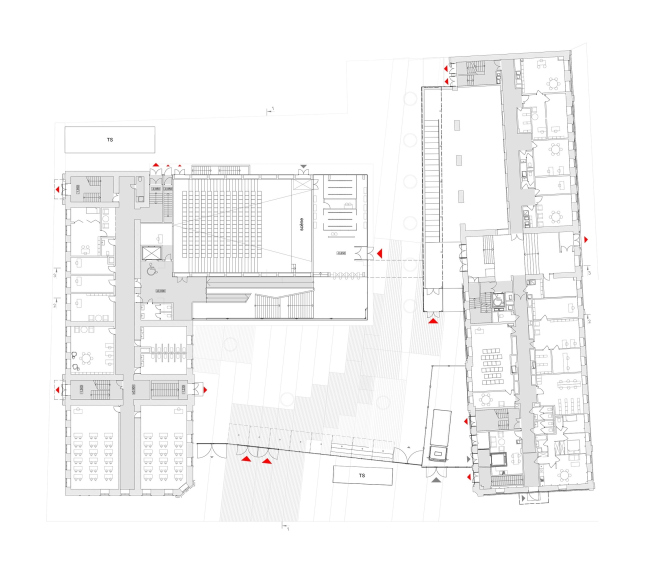
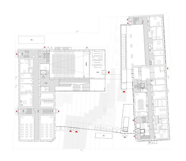
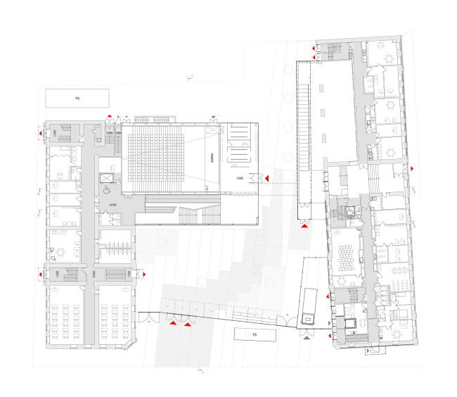
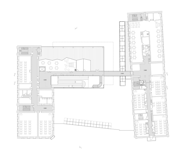
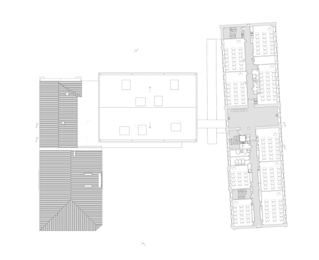
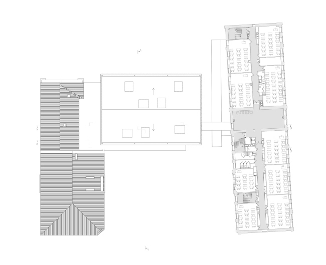
The new building of the Lyceum changes the organization of the territory, having an impact on the pattern of the pedestrian streams. Formerly, the parents’ entrance to the Lyceum was situated in the Milyutinsky Alley, while the students’ entrance was situated at the small spot between the church and the Didio house. According to the project, the new building will get a spacious paved yard in front of it, flanked from two sides by textured brick façades. It is here that the main entrance will appear. Across from this yard, on the opposite side of the alley, lies the park of the St. Louis church – a free space receding into the depth and away from the street, that yields some view. The architects deliberately designed the new yard as facing that park, shifting the main entrance off center so as to make sure that one’s gaze will not be stopped by a blind wall. Although formally the territory of the Lyceum is a restricted area, the glass fence will make the complex visually transparent.
The concept of expanding the French Alexander Dumas Lyceum in the Milyutinsky Alley © SYNCHROTECTURE in collaboration with Agence d’Architecture A.Bechu and SETEC Inginiring
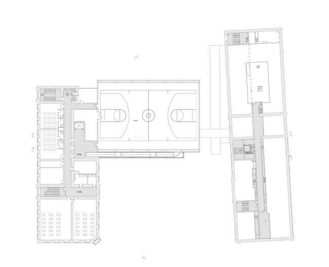
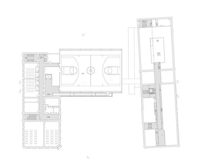
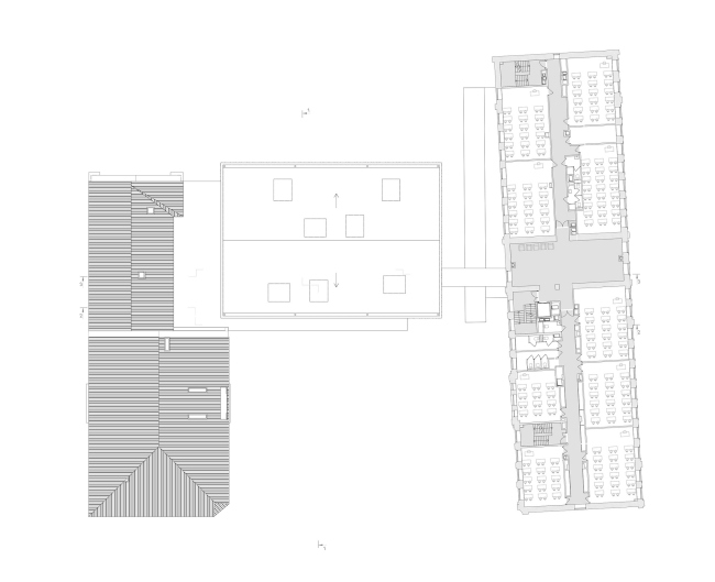
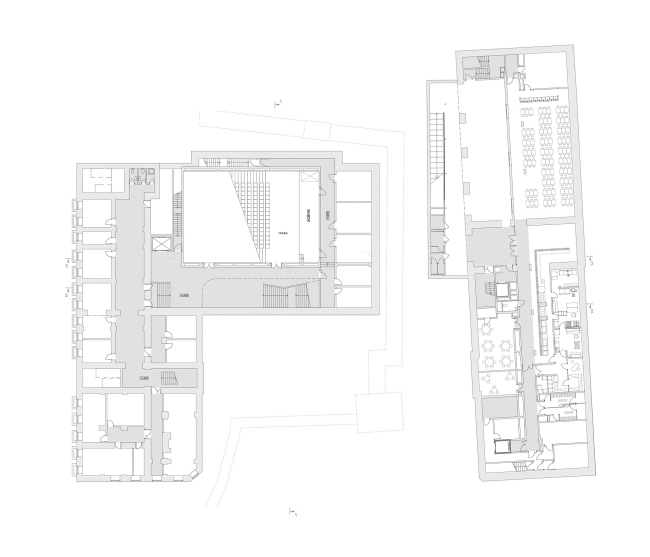
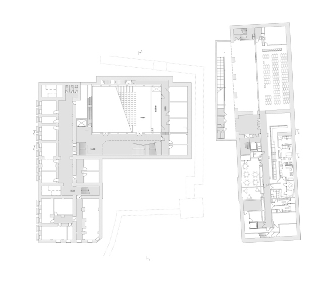
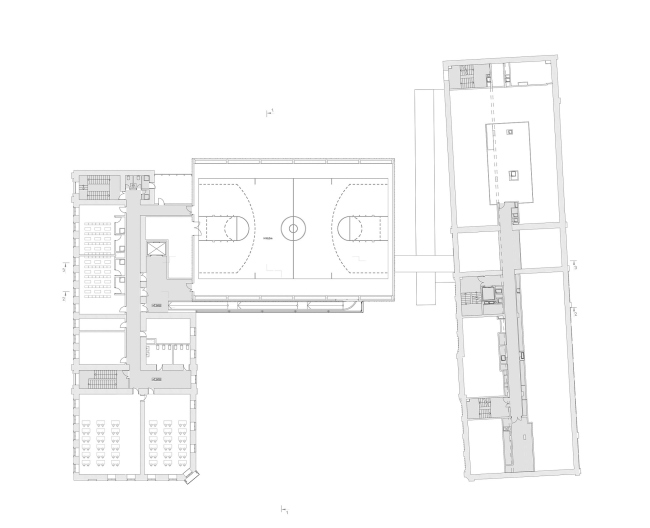
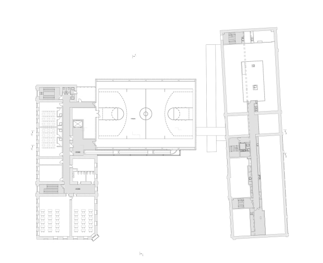
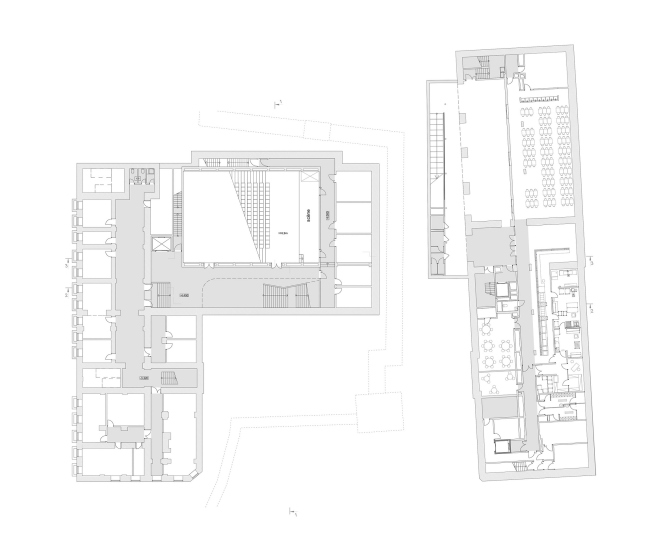
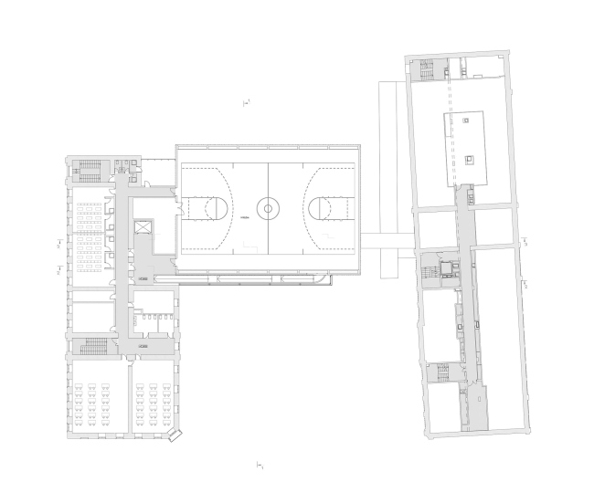
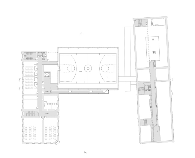
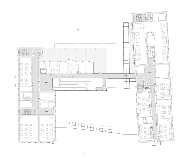
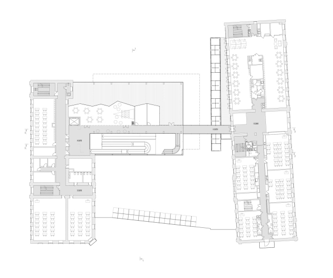
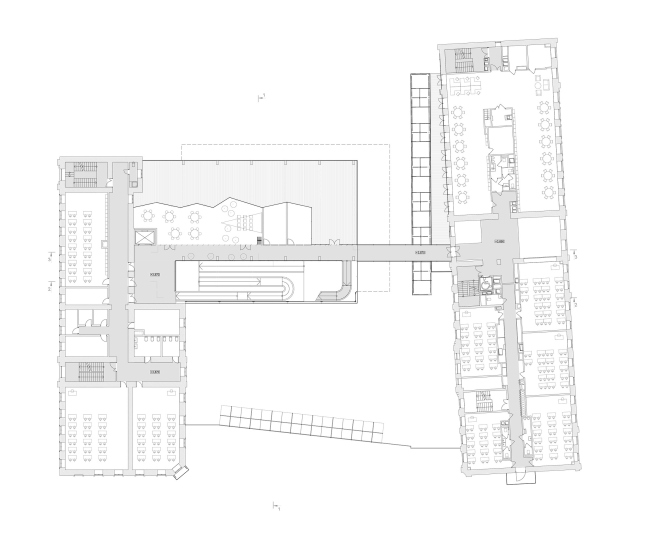
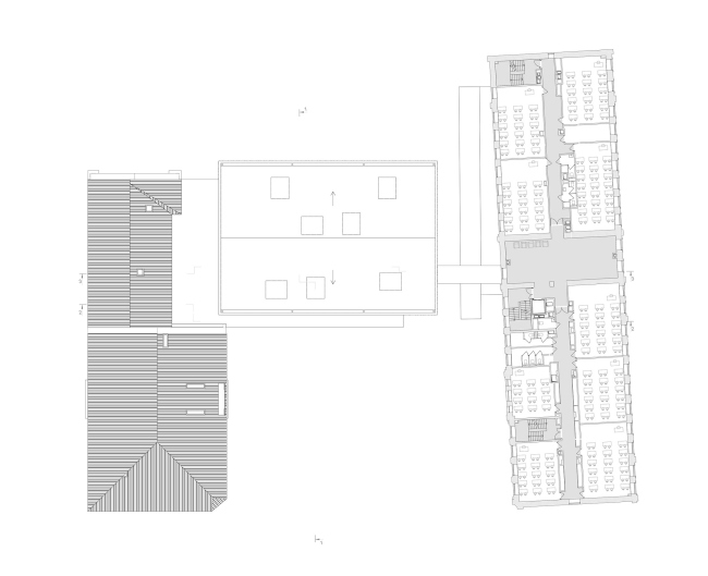
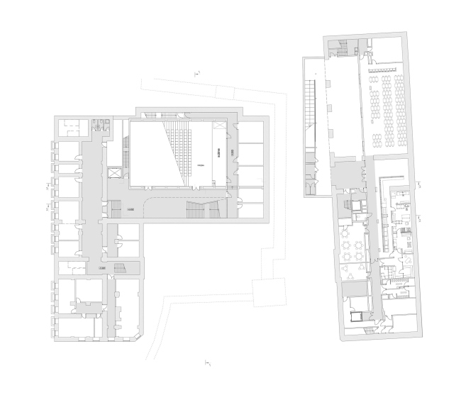
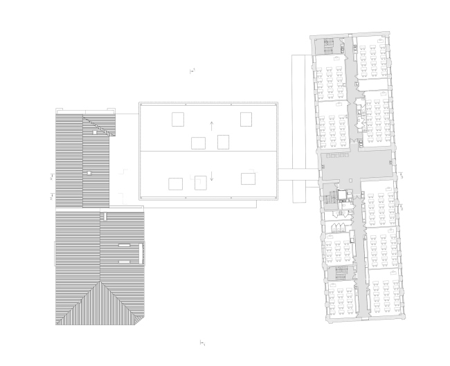
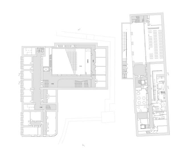
The architects took great care to write detailed scenarios for each of the three buildings. The new building was to contain two major volumes – a gym and an auditorium. The architects came up with an ingenious solution of placing the gym in the overhanging black box on the top level, while the multifunctional auditorium is partially sunk into the ground.
The concept of expanding the French Alexander Dumas Lyceum in the Milyutinsky Alley © SYNCHROTECTURE in collaboration with Agence d’Architecture A.Bechu and SETEC Inginiring
The gap between the gym and the auditorium in the attic floor was turned into a semi-open public space – a so-called preau, or “schoolyard”. This made it possible to eliminate the possibility of the gym noise leaking through into the auditorium.
The concept of expanding the French Alexander Dumas Lyceum in the Milyutinsky Alley © SYNCHROTECTURE in collaboration with Agence d’Architecture A.Bechu and SETEC Inginiring
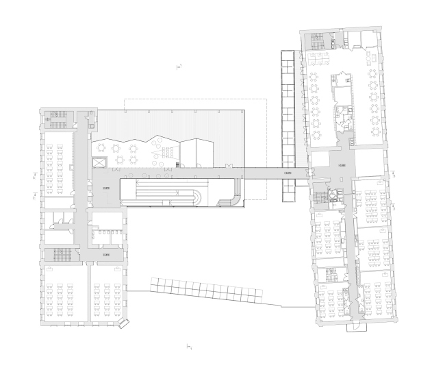
The preau is fully covered by a roof; the students will be able to go there during the recesses. One of its parts can be conditionally considered as “outdoors”, while the other one is the “indoors” hidden behind the fence that can be opened in the warm weather. This is not just a space for the children’s recreation but also a link that ties the three buildings together into a single system. This axis has all of the public premises strung upon it: parents-teachers meeting rooms, a library, and management offices.
The concept of expanding the French Alexander Dumas Lyceum in the Milyutinsky Alley © SYNCHROTECTURE in collaboration with Agence d’Architecture A.Bechu and SETEC Inginiring
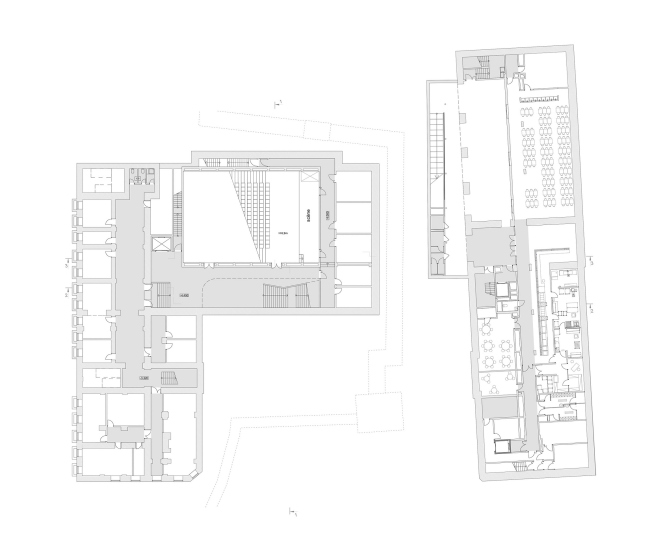
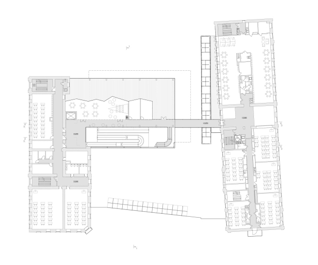
Yet another interesting idea, functional and elegant at the same time, is the ramp that runs alongside the staircase. The ramp helps to separate the streams of people: the events that take place in the auditorium will not get in the way of the educational process. The ramp connects all the levels and runs essentially in the foreground, immediately behind the glass façade. The people walking through the ramp are clearly seen from the street – so it turns into something like an urban theater performance (or, a “spectacle”, to user the more accurate philosophical term, more of which below) – the whole three-tier interior is translucent, and the whole structure of the building is clearly seen: one can easily get his bearings around the building while still in the yard. The ramp and the preau are the places for meeting and communication. When one looks from the inside, however, he at once sees the contrast with the city surroundings. The classrooms, on the other hand, are situated in the brick buildings, safely secured from the street noise.
The concept of expanding the French Alexander Dumas Lyceum in the Milyutinsky Alley © SYNCHROTECTURE in collaboration with Agence d’Architecture A.Bechu and SETEC Inginiring
The concept of expanding the French Alexander Dumas Lyceum in the Milyutinsky Alley © SYNCHROTECTURE in collaboration with Agence d’Architecture A.Bechu and SETEC Inginiring
The concept of expanding the French Alexander Dumas Lyceum in the Milyutinsky Alley © SYNCHROTECTURE in collaboration with Agence d’Architecture A.Bechu and SETEC Inginiring
The concept of expanding the French Alexander Dumas Lyceum in the Milyutinsky Alley © SYNCHROTECTURE in collaboration with Agence d’Architecture A.Bechu and SETEC Inginiring
The concept of expanding the French Alexander Dumas Lyceum in the Milyutinsky Alley © SYNCHROTECTURE in collaboration with Agence d’Architecture A.Bechu and SETEC Inginiring
The concept of expanding the French Alexander Dumas Lyceum in the Milyutinsky Alley © SYNCHROTECTURE in collaboration with Agence d’Architecture A.Bechu and SETEC Inginiring
The concept of expanding the French Alexander Dumas Lyceum in the Milyutinsky Alley © SYNCHROTECTURE in collaboration with Agence d’Architecture A.Bechu and SETEC Inginiring
The concept of expanding the French Alexander Dumas Lyceum in the Milyutinsky Alley © SYNCHROTECTURE in collaboration with Agence d’Architecture A.Bechu and SETEC Inginiring
The old building was also re-programmed: the architects revised the organization of the first floor and widened the canteen on the minus first floor. In the former orphanage, they changed the interior, at the same time keeping the bearing structures. They also opened the clogged up windows on the side façade, and the areaways of the semibasement, in order to let more light in. The yard essentially consists of two parts – a “court of honor” in front of the new building, and a small yard behind it. The overpass and the preau are raised to the second level so that they do not spoil the connection between the two parts.
The concept of expanding the French Alexander Dumas Lyceum in the Milyutinsky Alley © SYNCHROTECTURE in collaboration with Agence d’Architecture A.Bechu and SETEC Inginiring
The project of the Dumas Lyceum is a very French solution. The expertise of working with glass, and the understanding of its nature is characteristic of many French architects. In Paris, even some condominium fence can be a seamless glass wall five meters high. Jean Nouvel in the Parisian Maison Cartier (1996) created a chain of reflections of trees: the gardens show through the glass plates of the façade, and the gardens in front of it are reflected in the glass.
The French Lyceum also has a garden next to the temple across the street. And the court of honor with a glass fence is a charming island of France in the heart of Moscow.
None
Like we said, the court of honor has a glass fence running in front of it. Behind it, a scene unfolds that the passersby can watch. This scenario is also very French in its character: even if we do not delve too deep into the idea of the society of the spectacle introduced by the French philosopher Guy Debord as a model of the modern world, the idea of getting your life exposed, like in the movies, is a very recognizable feature of the French culture. In spite of the fact that this specific school is a members-only institution, such elegant solution makes it possible to include it into the urban fabric and make our city just a little bit more beautiful.
All the more so because next to it runs the Myasnitskaya Street that is “occupied” by the Higher School of Economics and a multitude of cafés and bookstores – virtually a university campus that smoothly gives was to the Pokrovka Street, just as refined. So, the context is quite favorable.
|