Published on Archi.ru (https://archi.ru)

11.07.2018

​A Typical Anomaly

Elena Petukhova
Architect:
Andrey Gnezdilov
Alexander Skokan
Studio:
Ostozhenka Bureau

An unusual-looking façade of glass lamellae brought the Ostozhenka project of a business center located just inside the Garden Ring a well-deserved victory at ArchGlass 2018.

Administrative and business building in the Myasnitsky Drive. The facade along the Sadovo-Spasskaya street. Night view © Ostozhenka
Administrative and business building in the Myasnitsky Drive. The facade along the Sadovo-Spasskaya street. Night view © Ostozhenka


The history of the project of the business center that completes the perimeter of the triangular city block lying between the Sadovaya-Spasskaya and Myasnitskaya streets, and a namesake drive, could be called a typical case for the Moscow design project practice, had it not been for a number of anomalous circumstances. Due to the fact that the block borders on one of the nation’s capital main thoroughfares, the value of the land site, which could host the “golden” offices for rent, turned out to be too high to give it away for a park to be made here. This is how a 0.02-hectare land site, anomalous in its size and potential, came about. In 2014, the company “Vector” bought it out from the Moscow government, and ordered a project from the studio of Sergey Tkachenko in “Mosproject-5”, which designed a rectangular five-story building 24.4 meters high with a couple of underground parking garage levels equipped with an automated parking management system. However, the façade design options, radical both in color and context, with textured stone coating, were not approved by the city’s architectural council. The developer then turned to the firm “Ostozhenka” with a task of improving the project.

Administrative and business building in the Myasnitsky Drive. Location plan.
Administrative and business building in the Myasnitsky Drive. Location plan.


Administrative and business building in the Myasnitsky Drive. The situation and the volume of the future building.
Administrative and business building in the Myasnitsky Drive. The situation and the volume of the future building.


First of all, the architects had to consider the geographical factor. The land site is situated on the inside of the Garden Ring; the main façade of the future building being turned north-northeast. It’s going to be in the shade almost the whole day, the sunshine only falling on it in the morning and in the evening in the early summer, and then only with slanted rays, casting sharp shadows from every protrusion. This peculiarity was not taken into account in the previous versions of the façade, and Andrew Gnezdilov would go to photograph the morning sunshine on the façades of the neighboring houses in order to get the idea of what impact it would have on the future building. 

Administrative and business building in the Myasnitsky Drive. Perspective down the Sadovo-Spasskaya Street © Mosproject-5
Administrative and business building in the Myasnitsky Drive. Perspective down the Sadovo-Spasskaya Street © Mosproject-5


Administrative and business building in the Myasnitsky Drive. The facade along the Sadovo-Spasskaya Street. Sketch by Alexander Skokan © Ostozhenka
Administrative and business building in the Myasnitsky Drive. The facade along the Sadovo-Spasskaya Street. Sketch by Alexander Skokan © Ostozhenka


Furthermore, one could not ignore the building’s surroundings. Within a 400 meters radius of the building, there are several architectural masterpieces: the Krasnye Vorota high-rise designed by Aleksey Dushkin, the southern pavilion of the “Krasnye Vorota” metro station designed by Nikolai Ladovsky, the Narkozem building designed by Aleksey Shchusev, and, of course, the Tsentrsoyuz building designed by Le Corbusier himself. In their initial sketches, the team of Ostozhenka tried to reflex the motifs of the neighboring architectural monuments, using similar materials and colors, but they soon came to a conclusion that the very approach to designing the image of this “strange” building was ill-chosen. According to Alexander Skokan, “...it was a mistake to attempt to design a normal building on this abnormal land site, much more drawing for it a façade that a normal house would have had. The site and the house itself are so narrow that they look more like a stage prop presenting a house. Therefore, it was necessary to come up with some sort of a decorative technique for the façade”.

This is how the idea of a screen came about that separates the outside world, with its streaming traffic of cars tearing down the highway and the seemingly endless pedestrian flow, from the inside peaceful existence of the future office. This coexistence of the isolated type, with a presence effect but not with the windows thrown wide, found its reflection in the image of a “curtain”, which covers the inside world yet does not separate it from the outside world completely, giving the users of the future buildings an opportunity to adjust the degree of interaction with it.

Administrative and business building in the Myasnitsky Drive. The facade along the Sadovo-Spasskaya Street. Sketch by Alexander Skokan © Ostozhenka
Administrative and business building in the Myasnitsky Drive. The facade along the Sadovo-Spasskaya Street. Sketch by Alexander Skokan © Ostozhenka


Administrative and business building in the Myasnitsky Drive. The facade along the Sadovo-Spasskaya Street © Ostozhenka
Administrative and business building in the Myasnitsky Drive. The facade along the Sadovo-Spasskaya Street © Ostozhenka


The effect of a living surface that is highly sensitive to the change of viewing angle (looking very much like a theater curtain) was only achieved when the architects used a double glass façade system with warm inside stained glass and an outside structure of firmly fastened lamellae that, on the one hand, fence off the interior from being watched from the outside, and, on the other hand, at a certain angle, make it possible to look outside practically unhindered. Furthermore, the lamellae gave the architects an opportunity to arrange visual connections, placing the panels at different angles. Just like a fan, the lamellae turn to and fro in order to open up more advantageous views of the surrounding cityscape and the most beautiful buildings from among the neighboring masterpieces.

The lamellae are grouped into six horizontal bands. What is interesting is the fact that at some places they unite several levels, while at some places, on the other hand, the overall rhythm is suddenly broken, and a row that is oriented in the opposite direction is formed. This way, it looks as if the façade was “tousled” with some of its lamellae gazing “against the grain”. As a result, one will have a hard time trying to make out at a first glance the principle that governs the fracturing of the bands, as well as the exact number of floors hidden behind the undulating curtain.

Administrative and business building in the Myasnitsky Drive. A fragment of the designed facade © Ostozhenka
Administrative and business building in the Myasnitsky Drive. A fragment of the designed facade © Ostozhenka


Administrative and business building in the Myasnitsky Drive. A fragment of the designed facade © Ostozhenka
Administrative and business building in the Myasnitsky Drive. A fragment of the designed facade © Ostozhenka


As their lamellae material, the Ostozhenka architects chose the “Satinat” glass treated by chemical etching. While not exactly translucent, it still conducts enough of ambient light, both in the daytime inside the building and in the evening (when the lights are on) outside of the building making it look like a glowing treasure chest.

Administrative and business building in the Myasnitsky Drive. Perception of the screen from various vantage points © Ostozhenka
Administrative and business building in the Myasnitsky Drive. Perception of the screen from various vantage points © Ostozhenka


Administrative and business building in the Myasnitsky Drive. Sketches by Alexander Skokan © Ostozhenka
Administrative and business building in the Myasnitsky Drive. Sketches by Alexander Skokan © Ostozhenka



The likeness to a theater curtain is strengthened even more thanks to a diagonally slanted lower edge of the outside façade. Its cutaway echoes the diagonal of the cantilevered protrusion overhanging above the entrance to the automated parking garage. In the previous version of the project, the authors designed this driveway entrance as being framed by columns – but the Ostozhenka architects proposed a more tectonic-friendly solution, which was also more efficient in terms of the operation of the bearing walls: with a cantilevered structure overhanging above the driveway. Thanks to this solution, the load is not relayed to the outside perimeter of the land site adjacent to the firewall of the neighboring building, which means that there is no risk of damaging the neighbor’s foundation.

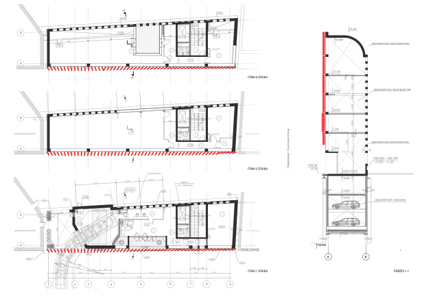
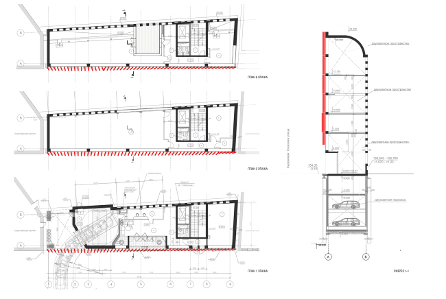
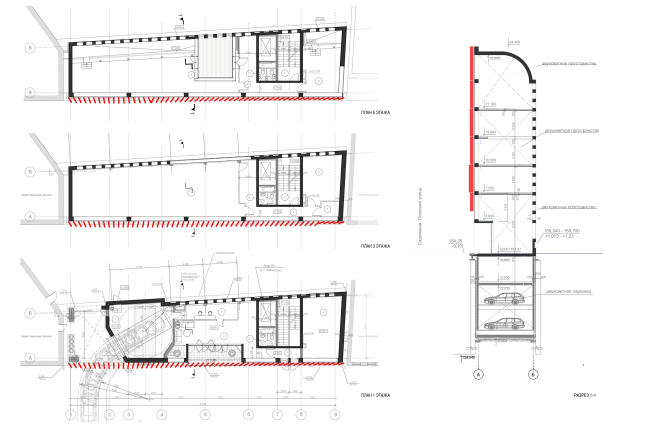
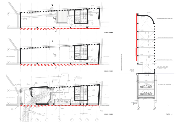
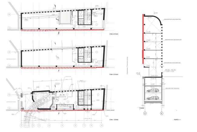
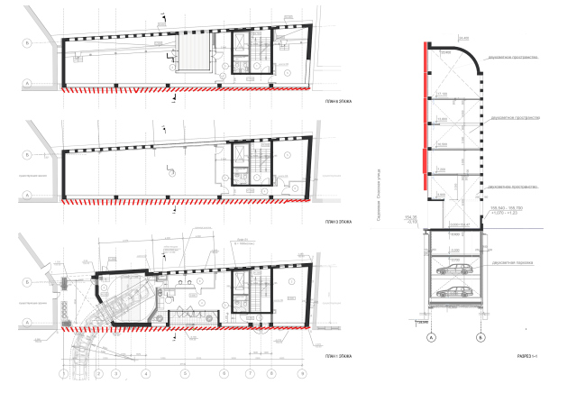
Administrative and business building in the Myasnitsky Drive. Plans of the 1st, 2nd, 3rd, and 6th floors. Section views 1-1 © Ostozhenka
Administrative and business building in the Myasnitsky Drive. Plans of the 1st, 2nd, 3rd, and 6th floors. Section views 1-1 © Ostozhenka


Administrative and business building in the Myasnitsky Drive. Photo montage in the Sadovo-Spasskaya Street © Ostozhenka
Administrative and business building in the Myasnitsky Drive. Photo montage in the Sadovo-Spasskaya Street © Ostozhenka


Developed by Ostozhenka, the new version of the project (which, in addition to the façades, includes a number of engineering and construction improvements) successfully got all the appropriate approvals from the Architectural Council in August 2017. The solutions proposed by the architects not only answered all the questions that were set forth by the challenging land site but also gave an opportunity for taking these ideas to a whole new level at the stage of operational design. However, how the project will get along and whether it will be possible to preserve the original artistic vision is something that the authors of the approved concept cannot say for sure.

Administrative and business building in the Myasnitsky Drive. The yard facade © Ostozhenka
Administrative and business building in the Myasnitsky Drive. The yard facade © Ostozhenka


Administrative and business building in the Myasnitsky Drive. Photo montage in the Sadovo-Spasskaya Street © Ostozhenka
Administrative and business building in the Myasnitsky Drive. Photo montage in the Sadovo-Spasskaya Street © Ostozhenka